Fregatten 9
4 800 000 kr
135 m²
3 soverom
Komplett salgsoppgave
Åskollen
Pen og innbydende enebolig i borettslag. Solrik balkong med flott fjordutsikt. Garasje. Svært barnevennlig boligområde.
Prisantydning
4 800 000 krAndel fellesgjeld
257 845 krOmkostninger
11 040 krTotalpris
5 068 885 kr
Pris
Bruksareal
160 m²BRA-I (internt bruksareal)
135 m²BRA-E (eksternt bruksareal)
25 m²TBA (terrasse-balkongareal)
23 m²
Areal
Etasje
2Byggeår
1986Soverom
3 soveromBad
1 badType
Enebolig - FrittliggendeEierform
AndelFasiliteter
Garasje/P-plass og Balkong/TerrasseFellesutgifter
5 497 krEnergimerke
Oransje E
Nøkkelinfo
Unngå doble boligrenter
Vi tilbyr gunstig forsikring.
Vurderer du utleie?
Få et tilbud fra Utleie KrogsveenHva koster lånet?
Sjekk estimert lånekostnadBeskrivelse
Kort om eiendommen
Innhold og byggemåte
Innhold og byggemåte
Eiendommen
Fregatten 9, 3038 DRAMMEN
Kommunenummer 3301, gårdsnummer 26, bruksnummer 254, ideell andel 1/1
Andelsnummer 57, Nordbylia Borettslag, organisasjonsnummer 950 528 958
Innhold
BRA-i (internt bruksareal)
Underetasje:
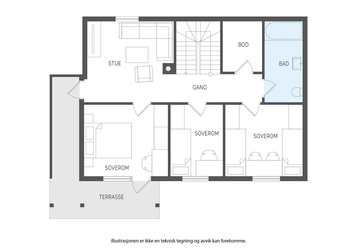
66 kvm: Gang, bad, kjellerstue, 3 soverom og bod.
1. etasje:
69 kvm: Stue, kjøkken, wc-rom, vaskerom, gang og entré.
BRA-e (eksternt bruksareal)
Underetasje:
8 kvm: Utebod.
1. etasje:
17 kvm: Garasje.
TBA (terrasse- og balkongareal)
1. etasje:
23 kvm: Balkong.
De oppgitte arealer er hentet fra rapport utført av Steffen Hegle-Olsen v/Drammen Takstsenter. Arealene er beregnet og rom er definert etter dagens faktiske bruk, uavhengig av hva som er godkjent av bygningsmyndighetene.
Byggemåte
Bygningen er iht. tilstandsrapport, oppført på betonggrunnmur. Grunnmur ble malt i 2025. Det er såleblokk under grunnmur av blokker. Etasjeskiller er av trebjelkelag. Taktekkingen er av stål/aluminiumsplater fra 2021. Nedløp og beslag består av stål. Det er montert snøfangere, heldekkende pipebeslag og stigetrinn for feier. Veggene har bindingsverkskonstruksjon fra byggeår. Fasade/kledning har liggende bordkledning (utvendig malt i mai/juni 2025). Skiftet noen panelbord på vegg mot sør (mai/juni 2025). Saltakkonstruksjon fra byggeår bestående av takstoler. Bygningen har hovedsakelig malte trevinduer med 3-lags glass. Byttet glass i to vinduer i stue i 2017. Vindu i kjellerstue fra 2024. Bygningen har malt hovedytterdør og malt balkongdør i tre. Utvendig malt dører i 2025. Nyere balkongdør i stue. Les forøvrig mer om byggemåte og den tekniske tilstanden i rapporten.
Tilstandsrapporten og selgers egenerklæring er vedlagt salgsoppgaven. Interessenter må sette seg inn i dokumentene før bud inngis.
Standard
Utvendig trappeadkomst til boligens overbygde inngangsparti i 1. etasje. Platting på ca. 12 kvm, i tilknytning til inngangspartiet. Utvendig trappeadkomst (trapp fra 2025) ned til hageområde i tilknytning til underetasjen. Tilgang til en utvendig bod på ca. 8 kvm (ikke byggemeldt).
1. etasje
Stue: Lys og luftig vinkelstue med sofaområde, spiseplass samt sittegruppe. Godt med vindusflater langs tre yttervegger og rommet er gjennomgående, som gir godt med lysinnslipp. Panasonic luft-til-luft varmepumpe fra 2021. Frittstående vedovn med malte fliser på gulv. Trappegang til underetasjen. Parkett på gulv (lakkert i 2024), malt tapet samt brystningspanel på vegger (malt panel i 2024) og malte plater i himling. Utgang til balkong på ca. 23 kvm med markise (utvidelse av balkong er ikke byggemeldt). Håndløper/toppbord på rekkverk på balkongen fra 2024. Balkongen har flott fjordutsikt. Videre er det trappeadkomst ned til platting på ca. 6 kvm. Alle terrassebord har nylig blitt vasket og beiset.
Kjøkken: Profilert kjøkkeninnredning med over- og underskap. Flislagte felt på vegg over benkeplater av laminat. Videre er kjøkkenet utstyrt med oppvaskmaskin, oppvaskkum i benkebeslag (skiftet blandebatteri i 2023), ventilator og komfyr. Opplegg for frittstående kjøleskap og frittstående fryseskap i nisje. Mulighet for spiseplass. Laminat på gulv (lakkert i 2024), panelplater på vegger og malt himling.
Wc-rom: Vegghengt servant og gulvstående toalett. Belegg på gulv, malt tapet på vegger og malt himling.
Vaskerom: Vegghengt utslagsvask. Opplegg for vaskemaskin og tørketrommel. Vinylbelegg på gulv, tapet på vegger og malt himling.
Gang: Parkett på gulv (lakkert i 2024), malt tapet på vegger (malt i 2024) og malt himling. Tilgang til uinnredet kaldtloft via luke.
Entré: Garderobeskap med speilfronter. Parkett på gulv (lakkert i 2024), malt tapet på vegger (malt i 2024) og malt himling.
Underetasje
Gang: Laminat på gulv (2024), malt tapet på vegger og malt himling. Tilgang til bod, boden ble malt i 2024.
Bad: Nedfelt servant i benkeplate over servantinnredning. Speil og lysarmatur over servant. Videre er badet utstyrt med gulvstående toalett og frittstående badekar med veggmontert dusjarmatur samt opplegg for dusjforheng. Varmekabler i gulv. Fliser på gulv, fliser på vegger og malt himling.
Kjellerstue: Kjellerstue med sofaområde. Panasonic luft-til-luft varmepumpe fra 2021. Laminat på gulv (2021), malt tapet på vegger og malt himling. Rommet har også utvendig adkomst.
Soverom 1: Garderobeskap i hvit og glatt utførelse. Laminat på gulv, malt tapet på vegger og malt himling. Utgang til overbygget uteplass som er hellelagt. Videre er det direkte adkomst til hageområde.
Soverom 2: Laminat på gulv, malt tapet på vegger og malt himling.
Soverom 3: Garderobeskap i hvit og glatt utførelse. Laminat på gulv, malt tapet på vegger og malt himling.
Generelt om boligen: Innvendige dører i underetasjen ble malt i 2025. Ca. 200 liters varmtvannsbereder fra 2008, plassert på vaskerom. Sikringsskap med automatsikringer og overbelastningsvern (2021), plassert i entré.
Selger har fått utarbeidet en tilstandsrapport for eiendommen, dvs. en teknisk gjennomgang av boligen hvor eventuelle avvik, risiko for kjøper og prisoverslag for hva som bør gjøres av oppgradering, er skissert. Se særskilt TGIU (tilstandsgrad ikke undersøkt), samt TG2 og TG3 som viser hva som er avvik fra boligens normale slitasje, alder og type, eller som bør/må utbedres. Rapporten og selgers egenerklæring er en del av salgsoppgaven og må leses nøye før bud inngis. Kjøper overtar ansvaret for de opplysninger som fremkommer av salgsdokumentasjonen, og kan ikke gjøre gjeldende som mangel noe som burde vært kjent eller som ikke kan anses å ha betydning for avtalen.
I rapporten fremkommer det som takstmannen mener kjøper må være særskilt oppmerksom på, dette gjelder blant annet (se utfyllende tekst i rapporten):
Følgende kontrollpunkter/forhold har blitt tildelt TG2:
- Veggkonstruksjon: Ingen/liten lufting i nedre kant av kledning mot grunnmur.
- Takkonstruksjon/loft: Fuktskjolder rundt gjennomføringer i undertak (selger opplyser om kondensproblematikk og utettheter i dampsperre, tiltak for utbedring er planlagt gjennomført før overtakelse).
- Vinduer: Helhetsvurdering med generell slitasjegrad på vinduer fra byggeår med slitte tettelister samt noe værslitt treverk, enkelte vinduer med punktert glass og lokale råteskader i utvendig omramming på vindu i underetasje.
- Dører: Generell slitasjegrad på dører fra byggeår med slitte tettelister og noe værslitt treverk.
- Balkonger, terrasser og rom under balkonger: For lavt rekkverk iht. dagens krav, ujevnheter i dekke mot ytterkant av balkong og provisorisk oppstøttelse av fundament på denne delen.
- Garasje: Vegger er stedvis malt samt stedvis umalt og slitasje med merker samt hakk i overflater.
- Innvendige overflater: Helhetsvurdering basert på overflateavvik, slitasje og alder - Overflater fremstår som delvis eldre med stedvis merker samt hull etter tidligere innfestninger, slitasje på enkelte gulv og glipper i langsgående skjøter i parkett (stue).
- Etasjeskille/gulv mot grunn: Høydeforskjell på mellom 20-22 mm i stue.
- Pipe og ildsted: Riss i pipe over gulv og sprekkdannelser i flisfuger i gulv foran peis.
- Rom under terreng: Ved hulltaking ble det registrert plast i veggkonstruksjon (ikke iht. anbefalt utførelse) og måleresultater viser verdier på grensen til høyet fuktighet (ikke over kritisk nivå).
- Innvendige trapper: For store åpninger mellom trinn og manglende håndløper på vegg i trappeløpet.
- Innvendige dører: Påvist avvik som tilsier at det bør foretas tiltak på enkelte dører.
- Vaskerom: Tapetskjøter er ikke tette (heller ikke egnet for våtrom), gulvoverflaten har sprekker og alder på membranløsning samt slukløsning.
- Bad: Hull i veggfliser etter tidligere innfestninger, riss i veggfliser i dusjsone, avflakking samt svelling i himling over dusj. for liten høydeforskjell fra sluk til gulv, noen gulvfliser har bom, alder på membranløsning samt slukløsning og sanitærutstyr er av eldre dato.
- Kjøkken: Skapdører henger noe skjevt og overflateavvik på fronter.
- Vannledninger: Alder på innvendige vannledninger.
- Avløpsrør: Alder på innvendige avløpsledninger.
- Elektrisk anlegg: Anlegget bør ha en utvidet el-kontroll med ref. til alder og ingen full kontroll av anlegget i senere tid.
- Fuktsikring og drenering: Alder på drenering og ikke synlig grunnmursplast/fuktsikring langs grunnmur rundt boligen. Selger opplyser om at det er drenert på deler av vegg mot vest (ifbm. vindu og lysgrav til kjellerstue).
- Grunnmur og fundamenter: Noe høydeforskjell i overgang mellom garasje/bolig og synlig glippe i panelbord mot husvegg.
- Terrengforhold: Dårlig fall/flatt terreng inn mot grunnmur.
- Utvendige vann- og avløpsledninger: Alder på utvendige vann- og avløpsledninger.
Følgende kontrollpunkter/forhold har blitt tildelt TG3:
- Utvendige trapper: Manglende rekkverk.
Følgende kontrollpunkter/forhold har blitt tildelt TGIU (tilstandsgrad ikke undersøkt):
- Vaskerom: Hulltaking er ikke foretatt pga. plassering mot yttervegg, ikke registrert indikasjoner på unormal fuktighet ved søk med fuktindikator.
Det anbefales ytterligere undersøkelser av disse punktene.
Se vedlagt tilstandsrapport for supplerende informasjon vedrørende boligens tilstand.
Løsøre og tilbehør
Hvitevarer på kjøkkenet medfølger i handelen, dette gjelder komfyr og oppvaskmaskin.
Stor hylle i garasje og to store hyller i utebod medfølger - øvrige småhyller i garasje/bod medfølger ikke.
Garderobeskap på soverom 2 medfølger ikke.
Videre vises det til liste fra Norges Eiendomsmeglerforbund angående løsøre og tilbehør. Produkter og installasjoner som medfølger overdras uten noen form for garantier, utover eventuell gjenværende leverandørgaranti.
Oppvarming
Vedovn og luft-til-luft varmepumpe i stue. Luft-til-luft varmepumpe i kjellerstue. Varmekabler i gulv på bad. Videre er boligen basert på elektrisk oppvarming ved evt. panelovner.
Det har blitt foretatt en kontroll av pipe og ildsted i 2021, utført av Drammensregionens brannvesen IKS og alt er funnet i orden.
Dersom det ikke er vegg- eller fastmonterte varmekilder i beboelsesrom ved visning, følger dette heller ikke med.
Ferdigattest/brukstillatelse
Det foreligger ferdigattest på eiendommen datert 27.12.1985, som omfatter oppføring av enebolig med garasje. I tillegg er det tilhørende godkjente byggetegninger fra 1984.
Det er gitt ferdigattest for bruksendring av rom fra tilleggsdel til hoveddel i underetasjen datert 19.11.2024, tiltaket omfattet bruksendring av sportsbod og bod til kjellerstue i underetasjen. Ifbm. bruksendringen ble det også opplyst om etablering av vindu med lysgrav mot fasade vest.
Det har blitt oppført en utvendig bod inntil boligen (i tilknytning til underetasjen) og balkongen har blitt utvidet. Megler anfører at det ikke foreligger dokumentasjon på søknad til kommunen vedrørende de utførte tiltakene. Kjøper overtar risiko og ansvaret for eventuelle pålegg fra kommunen samt kostnader forbundet med dette.
Kjøper overtar eiendommen slik den framstår på visning.
Tinglyste heftelser og rettigheter
Utover andel fellesgjeld overdras boligen fri for pengeheftelser, med unntak av borettslagets tinglyste panterett:
Borettslaget har legalpant for forfalte felleskostnader og andre krav som følger av borettslagsforholdet iht. burettslagsloven § 5-20. Pantet er begrenset oppad til 2G (G = folketrygdens grunnbeløp).
Det er tinglyst 4 servitutter på borettslagets eiendom. Disse omhandler blant annet bestemmelser om diverse ledninger, vann- og kloakkledning, grendehus m.m. Ingen av disse har direkte betydning for bruken av denne boligen.
Eventuell adgang til utleie
Andelseier kan ikke uten samtykke fra styret i borettslaget overlate bruken av boligen til andre. Med samtykke kan andelseier overlate boligen til andre i inntil tre år hvis andelseier har bodd i boligen i minst ett av de to siste år. Utleie i andre tilfeller kan godtas ved særlige grunner, jf. burettslagslova § 5-6. Utleie forutsetter at leiligheten har forsvarlige radonverdier. Se også borettslagets vedtekter og konferer megler ved spørsmål.
Utført radonmåling med sporfilm i perioden 14.11.2024 til 20.01.2025. Målingen er gjennomført i flere oppholdsrom og høyeste registrerte årsmiddelverdi er 140 Bq/m3. Dette ligger under grenseverdien på 200 Bq/m3. Tiltaksgrensen på 100 Bq/m3 er overskredet, men det er ikke krav om tiltak dersom nivået ikke overstiger grenseverdien jf. tilstandsrapporten.
Diverse
Vi er opptatt av verdiskapning, og har knyttet til oss samarbeidspartnere som skal sikre våre kunder de beste produkter og tjenester;
• Gjensidige leverer boligselgerforsikring og tilbyr bygningsforsikring
• Boligkjøperforsikring leveres av Hiscox og med Sedgwick som skadebehandler, og er formidlet gjennom Gjensidige.
• BN bank tilbyr finansieringsløsninger
• Vår avdeling Krogsveen Pluss tilbyr flyttetjenester som utvask, visningsvask, lager, tømming og transport av flyttelass, i tillegg til å formidle kontakt med Flip for overflateoppussing.
• I forbindelse med overtagelse av eiendommen tilbyr Overo avtale om strøm, alarm og bredbånd.
• Krogsveen er, sammen med øvrige bransjeaktører, medeier i den digitale annonseringsplattformen Hjem.
Energimerking
Komplett energiattest inkludert oppvarmingskarakter fås ved henvendelse til megler eller lastes ned fra www.krogsveen.no.
Beliggenhet og tomteforhold
Beliggenhet og tomteforhold
Beliggenhet
Boligen har en fin beliggenhet i attraktive Nordbylia Borettslag. Boligen ligger stille og rolig til, med svært mange barnefamilier i nærmiljøet samt med svært gode oppvekstsvilkår for barn og ungdom. Nordbylia Borettslag er et meget attraktivt boligfelt med et par minutters rolig og bilfri gangavstand til Åskollen Barneskole, barnehage og idrettsanlegg. Denne eiendommen har umiddelbar nærhet til gangveien, i tillegg er det opparbeidet en felles lekeplass på andre siden av veien. Kort vei til to dagligvarebutikker, frisør, post-i-butikk m.m.
Glassverket IF er et aktivt idrettslag i nærmiljøet med mange aktiviteter (håndball, fotball, langrenn, barneidrett og IFO). Klubben har eget idrettsanlegg med flere gressbaner, kunstgressbane og idrettshall. Helleristningen skolekorps, som rekrutterer fra Brandengen, Skoger og Åskollen skole. Speiderbevegelse med egen speiderhytte som ligger et par hundre meter fra boligen. Åskollen har egen sykkelklubb. Kort vei til flott turterreng, sommer og vinter - med lysløype i Nordbykollen. Flott turterreng også i Røysjømarka. Få minutters gange til sjøen og båthavn, med strand og bademuligheter i Sota Fjordpark og Nøstodden.
Ca. 5-10 minutters gangavstand til bussholdeplass både i Nordbyveien og Svelvikveien, med bussforbindelse til Drammen sentrum, se www.brakar.no for rutetider. Ca. 5-6 kilometer til Drammen sentrum med togstasjon som har god kommunikasjon til Oslo/Sandvika/Kongsberg, se www.vy.no for togavganger. Ca. 36 minutter med tog fra Drammen stasjon til Oslo. Ca. 6 minutters kjøring til E-18 i Kobbervikdalen og ca. 45 minutters kjøreavstand til Oslo.
Adkomst
Det vil bli skiltet med Krogsveen visningsskilt ved fellesvisninger. Se kart i nettannonse eller Google Maps for nærmere veibeskrivelse. Velkommen til visning!
Barnehager, skoler og fritid
Godt sammensatt tilbud av private og offentlige barnehager.
Barnehager: Helleristningen barnehage (0,2 km), Nordbylunden barnehage (0,4 km) og Nordby Gård barnehage (0,3 km).
Skoler: Åskollen barneskole (0,4 km) og Marienlyst ungdomsskole (5,6 km).
Drammen kommune har tre private barne- og ungdomsskoler, Drammen Realfagsskole Heltberg, Norlights Montessoriskole Drammen og Rosendal skole (Mjøndalen).
Det ligger flere videregående skoler i Drammen og Lier, samt Universitetet i Sørøst-Norge som har campus på Papirbredden i Drammen, for mer informasjon se www.usn.no.
Dersom skole- og barnehagetilbud er av betydning for kjøpet, ber vi om at det rettes en særskilt henvendelse til kommunen for oppdatert informasjon.
Beskrivelse av tomt
Eiertomt på 70 395 kvm som tilhører borettslaget.
Eiendommen er en del av et borettslag og har ingen klare tomtegrenser, men det er naturlige skiller mellom eiendommene. Den del av borettslagets tomt som andelen disponerer, er utearealer som naturlig ligger i tilknytning til boligen.
Utearealene er pent opparbeidet med asfaltert gårdsplass og grøntarealer med gressplen, hekk og diverse beplantninger. Beplantet med hekk i 2022 (østside).
Parkering
Parkering i integrert garasje på ca. 17 kvm med asfaltert dekke, vippeport, el-billader (2025) og lagringshems. Forøvrig er det parkering foran garasjen.
Borettslaget har utvendige parkeringsplasser som er forbeholdt besøkende.
Borettslaget har en tilhenger som kan leies av beboere (unntatt i vintersesongen).
Parkering i gatene, på fortau og på gangveier er ikke tillatt jf. vedtektene.
Vei, vann og avløp
Eiendommen har adkomst via privat vei med felles vedlikeholdsansvar for Borettslaget.
Eiendommen er tilknyttet kommunalt ledningsnett via private stikkledninger. Borettslaget er ansvarlig for private stikkledninger til bygningen.
Regulerings-og arealplaner
Eiendommen er i hovedsak regulert til boligformål, samt felles gang- og lekeareal, i henhold til reguleringsplan for Nordbylia felt A, datert 26.04.1988. Videre er eiendommen avsatt til bl.a. boligbebyggelse ved kommuneplanens arealdel for Drammen kommune 2025-2037 datert 18.06.2025. Utsnitt av planer med tilhørende bestemmelser kan fås ved henvendelse til megler.
I henhold til kommuneplanen er deler av borettslagets eiendom innenfor et område med flomfare, ras-/skredfare og brann-/eksplosjonsfare. Dette kan legge begrensninger for evt. utbygging, påbygg/tilbygg og andre terrenginngrep som på et generelt grunnlag er tillatt ifølge kommuneplanen. Konferer med megler dersom dette er aktuelt.
I nærområdet av eiendommen er det en detaljreguleringsplan som er under arbeid, dette gjelder for regionalt renseanlegg Nordbykollen- Solumstrand. Hensikten med planarbeidet er å etablere et regionalt renseanlegg for avløpsvann for kommunene Drammen, Lier og Asker. Mer informasjon finnes på prosjektsiden til Drammen kommune: Nytt regionalt renseanlegg. Foreløpig status for planen er "planlegging igangsatt" og det ble kunngjort oppstart av planen den 11.05.2024, se kommunens hjemmeside for mer info. Tidshorisont og endelig utforming av prosjektet er pt. ikke klart, det må påregnes støy o.l. fra byggeprosjektet under utbyggingen (med forbehold om at planen blir vedtatt).
Økonomi
Økonomi
Boligens kostnader
Felleskostnadene inkluderer bl.a. kommunale avgifter (vann og avløp), renovasjon, renter og avdrag på andel fellesgjeld, tv/internett grunnpakke, felles vedlikehold, felles driftskostnader, snøbrøyting, strøm i fellesarealer, forretningsførsel, revisjon- og administrasjonskostnader, styrehonorar, felles bygningsforsikring m.m.. Felleskostnadene justeres normalt en til to ganger årlig i forhold til borettslagets faktiske utgifter. Det tas forbehold om at felleskostnadene kan justeres fortløpende pga. renteøkninger.
Felleskostnadene pr. mnd fordeles slik:
Grunnleie kr 4.365,-
Forsk. avregn. vann kr 1.132,-
Kostnader for vann avregnes årlig etter forbruk, dette betales som et månedlig á-konto beløp. Beløpet fastsettes av styret årlig etter avregning.
Det må påregnes kostnader til strøm og nettleie, dette vil variere avhengig av strøm-/nettselskap. Nåværende eier har et strømforbruk på ca. 14.000 kWh pr. år.
For denne boligen er det inngått avtale om Norgespris i stedet for strømstøtte, avtalen på kr 50 øre inkl. mva følger eiendommen og har en bindingstid frem til 31.12.2026. Nettleie, avgifter og påslag fra kraftleverandøren kommer i tillegg. Er det fjernvarme vil det også komme kostnader i tillegg. Les mer om Norgespris her: https://www.regjeringen.no/no/aktuelt/legg-fram-lov-om-norgespris-pa-straum-og-fjernvarme/id3102642/
Boligen er tilknyttet Viken Fiber Altibox som leverandør av tv og internett, grunnpakke er inkludert i felleskostnadene.
Det må påregnes kostnader til innboforsikring.
Ovenstående er basert på nåværende eier/husstands senere års forbruk/utgifter. Dette vil variere avhengig av antall beboere, ønsket innetemperatur, egne fordelsavtaler, kanalvalg, hastighet på bredbånd osv.
Formuesverdi
Formuesverdi for 2023 var kr 1 155 581,- ifølge skatteetaten. Beløpet forutsetter at eier bor fast i boligen (primærbolig).
Ved eventuell øvrig bruk av eiendommen (f.eks. fritidsbolig, pendlerbolig, utleieobjekt) var formuesverdien for 2023 kr 4 622 324,-.
Formuesverdien justeres normalt årlig. Se skatteetaten.no for mer informasjon om fastsettelse av formuesverdien.
Opplysninger om fellesgjeld
Andel formue er kr 38 450,- pr. 31.12.2024.
Andel fellesgjeld er kr 257 845,- pr. 26.06.2025.
Total fellesgjeld for boligselskapet er kr 32.230.739,- pr. 26.06.2025 og lånevilkårene er:
Lånenummer: 94937039713, Handelsbanken
Annuitetslån, 2 terminer per år.
Rentesats per 26.06.2025: 5.7% pa.
Antall terminer til innfrielse: 50
Saldo per 26.06.2025: 13 281 619
Andel av saldo: 106 253
Første termin/første avdrag: 30.06.2020 (siste termin 31.12.2049)
Flytende rente
Lånenummer: 94937044237, Handelsbanken
Annuitetslån, 2 terminer per år.
Rentesats per 26.06.2025: 5.7% pa.
Antall terminer til innfrielse: 52
Saldo per 26.06.2025: 18 949 120
Andel av saldo: 151 593
Første termin/første avdrag: 30.06.2021 (siste termin 31.12.2050)
Flytende rente
Borettslaget har ikke tilrettelagt for individuell nedbetaling av fellesgjeld.
Omkostninger
4 800 000,00 Prisantydning
257 845,00 Andel av fellesgjeld
--------------------------------------------------------
5 057 845,00 Pris inkl. fellesgjeld
Omkostninger
9 950,00 Gjensidige Boligkjøperpakke (valgfri)
545,00 Tinglysing hjemmel
545,00 Tinglysing panterettsdokument
--------------------------------------------------------
11 040,00 Omkostninger totalt
--------------------------------------------------------
5 068 885,00 Totalpris inkl. omkostninger
--------------------------------------------------------
Dersom kjøper ikke er medlem av boligbyggelaget, må det påregnes en innmeldingsavgift og årlig medlemsgebyr pr. ny andelseier. Dette faktureres direkte fra boligbyggelaget.
Dersom forkjøpsrett benyttes skal ny kjøper i tillegg betale et gebyr til boligbyggelaget (NBBO) på kr 8.406,-.
Dersom borettslaget har fellesgjeld, vil leilighetens andel av fellesgjelden komme i tillegg til kjøpesummen. Denne gjelden skal ikke innbetales i oppgjøret, men følger leiligheten.
Det tas forbehold om endringer i avgifter og gebyrer.
Tilbud om lånefinansiering
Megler formidler gjerne kontakt med rådgiver hos vår samarbeidspartner BN Bank. De har konkurransedyktige betingelser samt rask og løsningsorientert behandling av din lånesøknad. Krogsveen mottar et honorar for denne formidlingen.
Betalingsbetingelser
Kjøpesum inkludert omkostninger, samt pantedokument tilknyttet eventuelt lån, skal være disponibelt hos megler 2 virkedager før overtagelsen.
Annen viktig informasjon
Annen viktig informasjon
Eier
Maja Kophamer og Adam Kophamer
Informasjon om borettslaget
Boligen er tilknyttet Nordbylia Borettslag.
Borettslaget består av 125 andelsboliger.
Forretningsfører er Nedre Buskerud Boligbyggelag, tlf. 32 21 15 00.
Borettslagets årsregnskap for 2024 viser et overskudd på kr 545.357,-.
Disponible midler i borettslaget pr. 31.12.2024 kr 4.796.270,-.
Dugnader tilknyttet borettslaget må påregnes.
Dyrehold er tillatt, med mindre det er til sjenanse for øvrige beboere. Dyrehold må registreres hos styret. Hunder og katter skal alltid og uten unntak holdes i bånd på borettslagets eiendom jf. husordenreglene.
Borettslagets hjemmeside: www.nordbylia.no
Beboere i borettslaget har mulighet for å leie et grendehus (kveldstid og helger).
Borettslagets vedlikeholdsplikt omfatter reparasjon eller utskifting av tak, bjelkelag, bærende veggkonstruksjoner og reparasjon av skader på grunnmur. Borettslaget er ansvarlig for reparasjon og utskifting av takbelegg, undertak, pipehatter, luftehatter, takrenner, vindskier, forkantblikk, isbord, isbordbeslag, nedløp, bjelkelag, bærende veggkonstruksjoner og reparasjon av skader på grunnmur. Med grunnmur forstås også mur som fra originalt byggeår er en integrert del av grunnmuren rundt huset, f.eks. mellom to hus i borettslaget. Vedlikehold av vindskier og isbord er andelseiers ansvar. Øvrig vedlikehold og utskiftning pålegges andelseier.
Alle påbygg, ombygg og fasadeendringer er søknadspliktige. Dette omfatter alle tiltak som medfører endringer på bærende konstruksjoner, vinduer, utvendige dører o.l. Andelseier plikter å søke styret om godkjenning av tiltaket før det iverksettes.
Styret er av den oppfatning at det utførte løpende og periodiske vedlikeholdet er tilstrekkelig for å opprettholde den bokførte verdien på bygningsmassen.
Foretatte arbeid/påkostninger i de senere år: Bytte av tak og takrenner. Bytte av postkasser. Oppgradert gatelys til LED. Oppgradert lekeplasser. Bytte av luftelyrer og pipehatter. Asfaltering av gater og opparbeidet fartsdumper. Vedlikehold av Grendehuset.
I henhold til borettslagets vedtekter må kjøper godkjennes av styret som ny andelseier. Det er kjøpers ansvar at styregodkjenning blir gitt, men styret kan ikke nekte godkjenning uten saklig grunn. Iht. burettslagslova kan man bare eie en andel i borettslaget. Kun fysiske personer kan være andelseiere.
Borettslaget er tilknyttet Borettslagenes Sikringsordning AS som dekker manglende innbetaling av felleskostnader fra øvrige andelseiere. Avtalen om sikring er gyldig til avtalen sies opp av en av partene. Oppsigelsesfrist er 1 desember med gyldighet fra førstkommende årsskifte.
Borettslagets bygningsmasse er fullverdiforsikret i Gjensidige Forsikring ASA, polisenr.: 86324536.
Dokumenter vedrørende borettslaget kan fås ved henvendelse til megler.
Informasjon om forkjøpsrett
Øvrige andelseiere i borettslaget og medlemmer av boligbyggelaget har forkjøpsrett. I henhold til burettslagslova tar dette 20 dager å avklare fra melding om salget er gitt borettslaget. Dersom boligen tas på forkjøpsrett løses kjøper fra avtalen.
Overtakelse
Etter nærmere avtale.
Boligselgerforsikring
Selger har i forbindelse med salget tegnet boligselgerforsikring levert av Gjensidige.
Boligselgerforsikringen dekker selgers ansvar etter avhendingsloven begrenset oppad til kr 14 millioner. Dersom kjøper oppdager forhold ved eiendommen som hen mener utgjør en mangel ved eiendommen, vil Gjensidige behandle reklamasjonen på vegne av selger. Forsikringsvilkår kan fås ved henvendelse til megler.
Vedlagt salgsoppgaven følger selgers egenerklæringsskjema og tilstandsrapport. Interessenter må sette seg inn i dokumentene før bud inngis.
Boligkjøperforsikring
Innen kontraktsmøtet må kjøper ta stilling til om det ønskes å bestille Boligkjøperpakken gjennom Gjensidige. I denne gunstige pakken er boligen ferdig forsikret og inkluderer rettshjelpsforsikring, også kalt Boligkjøperforsikring. Rettshjelpsforsikring gir trygghet og tilgang på profesjonell juridisk hjelp dersom det oppdages uventede feil eller mangler det første året etter overtagelse. Forsikringsselskapet behandler i så fall ethvert mangelskrav kjøper måtte ha overfor selger.
Boligkjøperpakken inkluderer bygningsforsikring for hus og hytte, innboforsikring, flytteforsikring og dobbel rentedekning - i situasjoner hvor kjøper ikke får solgt nåværende primærbolig.
Kjøper mottar ingen særskilt faktura for Boligkjøperpakken da kostnaden det første året legges til kjøpesummen for boligen. Det gjøres oppmerksom på Krogsveen mottar et honorar for denne formidlingen.
Produktark for Boligkjøperpakken ligger vedlagt i salgsoppgaven.
Dersom ikke boligkjøperpakke ønskes kan kun rettshjelpsforsikring, også kalt boligkjøperforsikring, tegnes særskilt via megler. Rettshjelpsforsikringen varer i 5 år fra overtagelse og leveres gjennom Gjensidige. Ta kontakt med megler for ytterligere informasjon.
Selskap og privatpersoner som driver med kjøp/salg/utvikling som ledd i egen næringsvirksomhet kan ikke tegne boligkjøperpakke eller rettshjelpsforsikring.
Budgivning
Forbrukerinformasjon om budgivning er vedlagt denne salgsoppgaven og er også på vår hjemmeside Krogsveen.no. Alle bud og budforhøyelser må inngis skriftlig. I tillegg må legitimasjon være fremlagt sammen med signatur fra budgiver.
Vi oppfordrer til å gi bud elektronisk via GI BUD-knappen på eiendommens hjemmeside på Krogsveen.no. Da vil samtlige vilkår bli oppfylt.
Eventuelle forhøyelser eller endringer av budet kan bekreftes pr SMS eller på e-post. Vi oppfordrer alltid til å kontakte megler pr. telefon i tillegg da forsinkelser i SMS og e-post kan forekomme.
For at budene skal kunne bli behandlet og videreformidlet skriftlig til alle involverte parter, må alle bud ha en tilstrekkelig lang akseptfrist, jf. eiendomsmeglingsforskriften § 6-3.
Selger må også skriftlig akseptere budet før aksept kan formidles til budgiver. Akseptfrist bør derfor være på minimum 30 minutter, og budforhøyelser må derfor skje i god tid før fristens utløp.
Bud i forbrukerforhold kan uansett ikke settes med kortere frist enn kl. 12.00 første virkedag etter siste annonserte visning. I tillegg kan ikke budet ha forbehold om at det skal holdes hemmelig ovenfor øvrige interessenter. Megler har iht lov om eiendomsmegling ikke anledning til å videreformidle disse budene, og de vil dermed heller ikke bli journalført.
Etter at eiendommen er solgt vil kjøper og selger få tilsendt budjournal. Øvrige budgivere kan få utlevert kopi av budjournalen i anonymisert form.
Hvitvaskingsreglene
I henhold til lov om hvitvasking og terrorfinansiering har megler plikt til å gjennomføre kontrolltiltak overfor kunder, herunder fullmektiger. Dette innebærer bl.a. å bekrefte kunders og reelle rettighetshaveres identitet på bakgrunn av fremvist gyldig legitimasjon eller på annen godkjent måte, samt å innhente opplysninger om kundeforholdets formål og tilsiktede art.
Dersom slike kundetiltak ikke kan gjennomføres, kan megler ikke etablere kundeforholdet eller utføre transaksjonen.
Hvis kjøper ikke bidrar til gjennomføring av kundekontrollen og dette fører til at transaksjonen blir forsinket eller ikke kan gjennomføres, vil dette ansees som mislighold av avtalen og gi selger rettigheter etter avhendingslova kapittel 5. I tilfeller der selger ikke bidrar til gjennomføring av løpende kundekontroll underveis i oppdraget, er det selger som misligholder sine forpliktelser etter avtalen og gi kjøper rettigheter etter avhendingslovens kapittel 4. Partene er selv ansvarlige for eventuelle kostnader og ansvar dette kan medføre. Eiendomsmegleren eller eiendomsmeglingsforetaket kan ikke holdes ansvarlig for de konsekvenser dette vil kunne få for partene eller andre som har interesser i eiendomshandelen.
Kjøper oppfordres til å innbetale kjøpesummen som ikke kommer fra låneinstitusjon i én samlet innbetaling fra egen konto i norsk bank. Megler har plikt til å melde fra til Økokrim om eiendomshandler som fremstår som mistenkelige. Melding sendes Økokrim uten at partene varsles.
Personopplysningsloven
I henhold til personopplysningsloven gjør vi oppmerksom på at interessenter kan bli registrert for videre oppfølging.
Lovanvendelse
Generelle bestemmelser
Salgsoppgaven er basert på de opplysningene selger har gitt til megler, den bygningssakyndiges tilstandsrapport, samt opplysninger innhentet fra kommunen, Kartverket og andre tilgjengelige kilder. Det er viktig at kjøper setter seg grundig inn i alle salgsdokumentene, herunder salgsoppgave, tilstandsrapport og selgers egenerklæring. Kjøper anses kjent med forhold som er tydelig beskrevet i salgsdokumentene, og slike forhold kan ikke påberopes som mangler. Dette gjelder uavhengig av om kjøper har lest dokumentene. Alle interessenter oppfordres til å undersøke eiendommen nøye, gjerne sammen med fagkyndig før bud inngis. Kjøper som velger å kjøpe usett kan ikke gjøre gjeldende som mangel noe han burde blitt kjent med ved undersøkelsen.
Dersom det er behov for avklaringer, anbefaler vi at interessenter rådfører seg med eiendomsmegler eller egne rådgivere før det legges inn bud.
En bolig som har blitt brukt i en viss tid, har vanligvis blitt utsatt for slitasje og skader kan ha oppstått. Slik bruksslitasje må kjøper regne med, og det kan avdekkes enkelte forhold etter overtakelse som nødvendiggjør utbedringer. Normal slitasje og skader som nødvendiggjør utbedring, er innenfor hva kjøper må forvente og vil ikke utgjøre en mangel.
Kjøper og selgers rettigheter og plikter reguleres av avtalen mellom partene, samt informasjonen som har vært tilgjengelig for kjøperen i forbindelse med handelen. Avtalen utfylles av avhendingsloven, og det gjelder ulike avtalevilkår avhengig av om kjøper er forbrukerkjøper eller ikke. Dette er nærmere beskrevet nedenfor.
På grunn av ulike avtalevilkår kan selger vurdere bud fra en som ikke er forbruker, ulikt fra en forbrukers bud. Dersom kjøper ikke er forbruker, er selger sitt mulige mangelsansvar begrenset fordi eiendommen selges "som den er". Selger kan ikke ta «som den er»- forbehold overfor en forbrukerkjøper. Selv et lavere bud fra en som ikke er forbruker kan foretrekkes fordi begrensningen i mulig mangelsansvar kan ha egenverdi for selger. Selger står fritt til å forkaste eller akseptere ethvert bud, og er for eksempel ikke forpliktet til å akseptere høyeste bud.
Budgiver skal i budskjema avgi egenerklæring om budgiver er forbruker eller næringsdrivende/ person som hovedsakelig handler som ledd i næringsvirksomhet. Budgivere får informasjon dersom andre bud er inngitt av en som ikke er forbruker.
Forbrukerkjøp - definisjon
Med forbrukerkjøp menes kjøp av eiendom når kjøperen er en fysisk person som ikke hovedsakelig handler som ledd i næringsvirksomhet.
Forbruker – avtalevilkår
Eiendommen har en mangel dersom den ikke er i samsvar med kravene som følger av avtalen, eller det foreligger brudd på bestemmelsene i avhendingsloven §§ 3-2 til 3-8. Hvis eiendommen ikke er i samsvar med det kjøperen må kunne forvente ut ifra alder, type og synlig tilstand, kan det være grunnlag for mangelskrav. Det samme gjelder hvis det er holdt tilbake eller gitt uriktige opplysninger om eiendommen. Dette gjelder likevel bare dersom man kan gå ut ifra at det virket inn på avtalen at opplysningen ikke ble gitt eller at mangelskravet ikke blir rettet i tide på en tydelig måte.
Boligen kan ha en mangel etter avhendingsloven § 3-3 andre ledd, dersom det er avvik mellom opplyst og faktisk innvendig areal, forutsatt at avviket er på 2% eller mer og minimum 1 kvm.
Ved beregning av et eventuelt prisavslag eller erstatning må kjøper selv dekke tap/kostnader opptil et beløp på kr 10 000 (egenandel).
Ikke-forbruker (næringsdrivende) – definisjon
Hvis kjøper er en juridisk person, eller en fysisk person som hovedsakelig handler som ledd i næringsvirksomhet, vil kjøpet ikke anses som et forbrukerkjøp.
Ikke-forbruker – avtalevilkår
Eiendommen har en mangel dersom den ikke er i samsvar med kravene som følger av avtalen.
Eiendommen selges «som den er», og selgers ansvar utover det konkret avtalte er da begrenset etter avhendingsloven § 3-9, første ledd andre setning.
Avhendingsloven § 3-3 andre ledd fravikes, og hvorvidt boligens arealsvikt utgjør en mangel vurderes etter avhendingsloven § 3-8.
Informasjon om kjøpers undersøkelsesplikt, herunder oppfordringen om å undersøke eiendommen nøye, gjelder også for kjøpere som ikke anses som forbrukere.
Det forutsettes at hjemmel overføres til kjøper. Hvis kjøper ikke ønsker hjemmelsoverføring av eiendommen, må det tas forbehold om dette i budet.
Meglers vederlag
Meglers vederlag betales av selger og er avtalt til:
Vederlag: 0,90% av salgssummen
Minimumsvederlag: kr 47.250,-
Tilrettelegging kr 17.000,-
Oppgjør: kr 7.500,-
Markedsføringspakke: kr 27.400,-
Visninger/overtagelse: kr 3.500,- pr. stk (3 visninger inkl.)
Oppslag eiendomsregister: kr 2.900,-
Megler har i tillegg krav på dekning av følgende utlegg:
Eierskiftegebyr forretningsfører NBBO kr 6.570,-
Innhenting av feierrapport fra Drammensreg. Brannvesen kr 573,-
Innhenting av informasjon forretningsfører NBBO kr 4.947,-
Innhenting av off. oppl. Drammen borettslagspakke m/ tegninger kr 1.389,-
Tinglysing sikring kr 545,-
Boligfotografering med dronebilder kr 5.200,-
Takstmann kr 20.000,-
Opplysninger om oppdraget
Oppdragsnummer 20-0243/25
Eiendomsmegler Krogsveen AS, avd. Drammen
Nedre Storgate 16, 3015, DRAMMEN
950 007 613
Oppdragets KR-kode KR20.25243
Dato
Sist oppdatert: 04. april 2026 kl. 18:57
Dokumenter
Dokumenter
PDF – 2 MB
PDF – 744 KB
PDF – 543 KB
PDF – 1 MB
PDF – 792 KB
PDF – 312 KB
PDF – 29 KB
PDF – 127 KB
PDF – 392 KB
Område
Legg til steder som er viktige for deg
Visning
For å delta på visning, ber vi om at du melder deg på. Da sikrer vi at du får nødvendig informasjon og at det er satt av tilstrekkelig med tid. Påmeldingsfrist er på visningsdag kl 1200. Husk å lese salgsoppgaven før visningen, så du stiller forberedt. NB. Visning utgår dersom det ikke er noen påmeldte.
Ønsker du kun å bli holdt orientert, kan du fra eiendommens hjemmeside få varsel om solgtpris, eller kontakte megler.
Lurer du på noe?
Unngå doble boligrenter
Vi tilbyr gunstig forsikring.
Vurderer du utleie?
Få et tilbud fra Utleie KrogsveenHva koster lånet?
Sjekk estimert lånekostnadVil du varsles om lignende boliger?
Ved å lagre ditt boligsøk hos oss får du beskjed når vi har en bolig som ligner denne, før den legges ut på markedet!




