Østreheimsveien 21A
7 580 000 kr
125 m²
1 soverom
Solgt

Presenteres av
Hanne PettersenÅRVOLL
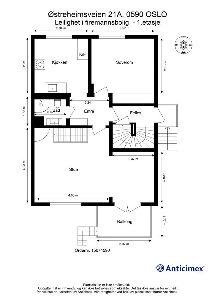
SKAP DIN DRØMMEBOLIG! Del av 4-mannsbolig over to plan på 125 kvm - Peis - Balkong med utgang til solrik hage - Garasje
Prisantydning
7 580 000 krAndel fellesgjeld
312 000 krOmkostninger
208 340 krTotalpris
8 100 340 kr
Pris
Bruksareal
140 m²BRA-I (internt bruksareal)
125 m²BRA-E (eksternt bruksareal)
15 m²TBA (terrasse-balkongareal)
5 m²
Areal
Etasje
1Byggeår
1952Soverom
1 soveromBad
1 badType
EierleilighetEierform
EierseksjonFasiliteter
Garasje/P-plass og Balkong/TerrasseFellesutgifter
5 500 krEnergimerke
Rød G
Nøkkelinfo
Unngå doble boligrenter
Vi tilbyr gunstig forsikring.
Vurderer du utleie?
Få et tilbud fra Utleie KrogsveenHva koster lånet?
Sjekk estimert lånekostnadBeskrivelse
Kort om eiendommen
Drømmer du om å skape din egen drømmebolig?
Her kan du gjøre akkurat det!
Dette er din mulighet til å skaffe deg en av områdets mest spennende familieboliger beliggende øverst i en av Årvolls fineste veier.
Boligen har bruksrett til en solrik hage som er opparbeidet med hekk, gress og epletrær.
Her er det mulighet for å lage markterrasse og ikke minst god plass til trampoline.
Setter du pris på umiddelbar nærhet til marka og enkel adkomst til sentrum?
Da er denne boligen et fantastisk alternativ!
Oppussingsobjekt over to plan med enormt potensiale
Balkong på 5 kvm
Peis
Lukket garasje på 15 kvm. Mulighet for elbilalder
Sameiet ble reseksjonert i 2025
Fasaden ble rehabilitert i 2020
Drenering ,nye isoleringsplater og rehabilitering pipeløpet utført i 2016
Område
Legg til steder som er viktige for deg
På flyttefot? Tenk kjøp og salg samtidig.
Få din egen rådgiver gjennom hele kjøps- og salgsprosessen. Det starter med en verdivurdering.
Unngå doble boligrenter
Vi tilbyr gunstig forsikring.
Vurderer du utleie?
Få et tilbud fra Utleie KrogsveenHva koster lånet?
Sjekk estimert lånekostnadVil du varsles om lignende boliger?
Ved å lagre ditt boligsøk hos oss får du beskjed når vi har en bolig som ligner denne, før den legges ut på markedet!
På flyttefot? Slik gjør vi det enklere for deg
Skreddersydd flyttepakke
Vi fikser håndverkere, vask, pakking, lagring og transport, og legger ut for utgiftene underveis.
Hjelp med både kjøp og salg
Hos oss har du din egen rådgiver gjennom hele kjøps- og salgsprosessen.
Hjelp til finansiering
Vårt samarbeid med BN Bank sikrer deg rask og løsningsorientert hjelp, til konkurransedyktige betingelser.

