Siriusveien 29
5 350 000 kr
150 m²
3 soverom
Komplett salgsoppgave
Nordby/Vinterbro
Halvpart av tomannsbolig med stort potensiale | Svært barnevennlig boligområde | Vestvendt veranda og hage | Carport
Prisantydning
5 350 000 krOmkostninger
144 790 krTotalpris
5 494 790 kr
Pris
Bruksareal
154 m²BRA-I (internt bruksareal)
150 m²BRA-E (eksternt bruksareal)
4 m²TBA (terrasse-balkongareal)
54 m²
Areal
Etasje
3Byggeår
1963Soverom
3 soveromBad
2 badType
Halvpart vertikaldelt boligEierform
EierseksjonFasiliteter
Balkong/TerrasseEnergimerke
Rød G
Nøkkelinfo
Unngå doble boligrenter
Vi tilbyr gunstig forsikring.
Vurderer du utleie?
Få et tilbud fra Utleie KrogsveenHva koster lånet?
Sjekk estimert lånekostnadBeskrivelse
Kort om eiendommen
- Etablert, trygt og barnevennlig område. Ca 400 meter til nærmeste barnehage. 500-600 meter til Nordby barneskole og Nordbytun ungdomsskole.
- Bussholdeplass 1 minutt unna. Forbindelse til blant annet Ski og Alti kjøpesenter.
- Flotte turområder i nærområdet. Kort vei til idrettsplass. Kort vei til Tusenfryd, Breivoll, Kjærnes med mer.
- Vestvendt veranda på 29 kvm med adkomst fra stuen. Ellers stor felleseiet tomt med meget gode solforhold. Terrasse på 12 kvm med morgensol på fremsiden.
- Det er innredet utleieleilighet i underetasjen som har vært leid ut, dog er denne ikke godkjent, og utleie og eventuell godkjenning vil være kjøpers ansvar.
- God planløsning. Alle soverom i samme etasje.
- Bolig med oppussingsbehov og stort potensiale
Velkommen til visning.
Innhold og byggemåte
Innhold og byggemåte
Eiendommen
Siriusveien 29, 1407 VINTERBRO
Kommunenummer 3218, gårdsnummer 113, bruksnummer 1, festenummer 225, seksjonsnummer 3, ideell andel 1/1
Innhold
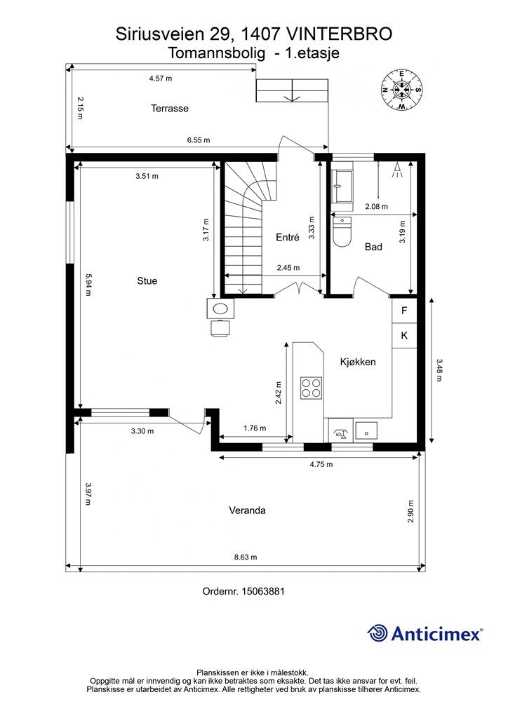
Totalt bruksareal BRA: 154 kvm.
BRA-i:
Underetasje: 57 kvm: Rom benyttet som entré, rom benyttet som soverom, rom benyttet som kjøkken, kott, rom benyttet som bad og rom benyttet som stue.
1. etasje 56 kvm: Entré, bad og stue med åpen kjøkkenløsning.
2. etasje 37 kvm: Gang, kott og tre soverom.
BRA-e:
Carport med bod 4 kvm: Bod.
Åpent areal:
1. etasje 41 kvm: Terrasse og veranda.
Underetasje 13 kvm: Platting.
2. etasje har et totalt gulvareal (GUA) på 46 kvm, men grunnet skråtak/lav takhøyde er kun 37 kvm. av arealet måleverdig som bruksareal. De delene av arealene som har lav himlingshøyde (ALH) utgjør 9 kvm.
Bod tilknyttet carport er medregnet som eksternt bruksareal (BRA-e).
Det er en bod siden av inngangen til underetasjen som deles med nabo.
Frittstående carport er ikke måleverdig grunnet åpne veggkonstruksjoner. Gulvflate målt til ca. 15 kvm.
Arealet i dukkehus måles til 2 kvm. (ALH), men grunnet lav takhøyde er ingen deler av arealet måleverdig som bruksareal.
Vedlagte plantegninger er ikke målbare. De oppgitte arealer er hentet fra rapport datert 03.02.2025, utført av Anticimex v/Morten Bøhler Hansen. Arealene er beregnet og rom er definert etter dagens faktiske bruk, uavhengig av hva som er godkjent av bygningsmyndighetene.
Utleiedel/innredning til beboelsesrom i underetasjen er ikke godkjent av kommunen. Les mer under pkt. ferdigattest.
Byggemåte
Selger har fått utarbeidet en tilstandsrapport, dvs. en teknisk gjennomgang av boligen hvor eventuelle avvik, risiko for kjøper og prisoverslag for hva som bør gjøres av oppgradering, er skissert. Se særskilt TGIU (tilstandsgrad ikke undersøkt), samt TG2 og TG3 som viser hva som er boligens normale slitasje, alder og type, hva som er avvik fra dette og hva som bør/må utbedres. Rapporten og selgers egenerklæring er en del av salgsoppgaven og må leses nøye før bud inngis. Kjøper overtar ansvaret for de opplysninger som fremkommer av salgsdokumentasjonen, og kan ikke gjøre gjeldende som mangel noe som burde vært kjent eller som ikke kan anses å ha betydning for avtalen.
Bygningen er iht. tilstandsrapporten et boligbygg fra 1963. Boligen ble bygget på i 2003 og ombygget i 2007. Boligen er oppført med støpt gulv mot grunn. Grunnmur av betong. Bærende konstruksjoner av
murkonstruksjoner, porebetong samt trekonstruksjoner. Etasjeskillere av betong samt trekonstruksjoner. Fasader utført i stående/liggende trekledning. Takkonstruksjon utført i saltaksform utvendig tekket med takstein. Boligen profilert ytterdør av tre med glassfelt til hoveddel. Profilert/glatt ytterdør av tre med glassfelt underetasje. Balkongdør med karm av tre og to-lags glass fra ukjent årstall. Vinduer med karmer av tre og to-lags glass fra 1989, 1983 samt ukjent årstall. Takvinduer med karmer av PVC og to-lags glass fra ukjent årstall. Les for øvrig mer om byggemåte og den tekniske tilstanden i rapporten.
Det gjøres spesielt oppmerksom på:
TG3
- Bad hoveddel: Pga. alder og diverse mangler
- Bad underetasje: Pga. alder og diverse mangler.
- Varmtvannsbereder på bad underetasje har en alder og tilstand som tyder på at levetiden er passert. Det er observert drypplakkasje fra sikkerhetsventil.
- Det er foretatt hulltaking og utført fuktmåling i utlektet veggkonstruksjon. Målingen gir kun et øyeblikksbilde og kan eksempelvis endre seg med årstider, fukt- og temperaturforhold. Relativ luftfuktighet ble målt til 88,1 prosent, ved 6,1 celsius med duggpunkt på 4,4 celsius. Dette måleresultatet tilsier at det ble registrert kritisk høyt fuktnivå i konstruksjonen, som vurderes til å være en pågående fuktskade. Det er observert dampsperre i veggkonstruksjonen, en løsning som erfaringsmessig gir økt risiko for fuktproblemer siden dette sperresjiktet reduserer konstruksjonens evne til uttørking. Fuktproblemer oppstår gjerne som følge av en kombinasjon av flere underliggende årsaker, men problemer med dreneringen vurderes som en sannsynlig hovedårsak. Denne opplysningen må derfor ses i sammenheng med opplysninger som gis under punkt «Drenering».
- Etasjens skråtak er i praksis en lukket konstruksjon, men det er gjort observasjoner av konstruksjonsoppbygningen fra kaldtloftet. Disse observasjonene tyder på feil ved oppbygningen basert på lufting. Det registreres . Vurderingen baseres på de delene av konstruksjonen som lot seg visuelt kontrollere. Konsekvens av forholdet er høy risiko for andre skjulte fuktskader i skjulte deler av konstruksjonen. Det er valgt å vurdere boligens uinnredede loft (og tilhørende bygningsdeler) med en samlet helhetsvurdering. Følgende hovedmomenter er lagt til grunn for vurderingen: Det registreres fuktskader på undertak. Fuktinnholdet i treverket ble målt med piggelektroder til 22 vektprosent, noe som er kritisk høye fuktnivåer (stikkprøveprinsippet er benyttet). Årsakene til fuktproblematikk er som regel sammensatte, men manglende lufting vurderes som en sannsynlig hovedårsak. Konsekvens av høye fuktnivåer er risiko for uønskede følger som sopp og råteskader, nedbrytning av materialer eller lignende fuktskader. Dampsperren ble kontrollert på tilfeldige plasser på loftet, i områder hvor isolasjonen var tilgjengelig for å bli løftet opp for å synliggjøre konstruksjonen under. Det ble oppdaget utettheter i dampsperre ved loftluke. Konsekvensen av utett dampsperresjikt er risiko for fuktskader (kondensskader). De deler av konstruksjonen som er undersøkt viser likevel ikke synlige tegn til skader eller lignende symptomer på befaringsdagen. Ventilasjonen av konstruksjonen vurderes til å være utilstrekkelig. Det registreres fuktskader ved undertak som vurderes å være knyttet til dette. Konsekvens er at utilstrekkelig ventilasjon medfører risiko for
fuktskader grunnet kondens, snøsmelting og lignende forhold. Dette er en viktig opplysning som en leser av rapporten må sette seg inn i. Basert på bygningsdelenes samlede tilstandsbilde og hovedmomentene som nevnes over bør det påregnes strakstiltak grunnet påviste skader og funksjonssvikt. Det er ikke kjent om forholdene har ført til
følgeskader i andre konstruksjoner. En fagkyndig bør kartlegge og vurdere forholdene i sin helhet, slik at nødvendige strakstiltak og omfanget av skadene avklares.
- Til informasjon er vurderingen av pipen begrenset til en visuell kontroll av synlige flater, og omfatter ikke funksjonstesting, aldersvurderinger eller inspeksjon av pipens innside (innvendig pipeløp). Skorstein har ikke fire frie sider i underetasje. Det skal være mulig å påse at skorsteinens ytterflater er uten sprekkdannelser slik at forhold som kan påvirke brannsikkerheten kan oppdages tidlig. Det er kun en person med spesialkompetanse som kan vurdere eksakt hvilke tiltak som er nødvendig. Konsekvens/foreslått strakstiltak er at det gjennomføres ytterligere undersøkelser av en fagkyndig med spesialkompetanse for å kartlegge hvilke tiltak som er nødvendige.
- Ildsted underetasje har ingen underliggende ubrennbar plate. Konsekvensen er at glør og gnister kan treffe brennbart materiale/gulvet når ildstedet brukes, noe som medfører risiko for brannsikkerheten.
- Skader på innvendig foring til takvindu er observert på soverom 2. Overflatesøk med fuktindikasjonsinstrument ble gjennomført, og det ble registrert forhøyede verdier. Eksakt årsak er ukjent, men forholdet vurderes å tyde på en mulig lekkasje fra takvinduet. Konsekvens er at skjulte skader ikke kan utelukkes.
- Yttertak: Det er valgt å vurdere yttertaket med en samlet helhetsvurdering. Følgende hovedmomenter er lagt til grunn for vurderingen: Det vurderes at takkonstruksjonen ikke er luftet (må ses i sammenheng med observasjoner gjort fra
innsiden). Konsekvens er at utilstrekkelig ventilasjon erfaringsmessig medfører risiko for fuktskader grunnet kondensskader, snøsmelting og lignende forhold. Taktekkingen (med tilhørende beslag) har høy alder, betydelig slitasje, og det er registrert punktvise skader. Konsekvens er at levetiden anses som overskredet, og bygningsdelen har nådd en alder og tilstand der utskifting må påregnes. Ved en eventuell utskifting vil det erfaringsmessig kunne bli oppdaget
ytterligere forhold som følge av de avvikene som her registreres. Undertakets alder og tilstand indikerer at levetiden er passert. Det er registrert fuktskader og andre tegn på funksjonssvikt. Konsekvens er at tilstanden vurderes som så alvorlig at utskifting av hele taket vurderes som eneste løsning. Ved utskifting bør det vurderes fortløpende om det foreligger følgeskader som må tas hensyn til. Vindskier viser begynnende tegn til slitasje og elde. Det gjøres oppmerksom på at det ikke er observert større skader, men at vurderingen er begrenset til det som er synlig fra bakkenivå. Takrenner og nedløp viser begynnende tegn til slitasje og elde. Konsekvens kan være ytterligere forverring av forholdet, hvis ikke tiltak iverksettes. Basert på bygningsdelens samlede tilstandsbilde og hovedmomentene som nevnes over bør det påregnes strakstiltak grunnet påviste skader, lekkasjer og funksjonssvikt. Forholdene har ført til følgeskader i andre
konstruksjoner som er synlige fra innsiden. En fagkyndig bør kartlegge og vurdere forholdene i sin helhet, slik at nødvendige strakstiltak og omfanget av skadene avklares. Erfaring viser at igangsetting av slike arbeider i mange tilfeller avdekker ytterligere forhold som krever tiltak, noe som det bør tas høyde for.
- Terrasse 1. etasje: Det er valgt å vurdere terrassen (og tilhørende bygningsdeler) med en samlet helhetsvurdering. Følgende hovedmomenter er lagt til grunn for vurderingen: Det registreres råteskader i søyler og limtredrager med påvist utglidning til terrassen. Konsekvens er at forholdet vurderes til å kunne påvirke den konstruksjonsmessige kvaliteten negativt. Deler av terrassen er vurdert å utgjøre tettesjikt mot underliggende areal. Det foreligger lite informasjon
om bygningsdelen, og eksakt alder på vanntett sjikt er ikke kjent. Det vurderes likevel som høyst sannsynlig at fremtidig funksjon er usikker. Konsekvens er at usikker fremtidig funksjon betyr at bygningsdelen erfaringsmessig har risiko for nedsatt funksjon, funksjonssvikt eller andre aldersrelaterte problemer. Bygningsdelen er skjult, så den faktiske tilstanden/dagens tettefunksjon er ukjent.
Oppsummert Basert på bygningsdelenes samlede tilstandsbilde og hovedmomentene som nevnes over bør det påregnes strakstiltak grunnet påviste skader og funksjonssvikt. Det er ikke kjent om forholdene har ført til
følgeskader i andre konstruksjoner. En fagkyndig bør kartlegge og vurdere forholdene i sin helhet, slik at nødvendige strakstiltak og omfanget av skadene avklares.
- Det er valgt å vurdere dreneringen med en samlet helhetsvurdering. Følgende hovedmomenter er lagt til grunn for vurderingen:
Boligen viser tegn til fuktgjennomslag og fuktproblemer fra innsiden, som tyder på funksjonssvikt i dreneringen. Alderen på dreneringen underbygger denne konklusjonen. Forholdet må ses i sammenheng
med rapportens øvrige risikoopplysninger som omtaler bygningsdeler som er i direkte eller nær kontakt med bakken. Konsekvensen er at funksjonstiden til dreneringen vurderes å være passert. Terrenget rundt boligen har stedvis lite fall, og det registreres enkelte områder med fall inn mot grunnmuren. Konsekvens er at forholdet kan være med å øke fuktbelastningen på grunnmuren. TG2 er valgt på bakgrunn av en skjønnsvurdering av det samlede risikobildet forholdet vurderes å utgjøre i dette enkelte tilfellet, og avviker fra bestemmelsene i NS 3600. Deler av grunnmuren mangler utvendig fuktsperre. Konsekvensen er at konstruksjoner uten utvendig fuktsperre som er i kontakt med bakken, har økt risiko for fuktvandring/oppfukting som igjen kan føre til fuktskader. Grunnmurens utvendige fuktsperre er stedvis ikke avsluttet med beslag/topplist (der fuktsperre er benyttet). Konsekvens er at det kan komme vann bak fuktsperren, som igjen kan gi oppfuktning av konstruksjonen. Oppsummert: Dreneringens funksjon påvirker boligens bruksområder og bygningstekniske tilstand. Forhold som påvirker funksjonen er i hovedsak nedgravd og skjult, noe som medfører at tilstanden ikke kan fastslås ved visuell inspeksjon. Dette gjelder blant annet forhold som fuktbeskyttelse av konstruksjoner mot terreng, grunnforhold og tilstand på rør og lignende. Forholdene påvirker særlig konstruksjoner som er i direkte
eller nær kontakt med bakken. Lokale og fremtidige klimaforhold er også en påvirkningsfaktor. Basert på hovedmomentene som nevnes over er foreslått strakstiltak at det gjennomføres ytterligere undersøkelser
for å kartlegge omfang, eventuelle følgeskader og eksakt hvilke tiltak som er nødvendig.
- Utvendige vannledninger og avløpsrør har en alder som tilsier at fremtidig funksjon er usikker.
- Carport med bod: Fasadematerialer har slitt overflatebehandling. Konsekvens er svekket beskyttelse av materialene. Det er derimot ikke registrert synlige skader av større betydning. Stikktaking (stikkprøver) er utført på enkelte
typiske skadesteder som var tilgjengelig uten bruk av stige, uten at tegn til råteskader er avdekket.
- Lekestue: Det er valgt å vurdere bygningen med en samlet helhetsvurdering. Følgende hovedmomenter er lagt til grunn for vurderingen:
Fasadematerialer har slitt overflatebehandling. Konsekvens er svekket beskyttelse av materialene. Det er derimot ikke registrert synlige skader av større betydning. Stikktaking (stikkprøver) er utført på enkelte typiske skadesteder som var tilgjengelig uten bruk av stige, uten at tegn til råteskader er avdekket. Yttertaket (med tilhørende bygningsdeler) viser tegn til slitasje, elde og enkelte mindre overflateskader. Taktekkingen har nådd en alder og tilstand der fremtidig funksjon vurderes som usikker. Konsekvens er at usikker fremtidig funksjon betyr at bygningsdelen erfaringsmessig har risiko for nedsatt funksjon, funksjonssvikt eller andre aldersrelaterte problemer.
Oppsummert Basert på byggverkets samlede tilstandsbilde og hovedmomentene som nevnes over bør det påregnes tiltak som forebyggende vedlikehold, lokale utbedringer eller utskiftning hvis videre undersøkelser eller en fremtidig forverring av tilstanden viser at dette er nødvendig. Erfaring viser at igangsetting av slike arbeider i mange tilfeller avdekker ytterligere forhold som krever tiltak, noe som det bør tas høyde for.
TG2
- Kjøkken hoveddel: Det er montert kjøkkenventilator, men ikke tilkoblet avtrekkskanal. Vannrør pga. alder. Enkelte downlights i kjøkken er defekte. Enkelte fronter bærer preg av slitasje samt manglende front til hjørneskap.
- Kjøkken underetasje: Uttrekkbar del på ventilator er løs. Vannrør pga. alder. Ventilasjonen vurderes som utilstrekkelig.
- På bakgrunn av berederens alder (bereder plasser på kjøkken underetasje) vurderes det at fremtidig funksjon er usikker. Varmtvannsberederen står i et rom uten tilstrekkelig lekkasjesikring.
- Hovedstoppekran: Stoppekran er ikke funksjonstestet grunnet høy alder/observert tilstand.
- Vann og avløpsrør har en alder som tilsier at fremtidig funksjon er usikker.
- Veggflater bærer preg av aldersrelatert slitasje og har enkelte mindre skader.
- Det er registrert svelleskade på parkett ved kjøleskap.
-Synlige deler av gulvets overflatemateriale bærer preg av slitasje og enkelte skader.
- Enkelte innerdører bærer preg av skader/slitasje.
- Dørbladet til rom benyttet som soverom kommer i kontakt med karmen slik at døren ikke kan åpnes og lukkes som normalt.
- Ventilasjonen vurderes som utilstrekkelig.
- Det er registrert hull i veggflate på soverom 3.
- Det observeres spor etter gnagere på kaldtloftet. Nøyaktig hvor eller hvordan gnagere kommer seg inn i bygningen, har ikke latt seg påvise. Konsekvens er at gnagere er en type skadedyr som kan forårsake ulike typer skader på bygningsdeler, også skjulte skader som kan være vanskelig å oppdage. En fagkyndig med spesialkompetanse bør derfor kartlegge og vurdere forholdet i sin helhet, for å avklare inntrekksveier, omfang og om det foreligger skader eller skjulte skader som følge av gnageraktivitet. Når dette er kartlagt, kan det gjøres en vurdering på om det er behov for større inngrep og utskiftninger, eller om lokale utbedringer og lignende tiltak er tilstrekkelig.
-Det er valgt å vurdere yttervegger og fasader (og tilhørende bygningsdeler) med en samlet helhetsvurdering. Følgende hovedmomenter er lagt til grunn for vurderingen: Tegn til svertesopp og algevekster er observert på deler av ytterkledningen. Forholdet kan tyde på forhøyet fuktnivå i materialoverflaten og vurderes å ha sammenheng med at kledningen ligger på skyggesiden, hvor fuktbelastningen normalt er høyere. Konsekvens er risiko for negativ videreutvikling og potensiell nedbrytning av materialet. Foreslått tiltak er at det iverksettes forebyggende vedlikehold etterfulgt av videre overvåking. Ytterkledningens materialer viser stedsvise tegn til begynnende nedbrytning og elde. Konsekvens er svekket beskyttelse av materialene, og behov for tiltak for å hindre videre nedbrytning. Det er derimot ikke registrert synlige skader av større betydning. Vurderingen er begrenset til det som er synlig fra bakkenivå, med den begrensing dette innebærer. Stikktaking er utført på typiske skadesteder som var tilgjengelig uten bruk av stige. Foreslått tiltak er at det iverksettes forebyggende vedlikehold og lokale reparasjoner, eller utskiftning hvis videre undersøkelser viser at dette er nødvendig. Det er vurdert å være begrenset spalte for lufting og drenering bak ytterkledningen. Konsekvens er at konstruksjonens evne til å tørke ut eventuell fuktighet reduseres, noe som kan øke faren for skjulte fuktskader. Foreslått tiltak er videre overvåking, slik at lokal reparasjon eller utskiftning kan iverksettes hvis dette blir nødvendig. Basert på bygningsdelenes samlede tilstandsbilde og hovedmomentene som nevnes over bør det påregnes tiltak som forebyggende vedlikehold, lokale utbedringer eller utskiftning hvis videre undersøkelser eller en fremtidig forverring av tilstanden viser at dette er nødvendig. Erfaring viser at igangsetting av slike arbeider i mange tilfeller avdekker ytterligere forhold som krever tiltak, noe som det bør tas høyde for.
- Vinduer viser begynnende tegn til slitasje på overflatebehandling, og har en alder der fremtidig funksjon vurderes som usikker.
- Det registreres følgende avvik på ytterdør 1.etasje: Det er registrert avskalling på dørblad. Det er ikke registrert tegn på større skader, men konsekvens er usikker fremtidig funksjon, og forholdet peker på behov for tiltak.
- Det registreres følgende avvik på balkongdør: Døren viser begynnende tegn til utvendig slitasje. Det er derimot ikke registrert synlige skader av vesentlig betydning.
- Platting underetasje: Det er valgt å vurdere terrassen (og tilhørende bygningsdeler) med en samlet helhetsvurdering. Følgende hovedmomenter er lagt til grunn for vurderingen:
Overflatematerialer på terrassen viser tegn til slitasje. Konsekvens er svekket beskyttelse av materialene, noe som kan forkorte levetiden og øke risikoen for fuktrelaterte skader på sikt. Fundamentene til terrassen bærer ikke preg av faglig god utførelse, med den risiko dette innebærer. Konsekvens er at forholdet kan påvirke både funksjon, kvalitet og levetid negativt. Oppsummert Basert på bygningsdelenes samlede tilstandsbilde og hovedmomentene som nevnes over bør det påregnes tiltak som forebyggende vedlikehold og/eller lokale utbedringer der dette viser seg å være et behov. Erfaring viser at igangsetting av slike arbeider i mange tilfeller avdekker ytterligere forhold som krever tiltak, noe som det bør tas høyde for.
- Utvendig trapp: Trappen viser begynnende tegn til generell slitasje og elde. Konsekvens er svekket beskyttelse av materialene. Det er derimot ikke registrert synlige skader av større betydning.
- Det registreres enkelte moderate tegn til riss i overflaten til grunnmuren. Eksakt årsak er ukjent. Konsekvens er at forholdet kan indikere overflatespenninger eller bevegelser i konstruksjoner og/eller i grunnen. Foreslått tiltak er videre overvåking, slik at forebyggende vedlikehold og/eller lokal reparasjon kan iverksettes dersom utviklingen fortsetter.
Det er utført tilsyn av det elektriske anlegget datert 04.05.2026 hvor det er bemerket avvik. Tilsynsrapporten ligger som vedlegg til salgsoppgaven og må leses av interessenter før evt. bud legges inn. Kjøper overtar ansvaret for utbedring av avvikene. Det er ikke foretatt radonmåling. Se tilstandsrapport.
Se supplerende tekst i tilstandsrapporten. Kjøper overtar ansvar og risiko for dette.
Standard
Opprinnelig tomannsbolig, men hvor nabodelen har opprettet leilighet i underetasjen og solgt denne slik at eiendommen nå totalt består av 3 seksjoner. Denne delen har også opprettet leilighet i underetasjen, men denne er ikke søkt om, eller godkjent.
Arealeffektiv bolig med solrik veranda og flott utsikt. Stor felles hage og parkering i carport. Boligen ligger i et barnevennlig område i Ås kommune, med gangavstand til barnehager, Nordby barneskole og Nordbytun ungdomsskole. Svømmebassenget i hagen følger med salget. Det står også en dukkestue i hagen.
Terrasse ved inngangsparti er på ca. 12 kvm. Det er en bod tilknyttet carport er på ca. 4 kvm.
Entré: Man kommer inn i en romslig entré med plass til knaggrekker og skoskap. Det er plass til kommode under trapp.
Kjøkken: Åpen kjøkkenløsning mot stue. Kjøkkeninnredningen er fra ukjent årstall, med profilerte fronter og benkeplate i stein. I benkeplaten er det nedfelt oppvaskkum i rustfritt stål, med ett-greps armatur. Det er flislagt mellom benkeplate og overskap med stikkontakter, samt belysning over benkeplate. Kjøkkenet er utstyrt med integrert komfyr og nedfelt induksjonstopp. Videre er det frittstående oppvaskmaskin, kjøleskap og fryseskap. Det er himlingsmontert ventilator og det er montert komfyrvakt. På kjøkkenet er det en frokostbar, der morgenkaffen kan nytes. Alle forannevnte hvitevarer følger med salget.
Stue: Lys stue med gulvflater belagt med parkett og vegger utført i panel, samt tapet. Himlingsflater er utført i malt panel. Store vindusflater gir rommet rikelig med naturlig lys. Stuen kan innredes med spisebord og stoler i praktisk tilknytning til kjøkkenet. Det er også plass til sofa, bord, TV og tilhørende møblement. Peisovn med glassdør varmer godt på kjølige dager. Fra stuen er det utgang til veranda på ca. 29 kvm. Det er markise for de varmeste soldagene. Fra verandaen er det flott utsikt. På 17. mai går barnetoget forbi boligen.
Bad: Baderom er oppgradert i ukjent årstall, med sluk fra byggeår. Badet har flislagt gulv med gulvvarme. Vegger er utført i fliser i dusjsonen, samt malt panel. Himlingsflate er utført i glatt malt flate. Badet er utstyrt med gulvstående servantinnredning med overliggende servant og to-greps armatur. Det er speil på vegg med lys over servant, dusjhjørne med glassbyggerstein og to-greps armatur, samt gulvstående toalett. Rommet har opplegg for vaskemaskin og avtrekksventil plassert i vegg.
2. etasje:
Soverom: I 2. etasje ligger det tre soverom samt kott for oppbevaring. Det er skyvedørsgarderobe på soverom 1. Rommene kan innredes med seng, nattbord og skrivepult.
Underetasje - Del av bolig som benyttes som utleiedel (ikke godkjent utleiedel).
Rom benyttet som entré: Det er egen utgang til underetasjen.
Rom benyttet som kjøkken: Kjøkkeninnredning er fra ukjent årstall med glatte fronter og laminert benkeplate. Det er nedfelt oppvaskkum i rustfritt stål, med ett-greps armatur. Stikkontakt, samt belysning mellom benkeplate og overskap. Ventilator i overskap er tilkoblet avtrekkskanal. Varmtvannsbereder på 116 L fra 2005. Gulvflate er belagt med laminat, vegger utført i malt panel og himlingsflate er utført i malt betong.
Rom benyttet som stue: Gulvflater er belagt med laminat. Vegger er utført i glatte malte flater, samt malte pussede murflater. Himlingsflater er utført i malt betong. Det er garderobeskap i rom benyttet som stue, samt åpen peis.
Rom benyttet som bad: Bad er oppgradert i ukjent årstall med med vannrør, avløpsrør og sluk fra byggeår. Rommet har flislagt gulv. Vegger er utført i fliser i dusjsonen, samt malt panel. Himlingsflate er utført i malt betong. Rommet har vegghengt servantinnredning med heldekkende servant og ett-greps armatur. Det er speil på vegg over servant og dusjkabinett med to-greps armatur, samt gulvstående toalett. Badet har opplegg for vaskemaskin. Hovedstoppekran er plassert ved servantinnredning og varmtvannsbereder på ca. 200 L fra ukjent årstall. Avtrekksventil i vegg.
Løsøre og tilbehør
Vi viser til liste fra Norges Eiendomsmeglerforbund som gjelder fra 01.01.2020 angående løsøre og tilbehør så lenge ikke annet er nevnt i salgsoppgaven.
Oppvarming
Boligen er elektrisk oppvarmet, i kombinasjon med vedfyring.
Gulvvarme på badet i 1. etasje.
Dersom beboelsesrom ikke har vegg- eller fastmonterte varmekilder ved visning, følger dette heller ikke med.
Ferdigattest/brukstillatelse
Kommunen opplyser at det ikke foreligger opprinnelig ferdigattest eller midlertidig brukstillatelse for eiendommen. Det foreligger bygningstegninger fra kommunen. Eiendommen har vært brukt til boligformål siden 1963.
Det foreligger ferdigattest på tilbygg, etablering av tomannsbolig og opprettelse av en tredje boenhet datert 11.03.2021.
Det gjøres spesielt oppmerksom på at det ikke er søkt om etablering av utleiedel. Innredning av rommene til bruk for varig opphold er ikke bruksendret/omsøkt og er heller ikke godkjent for denne bruk av kommunen. Konsekvensen ved søknad kan være at rommene ikke godkjennes som varig opphold og at rommene da må brukes som boder/midlertidig oppbevaring.
Kjøper overtar alt ansvar, kostnad og risiko for dette videre.
Tinglyste heftelser og rettigheter
Eiendommen overdras fri for pengeheftelser med unntak av:
Dagboknr. 201280, tinglyst 26.03.1962, type heftelse: Festekontrakt - Vilkår: Omhandler bestemmelser rundt festeavtalen.
Det er tinglyst følgende servitutter på eiendommen:
Dagboknr. 201280, tinglyst 26.03.1962, type heftelse: Bestemmelse om gjerde: Bestemmelse om vann/kloakkledning, samt ledningsmaster for elektro og telefon. Omhandler også bestemmelser om veg.
Dagboknr. 10684, tinglyst 29.08.1997, type heftelse: Bestemmelse om adkomstrett: Rett for kommunen til å anlegge og vedlikeholde ledninger.
Servituttene vil følge eiendommen. Kjøpers bank vil få prioritet etter ovennevnte servitutter.
Eventuell adgang til utleie
Underetasjen som er innredet som en utleiedel er ikke godkjent til varig opphold eller som separat boenhet av kommunen. Konsekvensen ved søknad kan være at rommene ikke godkjennes som varig opphold og at rommene da må brukes som bod/midlertidig oppbevaring og dermed heller ikke kan leies ut. Kjøper overtar alt ansvar og risiko for dette videre.
Det gjøres oppmerksom på at det er krav til forsvarlige radonnivåer ved utleie. Det er ikke gjennomført radonmåling på denne boligen.
Diverse
Vi er opptatt av verdiskapning, og har knyttet til oss samarbeidspartnere som skal sikre våre kunder de beste produkter og tjenester;
• Gjensidige leverer boligselgerforsikring og tilbyr bygningsforsikring
• Boligkjøperforsikring leveres av Hiscox og med Sedgwick som skadebehandler, og er formidlet gjennom Gjensidige.
• BN bank tilbyr finansieringsløsninger
• Vår avdeling Krogsveen Pluss tilbyr flyttetjenester som utvask, visningsvask, lager, tømming og transport av flyttelass, i tillegg til å formidle kontakt med Flip for overflateoppussing.
• I forbindelse med overtagelse av eiendommen tilbyr Overo avtale om strøm, alarm og bredbånd.
• Krogsveen er, sammen med øvrige bransjeaktører, medeier i den digitale annonseringsplattformen Hjem.
Beliggenhet og tomteforhold
Beliggenhet og tomteforhold
Beliggenhet
Boligen ligger i et barnevennlig område, i Ås kommune med gangavstand til Nordby barneskole, Nordbytun ungdomsskole, barnehager, Nordby idrettsplass og offentlig kommunikasjon. Det er kort vei til Alti (Vinterbro Senter) med 85 butikker og spisesteder, samt lege/tannlegesenter og treningssenter mm.
Friområdet Breivoll ligger en kort sykkeltur unna og byr på store grøntarealer, sandstrender, fotballbane og grillplass. Det er Idrettsplass med fotballbane i umiddelbar nærhet og innendørs svømmebasseng på Nordbytun skole.
I området ligger også fornøyelsesparken Tusenfryd. Det er flere attraktive friområder i nærområdet; naturreservatene ved Pollen, rostadioen ved Årungen og turterreng i umiddelbar nærhet. Det er kort avstand til båthavner, bade- og fiskeplasser ved Bunnefjorden.
Området gir mulighet for offentlig kommunikasjon via buss. Nærmeste bussholdeplass er Siriusveien som ligger ca. 100 meter fra eiendommen. Herfra går 520 og 1431 bussen mot Ski, Ytre Enebakk, Kjærnes og Ås.
På 17. mai går barnetoget forbi boligen. Her kan man stå på terrassen å vaie med flagget, mens barna går forbi.
Adkomst
Se Google Maps - det er enkelt å finne frem i kartet.
Det vil bli skiltet med Krogsveen visningsskilt ved fellesvisninger.
Barnehager, skoler og fritid
Nordby barneskole og Nordbytun ungdomsskole ligger kun ca. 500-600 meter unna og det er flere barnehager i nærområdet. Nærmeste videregående skoler er Ski- og Drømtorp videregående skole.
Informasjon om tilhørende skolekretser er hentet fra Prognosesenteret som dataleverandør, og tilhørigheten kan årlig endres av kommunen. Dersom skole- og barnehagetilbud er av betydning for kjøpet, ber vi om at det rettes en særskilt henvendelse til kommunen for oppdatert informasjon.
Beskrivelse av tomt
Festet tomt på 1.395,8 kvm. som tilhører sameiet. Tomten er fellesareal. Tomten er opparbeidet med brosteinsbelagt gårdsplass, gressplen og diverse beplantning. Dukkehuset er satt opp delvis over tomtegrensen mot vest. Hvis dette skulle bli et problem må dukkehuset flyttes innenfor tomtegrensen.
Regulering av feste
Festeavgiften er kr 8.651,- pr. år. Festeavgiften betales innen 01/11 hvert år på forskudd. Festeavtalen utløper 25.03.1961.
Det tas ikke noe transportgebyr fra bortfester.
Festeavgiften reguleres hvert 10 år iht. konsumprisindeksen.
Siste regulering av festeavgift: 2022. Neste regulering 2032.
Kopi av lov om tomtefeste kan fås ved henvendelse til megler.
Parkering
Parkering i carport, samt biloppstillingsplasser på gårdsplass.
Vei, vann og avløp
Eiendommen har adkomst via privat vei.
Eiendommen er tilknyttet kommunalt ledningsnett via private stikkledninger. Eier er selv ansvarlig for private stikkledninger til boligen.
Regulerings-og arealplaner
Eiendommen er regulert til boligbebyggelse/frittliggende småhusbebyggelse, annen veigrunn og felles avkjørsel i henhold til reguleringsplan for Id 328 - Områderegulering for frittliggende småhusbebyggelse, med tilhørende reguleringsbestemmelser datert 25.10.2023.
Utsnitt av plan med tilhørende bestemmelser kan fås ved henvendelse til megler.
Økonomi
Økonomi
Kommunale utgifter
Kommunale avgifter er kr 19.787,- i 2025. I dette inngår gebyr for vann, avløp, renovasjon og feiing/tilsyn. Kostnaden er stipulert etter et forbruk på 96 kbm vann/avløp.
Eiendomsskatt for 2025 er kr 2.628,-
Nåværende eier har et strømforbruk som tilsvarer ca. 18.153 kwh. pr. år.
Boligen hadde en forsikringspremie på kr 8.317 i 2025. Det er felles forsikring for hele bygningen gjennom IF. Totalt kr 18.281,- hvor denne boligen betaler 45,5 %, altså 8.317,-
Boligen er tilknyttet Nextgentel som leverandør av internett. Pris kr 735,- for 50Mbit. Ruter medfølger.
Eier har ikke hatt tv-abonnement.
Utgiftene er basert på nåværende eiers forbruk og avtaler.
Formuesverdi
Formuesverdi for 2024 var kr 1.326.399,- i følge selgers skatteetaten. Beløpet forutsetter at eier bor fast i boligen (primærbolig).
Ved eventuell øvrig bruk av eiendommen (f.eks. fritidsbolig, pendlerbolig, utleieobjekt) var formuesverdien for 2023 kr 5.305.594,-
Fra 2026 har Stortinget vedtatt en oppdatert modell for beregning av formuesverdi for primærbolig, så avvik kan forekomme.
For mer informasjon se skatteetaten.no
Omkostninger
5 350 000,00 Prisantydning
Omkostninger
133 750,00 Dokumentavgift til staten (2,5% av kjøpesum)
9 950,00 Gjensidige Boligkjøperpakke (valgfri)* (valgfritt)
545,00 Tinglysing panterettsdokument
545,00 Tinglysing skjøte
--------------------------------------------------------
134 840,00 Omkostninger totalt (uten Gjensidige Boligkjøperpakke (valgfri))
144 790,00 Omkostninger totalt (med Gjensidige Boligkjøperpakke (valgfri))
--------------------------------------------------------
5 484 840,00 Totalpris inkl. omkostninger
5 494 790,00 Totalpris inkl. omkostninger (med Gjensidige Boligkjøperpakke (valgfri))
--------------------------------------------------------
Tilbud om lånefinansiering
Megler formidler gjerne kontakt med rådgiver hos vår samarbeidspartner BN Bank. De har konkurransedyktige betingelser samt rask og løsningsorientert behandling av din lånesøknad. Krogsveen mottar et honorar for denne formidlingen.
Betalingsbetingelser
Kjøpesum inkludert omkostninger, samt pantedokument tilknyttet eventuelt lån, skal være disponibelt hos megler 2 virkedager før overtagelsen.
Annen viktig informasjon
Annen viktig informasjon
Eier
Nicholas Eljarbø og Sølvi Lindås
Overtakelse
Etter nærmere avtale.
Boligselgerforsikring
Selger har i forbindelse med salget tegnet boligselgerforsikring levert av Gjensidige.
Boligselgerforsikringen dekker selgers ansvar etter avhendingsloven begrenset oppad til kr 14 millioner. Dersom kjøper oppdager forhold ved eiendommen som hen mener utgjør en mangel ved eiendommen, vil Gjensidige behandle reklamasjonen på vegne av selger. Forsikringsvilkår kan fås ved henvendelse til megler.
Vedlagt salgsoppgaven følger selgers egenerklæringsskjema og tilstandsrapport. Interessenter må sette seg inn i dokumentene før bud inngis.
Boligkjøperforsikring
Innen kontraktsmøtet må kjøper ta stilling til om det ønskes å bestille Boligkjøperpakken gjennom Gjensidige. I denne gunstige pakken er boligen ferdig forsikret og inkluderer rettshjelpsforsikring, også kalt Boligkjøperforsikring. Rettshjelpsforsikring gir trygghet og tilgang på profesjonell juridisk hjelp dersom det oppdages uventede feil eller mangler det første året etter overtagelse. Forsikringsselskapet behandler i så fall ethvert mangelskrav kjøper måtte ha overfor selger.
Boligkjøperpakken inkluderer bygningsforsikring for hus og hytte, innboforsikring, flytteforsikring og dobbel rentedekning - i situasjoner hvor kjøper ikke får solgt nåværende primærbolig.
Kjøper mottar ingen særskilt faktura for Boligkjøperpakken da kostnaden det første året legges til kjøpesummen for boligen. Det gjøres oppmerksom på Krogsveen mottar et honorar for denne formidlingen.
Produktark for Boligkjøperpakken ligger vedlagt i salgsoppgaven.
Dersom ikke boligkjøperpakke ønskes kan kun rettshjelpsforsikring, også kalt boligkjøperforsikring, tegnes særskilt via megler. Rettshjelpsforsikringen varer i 5 år fra overtagelse og leveres gjennom Gjensidige. Ta kontakt med megler for ytterligere informasjon.
Selskap og privatpersoner som driver med kjøp/salg/utvikling som ledd i egen næringsvirksomhet kan ikke tegne boligkjøperpakke eller rettshjelpsforsikring.
Budgivning
Forbrukerinformasjon om budgivning er vedlagt denne salgsoppgaven og er også på vår hjemmeside Krogsveen.no. Alle bud og budforhøyelser må inngis skriftlig. I tillegg må legitimasjon være fremlagt sammen med signatur fra budgiver.
Vi oppfordrer til å gi bud elektronisk via GI BUD-knappen på eiendommens hjemmeside på Krogsveen.no. Da vil samtlige vilkår bli oppfylt.
Eventuelle forhøyelser eller endringer av budet kan bekreftes pr SMS eller på e-post. Vi oppfordrer alltid til å kontakte megler pr. telefon i tillegg da forsinkelser i SMS og e-post kan forekomme.
For at budene skal kunne bli behandlet og videreformidlet skriftlig til alle involverte parter, må alle bud ha en tilstrekkelig lang akseptfrist, jf. eiendomsmeglingsforskriften § 6-3.
Selger må også skriftlig akseptere budet før aksept kan formidles til budgiver. Akseptfrist bør derfor være på minimum 30 minutter, og budforhøyelser må derfor skje i god tid før fristens utløp.
Bud i forbrukerforhold kan uansett ikke settes med kortere frist enn kl. 12.00 første virkedag etter siste annonserte visning. I tillegg kan ikke budet ha forbehold om at det skal holdes hemmelig ovenfor øvrige interessenter. Megler har iht lov om eiendomsmegling ikke anledning til å videreformidle disse budene, og de vil dermed heller ikke bli journalført.
Etter at eiendommen er solgt vil kjøper og selger få tilsendt budjournal. Øvrige budgivere kan få utlevert kopi av budjournalen i anonymisert form.
Hvitvaskingsreglene
I henhold til lov om hvitvasking og terrorfinansiering har megler plikt til å gjennomføre kontrolltiltak overfor kunder, herunder fullmektiger. Dette innebærer bl.a. å bekrefte kunders og reelle rettighetshaveres identitet på bakgrunn av fremvist gyldig legitimasjon eller på annen godkjent måte, samt å innhente opplysninger om kundeforholdets formål og tilsiktede art.
Dersom slike kundetiltak ikke kan gjennomføres, kan megler ikke etablere kundeforholdet eller utføre transaksjonen.
Hvis kjøper ikke bidrar til gjennomføring av kundekontrollen og dette fører til at transaksjonen blir forsinket eller ikke kan gjennomføres, vil dette ansees som mislighold av avtalen og gi selger rettigheter etter avhendingslova kapittel 5. I tilfeller der selger ikke bidrar til gjennomføring av løpende kundekontroll underveis i oppdraget, er det selger som misligholder sine forpliktelser etter avtalen og gi kjøper rettigheter etter avhendingslovens kapittel 4. Partene er selv ansvarlige for eventuelle kostnader og ansvar dette kan medføre. Eiendomsmegleren eller eiendomsmeglingsforetaket kan ikke holdes ansvarlig for de konsekvenser dette vil kunne få for partene eller andre som har interesser i eiendomshandelen.
Kjøper oppfordres til å innbetale kjøpesummen som ikke kommer fra låneinstitusjon i én samlet innbetaling fra egen konto i norsk bank. Megler har plikt til å melde fra til Økokrim om eiendomshandler som fremstår som mistenkelige. Melding sendes Økokrim uten at partene varsles.
Personopplysningsloven
I henhold til personopplysningsloven gjør vi oppmerksom på at interessenter kan bli registrert for videre oppfølging.
Lovanvendelse
Generelle bestemmelser
Salgsoppgaven er basert på de opplysningene selger har gitt til megler, den bygningssakyndiges tilstandsrapport, samt opplysninger innhentet fra kommunen, Kartverket og andre tilgjengelige kilder. Det er viktig at kjøper setter seg grundig inn i alle salgsdokumentene, herunder salgsoppgave, tilstandsrapport og selgers egenerklæring. Kjøper anses kjent med forhold som er tydelig beskrevet i salgsdokumentene, og slike forhold kan ikke påberopes som mangler. Dette gjelder uavhengig av om kjøper har lest dokumentene. Alle interessenter oppfordres til å undersøke eiendommen nøye, gjerne sammen med fagkyndig før bud inngis. Kjøper som velger å kjøpe usett kan ikke gjøre gjeldende som mangel noe han burde blitt kjent med ved undersøkelsen.
Dersom det er behov for avklaringer, anbefaler vi at interessenter rådfører seg med eiendomsmegler eller egne rådgivere før det legges inn bud.
En bolig som har blitt brukt i en viss tid, har vanligvis blitt utsatt for slitasje og skader kan ha oppstått. Slik bruksslitasje må kjøper regne med, og det kan avdekkes enkelte forhold etter overtakelse som nødvendiggjør utbedringer. Normal slitasje og skader som nødvendiggjør utbedring, er innenfor hva kjøper må forvente og vil ikke utgjøre en mangel.
Kjøper og selgers rettigheter og plikter reguleres av avtalen mellom partene, samt informasjonen som har vært tilgjengelig for kjøperen i forbindelse med handelen. Avtalen utfylles av avhendingsloven, og det gjelder ulike avtalevilkår avhengig av om kjøper er forbrukerkjøper eller ikke. Dette er nærmere beskrevet nedenfor.
På grunn av ulike avtalevilkår kan selger vurdere bud fra en som ikke er forbruker, ulikt fra en forbrukers bud. Dersom kjøper ikke er forbruker, er selger sitt mulige mangelsansvar begrenset fordi eiendommen selges "som den er". Selger kan ikke ta «som den er»- forbehold overfor en forbrukerkjøper. Selv et lavere bud fra en som ikke er forbruker kan foretrekkes fordi begrensningen i mulig mangelsansvar kan ha egenverdi for selger. Selger står fritt til å forkaste eller akseptere ethvert bud, og er for eksempel ikke forpliktet til å akseptere høyeste bud.
Budgiver skal i budskjema avgi egenerklæring om budgiver er forbruker eller næringsdrivende/ person som hovedsakelig handler som ledd i næringsvirksomhet. Budgivere får informasjon dersom andre bud er inngitt av en som ikke er forbruker.
Forbrukerkjøp - definisjon
Med forbrukerkjøp menes kjøp av eiendom når kjøperen er en fysisk person som ikke hovedsakelig handler som ledd i næringsvirksomhet.
Forbruker – avtalevilkår
Eiendommen har en mangel dersom den ikke er i samsvar med kravene som følger av avtalen, eller det foreligger brudd på bestemmelsene i avhendingsloven §§ 3-2 til 3-8. Hvis eiendommen ikke er i samsvar med det kjøperen må kunne forvente ut ifra alder, type og synlig tilstand, kan det være grunnlag for mangelskrav. Det samme gjelder hvis det er holdt tilbake eller gitt uriktige opplysninger om eiendommen. Dette gjelder likevel bare dersom man kan gå ut ifra at det virket inn på avtalen at opplysningen ikke ble gitt eller at mangelskravet ikke blir rettet i tide på en tydelig måte.
Boligen kan ha en mangel etter avhendingsloven § 3-3 andre ledd, dersom det er avvik mellom opplyst og faktisk innvendig areal, forutsatt at avviket er på 2% eller mer og minimum 1 kvm.
Ved beregning av et eventuelt prisavslag eller erstatning må kjøper selv dekke tap/kostnader opptil et beløp på kr 10 000 (egenandel).
Ikke-forbruker (næringsdrivende) – definisjon
Hvis kjøper er en juridisk person, eller en fysisk person som hovedsakelig handler som ledd i næringsvirksomhet, vil kjøpet ikke anses som et forbrukerkjøp.
Ikke-forbruker – avtalevilkår
Eiendommen har en mangel dersom den ikke er i samsvar med kravene som følger av avtalen.
Eiendommen selges «som den er», og selgers ansvar utover det konkret avtalte er da begrenset etter avhendingsloven § 3-9, første ledd andre setning.
Avhendingsloven § 3-3 andre ledd fravikes, og hvorvidt boligens arealsvikt utgjør en mangel vurderes etter avhendingsloven § 3-8.
Informasjon om kjøpers undersøkelsesplikt, herunder oppfordringen om å undersøke eiendommen nøye, gjelder også for kjøpere som ikke anses som forbrukere.
Det forutsettes at hjemmel overføres til kjøper. Hvis kjøper ikke ønsker hjemmelsoverføring av eiendommen, må det tas forbehold om dette i budet.
Meglers vederlag
Meglers vederlag betales av selger og er avtalt til:
Vederlag: 2 % av salgssummen.
Minimumsvederlag: kr 50.000,-
Tilrettelegging: kr 17.000,-
Oppgjør: kr 7.500,-
Markedspakke: kr 25.500,-
Visninger: kr 2.900,- pr. visning
Oppslag eiendomsregister: kr 2.900,-
Salgsoppgaver: kr 3.600,-
Utlegg
Innhenting av offentlig opplysninger Ås kommune med bygningstegninger kr 4.723,-
Tinglysing sikring kr 500,-
Andre utgifter
Boligselgerforsikring Buysure inkl. tilstandsrapport Anticimex ved salgssum 5,7 millioner kr 28.567,-
Foto kr 1.800,-
Fotopakke - 40 bilder inkl. høydefoto kr 5.150,-
Stylingveiledning for boliger over 100 kvm (P-rom) kr 3.000,-
Opplysninger om oppdraget
Oppdragsnummer 46-0177/24
Eiendomsmegler Krogsveen AS, avd. Ski
Kirkeveien 2A, 1400, SKI
950 007 613
Oppdragets KR-kode KR46.24177
Dato
Sist oppdatert: 29. mai 2026 kl. 14:54
Dokumenter
Dokumenter
PDF – 657 KB
PDF – 2 MB
PDF – 6 MB
PDF – 958 KB
PDF – 83 KB
PDF – 312 KB
PDF – 29 KB
PDF – 127 KB
PDF – 392 KB
Område
Legg til steder som er viktige for deg
Visning
For å delta på visning, ber vi om at du melder deg på. Da sikrer vi at du får nødvendig informasjon. Kontakt megler dersom annet tidspunkt ønskes. Husk å lese salgsoppgaven før visningen, så du stiller forberedt.
Ønsker du kun å bli holdt orientert, kan du fra eiendommens hjemmeside få varsel om solgtpris, eller kontakte megler.
Lurer du på noe?
Unngå doble boligrenter
Vi tilbyr gunstig forsikring.
Vurderer du utleie?
Få et tilbud fra Utleie KrogsveenHva koster lånet?
Sjekk estimert lånekostnadVil du varsles om lignende boliger?
Ved å lagre ditt boligsøk hos oss får du beskjed når vi har en bolig som ligner denne, før den legges ut på markedet!




