Haugerudveien 74
4 400 000 kr
82 m²
2 soverom
Solgt
Haugerud
Lys 3-roms utsiktsleilighet med solrik balkong - Moderniseringsbehov - Vv og fyr inkl. - Heis - Nærhet til marka og off. kom
Prisantydning
4 400 000 krAndel fellesgjeld
331 557 krOmkostninger
19 446 krTotalpris
4 751 003 kr
Pris
Bruksareal
83 m²BRA-I (internt bruksareal)
82 m²BRA-E (eksternt bruksareal)
1 m²TBA (terrasse-balkongareal)
5 m²
Areal
Etasje
8Byggeår
1968Soverom
2 soveromBad
1 badType
AndelsleilighetEierform
AndelFellesutgifter
6 882 krEnergimerke
Lysegrønn D
Nøkkelinfo
Unngå doble boligrenter
Vi tilbyr gunstig forsikring.
Vurderer du utleie?
Få et tilbud fra Utleie KrogsveenHva koster lånet?
Sjekk estimert lånekostnadBeskrivelse
Kort om eiendommen
3-roms hjørneleilighet i 8. etasje med moderniseringsbehov. Enkel heisadkomst. Attraktiv beliggenhet med umiddelbar nærhet til Østmarka, samt dagligvarebutikker, gode servicetilbud og offentlig transport.
Kort fortalt:
Skap ditt eget drømmehjem!
Høy beliggenhet med flott utsikt
Arealeffektiv planløsning
Romslige soverom
Sydvestvendt og solrik balkong på 5 kvm
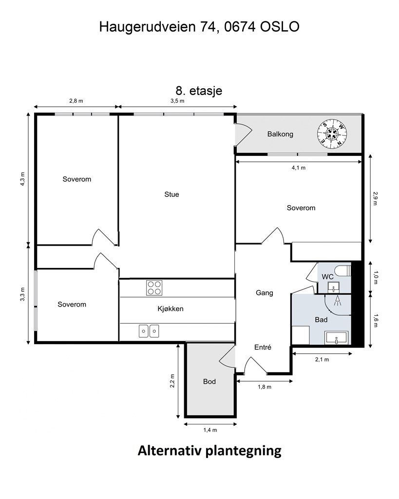
Muligheter for å gjøre om til 4-roms - se alternativ plantegning
Fyring og varmtvann inkludert i felleskostnader
Heis i bygget
En kjellerbod for oppbevaring
Mulighet for leie av p-plass/garasjeplass etter venteliste
Stille og rolig område
Ingen dokumentavgift
Veldrevet borettslag
Velkommen til visning!
Område
Legg til steder som er viktige for deg
På flyttefot? Tenk kjøp og salg samtidig.
Få din egen rådgiver gjennom hele kjøps- og salgsprosessen. Det starter med en verdivurdering.
Unngå doble boligrenter
Vi tilbyr gunstig forsikring.
Vurderer du utleie?
Få et tilbud fra Utleie KrogsveenHva koster lånet?
Sjekk estimert lånekostnadVil du varsles om lignende boliger?
Ved å lagre ditt boligsøk hos oss får du beskjed når vi har en bolig som ligner denne, før den legges ut på markedet!
På flyttefot? Slik gjør vi det enklere for deg
Skreddersydd flyttepakke
Vi fikser håndverkere, vask, pakking, lagring og transport, og legger ut for utgiftene underveis.
Hjelp med både kjøp og salg
Hos oss har du din egen rådgiver gjennom hele kjøps- og salgsprosessen.
Hjelp til finansiering
Vårt samarbeid med BN Bank sikrer deg rask og løsningsorientert hjelp, til konkurransedyktige betingelser.




