Ringshaugveien 5
13 650 000 kr
113 m²
3 soverom
Komplett salgsoppgave

Bekkestua Have
Splitter ny og eksklusiv endeleilighet m/ stor sør og vestvendt uteplass og garasje med el. Kort vei til "alt". Kun TG1!
Prisantydning
13 650 000 krOmkostninger
352 290 krTotalpris
14 002 290 kr
Pris
Bruksareal
120 m²BRA-I (internt bruksareal)
113 m²BRA-E (eksternt bruksareal)
7 m²TBA (terrasse-balkongareal)
29 m²
Areal
Etasje
1Byggeår
2024Soverom
3 soveromBad
2 badType
EierleilighetEierform
EierseksjonFasiliteter
Garasje/P-plass, Heis og Balkong/TerrasseFellesutgifter
4 537 kr
Nøkkelinfo
Unngå doble boligrenter
Vi tilbyr gunstig forsikring.
Vurderer du utleie?
Få et tilbud fra Utleie KrogsveenHva koster lånet?
Sjekk estimert lånekostnadBeskrivelse
Kort om eiendommen
Velkommen til Ringshaugveien 5 og en lekker, nyere (2024) 4-roms endeleilighet i attraktive Bekkestua Have, sentralt på Bekkestua. Her kan du nyte en rekke av fasiliteter, inkludert butikker, restauranter, kaféer, offentlig kommunikasjon og mye mer, alt innen gangavstand fra din egen dør. Med denne leiligheten har du alt du trenger for å leve et komfortabelt og praktisk liv.
Leiligheten har en flott planløsning med en romslig entré/gang med god plass for yttertøy, stor og lys stue med åpen kjøkkenløsning, tre gode soverom hvorav ett har eget baderom, totalt to baderom og bod/teknisk rom. Fra stuen er det utgang til en nydelig sør og vestvendt markterrasse på hele 29 kvm hvor late dager kan nytes. Videre er det heis i bygget, bod og garasjeplass med lader.
Innhold og byggemåte
Innhold og byggemåte
Eiendommen
Ringshaugveien 5, 1356 BEKKESTUA
Kommunenummer 3201, gårdsnummer 17, bruksnummer 97, seksjonsnummer 105
Innhold
Totalt bruksareal BRA: 120 kvm
BRA-i:
Leilighet:
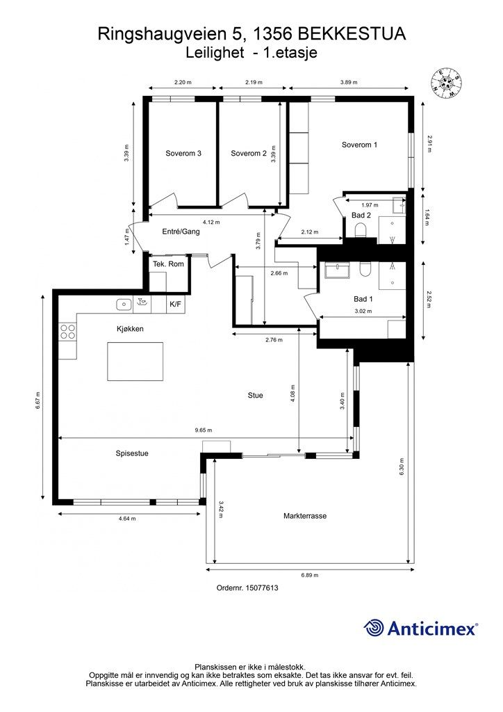
1. etasje 113 kvm: Entré/gang, to bad, tre soverom, stue og kjøkken, samt teknisk rom
BRA-e:
Leilighet:
Underetasje 7 kvm: Bod
Åpent areal:
Leilighet:
1. etasje 29 kvm: Markterrasse
Vedlagte plantegninger er ikke målbare. De oppgitte arealer er hentet fra rapport med befaringsdato 05.01.2026 utført av Anticimex v/André Nordli. Arealene er beregnet og rom er definert etter dagens faktiske bruk, uavhengig av hva som er godkjent av bygningsmyndighetene.
Byggemåte
Selger har innhentet en tilstandsrapport av boligen/eiendommen. Av rapporten fremgår det at flere bygningsdeler har fått tilstandsgrad ikke undersøkt/ikke tilgjengelig for undersøkelse (TG IU), 2 (TG2) og/eller 3 (TG3). Rapporten beskriver også avvik på undersøkte bygningsdeler uten tilstandsgrad. Kjøper overtar ansvaret for de opplysninger som fremkommer av salgsdokumentasjonen, og kan ikke gjøre gjeldende som mangel noe som burde vært kjent eller som ikke kan anses å ha betydning for avtalen.
Bygningen er iht. tilstandsrapporten oppført i betong. Les for øvrig mer om byggemåte og den tekniske tilstanden i rapporten.
- Boligbygg over 5 etasjer samt underetasje.
- Bygningen har støpt gulv mot grunn.
- Grunnmur og bærende konstruksjoner av betong/murkonstruksjoner og stålkonstruksjoner.
- Etasjeskillere av betongkonstruksjoner.
- Yttervegger av bindingsverk utvendig kledd med stående panel, fasadeplater samt forblendet med teglstein.
- Tilnærmet flatt tak tekket med membran/takpapp (taket er ikke besiktiget).
- Leiligheten har glatt entrédør fra byggeår med brannklasse EI30, lydklasse 40db samt kikkehull. Dører og vinduer med karmer av tre og tre-lags glass fra byggeår.
- Vannrør av type rør-i-rør og flexi. Synlig avløpsrør av plast. Fordelerskap for rør-i-rør, hovedstoppekraner med lekkasjestopper og vannmåler, fordelerstammer for vannbåren varme og stoppekraner er plassert i vegg på bad 1. Mekanisk avtrekk fra begge bad og kjøkken. Ventilasjonsanlegg er plassert i teknisk rom. Balansert ventilasjon. Leiligheten er tilknyttet felles varmtvann. Leiligheten er oppvarmet med elektrisitet og vannbåren gulvvarme, samt gasspeis. Gulvvarme i samtlige oppholdsrom.
- Sikringsskap med automatsikringer og hovedsikring er plassert i teknisk rom. Leiligheten har skjult elektrisk anlegg.
- Utgang fra stue til markterrasse på 29 m². Terrassen er belagt med terrassebord. Utebelysning og stikkontakt.
TGIU (ikke undersøkt):
- Bad 1 og 2: På grunn av våtrommets utforming og bruk er det ikke praktisk mulig å gjennomføre hulltaking og fuktmåling i de mest fuktutsatte delene av våtsonen, som erfaringsmessig er områdene der skader forekommer. Dusjsonen er plassert mot tilstøtende bad/dusj og yttervegg. Hulltaking og fuktmåling i lukkede konstruksjoner er derfor ikke utført. Det ble derimot gjennomført et overflatesøk med fuktindikator, uten at det ble påvist indikasjoner som tyder på fuktskader.
Tekniske anlegg: Avløpsrørene er skjult og eventuell stakeluke er ikke lokalisert. Vannbåren varme og tekniske installasjoner er ikke tilstandsvurdert da dette krever spesialkompetanse.
Se supplerende tekst i tilstandsrapporten om bygningsdelene. Kjøper overtar ansvar og risiko for dette.
Tilstandsrapporten er inntatt i salgsoppgaven.
Standard
Leiligheten fremstår som moderne, gjennomført og svært innbydende, med en planløsning som utnytter arealet på en optimal måte. Leiligheten er oppført i 2024 og holder gjennomgående høy standard, med vannbåren gulvvarme i alle oppholdsrom som gir en lun og behagelig temperatur året rundt.
Man ønskes velkommen inn i en romslig entré med gode oppbevaringsmuligheter for yttertøy og sko, som gir et ryddig og praktisk førsteinntrykk. Boligens naturlige samlingspunkt er den lyse og luftige stuen med åpen kjøkkenløsning. Her skapes en sosial og hyggelig atmosfære, med gode møbleringsmuligheter og rikelig med lysinnslipp. Kjøkkenet er stilrent og moderne, med glatte fronter og solide benkeplater i stein som gir et eksklusivt preg. Integrerte hvitevarer sørger for et helhetlig uttrykk, og praktiske løsninger som Quooker og godt med arbeidsflate gjør kjøkkenet både funksjonelt og brukervennlig. Fra stuen/kjøkkenet er det direkte utgang til en solrik og romslig sør og vestvendt markterrasse på hele 29 kvm – et perfekt sted for avslapning, hyggelige sammenkomster og lange sommerdager.
Leiligheten har tre gode soverom med fine størrelser, hvor hovedsoverommet har direkte tilknytning til eget bad. Dette gir en privat og komfortabel sone, ideell for en hektisk hverdag. Boligen inneholder to delikate baderom med moderne standard. Begge badene er innredet med stilrene overflater, dusjløsninger med glassvegger og behagelig gulvvarme. Hovedbadet har i tillegg opplegg for vaskemaskin og tørketrommel, noe som gir ekstra praktisk hverdagskomfort.
Løsøre og tilbehør
Vi viser til liste fra Norges Eiendomsmeglerforbund som gjelder fra 01.01.2020 angående løsøre og tilbehør.
Oppvarming
Leiligheten er oppvarmet med elektrisitet og vannbåren gulvvarme, samt gasspeis. Gulvvarme i samtlige oppholdsrom.
Ferdigattest/brukstillatelse
Det foreligger ikke ferdigattest på eiendommen, men midlertidig brukstillatelse ble gitt 25.10.2024. Tillatelsen er gitt på vilkår om at gjenstående arbeider frem mot ferdigattest må være utført innen 19.06.2025.
Informasjon fra styret vedrørende dette: "Utbygger søkte om ferdigattest 25.08.2025, som er satt i bero som følge av manglende ferdigstillelse av rørarbeider. Utbygger har overfor styret meddelt muntlig at alle baderommene vil bli utbedret dersom kommunen avslår ferdigattest som følge av membran". Infobrevet fra styret/sameiet kan fås ved henvendelse til megler.
Tinglyste heftelser og rettigheter
Leiligheten overdras fri for pengeheftelser.
Sameiet har legalpant for krav mot sameieren som følger av sameieforholdet iht. eierseksjonsloven § 31. Pantet er begrenset oppad til 2G, (G = folketrygdens grunnbeløp).
Det er tinglyst 45 servitutter på sameiets eiendom. Disse omhandler blant annet bestemmelser om bebyggelse, veg, vann/kloakkledning, deleforbud, adkomstrett, gjerde, sjenerende virksomhet, elektriske kraftlinjer, uthus, septiktank, dispensasjon fra bygningsloven, garasje/parkering, tilleggsdel, rett for allmennheten til ferdsel/opphold og nettstasjon.
Servituttene vil følge eiendommen. Kjøpers bank vil få prioritet etter ovennevnte heftelser og servitutter.
Eventuell adgang til utleie
Leiligheten kan leies ut. Leietaker må følge sameiets vedtekter og ordensregler på lik linje som eier.
Beliggenhet og tomteforhold
Beliggenhet og tomteforhold
Beliggenhet
Leiligheten ligger meget sentralt til i sentrum av Bekkestua, hvor du har alt av servicetilbud rett utenfor døren med blant annet flere dagligvareforretninger, kaféer, restauranter, helsetilbud, idrettstilbud, Bekkestua Senter og offentlig kommunikasjon.
Kun et par minutters gange fra leiligheten har du et knutepunkt for offentlig kommunikasjon med buss og T-bane. Bussene går overalt i Bærum og T-banen tar deg til Majorstuen på ca. 20 minutter. Her er du ikke avhengig av bil for å komme seg noe sted.
Bekkestua sentrum har et godt utvalg forretninger som trengs i hverdagen. Her har du flere dagligvarebutikker, nisjebutikker, kjedebutikker, Vinmonopolet, kaféer, restauranter, Bærum bibliotek, legesenter, tannlege, treningssenter og mye mer. Bekkestua senter har du like ved som byr på en rekke butikker og spisesteder, deriblant en stor Meny-butikk. Senteret har også flere aktører innen helse og velvære i 3. etasje. Dersom du må til forretningene på bakkeplan har du oppvarmede fortau i deler av Bekkestua sentrum som gir trygge og behagelige forhold hele året. Dersom du ønsker ytterligere butikk- og servicetilbud er det kort vei til Sandvika, CC-Vest, Fornebu S og Østerås senter.
Av rekreasjonsmuligheter byr Bærumsmarka på flotte tur- og friluftsområder. Øverland ligger i nærområdet og er et godt utgangspunkt for turer innover i marka, både til fots, sykkel og ski. Dersom du ønsker en rolig kveldstur eller en kort joggetur har du flott terreng både på Skallum og Jarmyra. Eiksmarka Tennisklubb har seks baner og setter opp boble over to baner i vintersesongen. Golf kan spilles på Ballerud, Haga og Grini. Det er for øvrig også verdt å nevne Nadderudhallen hvor du kan svømme, bade, trene eller benytte velværeavdelingen. Nye Nadderud Idrettspark er under bygging, og vil bli en flott hjemmebane for Stabekk Fotball.
Adkomst
Veibeskrivelse se Google Maps - det er enkelt å finne frem i kartet.
Barnehager, skoler og fritid
Barnehager og skoler:
- Ringstabekk FUS barnehage
- Det røde huset familiebarnehage
- Gartnerveien barnehage
- Bekkestua barneskole
- Bekkestua ungdomsskole
Dersom skole- og barnehagetilbud er av betydning for kjøpet, ber vi om at det rettes en særskilt henvendelse til kommunen for oppdatert informasjon.
Beskrivelse av tomt
Eiertomt på 15 835 kvm som tilhører sameiet. Tomten er fellesareal. Felles tomt er opparbeidet med blant annet plenarealer, forskjellige beplantninger, lekeplass og sittegrupper, samt asfalterte veier som holdes isfrie om vinteren.
Parkering
Med leiligheten følger én garasjeplass (nr. 119) som tillegg til seksjonen. Det er elbil-lader på plassen. Iht. vedtektene er det satt av 21 parkeringsplasser i garasjeanlegget for gjester.
Vei, vann og avløp
Eiendommen har adkomst via privat vei med felles vedlikeholdsansvar for sameiet.
Eiendommen er tilknyttet kommunalt ledningsnett via private stikkledninger. Sameiet er ansvarlig for private stikkledninger til bygningen.
Regulerings-og arealplaner
Reguleringsplaner:
- Eiendommen er regulert til "bolig/forretning/kontor", "boligbebyggelse-blokkbebyggelse" og "uteoppholdsareal" i henhold til reguleringsplan "Kleivveien nord" med planID 2016032 datert 28.04.2021.
- Eiendommen er regulert til "torg" i henhold til reguleringsplan "Gamle Ringeriksvei med sidegater mellom Bekkestuveien og Jens Rings vei" med planID 2019015 datert 03.02.2021.
- Eiendommen er regulert til "kjørevei" i henhold til reguleringsplan under bakken "Bekkestua m/omgivelser" med planID 1990013 datert 23.09.1992.
Utsnitt av plan med tilhørende bestemmelser kan fås ved henvendelse til megler
Økonomi
Økonomi
Boligens kostnader
Fellesutgiftene er kr 4 537,- pr. mnd. og inkluderer: Kommunale avgifter, felles bygningsforsikring, drifts- og vedlikeholdskostnader m.m.
Fellesutgiftene fordeles slik:
- Renovasjon - Bolig kr 337,-
- Kollektiv avtale: TV/Internett kr 10,-
- Andel felleskostnader - Alle kr 2 357,-
- Garasje: P-plass 119 kr 200,-
- Andel felleskostnader - Bolig kr 1 633,-
Oppvarming og varmtvannsforbruk faktureres etter forbruk direkte til seksjonseier, og kommer i tillegg til felleskostnadene.
Nåværende eier har et strømforbruk som tilsvarer ca. 6300 kwh. pr. 2025.
Utgiftene er basert på nåværende eiers forbruk. Kjøper må selv tegne innboforsikring.
Formuesverdi
Ved hjelp av skatteetatens boligkalkulator er boligens formuesverdi beregnet til kr. 2 504 520,- for fjoråret når boligen benyttes som primærbolig.
Formuesverdien er en gitt prosent av den beregnede markedsverdien. Beregnet markedsverdi er basert på Statistisk sentralbyrå (SSB) sine opplysninger om omsatte boliger. I beregningen tas det hensyn til boligens beliggenhet, areal, byggeår og boligtype.
Det er eier av boligen som fastsetter formuesverdien, jf. skatteforvaltningsloven § 9-1 første ledd, men skattemyndighetene kan kontrollere at verdien er satt riktig.
Formuesverdi skal ikke overstige:
Primærbolig: 25 % av beregnet eller dokumentert markedsverdi opp til kr. 10 000 000, og deretter 70 % av den overskytende markedsverdi.
Sekundærbolig: 100 % av beregnet eller dokumentert markedsverdi.
Formuesverdier som overstiger disse grensene, kan kreves nedjustert av eier.
Fra 2026 har Stortinget vedtatt en oppdatert modell for beregning av formuesverdi for primærbolig, så avvik kan forekomme.
For mer informasjon se skatteetaten.no
Opplysninger om fellesgjeld
Andel formue er kr 31 320,- pr. 31.12.2025
Andel fellesgjeld er kr 0,- pr. 31.12.2025
Omkostninger
13 650 000,00 Prisantydning
Omkostninger
341 250,00 Dokumentavgift til staten (2,5% av kjøpesum)
9 950,00 Gjensidige Boligkjøperpakke (valgfri)
545,00 Tinglysing panterettsdokument
545,00 Tinglysing skjøte
--------------------------------------------------------
352 290,00 Omkostninger totalt
--------------------------------------------------------
14 002 290,00 Totalpris inkl. omkostninger
--------------------------------------------------------
Dersom sameiet har fellesgjeld, vil leilighetens andel av fellesgjelden komme i tillegg til kjøpesummen. Denne gjelden skal ikke innbetales i oppgjøret, men følger leiligheten.
Totalpris inkl. omkostninger forutsetter kjøp til prisantydning.
Det tas forbehold om endringer i avgifter og gebyrer.
Tilbud om lånefinansiering
Megler formidler gjerne kontakt med rådgiver hos vår samarbeidspartner BN Bank. De har konkurransedyktige betingelser samt rask og løsningsorientert behandling av din lånesøknad. Krogsveen mottar et honorar dersom lån opprettes.
Betalingsbetingelser
Kjøpesum inkludert omkostninger, samt pantedokument tilknyttet eventuelt lån, skal være disponibelt hos megler 2 virkedager før overtagelsen.
Annen viktig informasjon
Annen viktig informasjon
Eier
Camilla Helene Mogen Vadis og Morten Monrad Nielsen
Informasjon om sameiet
Eiendommen er seksjonert, og leiligheten er tilknyttet Sameiet Bekkestua Have, med sameiebrøk 111/18591.
Sameiet består av 229 boligseksjoner og 47 næringsseksjoner. Næringsseksjonene omfatter 9 næringslokaler, 25 parkeringsplasser, 9 MC-plasser og 4 boder. Bebyggelsen omfatter 11 bygg med felles parkeringskjeller. I tillegg inngår vernet bebyggelse i form av en eldre trevilla med uthus, som er seksjonert som egen næringsseksjon.
Forretningsfører er Enqvist Boligforvaltning AS.
Dugnad må påregnes.
Det er tillatt med dyrehold så lenge det ikke er til sjenanse for andre. Ved grilling på balkong/terrasse er det kun tillatt med elektrisk grill eller gassgrill. Korttidsutleie av hele leiligheten er begrenset til maksimalt 90 dager per år. Det er ikke tillatt å montere private parabolantenner, da sameiet har et fellesanlegg. Alle leieforhold skal meldes til forretningsfører. Det skal generelt være ro i sameiet mellom kl. 23:00 og 07:00 på hverdager.
Sameiet er forsikret i Gjensidige Forsikring ASA. Polisenr: 93204754
Sameiet har felles sykkelbod i garasjeanlegget.
Styret arbeider med flere viktige saker. Videre er det vedtatt å installere kameraovervåkning i trapperom, estimert til ca. 300 000 kr. Det nye vedlikeholdsfondet er opprettet for å dekke fremtidige kostnader, der første store prosjekt antas å være maling av fasader, estimert til ca. 1,6 millioner kroner for tre av byggene. Styret følger også opp utfordringer med dørautomatikk og brannskiller i garasjen.
Sameiet har registrert over 250 reklamasjoner hvor det er uenigheter med utbygger. Sameiet ser ingen annen utvei enn å ta ut stevning til tingretten. Infobrevet fra styret/sameiet ligger vedlagt i salgsoppgaven.
Det ble på årsmøtet 2026 vedtatt av sameiet kan inngå avtale med eksternt firma om utvendig vindusvask. Kostnaden vil fordeles til den enkelte seksjonseier etter en egen brøk beregnet ut fra antall og størrelse på vinduer, og legges på som en egen linje på månedlige felleskostnader. Det forutsettes vask én gang pr. år.
Årsmøtet i 2025 vedtok å opprette et vedlikeholdsfond med en årlig avsetning på kr 1 000 000. Innbetaling til fondet startet 1. juli 2025 og kommer i tillegg til de ordinære felleskostnadene.
Vi gjør videre oppmerksom på at det iht. eierseksjonsloven ikke er anledning å erverve mer enn 2 seksjoner i sameiet, her teller også eierskap via. firma, nærstående og familie. Kjøper har risikoen for at overskjøting på denne bakgrunn kan nektes av Statens Kartverk. I så fall vil kjøper uansett være forpliktet til å gjennomføre handelen, og oppgjør til selger vil finne sted tross manglende overskjøting.
Konferer med megler for mer informasjon.
Dokumenter for sameiet og kopi av seksjonsbegjæringen kan fås ved henvendelse til megler.
Overtakelse
Etter nærmere avtale.
Boligselgerforsikring
Selger har i forbindelse med salget tegnet boligselgerforsikring levert av Gjensidige.
Boligselgerforsikringen dekker selgers ansvar etter avhendingsloven begrenset oppad til kr 14 millioner. Dersom kjøper oppdager forhold ved eiendommen som hen mener utgjør en mangel ved eiendommen, vil Gjensidige behandle reklamasjonen på vegne av selger. Forsikringsvilkår kan fås ved henvendelse til megler.
Vedlagt salgsoppgaven følger selgers egenerklæringsskjema og tilstandsrapport. Interessenter må sette seg inn i dokumentene før bud inngis.
Boligkjøperforsikring
Innen kontraktsmøtet må kjøper ta stilling til om det ønskes å bestille Boligkjøperpakken gjennom Gjensidige. I denne gunstige pakken er boligen ferdig forsikret og inkluderer rettshjelpsforsikring, også kalt Boligkjøperforsikring. Rettshjelpsforsikring gir trygghet og tilgang på profesjonell juridisk hjelp dersom det oppdages uventede feil eller mangler det første året etter overtagelse. Forsikringsselskapet behandler i så fall ethvert mangelskrav kjøper måtte ha overfor selger.
Boligkjøperpakken inkluderer bygningsforsikring for hus og hytte, innboforsikring, flytteforsikring og dobbel rentedekning - i situasjoner hvor kjøper ikke får solgt nåværende primærbolig.
Kjøper mottar ingen særskilt faktura for Boligkjøperpakken da kostnaden det første året legges til kjøpesummen for boligen. Det gjøres oppmerksom på Krogsveen mottar et honorar for denne formidlingen.
Produktark for Boligkjøperpakken ligger vedlagt i salgsoppgaven.
Dersom ikke boligkjøperpakke ønskes kan kun rettshjelpsforsikring, også kalt boligkjøperforsikring, tegnes særskilt via megler. Rettshjelpsforsikringen varer i 5 år fra overtagelse og leveres gjennom Gjensidige. Ta kontakt med megler for ytterligere informasjon.
Selskap og privatpersoner som driver med kjøp/salg/utvikling som ledd i egen næringsvirksomhet kan ikke tegne boligkjøperpakke eller rettshjelpsforsikring.
Budgivning
Forbrukerinformasjon om budgivning er vedlagt denne salgsoppgaven og er også på vår hjemmeside Krogsveen.no. Alle bud og budforhøyelser må inngis skriftlig. I tillegg må legitimasjon være fremlagt sammen med signatur fra budgiver.
Vi oppfordrer til å gi bud elektronisk via GI BUD-knappen på eiendommens hjemmeside på Krogsveen.no. Da vil samtlige vilkår bli oppfylt.
Eventuelle forhøyelser eller endringer av budet kan bekreftes pr SMS eller på e-post. Vi oppfordrer alltid til å kontakte megler pr. telefon i tillegg da forsinkelser i SMS og e-post kan forekomme.
For at budene skal kunne bli behandlet og videreformidlet skriftlig til alle involverte parter, må alle bud ha en tilstrekkelig lang akseptfrist, jf. eiendomsmeglingsforskriften § 6-3.
Selger må også skriftlig akseptere budet før aksept kan formidles til budgiver. Akseptfrist bør derfor være på minimum 30 minutter, og budforhøyelser må derfor skje i god tid før fristens utløp.
Bud i forbrukerforhold kan uansett ikke settes med kortere frist enn kl. 12.00 første virkedag etter siste annonserte visning. I tillegg kan ikke budet ha forbehold om at det skal holdes hemmelig ovenfor øvrige interessenter. Megler har iht lov om eiendomsmegling ikke anledning til å videreformidle disse budene, og de vil dermed heller ikke bli journalført.
Etter at eiendommen er solgt vil kjøper og selger få tilsendt budjournal. Øvrige budgivere kan få utlevert kopi av budjournalen i anonymisert form.
Hvitvaskingsreglene
I henhold til lov om hvitvasking og terrorfinansiering har megler plikt til å gjennomføre kontrolltiltak overfor kunder, herunder fullmektiger. Dette innebærer bl.a. å bekrefte kunders og reelle rettighetshaveres identitet på bakgrunn av fremvist gyldig legitimasjon eller på annen godkjent måte, samt å innhente opplysninger om kundeforholdets formål og tilsiktede art.
Dersom slike kundetiltak ikke kan gjennomføres, kan megler ikke etablere kundeforholdet eller utføre transaksjonen.
Hvis kjøper ikke bidrar til gjennomføring av kundekontrollen og dette fører til at transaksjonen blir forsinket eller ikke kan gjennomføres, vil dette ansees som mislighold av avtalen og gi selger rettigheter etter avhendingslova kapittel 5. I tilfeller der selger ikke bidrar til gjennomføring av løpende kundekontroll underveis i oppdraget, er det selger som misligholder sine forpliktelser etter avtalen og gi kjøper rettigheter etter avhendingslovens kapittel 4. Partene er selv ansvarlige for eventuelle kostnader og ansvar dette kan medføre. Eiendomsmegleren eller eiendomsmeglingsforetaket kan ikke holdes ansvarlig for de konsekvenser dette vil kunne få for partene eller andre som har interesser i eiendomshandelen.
Kjøper oppfordres til å innbetale kjøpesummen som ikke kommer fra låneinstitusjon i én samlet innbetaling fra egen konto i norsk bank. Megler har plikt til å melde fra til Økokrim om eiendomshandler som fremstår som mistenkelige. Melding sendes Økokrim uten at partene varsles.
Personopplysningsloven
I henhold til personopplysningsloven gjør vi oppmerksom på at interessenter kan bli registrert for videre oppfølging.
Lovanvendelse
Generelle bestemmelser
Salgsoppgaven er basert på de opplysningene selger har gitt til megler, den bygningssakyndiges tilstandsrapport, samt opplysninger innhentet fra kommunen, Kartverket og andre tilgjengelige kilder. Det er viktig at kjøper setter seg grundig inn i alle salgsdokumentene, herunder salgsoppgave, tilstandsrapport og selgers egenerklæring. Kjøper anses kjent med forhold som er tydelig beskrevet i salgsdokumentene, og slike forhold kan ikke påberopes som mangler. Dette gjelder uavhengig av om kjøper har lest dokumentene. Alle interessenter oppfordres til å undersøke eiendommen nøye, gjerne sammen med fagkyndig før bud inngis. Kjøper som velger å kjøpe usett kan ikke gjøre gjeldende som mangel noe han burde blitt kjent med ved undersøkelsen.
Dersom det er behov for avklaringer, anbefaler vi at interessenter rådfører seg med eiendomsmegler eller egne rådgivere før det legges inn bud.
En bolig som har blitt brukt i en viss tid, har vanligvis blitt utsatt for slitasje og skader kan ha oppstått. Slik bruksslitasje må kjøper regne med, og det kan avdekkes enkelte forhold etter overtakelse som nødvendiggjør utbedringer. Normal slitasje og skader som nødvendiggjør utbedring, er innenfor hva kjøper må forvente og vil ikke utgjøre en mangel.
Kjøper og selgers rettigheter og plikter reguleres av avtalen mellom partene, samt informasjonen som har vært tilgjengelig for kjøperen i forbindelse med handelen. Avtalen utfylles av avhendingsloven, og det gjelder ulike avtalevilkår avhengig av om kjøper er forbrukerkjøper eller ikke. Dette er nærmere beskrevet nedenfor.
På grunn av ulike avtalevilkår kan selger vurdere bud fra en som ikke er forbruker, ulikt fra en forbrukers bud. Dersom kjøper ikke er forbruker, er selger sitt mulige mangelsansvar begrenset fordi eiendommen selges "som den er". Selger kan ikke ta «som den er»- forbehold overfor en forbrukerkjøper. Selv et lavere bud fra en som ikke er forbruker kan foretrekkes fordi begrensningen i mulig mangelsansvar kan ha egenverdi for selger. Selger står fritt til å forkaste eller akseptere ethvert bud, og er for eksempel ikke forpliktet til å akseptere høyeste bud.
Budgiver skal i budskjema avgi egenerklæring om budgiver er forbruker eller næringsdrivende/ person som hovedsakelig handler som ledd i næringsvirksomhet. Budgivere får informasjon dersom andre bud er inngitt av en som ikke er forbruker.
Forbrukerkjøp - definisjon
Med forbrukerkjøp menes kjøp av eiendom når kjøperen er en fysisk person som ikke hovedsakelig handler som ledd i næringsvirksomhet.
Forbruker – avtalevilkår
Eiendommen har en mangel dersom den ikke er i samsvar med kravene som følger av avtalen, eller det foreligger brudd på bestemmelsene i avhendingsloven §§ 3-2 til 3-8. Hvis eiendommen ikke er i samsvar med det kjøperen må kunne forvente ut ifra alder, type og synlig tilstand, kan det være grunnlag for mangelskrav. Det samme gjelder hvis det er holdt tilbake eller gitt uriktige opplysninger om eiendommen. Dette gjelder likevel bare dersom man kan gå ut ifra at det virket inn på avtalen at opplysningen ikke ble gitt eller at mangelskravet ikke blir rettet i tide på en tydelig måte.
Boligen kan ha en mangel etter avhendingsloven § 3-3 andre ledd, dersom det er avvik mellom opplyst og faktisk innvendig areal, forutsatt at avviket er på 2% eller mer og minimum 1 kvm.
Ved beregning av et eventuelt prisavslag eller erstatning må kjøper selv dekke tap/kostnader opptil et beløp på kr 10 000 (egenandel).
Ikke-forbruker (næringsdrivende) – definisjon
Hvis kjøper er en juridisk person, eller en fysisk person som hovedsakelig handler som ledd i næringsvirksomhet, vil kjøpet ikke anses som et forbrukerkjøp.
Ikke-forbruker – avtalevilkår
Eiendommen har en mangel dersom den ikke er i samsvar med kravene som følger av avtalen.
Eiendommen selges «som den er», og selgers ansvar utover det konkret avtalte er da begrenset etter avhendingsloven § 3-9, første ledd andre setning.
Avhendingsloven § 3-3 andre ledd fravikes, og hvorvidt boligens arealsvikt utgjør en mangel vurderes etter avhendingsloven § 3-8.
Informasjon om kjøpers undersøkelsesplikt, herunder oppfordringen om å undersøke eiendommen nøye, gjelder også for kjøpere som ikke anses som forbrukere.
Det forutsettes at hjemmel overføres til kjøper. Hvis kjøper ikke ønsker hjemmelsoverføring av eiendommen, må det tas forbehold om dette i budet.
Meglers vederlag
Meglers vederlag betales av selger og er avtalt til:
Vederlag: 0,60 % av salgssummen inkl. eventuell fellesgjeld.
Vederlag:
Foto leilighet kr 5 000,00
Kontroll av hjemmel og heftelser kr 2 900,00
Markedsføringspakke kr 28 250,00
Oppgjør kr 7 500,00
Tilrettelegging kr 17 000,00
Visninger / Overtagelse per stk kr. 4000,- (2 stk inkl.)
Utlegg:
Eierskiftegebyr kr 6 570,00
Innhenting av informasjon forretningsfører kr 5 247,00
Innhenting av offentlig opplysninger Bærum kommune kr 4 391,00
Tinglysing sikring kr 545,00
Vi er opptatt av verdiskapning, og har knyttet til oss samarbeidspartnere som skal sikre våre kunder de beste produkter og tjenester;
• I forbindelse med forberedelse av salget, innhenter vi informasjon om eiendommen hovedsakelig fra vår samarbeidspartner Ambita.
• Gjensidige leverer boligselgerforsikring og tilbyr bygningsforsikring
• Boligkjøperforsikring leveres av Hiscox og med Sedgwick som skadebehandler, og er formidlet gjennom Gjensidige.
• BN bank tilbyr finansieringsløsninger
• Vår avdeling Krogsveen Pluss tilbyr flyttetjenester som utvask, visningsvask, lager, tømming og transport av flyttelass, i tillegg til å formidle kontakt med Flip for overflateoppussing.
• I forbindelse med overtagelse av eiendommen tilbyr Overo avtale om strøm, alarm og bredbånd.
• Krogsveen er, sammen med øvrige bransjeaktører, medeier i den digitale annonseringsplattformen Hjem som eies av Bomega AS.
Opplysninger om oppdraget
Oppdragsnummer 10-0167/25
Eiendomsmegler Krogsveen AS, avd. Bærum
Gml. Ringeriksvei 40, 1357, BEKKESTUA
950 007 613
Oppdragets KR-kode KR10.25167
Dato
Sist oppdatert: 22. mai 2026 kl. 13:24
Dokumenter
Dokumenter
PDF – 1002 KB
PDF – 383 KB
PDF – 4 MB
PDF – 140 KB
PDF – 312 KB
PDF – 29 KB
PDF – 127 KB
PDF – 392 KB
Område
Legg til steder som er viktige for deg
Visning
For å delta på visning, ber vi om at du melder deg på. Da sikrer vi at du får nødvendig informasjon og at det er satt av tilstrekkelig med tid. Kontakt megler dersom annet tidspunkt ønskes. Husk å lese salgsoppgaven før visningen, så du stiller forberedt.
Ønsker du kun å bli holdt orientert, kan du fra eiendommens hjemmeside få varsel om solgtpris, eller kontakte megler.
Lurer du på noe?
Unngå doble boligrenter
Vi tilbyr gunstig forsikring.
Vurderer du utleie?
Få et tilbud fra Utleie KrogsveenHva koster lånet?
Sjekk estimert lånekostnadVil du varsles om lignende boliger?
Ved å lagre ditt boligsøk hos oss får du beskjed når vi har en bolig som ligner denne, før den legges ut på markedet!











































