Komplett salgsoppgave

Aaengveien 19

4 390 000 kr
75 m²
2 soverom
Velkommen til Aaengveien 19 - en meget tiltalende leilighet beliggende i fantastiske omgivelser på Møllehaugen/Fagerlia!
Velkommen til Aaengveien 19 - en meget tiltalende leilighet beliggende i fantastiske omgivelser på Møllehaugen/Fagerlia!
Kart
Redesign på Hjem.no
Del
Jan Vidar Lysbakken
Presenteres av
Jan Vidar Lysbakken
Fagerlia
Delikat 3-roms i veletablert, skjermet område |Gåavstand til sentrum |Stor terrasse |Fantastisk utsikt |Rikelig bodareal

Unngå doble boligrenter

Vi tilbyr gunstig forsikring.
Sjekk estimert lånekostnad

    Pris

  • Prisantydning
    4 390 000 kr
  • Andel fellesgjeld
    147 558 kr
  • Omkostninger
    19 253 kr
  • Totalpris
    4 556 811 kr

    Areal

  • BRUKSAREAL
    88 m²
  • BRA-I (internt bruksareal)
    75 m²
  • BRA-E (eksternt bruksareal)
    13 m²
  • TBA (terrasse-balkongareal)
    25 m²

    Nøkkelinfo

  • Etasje
    1
  • Byggeår
    1955
  • Soverom
    2 soverom
  • Bad
    1 bad
  • Type
    Andelsleilighet
  • Eierform
    Andel
  • Fasiliteter
    Balkong/Terrasse
  • Fellesutgifter
    6 189 kr
  • Energimerke
    Oransje E

Visning

For å delta på visning, ber vi om at du melder deg på. Da sikrer vi at du får nødvendig informasjon og at det er satt av tilstrekkelig med tid. Kontakt megler dersom annet tidspunkt ønskes. Husk å lese salgsoppgaven før visningen, så du stiller forberedt.
Ønsker du kun å bli holdt orientert, kan du fra eiendommens hjemmeside få varsel om solgtpris, eller kontakte megler.
Lurer du på noe?

Beskrivelse

Kort om eiendommen

Velkommen til Aaengveien 19 - en meget tiltalende leilighet beliggende i fantastiske omgivelser på Møllehaugen/Fagerlia! Leiligheten ligger sentralt og rolig til uten gjennomgangstrafikk, og har skjermet felles hagedel som grenser til bymarka og et hav av turstier. Verdt å merke seg:
  • Betydelig renovert med bla. lyd- og etterisolering, oppgradering av flater og bad samt ny kjøkkeninnredning
  • Åpen stue- og kjøkkenløsning med gode møbleringsmuligheter
  • Veranda på 25 kvm med nydelig utsikt mot fjorden og byen
  • To romslige soverom
  • Delikat baderom med gulvvarme
  • To boder på til sammen 13 kvm samt felles sykkelbod. Bod/garderobe i leiligheten på 4 kvm
  • Gode kollektivmuligheter, kun ca 10 min med buss inn til sentrum
  • Kort vei til bla. Ilsvika og Theisendammen
  • Innhold og byggemåte

    Eiendommen

    Aaengveien 19, 7020 TRONDHEIM
    Kommunenummer 5001, gårdsnummer 438, bruksnummer 9, ideell andel 1/1
    Andelsnummer 81, Fagerlia Hageby borettslag, organisasjonsnummer 948718928

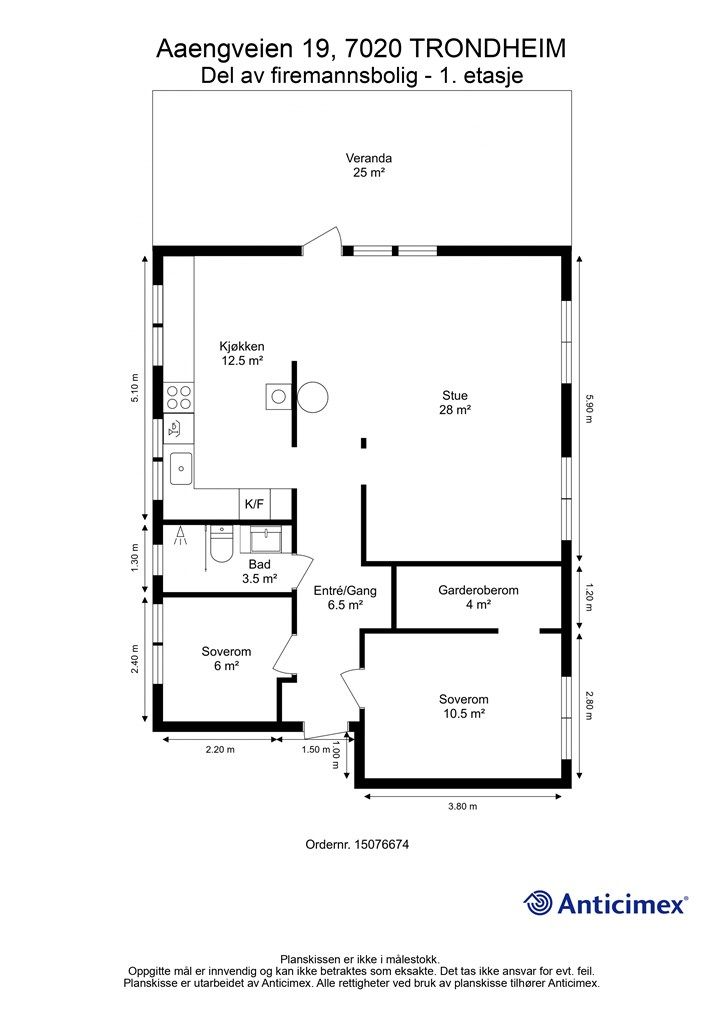
    Innhold

    Totalt
    BRA: 75 kvm
    BRA-i: 75 kvm
    BRA-e: 13 kvm
    TBA: 25 kvm
    1. etasje
    BRA: 75 kvm
    BRA-i: 75 kvm. Entré/gang, to soverom, garderoberom, bad, stue og kjøkken.
    BRA-e: 0 kvm
    TBA: 25 kvm. Veranda.
    Kjeller
    BRA: 13 kvm
    BRA-i: 0 kvm
    BRA-e: 13 kvm. Boder.
    TBA: 0 kvm
    Det gjøres oppmerksom på at boligens eksterne boder tilhører borettslagets fellesareal, og at boden således ikke eies av den enkelte andelseier. Dette medfører at borettslaget i fellesskap beslutter bruken, og at man ikke selv har eierrett og rettsvern for boden. Borettslaget kan ved vedtak beslutte annet bruk av fellesarealet og disponering av bodarealet kan dermed opphøre.  
    Borettslaget inneholder videre fellesarealer som vaskerom, tørkerom og fellesbod som kan benyttes av andelseierne.
    Vedlagte plantegninger er ikke målbare. De oppgitte arealer er hentet fra rapport med befaringsdato 03.11.2025 utført av Anticimex AS avd. Trondheim. Arealene er beregnet og rom er definert etter dagens faktiske bruk, uavhengig av hva som er godkjent av bygningsmyndighetene.

    Byggemåte

    Selger har fått utarbeidet en tilstandsrapport, dvs. en teknisk gjennomgang av boligen hvor eventuelle avvik, risiko for kjøper og prisoverslag for hva som bør gjøres av oppgradering, er skissert. Se særskilt TGIU (tilstandsgrad ikke undersøkt), samt TG2. Rapporten og selgers egenerklæring er en del av salgsoppgaven og må leses nøye før bud inngis. Kjøper overtar ansvaret for de opplysninger som fremkommer av salgsdokumentasjonen, og kan ikke gjøre gjeldende som mangel noe som burde vært kjent eller som ikke kan anses å ha betydning for avtalen.  
    Bygningen er iht. tilstandsrapporten oppført i 1955. Grunnmur og bærende konstruksjoner i hovedsak av betong. Fundamentert på ukjent byggegrunn. Bygget er oppført med støpt gulv mot grunn. Yttervegger av trekonstruksjoner. Fasaden er kledd med stående trekledning. Etasjeskillere av trekonstruksjoner. Saltak i trekonstruksjoner (ikke besiktiget). Yttertak er utvendig tekket med metallplater. Leiligheten har entrédør med brannklasse EI30 og lydklasse Rw 35dB. Vinduer i forskjellig utførelse, fra forskjellige årstall. Les for øvrig mer om byggemåte og den tekniske tilstanden i rapporten.

    Moderniseringer og påkostninger

    Leiligheten er ble renovert i 2022 med blant annet:
    - Nytt gulv.
    - Etterisolering av yttervegger på stue og kjøkken.
    - Lydisolering mot andre etasje i alle rom og montering av walls2paint på alle vegger utført ved egeninnsats. Assistert veiledning av faglært nabo.
    - Ny peisovn.
    - Renovering av pipe med stålrør.
    - Ny avretting med fall mot nytt sluk på bad.
    - Montering av gulvbelegg som tettesjikt på bad.
    - Montering av våtromsplater med smøremembran på vegg på bad.
    - Flis på vegg på bad.
    - Nytt vindu med plastkarm i våtsone på bad.
    - Membran i vinduskarm på bad.

    Standard

    85% har fått TG 1: I orden
    11% har fått TG 2: Alder, slitasje, skader mv.
    0% har fått TG 3: Strakstiltak nødvendig
    4% har fått TGIU: Ikke undersøkt
    Rapporten fra takstmann er en teknisk gjennomgang av boligen og angir eventuelle byggetekniske avvik. Sammendraget under beskriver avvik ved boligen som har fått tilstandsgrad TG2 og TGIU.
    Tilstandsgrad 2:
    - Varmtvannsbereder pga. alder. Varmtvannsbereder er plassert i rom uten sluk/overløp eller annen sikring mot fuktskader.
    - Vannrør pga. alder. Koblinger for rør-i-rør system er plassert i rom uten sluk eller annen sikring mot fuktskader.
    - Avløpsrør pga. alder.
    - Drenering pga. alder.
    - Vann og avløpsledninger pga. alder.
    Tilstandsgrad IU:
    - Radon: Det er ukjent om radonmåling er gjennomført i boligen. Ytterligere undersøkelser anbefales.
    - Yttertak: Ingen tilkomst til taket, noe som gjør at yttertaket ikke ble inspisert. Vurderingen er derfor utelukkende basert på informasjon om yttertakets alder og eventuelle observasjoner gjort fra innsiden, med den begrensning dette innebærer.
    - Byggegrunn: Byggegrunnens oppbygning er ukjent.
    Tilstandsrapporten og selgers egenerklæring følger vedlagt i salgsoppgaven. Interessenter må sette seg inn i dokumentene før bud inngis.

    Løsøre og tilbehør

    Vi viser til liste fra Norges Eiendomsmeglerforbund som gjelder fra 01.01.2020 angående løsøre og tilbehør.
    Dette medfølger boligen i følge selger:
    - Kjøleskap.
    - Stekeovn.
    - Fryser.
    - Oppvaskmaskin

    Oppvarming

    Peisovn i stue. Øvrig oppvarming med elektrisitet.

    Ferdigattest/brukstillatelse

    Eiendommen har vært brukt til boligformål siden 1955. Kommunen opplyser at det ikke foreligger ferdigattest eller midlertidig brukstillatelse for eiendommen.
    Det foreligger derimot:
    - Godkjent byggemelding vedrørende oppføring av 4-mannsbolig datert 05.05.1953.
    - Igangsettelsestillatelse for etablering av brannvarslingsanlegg datert 24.10.2012.
    - Godkjent byggemelding vedrørende etablering av veranda datert 06.07.1988.
    Dagens tegninger avviker fra opprinnelige tegninger:
    - Deler av stuen er opprinnelig byggemeldt med et ekstra soverom, og det er fjernet vegger for å skape større stue.
    - Det er fjernet noen vegger og dører for å skape åpen løsning fra stuen til kjøkkenet.
    - Garderoberommet er opprinnelig byggemeldt som to kott.
    Det gjøres oppmerksom på at det ikke lenger utstedes ferdigattest på tiltak det er søkt om før 1998 jf. plan- og bygningsloven § 21-10. Kommunen vil ikke kreve ferdigattest for disse tiltakene og vil avvise eventuelle søknader. Bestemmelsen innebærer ikke at tiltak med manglende søknad blir lovlige, men at man ikke trenger å avslutte gamle byggesaker. Normalt sett kreves ferdigattest for alle søknadspliktige tiltak som gjøres etter plan- og bygningsloven.
    Kjøper overtar eiendommen slik den fremstår på visning med risiko og ansvaret for eventuelle pålegg fra kommunen og kostnader forbundet med dette.

    Tinglyste heftelser og rettigheter

    Utover andel fellesgjeld overdras leiligheten fri for pengeheftelser.
    Borettslaget har legalpant for forfalte felleskostnader og andre krav som følger av borettslagsforholdet iht. burettslagsloven § 5-20. Pantet er begrenset oppad til 2G (G = folketrygdens grunnbeløp).
    Det er ingen tinglyste servitutter på eiendommen. 

    Eventuell adgang til utleie

    Andelseier kan ikke uten samtykke fra styret i borettslaget overlate bruken av boligen til andre. Med samtykke kan andelseier overlate boligen til andre i inntil tre år hvis andelseier har bodd i boligen i minst ett av de to siste år. Utleie i andre tilfeller kan godtas ved særlige grunner, jf. burettslagslova § 5-6. Utleie forutsetter at leiligheten har forsvarlige radonverdier. Se også borettslagets vedtekter og konferer megler ved spørsmål.

    Diverse

    Selger opplyser om følgende:
    - Den ene boden tilhørende leiligheten kan oppleves noe fuktig på gulv, men det har ikke vært problem å ha ting der nede over flere år. Ellers er bodene tilhørende leiligheten typisk standard for bod i kjeller.

    Beliggenhet og tomteforhold

    Beliggenhet

    Aaengveien 19 ligger i et attraktivt og veletablert boligområde på Møllehaugen/Fagerlia, kjent for rolige omgivelser, gode solforhold og et trygt bomiljø. Eiendommen ligger tilbaketrukket i et stille boligstrøk med lite gjennomgangstrafikk, noe som gir en skjermet og behagelig atmosfære. Området byr på en fin kombinasjon av bynær beliggenhet og nærhet til grønne omgivelser, perfekt for deg som ønsker en rolig hverdag uten å gi slipp på byens tilbud.
    Nabolaget er preget av godt samhold og oppleves som trygt og familievennlig, med mange barnefamilier, etablerere og dyreeiere. Her finnes gode lekeplasser, gangveier og naturlige møteplasser som bidrar til et inkluderende nærmiljø. I nærområdet er det kort vei til både barnehager og skoler, noe som gjør beliggenheten svært godt egnet for familier i ulike livsfaser.
    Daglige gjøremål kan enkelt løses i nærområdet, med dagligvarebutikker, treningssentre som 3T og EasyFit, samt servicetilbud i Ila, Ilsvika og på Byåsen. Trondheim sentrum ligger kun en kort spasertur unna, og det er også meget gode kollektivforbindelser med buss og trikk i gangavstand, som gir enkel adkomst til resten av byen.
    For den tur- og friluftsinteresserte byr området på rike muligheter. Det er kort vei til marka, med flotte turstier, skiløyper vinterstid og populære turområder som Bymarka og Ladehammeren innen rekkevidde. Samtidig gir nærheten til fjorden og byens kystlinje gode muligheter for rekreasjon året rundt.
    Aaengveien 19 er et ideelt valg for deg som ønsker å bo i et fredelig og trygt boligområde, med nærhet til både natur, gode oppvekstvilkår og det pulserende bylivet i Trondheim.

    Adkomst

    Se Google maps - det er enkelt å finne frem i kartet.
    Link: https://maps.app.goo.gl/uFxqnpEkNwbL1NmT9

    Barnehager, skoler og fritid

    Barnehager:
    - Fagerlia barnehage (1-5 år) 6 min gange
    28 barn 0.5 km
    - Hammersborg barnehage (1-5 år) 16 min gange
    101 barn 1.3 km
    - Sverresborg Allé barnehage (0-5 år) 16 min gange
    13 barn 1.3 km
    Skoler:
    - Ila skole (1-7 kl.) 18 min gange
    403 elever, 26 klasser 1.7 km
    - Steinerskolen i Trondheim (1-10 kl.) 20 min gange
    240 elever, 19 klasser 1.8 km
    - Nyborg skole (1-7 kl.) 5 min med bil
    257 elever, 16 klasser 2.7 km
    - Sverresborg skole (8-10 kl.) 5 min med bil
    570 elever, 34 klasser 2.6 km
    - Ugla skole (8-10 kl.) 8 min med bil
    488 elever, 33 klasser 4.5 km
    - Skansen Videregående Steinerskole 22 min gange
    - Thora Storm avd. Adolf Øien 9 min med bil
    396 elever 3.7 km
    Dagligvare:
    - Rema 1000 Ilsvika 16 min gange
    - Bunnpris Ila 17 min gange
    Varer/Tjenester:
    - Byåsen Butikksenter 21 min gange
    - Trondheim Torg 8 min med bil
    - Vitusapotek Byåsen 21 min gange
    - Apotek 1 Sverresborg 22 min gange
    - Byåsen Vinmonopol 22 min gange
    - Vinmonopolet Trondheim Torg 8 min med bil
    Offentlig transport:
    - Fagerliveien 8 min gange
    Linje 11, 50, 108 0.7 km
    - Bergsli gate 15 min gane
    Linje 9 1.4 km
    - Skansen stasjon 22 min gange
    Linje R60, R70 2 km
    - Trondheim S 8 min med bil
    Linje F6, F7, R60, R70, R71 4.8 km
    - Trondheim Værnes 37 min med bil
    Sport:
    - Ila Sandvolleyballbane 14 min gange
    - Hammersborg kunstgressbane 17 min gange
    - 3T-Ilsvika 16 min gange
    - EasyFit Ilsvika 16 min gange
    Informasjon om tilhørende skolekretser er hentet fra Prognosesenteret som dataleverandør, og tilhørigheten kan årlig endres av kommunen. Dersom skole- og barnehagetilbud er av betydning for kjøpet, ber vi om at det rettes en særskilt henvendelse til kommunen/bydelsadministrasjonen for oppdatert informasjon.

    Beskrivelse av tomt

    Eiertomt på 70.475,6 kvm som tilhører borettslaget pent opparbeidet med grus, diverse beplantninger, plenareal og biloppstillingsplasser.

    Parkering

    Borettslaget har 75 parkeringsplasser og 52 garasjeplasser. Ut over dette skjer parkering langs gateløp, og følger vanlige regler for dette. Veiene i Fagerlia er kommunale. Parkeringsplasser eller garasjer følger ikke leiligheten. Tildeling skjer etter søknad til styret, og ventelister må påregnes. Alle som har fått tildelt garasje eller parkeringsplass må benytte disse.
    Generalforsamlingen i 2022 vedtok å iverksette rivning av eksisterende garasjer i Aaengveien og etablere carportanlegg med lademuligheter, helårs sykkelparkering og verksted/vask.

    Vei, vann og avløp

    Eiendommen har adkomst via privat vei med felles vedlikeholdsansvar for borettslaget.
    Eiendommen er tilknyttet kommunalt ledningsnett via private stikkledninger. Borettslaget er ansvarlig for private stikkledninger til bygningen.

    Regulerings-og arealplaner

    Eiendommen er regulert til boligformål i henhold til reguleringsplan r0307 datert 16.11.1932 med tilhørende reguleringsbestemmelser datert 19.05.1953. Deler av eiendommen er videre avsatt til hensyn friluftsliv og LNRF-areal i kommuneplanens arealdel 2022-2034 som kan innebære begrensninger i forhold til å gjøre endringer på eiendommen.
    Utsnitt av plan med tilhørende bestemmelser kan fås ved henvendelse til megler.

    Økonomi

    Boligens kostnader

    Felleskostnadene er kr 6.189,- per måned og inkluderer:
    - Felleskostnad renter kr 669,-
    - Felleskostnad avdrag kr 191,-
    - Felleskostnad driftsdel kr 4.602,-
    - Tillegg elektroniske fellesavtaler kr 582,-
    - 4-roms veranda kr 145,-
    Felleskostnadene justeres normalt en til to ganger årlig i forhold til borettslagets faktiske utgifter.
    Nåværende eier har et strømforbruk som tilsvarer ca. kr 9.000 - 10.000,- per år.
    Boligen er tilknyttet Telia som leverandør av tv og internett og er inkludert i felleskostnadene.
    Utgiftene er basert på nåværende eiers forbruk. Kjøper må selv tegne innboforsikring.

    Formuesverdi

    Formuesverdi for 2024 var kr 960.821,- ifølge skatteetaten. Beløpet forutsetter at eier bor fast i boligen (primærbolig).
    Ved eventuell øvrig bruk av eiendommen (f.eks. fritidsbolig, pendlerbolig, utleieobjekt) var formuesverdien for 2024 kr 3.843.282,-.
    Formuesverdien justeres normalt årlig. Se skatteetaten.no for mer informasjon om fastsettelse av formuesverdien.

    Opplysninger om fellesgjeld

    Andel formue er kr 35.602,- per 31.12.2024.
    Andel fellesgjeld er kr 147.558,- per 26.11.2025.
    Total fellesgjeld for boligselskapet er kr 28.024.637,- per 26.11.2025 og lånevilkårene er:
    Lånenummer: 90517347174, Svenska Handelsbanken AB NUF
    Annuitetslån, 2 terminer per år.
    Rentesats per 26.11.2025: 5.5% pa.
    Antall terminer til innfrielse: 57
    Saldo per 26.11.2025: 28 024 637
    Andel av saldo: 147 558
    Første termin/første avdrag: 30.06.2024 ( siste termin 31.12.2053 )
    Flytende rente

    Omkostninger

    4 390 000,00 Prisantydning
    147 558,00 Andel av fellesgjeld
    --------------------------------------------------------
    4 537 558,00 Pris inkl. fellesgjeld
    Omkostninger
    8 213,00  Gebyr forhåndsavklaring forkjøpsrett
    9 950,00  Gjensidige Boligkjøperpakke (valgfri)
    545,00  Tinglysing hjemmel
    545,00  Tinglysing panterettsdokument
    --------------------------------------------------------
    19 253,00 Omkostninger totalt
    --------------------------------------------------------
    4 556 811,00 Totalpris inkl. omkostninger
    --------------------------------------------------------
    Dersom kjøper ikke er medlem av boligbyggelaget, må det påregnes en innmeldingsavgift på kr 400,- og årlig medlemsgebyr på kr 350,- per ny(e) andelseier. Dette faktureres direkte fra boligbyggelaget.
    Dersom borettslaget har fellesgjeld, vil leilighetens andel av fellesgjelden komme i tillegg til kjøpesummen. Denne gjelden skal ikke innbetales i oppgjøret, men følger leiligheten. Det tas forbehold om endringer i avgifter og gebyrer.

    Betalingsbetingelser

    Kjøpesum inkludert omkostninger, samt pantedokument tilknyttet eventuelt lån, skal være disponibelt hos megler 2 virkedager før overtagelsen.

    Annen viktig informasjon

    Eier

    Matthew James Samuel Adams og Live Bjørndal Skaar

    Informasjon om borettslaget

    Leiligheten er tilknyttet Fagerlia Hageby borettslag.
    Borettslaget består av 51 leiligheter.
    Forretningsfører er Boligbyggelaget TOBB.
    Dugnad og renhold:
    Dugnad, trappevask hver fjerde uke samt måking foran inngang når det er behov må påregnes.
    Dyrehold:
    Beboerne har adgang til å anskaffe husdyr så lenge nærmeste naboer varsles i forkant og det ikke er til ulempe for øvrige beboere. Det er eiers plikt å påse at øvrige offentlige bestemmelser for husdyrhold følges. Det må søkes til styret dersom etablering av katteluke ønskes.
    Vaktmester:
    Borettslaget har vaktmester ansatt i full stilling. Han har arbeidstid mandag til fredag fra kl. 07.00 til kl. 15.00. Arbeidsoppgaver er plenklipping, oppfølging av bygg og vedlikehold, forefallende reparasjoner og vedlikeholdsarbeid i fellesareal samt utvendig. Vaktmester utfører også snøbrøyting og strøing, med mer.
    Velforening:
    Borettslaget har en velforening, som hovedsakelig engasjerer seg med aktiviteter for de yngste beboerne. Velforeningen arrangerer for eksempel dugnad på lekeplassen, sommerfest i borettslaget, diverse aktiviteter, juletretenning og juletrefest.
    Utbygging:
    I henhold til vedtatte retningslinjer er det anledning til å bygge ut leilighetene i borettslaget. All utbygging skjer i andelseiers regi og alle kostnader bæres av andelseier. Søknad om utbygging må sendes til styret. Videre behandling av byggesak skjer gjennom arkitektfirmaet som borettslaget har avtale med, som også har tegninger og beskrivelse av muligheter og begrensninger. Alle søknader om utbygging behandles og avgjøres deretter av Trondheim kommune. Før oppstart av utbygging skal det signeres kontrakt med styret og instruks i regi av arkitekt
    Foretatte påkostninger de senere år: 
    - Det er etablert ladeplasser for elbil.
    - Utbedring av drenering.
    - Ytterkledning ble malt sommeren 2023.
    - Det er startet et arbeid med å få godkjent seksjonering av kjellere i rekkehus, slik at de tilfredsstiller brannkrav.
    Planlagte påkostninger: 
    - Det er igangsatt utskifting av balkongdører og baderomsvindu, og planlagt at det skal skiftes vindu i hele borettslaget. Videre skal fasader og tak rehabiliteres.
    - Det skal gjennomføres rørfornying. Omfang av rørfornying er kartlagt og det jobbes med utarbeidelse av anbud. Videre framdriftsplan vil kunngjøres så snart den er klar.
    Det må påregnes økning i felleskostnader i forbindelse med rehabilitering og rørfornying.
    I henhold til borettslagets vedtekter må kjøper godkjennes av styret som ny andelseier. Det er kjøpers ansvar at styregodkjenning blir gitt, men styret kan ikke nekte godkjenning uten saklig grunn. Iht. burettslagslova kan man bare eie én andel i borettslaget. Kun fysiske personer kan være andelseiere.
    Øvrige andelseiere i borettslaget og eventuelt medlemmer av boligbyggelaget har forkjøpsrett. TOBB bekrefter at 5 medlemmer har meldt interesse om å gjøre forkjøpsretten gjeldene. Dersom boligen tas på forkjøpsrett løses kjøper fra avtalen.   
    Borettslaget er tilknyttet Klare Finans AS sikringsfond som dekker manglende innbetaling av felleskostnader fra øvrige andelseiere. Varighet av avtalen / oppsigelsesvilkår: Gjensidig oppsigelsestid med 6 mnd skriftlig varsel. Etter borettslagslovens bestemmelser skal vedtak om oppsigelse av sikringen gjøres av borettslagets generalforsamling. Sikringsselskapet kan til enhver tid si opp en avtale med sikringstaker dersom sikrede ikke oppfyller de krav som er stilt.
    Dokumenter for borettslaget kan fås ved henvendelse til megler.

    Overtakelse

    Etter nærmere avtale. Overtakelse kan tidligst skje etter at forkjøpsretten for øvrige andelseiere i borettslaget og eventuelt medlemmer av boligbyggelaget er avklart, samt at styrets godkjennelse er avklart. 

    Boligselgerforsikring

    Selger har i forbindelse med salget tegnet boligselgerforsikring levert av Gjensidige.  
    Boligselgerforsikringen dekker selgers ansvar etter avhendingsloven begrenset oppad til kr 14 millioner. Dersom kjøper oppdager forhold ved eiendommen som hen mener utgjør en mangel ved eiendommen, vil Gjensidige behandle reklamasjonen på vegne av selger. Forsikringsvilkår kan fås ved henvendelse til megler.  
    Vedlagt salgsoppgaven følger selgers egenerklæringsskjema og tilstandsrapport. Interessenter må sette seg inn i dokumentene før bud inngis. 

    Boligkjøperforsikring

    Innen kontraktsmøtet må kjøper ta stilling til om det ønskes å bestille Boligkjøperpakken gjennom Gjensidige. I denne gunstige pakken er boligen ferdig forsikret og inkluderer rettshjelpsforsikring, også kalt Boligkjøperforsikring. Rettshjelpsforsikring gir trygghet og tilgang på profesjonell juridisk hjelp dersom det oppdages uventede feil eller mangler det første året etter overtagelse. Forsikringsselskapet behandler i så fall ethvert mangelskrav kjøper måtte ha overfor selger. 
    Boligkjøperpakken inkluderer bygningsforsikring for hus og hytte, innboforsikring, flytteforsikring og dobbel rentedekning - i situasjoner hvor kjøper ikke får solgt nåværende primærbolig.   
    Kjøper mottar ingen særskilt faktura for Boligkjøperpakken da kostnaden det første året legges til kjøpesummen for boligen. Det gjøres oppmerksom på Krogsveen mottar et honorar for denne formidlingen.
    Produktark for Boligkjøperpakken ligger vedlagt i salgsoppgaven.  
    Dersom ikke boligkjøperpakke ønskes kan kun rettshjelpsforsikring, også kalt boligkjøperforsikring, tegnes særskilt via megler. Rettshjelpsforsikringen varer i 5 år fra overtagelse og leveres gjennom Gjensidige. Ta kontakt med megler for ytterligere informasjon. 
    Selskap og privatpersoner som driver med kjøp/salg/utvikling som ledd i egen næringsvirksomhet kan ikke tegne boligkjøperpakke eller rettshjelpsforsikring. 

    Budgivning

    Forbrukerinformasjon om budgivning er vedlagt denne salgsoppgaven og er også på vår hjemmeside Krogsveen.no. Alle bud og budforhøyelser må inngis skriftlig. I tillegg må legitimasjon være fremlagt sammen med signatur fra budgiver.
    Vi oppfordrer til å gi bud elektronisk via GI BUD-knappen på eiendommens hjemmeside på Krogsveen.no. Da vil samtlige vilkår bli oppfylt. Eventuelle forhøyelser eller endringer av budet kan bekreftes pr SMS eller på e-post. Vi oppfordrer alltid til å kontakte megler pr. telefon i tillegg da forsinkelser i SMS og e-post kan forekomme.
    For at budene skal kunne bli behandlet og videreformidlet skriftlig til alle involverte parter, må alle bud ha en tilstrekkelig lang akseptfrist, jf. eiendomsmeglingsforskriften § 6-3.
    Selger må også skriftlig akseptere budet før aksept kan formidles til budgiver. Akseptfrist bør derfor være på minimum 30 minutter, og budforhøyelser må derfor skje i god tid før fristens utløp.
    Bud i forbrukerforhold kan uansett ikke settes med kortere frist enn kl. 12.00 første virkedag etter siste annonserte visning. I tillegg kan ikke budet ha forbehold om at det skal holdes hemmelig ovenfor øvrige interessenter. Megler har iht lov om eiendomsmegling ikke anledning til å videreformidle disse budene, og de vil dermed heller ikke bli journalført.
    Etter at eiendommen er solgt vil kjøper og selger få tilsendt budjournal. Øvrige budgivere kan få utlevert kopi av budjournalen i anonymisert form.

    Hvitvaskingsreglene

    I henhold til lov om hvitvasking og terrorfinansiering har megler plikt til å gjennomføre kontrolltiltak overfor kunder, herunder fullmektiger. Dette innebærer bl.a. å bekrefte kunders og reelle rettighetshaveres identitet på bakgrunn av fremvist gyldig legitimasjon eller på annen godkjent måte, samt å innhente opplysninger om kundeforholdets formål og tilsiktede art. Dersom slike kundetiltak ikke kan gjennomføres, kan megler ikke etablere kundeforholdet eller utføre transaksjonen.
    Hvis kjøper ikke bidrar til gjennomføring av kundekontrollen og dette fører til at transaksjonen blir forsinket eller ikke kan gjennomføres, vil dette ansees som mislighold av avtalen og gi selger rettigheter etter avhendingslova kapittel 5. I tilfeller der selger ikke bidrar til gjennomføring av løpende kundekontroll underveis i oppdraget, er det selger som misligholder sine forpliktelser etter avtalen og gi kjøper rettigheter etter avhendingslovens kapittel 4. Partene er selv ansvarlige for eventuelle kostnader og ansvar dette kan medføre. Eiendomsmegleren eller eiendomsmeglingsforetaket kan ikke holdes ansvarlig for de konsekvenser dette vil kunne få for partene eller andre som har interesser i eiendomshandelen.
    Kjøper oppfordres til å innbetale kjøpesummen som ikke kommer fra låneinstitusjon i én samlet innbetaling fra egen konto i norsk bank. Megler har plikt til å melde fra til Økokrim om eiendomshandler som fremstår som mistenkelige. Melding sendes Økokrim uten at partene varsles. 

    Personopplysningsloven

    I henhold til personopplysningsloven gjør vi oppmerksom på at interessenter kan bli registrert for videre oppfølging.

    Lovanvendelse

    Generelle bestemmelser
    Salgsoppgaven er basert på de opplysningene selger har gitt til megler, den bygningssakyndiges tilstandsrapport, samt opplysninger innhentet fra kommunen, Kartverket og andre tilgjengelige kilder. Det er viktig at kjøper setter seg grundig inn i alle salgsdokumentene, herunder salgsoppgave, tilstandsrapport og selgers egenerklæring. Kjøper anses kjent med forhold som er tydelig beskrevet i salgsdokumentene, og slike forhold kan ikke påberopes som mangler. Dette gjelder uavhengig av om kjøper har lest dokumentene. Alle interessenter oppfordres til å undersøke eiendommen nøye, gjerne sammen med fagkyndig før bud inngis. Kjøper som velger å kjøpe usett kan ikke gjøre gjeldende som mangel noe han burde blitt kjent med ved undersøkelsen. 
    Dersom det er behov for avklaringer, anbefaler vi at interessenter rådfører seg med eiendomsmegler eller egne rådgivere før det legges inn bud.
    En bolig som har blitt brukt i en viss tid, har vanligvis blitt utsatt for slitasje og skader kan ha oppstått. Slik bruksslitasje må kjøper regne med, og det kan avdekkes enkelte forhold etter overtakelse som nødvendiggjør utbedringer. Normal slitasje og skader som nødvendiggjør utbedring, er innenfor hva kjøper må forvente og vil ikke utgjøre en mangel.
    Kjøper og selgers rettigheter og plikter reguleres av avtalen mellom partene, samt informasjonen som har vært tilgjengelig for kjøperen i forbindelse med handelen. Avtalen utfylles av avhendingsloven, og det gjelder ulike avtalevilkår avhengig av om kjøper er forbrukerkjøper eller ikke.  Dette er nærmere beskrevet nedenfor. 
    På grunn av ulike avtalevilkår kan selger vurdere bud fra en som ikke er forbruker, ulikt fra en forbrukers bud. Dersom kjøper ikke er forbruker, er selger sitt mulige mangelsansvar begrenset fordi eiendommen selges "som den er".  Selger kan ikke ta «som den er»- forbehold overfor en forbrukerkjøper. Selv et lavere bud fra en som ikke er forbruker kan foretrekkes fordi begrensningen i mulig mangelsansvar kan ha egenverdi for selger. Selger står fritt til å forkaste eller akseptere ethvert bud, og er for eksempel ikke forpliktet til å akseptere høyeste bud.
    Budgiver skal i budskjema avgi egenerklæring om budgiver er forbruker eller næringsdrivende/ person som hovedsakelig handler som ledd i næringsvirksomhet. Budgivere får informasjon dersom andre bud er inngitt av en som ikke er forbruker. 
    Forbrukerkjøp - definisjon
    Med forbrukerkjøp menes kjøp av eiendom når kjøperen er en fysisk person som ikke hovedsakelig handler som ledd i næringsvirksomhet.
    Forbruker – avtalevilkår
    Eiendommen har en mangel dersom den ikke er i samsvar med kravene som følger av avtalen, eller det foreligger brudd på bestemmelsene i avhendingsloven §§ 3-2 til 3-8. Hvis eiendommen ikke er i samsvar med det kjøperen må kunne forvente ut ifra alder, type og synlig tilstand, kan det være grunnlag for mangelskrav. Det samme gjelder hvis det er holdt tilbake eller gitt uriktige opplysninger om eiendommen. Dette gjelder likevel bare dersom man kan gå ut ifra at det virket inn på avtalen at opplysningen ikke ble gitt eller at mangelskravet ikke blir rettet i tide på en tydelig måte.
    Boligen kan ha en mangel etter avhendingsloven § 3-3 andre ledd, dersom det er avvik mellom opplyst og faktisk innvendig areal, forutsatt at avviket er på 2% eller mer og minimum 1 kvm.
    Ved beregning av et eventuelt prisavslag eller erstatning må kjøper selv dekke tap/kostnader opptil et beløp på kr 10 000 (egenandel).
    Ikke-forbruker (næringsdrivende) – definisjon 
    Hvis kjøper er en juridisk person, eller en fysisk person som hovedsakelig handler som ledd i næringsvirksomhet, vil kjøpet ikke anses som et forbrukerkjøp. 
    Ikke-forbruker – avtalevilkår
    Eiendommen har en mangel dersom den ikke er i samsvar med kravene som følger av avtalen.
    Eiendommen selges «som den er», og selgers ansvar utover det konkret avtalte er da begrenset etter avhendingsloven § 3-9, første ledd andre setning. 
    Avhendingsloven § 3-3 andre ledd fravikes, og hvorvidt boligens arealsvikt utgjør en mangel vurderes etter avhendingsloven § 3-8. 
    Informasjon om kjøpers undersøkelsesplikt, herunder oppfordringen om å undersøke eiendommen nøye, gjelder også for kjøpere som ikke anses som forbrukere.
    Det forutsettes at hjemmel overføres til kjøper. Hvis kjøper ikke ønsker hjemmelsoverføring av eiendommen, må det tas forbehold om dette i budet.

    Meglers vederlag

    Meglers vederlag betales av selger og er avtalt til:
    - Vederlag: 0,80 % av salgssummen inkl. eventuell fellesgjeld.
    Vederlag:
    - Kontroll av hjemmel og heftelser kr 2.900,-
    - Kunderabatt kr 10.000,-
    - Markedsføringspakke inkl. interiørveileder kr 27.400,-
    - Oppgjør kr 7.500,-
    - Tilrettelegging kr 17.000,-
    - Visninger pr stk / Overtagelse kr 1.900,-
    Utlegg:
    - Eierskiftegebyr TOBB kr 6.570,-
    - Offentlig opplysninger Trondheim kommune kr 2.368,-
    - Meglerpakke TOBB kr 4.525,-
    - Tinglysing sikring kr 545,-
    Andre utgifter:
    - Anticimex tilstandsrapport leilighet kr 10.750,-
    - Boligselgerforsikring (regnes av prisantydning) kr 11.809,10,-
    - Foto kr 4.950,-
    Vi er opptatt av verdiskapning, og har knyttet til oss samarbeidspartnere som skal sikre våre kunder de beste produkter og tjenester:
    - I forbindelse med forberedelse av salget, innhenter vi informasjon om eiendommen hovedsakelig fra vår samarbeidspartner Amibita.
    - Gjensidige leverer boligselgerforsikring og tilbyr bygningsforsikring.
    - Boligkjøperforsikring leveres av Hiscox og med Sedgwick som skadebehandler, og er formidlet gjennom Gjensidige.
    - BN bank tilbyr finansieringsløsninger.
    -  Vår avdeling Krogsveen Pluss tilbyr flyttetjenester som utvask, visningsvask, lager, tømming og transport av flyttelass, i tillegg til å formidle kontakt med Flip for overflateoppussing.
    - I forbindelse med overtagelse av eiendommen tilbyr Overo avtale om strøm, alarm og bredbånd.
    - Krogsveen er, sammen med øvrige bransjeaktører, medeier i den digitale annonseringsplattformen Hjem som eies av Bomega AS. 

    Opplysninger om oppdraget

    Oppdragsnummer 68-0143/25
    Eiendomsmegler Krogsveen AS, avd. Trondheim
    Fjordgata 82, 7010, TRONDHEIM
    950 007 613
    Oppdragets KR-kode KR68.25143

    Dato

    Sist oppdatert: 27. desember 2025 kl. 22:51

    Dokumenter

    Utskriftsvennlig salgsoppgave

    Område

    Legg til steder som er viktige for deg

    Prisutvikling for området

    Kvadratmeterpris
    0 kr/m²
    Endring
    ↘︎ % ()

    Visning

    For å delta på visning, ber vi om at du melder deg på. Da sikrer vi at du får nødvendig informasjon og at det er satt av tilstrekkelig med tid. Kontakt megler dersom annet tidspunkt ønskes. Husk å lese salgsoppgaven før visningen, så du stiller forberedt.
    Ønsker du kun å bli holdt orientert, kan du fra eiendommens hjemmeside få varsel om solgtpris, eller kontakte megler.
    Lurer du på noe?

    Vil du varsles om lignende boliger?

    Ved å lagre ditt boligsøk hos oss får du beskjed når vi har en bolig som ligner denne, før den legges ut på markedet!

    På flyttefot? Slik gjør vi det enklere for deg

    Skreddersydd flyttepakke

    Vi fikser håndverkere, vask, pakking, lagring og transport, og legger ut for utgiftene underveis.

    Hjelp med både kjøp og salg

    Hos oss har du din egen rådgiver gjennom hele kjøps- og salgsprosessen.

    Hjelp til finansiering

    Vårt samarbeid med BN Bank sikrer deg rask og løsningsorientert hjelp, til konkurransedyktige betingelser.