Kjerkevegen 11B
3 090 000 kr
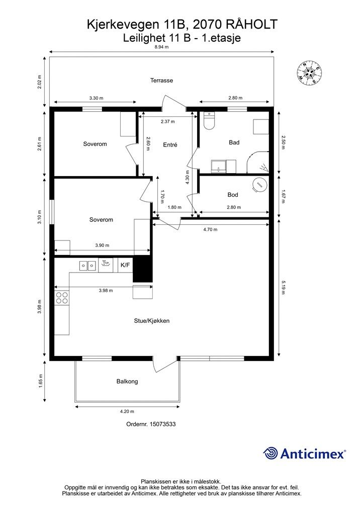
83 m²
2 soverom
Solgt

Stor og gjennomgående 3-roms eierleilighet i 2. etasje med trappefri adkomst | Kort vei til sentrum og servicetilbud |
Prisantydning
3 090 000 krOmkostninger
88 290 krTotalpris
3 178 290 kr
Pris
Bruksareal
88 m²BRA-I (internt bruksareal)
83 m²BRA-E (eksternt bruksareal)
5 m²TBA (terrasse-balkongareal)
25 m²
Areal
Etasje
2Byggeår
1996Soverom
2 soveromBad
1 badType
EierleilighetEierform
EierseksjonFasiliteter
Balkong/TerrasseFellesutgifter
1 000 krEnergimerke
Gul E
Nøkkelinfo
Unngå doble boligrenter
Vi tilbyr gunstig forsikring.
Vurderer du utleie?
Få et tilbud fra Utleie KrogsveenHva koster lånet?
Sjekk estimert lånekostnadBeskrivelse
Kort om eiendommen
Stor og innholdsrik 3-roms eierleilighet som ligger i byggets 2. etasje og har inngang fra bakkeplan. Leiligheten holder en normalt god standard med stort potensial. Videre er leiligheten gjennomgående med store og gode rom, mye naturlig lys og god romfølelse. Fra stuen er et direkte utgang til balkong på 7 kvm. med gode solforhold.
Leiligheten har en rolig og tilbaketrukket beliggenhet med nærhet til Råholt sentrum. Her bor du sentralt og tilbaketrukket, men samtidig kort vei til mye. Gangavstand til barne- og ungdomsskole. Leiligheten ligger kun ca. 400 m unna nærmeste busstopp og kort vei til Eidsvoll Verk togstasjon med avhang hver halvtime mot OSL og Oslo S.
Montert luft-til-luft varmepumpe. Godt med oppbevaringplass i innvendig bod på ca. 5 kvm.
Husk å melde deg på visning!
Område
Legg til steder som er viktige for deg
På flyttefot? Tenk kjøp og salg samtidig.
Få din egen rådgiver gjennom hele kjøps- og salgsprosessen. Det starter med en verdivurdering.
Unngå doble boligrenter
Vi tilbyr gunstig forsikring.
Vurderer du utleie?
Få et tilbud fra Utleie KrogsveenHva koster lånet?
Sjekk estimert lånekostnadVil du varsles om lignende boliger?
Ved å lagre ditt boligsøk hos oss får du beskjed når vi har en bolig som ligner denne, før den legges ut på markedet!

