Sandbakken 7, 8, 9, 11, 12, 13, 15, 16, 22, 24
32 000 000 kr
339 m²
Komplett salgsoppgave
Sandvigen feriehjem
Naturskjønn, fredfylt idyll i Nordre Frogn med strandlinje og fjordutsikt. Dels fredet, dels med utviklingspotensial.
Prisantydning
32 000 000 krOmkostninger
814 740 krTotalpris
32 814 740 kr
Pris
Bruksareal
487 m²BRA-I (internt bruksareal)
339 m²BRA-E (eksternt bruksareal)
148 m²TBA (terrasse-balkongareal)
38 m²
Areal
Tomteareal
73 154 m² (eiet)Type
Fritidseiendom ved sjøenEierform
Eiet
Nøkkelinfo
Vurderer du utleie?
Få et tilbud fra Utleie KrogsveenHva koster lånet?
Sjekk estimert lånekostnadBeskrivelse
Kort om eiendommen
Innhold og byggemåte
Innhold og byggemåte
Eiendommen
Sandbakken 7, 8, 9, 11, 12, 13, 15, 16, 22, 24 , 1455 NORDRE FROGN
Kommunenummer 3214, gårdsnummer 58, bruksnummer 3, ideell andel 1/1
Innhold
Totalt bruksareal BRA: 487 kvm
BRA-i (internt bruksareal)
Hytte 1:
1. etasje 30 kvm: Vindfang, stue og kjøkken.
Hytte 2:
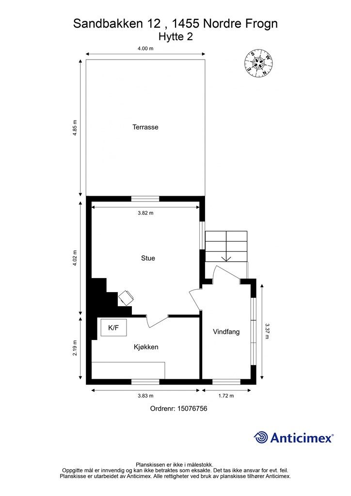
1. etasje 30 kvm: Vindfang, stue og kjøkken.
Hytte 3:
1. etasje 30 kvm: Vindfang, stue og kjøkken.
Hytte 4 og 5:
1. etasje 64 kvm: To vindfang, to stuer og to kjøkken.
Hytte 6:
1. etasje 46 kvm: Vindfang, stue, kjøkken og soverom.
Hytte 7:
1. etasje 30 kvm: Vindfang, stue, kjøkken og kott.
Hytte 8:
1. etasje 30 kvm: Vindfang, stue, kjøkken og kott.
Hytte 9:
1. etasje 30 kvm: Vindfang, stue, kjøkken og kott.
Våningshus:
1. etasje 49 kvm: Vindfang, stue, kjøkken, soverom og bod.
BRA-e (eksternt bruksareal)
Båthus:
1. etasje 72 kvm: Båthus.
Hytte 1 - Utedo:
1. etasje 1 kvm: Utedo.
Hytte 2 - Bod med utedo:
1. etasje 6 kvm: Bod og utedo.
Hytte 3 - Bod med utedo:
1. etasje 6 kvm: Bod og utedo.
Hytte 6 - Utedo:
1. etasje 3 kvm: Utedo.
Hytte 7:
1. etasje 1 kvm: Utedo med tilstøtende vegg.
Hytte 8 - Utedo:
1. etasje 3 kvm: Utedo.
Hytte 9 - Utedo:
1. etasje 1 kvm: Utedo.
Låve:
1. etasje 38 kvm: Låve.
Uthus:
1. etasje 13 kvm: Uthus.
Våningshus - Utedo:
1. etasje 4 kvm: Utedo.
TBA (terrasse- og balkongareal)
Hytte 2:
1. etasje 19 kvm: Terrasse.
Hytte 4 og 5:
1. etasje 5 kvm: Terrasse.
Hytte 6:
1. etasje 14 kvm: Terrasse.
Bygningssakkyndiges kommentar til arealoppmåling:
Hytte 4 og 5: To utedoer oppmålt til 1 kvm og 2 kvm. Arealet på utedoer måles til totalt 3 kvm (ALH), men grunnet lav takhøyde er ingen deler av arealet måleverdig som bruksareal.
Hytte 7: Arealet på hems måles til 9 kvm (ALH), men grunnet lav takhøyde er ingen deler av arealet måleverdig som bruksareal.
Hytte 8: Arealet på hems måles til 9 kvm (ALH), men grunnet lav takhøyde er ingen deler av arealet måleverdig som bruksareal.
Hytte 9: Arealet på hems måles til 9 kvm (ALH), men grunnet lav takhøyde er ingen deler av arealet måleverdig som bruksareal.
Det gjøres oppmerksom på at NS3940:2023 i utgangspunktet krever at en boenhet innehar alle hovedfunksjoner (stue, kjøkken, soverom, bad og toalett) for å kunne klassifiseres som internt bruksareal/BRA-i. Arealet i bruksenhetens er likevel vurdert til å være en boenhet (BRA-i) selv om enkelte av hovedfunksjonene ikke er oppfylt (bad og toalett er ikke etablert). Det presiseres at vurderingen er en klar skjønnsvurdering, og baseres på tolkninger og observasjoner gjort på befaringsdagen.
De oppgitte arealer er hentet fra rapport med befaringsdato 27/28/29.10.2025 utført av Ståle Gran Skøien. Arealene er beregnet og rom er definert etter dagens faktiske bruk, uavhengig av hva som er godkjent av bygningsmyndighetene.
Byggemåte
Selger har fått utarbeidet tilstandsrapport for bygningene, dvs. en teknisk gjennomgang av boligene hvor eventuelle avvik, risiko for kjøper og prisoverslag for hva som bør gjøres av oppgradering, er skissert. Se særskilt TGIU (tilstandsgrad ikke undersøkt), samt TG2 og TG3 som viser hva som er boligenes normale slitasje, alder og type, hva som er avvik fra dette og hva som bør/må utbedres. Rapportene og selgers egenerklæring er en del av salgsoppgaven og må leses nøye før bud inngis. Kjøper overtar ansvaret for de opplysninger som fremkommer av salgsdokumentasjonen, og kan ikke gjøre gjeldende som mangel noe som burde vært kjent eller som ikke kan anses å ha betydning for avtalen.
Hytte 1 fra ca. 1932 - Byggemåte iht. tilstandsrapporten: Fritidsboligen har grunnmur, bærende konstruksjoner og skillende dekker av sparesteinsmur og trekonstruksjoner. Fasader utført i lafteplank. Yttertak av saltaksform i trekonstruksjoner utvendig tekket med takpapp. Yttertaktekking vurdert til å være fra ca. 2013/2014. Ytterdør med karm av tre fra ukjent årstall. Vinduer med karmer av tre i 1-lags glass fra byggeår. Frittliggende terrasser oppmålt til 23 kvm. Terrassen er belagt med terrassebord. Utedo i trekonstruksjoner.
Oppsummering av tilstandsgrader for hytte 1: 0% TG1, 87% TG2, 5% TG3 og 8% TGIU.
Hytte 2 fra ca. 1932 - Byggemåte iht. tilstandsrapporten: Fritidsboligen har grunnmur, bærende konstruksjoner og skillende dekker av sparesteinsmur og trekonstruksjoner. Fasader utført i lafteplank. Yttertak av saltaksform i trekonstruksjoner utvendig tekket med takpapp. Yttertaktekking vurdert til å være fra ca. 2013. Ytterdør med karm av tre fra ukjent årstall. Vinduer med karmer av tre i 1-lags glass fra byggeår. Tilliggende terrasse oppmålt til 19 kvm. Terrassen er belagt med terrassebord. Frittstående bod med utedo i trekonstruksjoner.
Oppsummering av tilstandsgrader for hytte 2: 2% TG1, 82% TG2, 9% TG3 og 7% TGIU.
Hytte 3 fra ca. 1932 - Byggemåte iht. tilstandsrapporten: Fritidsboligen har grunnmur, bærende konstruksjoner og skillende dekker av sparesteinsmur og trekonstruksjoner. Fasader utført i lafteplank. Yttertak av saltaksform i trekonstruksjoner utvendig tekket med takpapp. Yttertaktekking vurdert til å være fra ca. 2023. Ytterdør med karm av tre fra ukjent årstall. Vinduer med karmer av tre i 1-lags glass fra byggeår. Frittstående bod med utedo i trekonstruksjoner.
Oppsummering av tilstandsgrader for hytte 3: 0% TG1, 75% TG2, 3% TG3 og 22% TGIU.
Hytte 4 og 5 fra ca. 1932 - Byggemåte iht. tilstandsrapporten: Fritidsboligene har grunnmur, bærende konstruksjoner og skillende dekker av sparesteinsmur og trekonstruksjoner. Fasader utført i liggende trepanel. Yttertak av saltaksform i trekonstruksjoner utvendig tekket med takpapp. Yttertaktekking vurdert til å være fra 2021/2022. Ytterdører med karmer av tre fra ukjent årstall. Vinduer med karmer av tre i 1-lags glass fra byggeår. Tilliggende terrasse oppmålt til 5 kvm. Frittliggende terrasser oppmålt til 19 kvm. Terrassene er belagt med terrassebord. Frittstående utedoer i trekonstruksjoner.
Oppsummering av tilstandsgrader for hytte 4 og 5: 6% TG1, 75% TG2, 3% TG3 og 16% TGIU.
Hytte 6 fra ca. 1963 - Byggemåte iht. tilstandsrapporten: Fritidsboligen har grunnmur, bærende konstruksjoner og skillende dekker av sparesteinsmur og trekonstruksjoner. Fasader utført i liggende trepanel. Yttertak av saltaksform i trekonstruksjoner utvendig tekket med shingel. Ytterdør med karm av tre fra ukjent årstall. Vinduer med karmer av tre i 1-lags glass fra byggeår samt plexiglass. Tilliggende terrasse oppmålt til 14 kvm. Terrassen er belagt med terrassebord og har rekkverk/levegg av tre. Utedo i trekonstruksjoner.
Oppsummering av tilstandsgrader for hytte 6: 2% TG1, 75% TG2, 16% TG3 og 7% TGIU.
Hytte 7 fra ca. 1937 - Byggemåte iht. tilstandsrapporten: Fritidsboligen har grunnmur, bærende konstruksjoner og skillende dekker av sparesteinsmur og trekonstruksjoner. Fasader utført i lafteplank. Yttertak av saltaksform i trekonstruksjoner utvendig tekket med takpapp. Yttertaktekking vurdert til å være fra 2010/2011. Ytterdør med karm av tre fra ukjent årstall. Vinduer med karmer av tre i 1-lags glass fra byggeår. Frittliggende terrasse er oppmålt til 12 kvm. Terrassen er belagt med terrassebord. Utedo i trekonstruksjoner.
Oppsummering av tilstandsgrader for hytte 7: 3% TG1, 92% TG2, 0% TG3 og 5% TGIU.
Hytte 8 fra ca. 1937 - Byggemåte iht. tilstandsrapporten: Fritidsboligen har grunnmur, bærende konstruksjoner og skillende dekker av sparesteinsmur og trekonstruksjoner. Fasader utført i lafteplank. Yttertak av saltaksform i trekonstruksjoner utvendig tekket med takpapp. Ytterdør med karm av tre fra ukjent årstall. Vinduer med karmer av tre i 1-lags glass fra byggeår. Frittliggende terrasser oppmålt til 19 kvm. Terrassen er belagt med terrassebord. Frittstående utedo i trekonstruksjoner.
Oppsummering av tilstandsgrader for hytte 8: 0% TG1, 69% TG2, 3% TG3 og 28% TGIU.
Hytte 9 fra ca. 1937 - Byggemåte iht. tilstandsrapporten: Fritidsboligen har grunnmur, bærende konstruksjoner og skillende dekker av sparesteinsmur og trekonstruksjoner. Fasader utført i lafteplank. Yttertak av saltaksform i trekonstruksjoner utvendig tekket med takpapp. Ytterdør med karm av tre fra ukjent årstall. Vinduer med karmer av tre i 1-lags glass fra byggeår. Frittliggende terrasser oppmålt til 13 kvm. Terrassen er belagt med terrassebord. Frittstående utedo i trekonstruksjoner.
Oppsummering av tilstandsgrader for hytte 9: 0% TG1, 68% TG2, 5% TG3 og 27% TGIU.
Våningshus, låve, uthus og båthus (ukjent byggeår) - Byggemåte iht. tilstandsrapporten: Våningshuset har grunnmur, bærende konstruksjoner og skillende dekker av naturstein samt betongkonstruksjoner og trekonstruksjoner. Fasader utført i stående trepanel. Yttertak av saltaksform i trekonstruksjoner utvendig tekket med takstein (taket er inspisert fra bakkeplan samt toppen av stige). er vurdert til å være fra ca. 2009. Ytterdør med karm av tre fra ukjent årstall. Plassbygd dør til krypekjeller. Vinduer med karmer av tre i 1-lags glass fra byggeår. Frittliggende delvis takoverbygget terrasse oppmålt til 25 kvm. Terrassen er belagt med terrassebord. Frittstående utedo i trekonstruksjoner.
Låve i tømmerkonstruksjoner. Fasader delvis i stående trepanel. Søylefundamenter av naturstein. Yttertak av saltaksform i trekonstruksjoner utvendig tekket med takstein.
Frittstående uthus i trekonstruksjoner. Fasader utført i liggende trepanel. Yttertak av pulttaksform i trekonstruksjoner utvendig tekket med takplater.
Båthus i tre- og betongkonstruksjoner. Fasader utført i stående trepanel. Yttertak av saltaksform/pulttaksform i trekonstruksjoner utvendig tekket med takstein. Plassbygde dører.
Oppsummering av tilstandsgrader for våningshus, låve, uthus og båthus: 2% TG1, 39% TG2, 53% TG3 og 6% TGIU.
I rapportene fremkommer det som takstmannen mener kjøper må være særskilt oppmerksom på, dette gjelder blant annet (se utfyllende tekst i rapportene):
Hytte 1:
- Øvrige rom, TG3: Det registreres råteskader ved skorstein. Det ble registrert forhøyede fuktverdier. Det ble i tillegg konstatert fuktskader i konstruksjonen.
- Frittstående byggverk (utedo), TG3: Vesentlig slitasje, feil og mangler påvist, eksempelvis fukt- og råteskader.
Hytte 2:
- Øvrige rom, TG3: Fukt- og råteskader påvist i himling skorstein. Bakenforliggende skader kan ikke utelukkes. Det ble registrert forhøyede fuktverdier. Det ble i tillegg konstatert fuktskader i konstruksjonen.
- Yttervegger inkl. fasader og konstruksjon, TG3: Lafteplank på baksiden av fritidsboligen er stedvis råteskadet.
- Frittstående byggverk (bod med utedo), TG3: Vesentlig slitasje, feil og mangler påvist, eksempelvis fukt- og råteskader.
Hytte 3:
- Frittstående byggverk (bod med utedo), TG3: Vesentlig slitasje, feil og mangler påvist, eksempelvis fukt- og råteskader.
Hytte 4 og 5:
- Grunnmur og fundamenter, TG3: Det registreres større avskallinger av mur/murpuss på baksiden av fritidsboligen.
- Frittstående byggverk (utedoer), TG3: Vesentlig slitasje, feil og mangler påvist, eksempelvis fukt- og råteskader.
Hytte 6:
- Øvrige rom, TG3: Fuktmerker/skader påvist i himling ved skorstein i soverom og kjøkken. Det ble registrert forhøyede fuktverdier.
- Krypkjeller, TG3: Det er observert omfattende fuktproblematikk med påfølgende råteskader i krypkjelleren. Konstruksjonen har feil oppbygning.
- Loft (uinnredet/råloft), TG3: Det er ikke tilkomst for inspeksjon av uinnredet loft. Det er ikke kjent hvordan oppbyggingen er utført. Det er observert skader/symptomer på skader ved skorstein (innvendig side). Det ble registrert forhøyede fuktverdier.
- Dører og vinduer, TG3: Vinduer bærer preg av høy slitasjegrad. Stedvis råteskader.
- Frittstående byggverk (utedo), TG3: Vesentlig slitasje, feil og mangler påvist, eksempelvis fukt- og råteskader.
Hytte 8:
- Yttervegger inkl. fasader og konstruksjon, TG3: Bunnstokk på baksiden av fritidsboligen har råteskader.
Hytte 9:
- Yttervegger inkl. fasader og konstruksjon, TG3: Bunnstokk på baksiden av fritidsboligen har råteskader. Lafteknuter er stedvis råteskadet.
- Frittstående byggverk (utedo), TG3: Vesentlig slitasje, feil og mangler påvist, eksempelvis fukt- og råteskader.
Våningshus, låve, uthus og båthus:
- Kjøkken, TG3: TG3 er valgt på hele kjøkkenet på grunn av høy alder og/eller slitasjegrad. Det er vurdert til å være krypekjeller uten tilkomst under kjøkken. Det registreres svikt i gulv noe som kan indikere råte/skader i konstruksjonen/etasjeskiller.
- Loft (uinnredet/råloft), TG3: Kaldtloftets tilstand sett i sammenheng med alder og tilstand på yttertaket tilsier at oppgradering må påregnes.
- Yttervegger inkl. fasader og konstruksjon, TG3: Yttervegger/fasader i sin helhet har stort etterslep på vedlikehold, med påviste skader/råteskader og skjevheter som må utbedres.
- Yttertak, TG3: Taktekkingen bærer preg av høy alder og høy slitasje. Det er påvist utettheter/skader på yttertaktekkingen/takstein. Stedvis manglende renner, nedløp og beslag (fare for råteskader). Det registreres fuktmerker/råte i gesimskasse/takutstikk. Deler av undertaktekkingen bærer preg av ufagmessig utførelse med den risiko dette innebærer. Det registreres stedvis svanker/nedbøyninger i takkonstruksjonen. Skorsteinen bærer preg av høy alder og slitasje. Det registreres at skorsteinen er lavere enn anbefalt høyde over tak. Taktekkingen og tilhørende bygningsdeler må fornyes.
- Grunnmur og fundamenter, TG3: Det registreres omfattende riss/sprekkdannelser samt avskallinger på grunnmur.
- Frittstående byggverk (låve), TG3: Vesentlig slitasje, feil og mangler påvist. Det registreres blant annet følgende avvik: Søylefundamenter har store skjevheter. Yttervegger bærer preg av høy alder og slitasjegrad. Det registreres råteskader på tømmerstokker og kledning. Yttertaket bærer preg av høy alder og høy slitasje. Det er påvist utettheter/råteskader. Det registreres svanker/nedbøyninger i takkonstruksjon.
- Frittstående byggverk (uthus), TG3: Vesentlig slitasje, feil og mangler påvist, eksempelvis råteskader. Det registreres i tillegg blant annet følgende avvik: Bygningen har sot og brannskader på innside og utside. Det registreres fuktskader i himling. Det er skjevheter/svanker i gulv.
- Frittstående byggverk (utedo), TG3: Vesentlig slitasje, feil og mangler påvist, eksempelvis fukt- og råteskader.
- Frittstående byggverk (båthus), TG3: Vesentlig slitasje, feil og mangler påvist. Det registreres i tillegg blant annet følgende avvik: Pussavskalling av stort omfang er observert flere steder på grunnmur, samt forvitring på søylefundamenter. Store synlige deformasjoner/sprekker i grunnmur er observert, kan skyldes jordtrykk. Det er registrert råteskader på tak- og veggkonstruksjonen samt fasader. Taktekkingen bærer preg av høy alder og høy slitasje. Det er påvist omfattende utettheter/skader på yttertaktekkingen/takstein.
Ovennevnte er kun et utdrag av TG3-punkter fra alle rapportene til hytte 1-9, våningshus, låve, uthus og båthus. Se supplerende tekst i tilstandsrapportene for mer informasjon. For øvrige tilstandsgrader og tilstandsgrader grunnet alder og evt. slitasje, så henvises det til rapportene. Kjøper overtar ansvar og risiko for dette.
Selger opplyser om påvist stokkmaur i hytte 3, 8 og 9. Kjøper overtar ansvar og risiko for dette.
Standard
For detaljert beskrivelse av bygningsmassens standard og tilstand, se tilstandsrapport som er utarbeidet for våningshuset og alle hytter samt øvrige frittstående bygninger.
Løsøre og tilbehør
Hvitevarer på kjøkkenene i hyttene (foruten hytte 3) medfølger i handelen.
Enkelte hytter har køyesenger som ikke medfølger i handelen.
Videre vises det til liste fra Norges Eiendomsmeglerforbund angående løsøre og tilbehør. Produkter og installasjoner som medfølger overdras uten noen form for garantier, utover eventuell gjenværende leverandørgaranti.
Oppvarming
Hytte 1: Boligen er basert på elektrisk oppvarming.
Hytte 2: Ildsted i stue. Videre er boligen basert på elektrisk oppvarming.
Hytte 3: Ildsted i stue. Videre er boligen basert på elektrisk oppvarming.
Hytte 4 og 5: Ildsted i hver stue. Videre er boligene basert på elektrisk oppvarming.
Hytte 6: Ildsted i stue. Videre er boligen basert på elektrisk oppvarming.
Hytte 7: Boligen er basert på elektrisk oppvarming. Ildstedet er ikke tilkoblet skorsteinen.
Hytte 8: Boligen er basert på elektrisk oppvarming. Ildstedet er ikke tilkoblet skorsteinen.
Hytte 9: Boligen er basert på elektrisk oppvarming.
Våningshus: Ildsted i stue. Videre er boligen basert på elektrisk oppvarming.
Alle hyttene med ildsteder har fyringsforbud.
Dersom det ikke er vegg- eller fastmonterte varmekilder i rom ved visning, følger dette heller ikke med.
Ferdigattest/brukstillatelse
Iht. fredningsvedtaket utstedt fra Riksantikvaren, anføres det at feriehjemmet ble bygd i 1930-åra rundt et lite gårdsbruk. Eiendommen bestod av i alt 9 hytter og båthus, i tillegg til det opprinnelige våningshuset og uthuset på bruket jf. vedtak fra Riksantikvaren i 1996. Hyttene ble oppført i to etapper, hvorav hytte nr. 1-3 og 4/5 ble bygget i 1932 og hytte nr. 7-9 ble bygd i 1937. Hytte nr. 6 ble bygd i 1963.
Megler anfører at det ikke foreligger ferdigattest, midlertidig brukstillatelse eller godkjente byggetegninger på bygningene i kommunens arkiv (foruten hytte nr. 6), av den grunn finnes det ikke dokumentasjon over bygningenes lovlighet. Det er da usikkert om bygningene er byggemeldt og om rom for varig opphold er bruksendret/omsøkt samt godkjent av kommunen. Kjøper overtar risiko og ansvaret for eventuelle pålegg fra kommunen samt kostnader forbundet med dette.
Hytte nr. 6 ble søkt og godkjent med byggetillatelse datert 27.03.1963 samt godkjente byggetegninger fra 1963. Ifbm. søknad om hytta ble det gitt restriksjoner om utslagsvask og/eller sanitære anlegg. Tiltaket ble ikke ferdigstilt med ferdigattest.
Det gjøres oppmerksom at det ikke lenger utstedes ferdigattest på tiltak det er søkt om før 1998 jf. plan- og bygningsloven §21-10. Kommunen vil ikke kreve ferdigattest for disse tiltakene og vil avvise eventuelle søknader. Bestemmelsen innebærer ikke at tiltak med manglende søknad blir lovlige, men at man ikke trenger å avslutte gamle byggesaker. Normalt sett kreves ferdigattest for alle søknadspliktige tiltak som gjøres etter plan - og bygningsloven.
Hytte 4 og 5: Iht. tilstandsrapporten er det avdekket forhold som tyder på at deler av fritidsboligene ikke ser ut til å være delt opp med brannskillende konstruksjoner etter kravene i dagens byggtekniske forskrift. I tillegg er det registrert utettheter/åpninger mellom enhetene på loft. Kjøper overtar alt ansvar og risiko for dette videre.
Kjøper overtar eiendommen slik den framstår på visning.
Tinglyste heftelser og rettigheter
Eiendommen overdras fri for pengeheftelser.
Dagboknummer: 900187
Tinglysningsdato: 20.01.1932
Servitutten omhandler: Erklæring om at eiendommen skal holdes i forsvarlig stand. Foreningen skal garantere at foreningens medlemmer o.l., ikke skal være påføre kommunen noen byrder.
Dagboknummer: 900009
Tinglysningsdato: 03.02.1932
Servitutten omhandler: Personlig rett til å bebo et hus på eiendommen uten vederlag m.m.. Servitutten vil bli slettet før overtagelse, da bestemmelsene ikke lenger er gjeldende/relevant.
Dagboknummer: 1894
Tinglysningsdato: 03.04.1963
Servitutten omhandler: Ifbm. oppføring av våningshus på eiendommen ble det erklært at bygningen ikke skal installeres med utslagsvask og/eller sanitære anlegg. Restriksjonen ble gitt som vilkår for byggetillatelsen. Erklæringen hadde bindende virkning for daværende hjemmelshaver og for senere eiere av eiendommen.
Dagboknummer: 9614
Tinglysningsdato: 29.11.1996
Servitutten omhandler: Riksantikvaren har vedtatt fredning av Brannmennens feriehjem. Det tinglyste dokumentet omfatter fredningens omfang, formålet med fredningen, Brannmennenes feriehjem som kulturminne - beskrivelse av anlegget, fredningsbestemmelser og følger av fredningen.
Dagboknummer: 2712
Tinglysningsdato: 17.11.1937
Servitutten omhandler: Overenskomst mellom eierne av d.e. og hus. 2 ang. rett for d.e. til vei over gnr. 2 m.v. Rettigheten hefter i gnr. 58/bnr. 2.
Servituttene vil følge eiendommen. Kjøpers bank vil få pant etter ovennevnte heftelser og servitutter som ikke skal slettes ved overdragelse.
Det opplyses at naboeiendommen, Åstvedtveien 15 (G.nr. 58, Br.nr. 99), har hevdet rett til adkomst og parkering rett etter bommen, på venstre side.
Eventuell adgang til utleie
Det vil normalt være anledning til utleie av hele eiendommen eller deler av eiendommen, såfremt utleiearealet er bygningsmessig godkjent for varig opphold.
Diverse
Eiendommen selges ved fullmektig på vegne av Oslo Brannfunksjonærers Feriehjem. Fullmektigen har ikke selv bebodd eiendommen og har derfor ikke kunnskap om bygningenes/eiendommens tilstand utover det som fremkommer i salgsoppgave og tilstandsrapporter.
Energimerking
Selger er ansvarlig for at boligene har energiattest. Det foreligger imidlertid ikke energiattest for disse boligene, men hvis kjøper krever det kan energiattest innhentes for selgers regning.
Beliggenhet og tomteforhold
Beliggenhet og tomteforhold
Beliggenhet
Sandvigen feriehjem er et historisk feriested mellom Digerud og Fagerstrand på Nesoddlandets vestside. Siden etableringen for snart 100 år siden har Sandvigen vært et yndet sted å tilbringe vel opptjente feriedager for ansatte i Oslo brannvesen, med familier. Siden store deler av eiendommen nå er vedtaksfredet, er idyllen sikret.
Omgivelsene på Digerud er landlige og fredfylt, preget av nærheten til så vel fjorden som omfangsrike skogsområder. Turmulighetene er mange, både til vanns og til lands. Bærterrenget sies å være spesielt godt. Med både strand og brygge på eiendommen er også bademulighetene upåklagelige.
Ved Fagerstrand like over kommunegrensen er det i senere år skjedd en betydelig utvikling, først og fremst gjennom et helt nytt boligområde som grenser til denne eiendommen i nord. Utbyggingen av nye boliger speiler i stor grad områdets attraktivitet og mange kvaliteter, som i høyeste grad også er gjeldende for Sandvigen.
Fagerstrand har i tillegg et lokalsentrum med forretninger, serveringssteder og tjenestetilbud som er praktisk i det daglige. Her ligger ikke minst en av de større småbåthavnene på denne siden av fjorden som kan være et ypperlig utgangspunkt for utflukter på fjorden.
Tross de naturskjønne omgivelsene på Nesoddlandet er likevel den langt mer urbane hovedstaden lett tilgjengelig. Et velutviklet tilbud av buss- og fergeforbindelser gjør det praktisk mulig å reise kollektivt i hverdagen.
Buss mellom Digerud og Nesoddtangen har avgang hver time eller oftere dagen gjennom og reisetiden er ca. 45 minutter. Fra Nesoddtangen er det nærmest kontinuerlig fergeforbindelse videre til både Aker Brygge og Lysaker Brygge. I sommermånedene er det fergeforbindelse også fra Fagerstrand til Oslo.
Beskrivelse av tomt
Eiertomt på ca. 73 154 kvm. Bygningene ligger spredt i skrånende terreng, hvor området preges av tett løvskog, gressletter og fjellknauser med svaberg ned mot fjorden.
Iht. gårdskart hentet fra NIBIO er eiendommen bestående av 33,8 daa produktiv skog (produktiv skog er skog på fastmark og myr med skogbonitet lav eller bedre), 33,5 daa annet markslag og 5,8 daa bebygd, samf., vann, bre.
Tomten er ikke oppmålt i nyere tid og har usikre grenser (foruten mot nord). Kommunens grunnkart viser eiendommens grenser med et beregnet normalavvik på 30-200 cm og 200-500, se kartutsnitt for tomtegrenser. Ved nøyaktig oppmåling kan avvik forekomme, og kjøper aksepterer dette.
Vei, vann og avløp
Eiendommen har adkomst via privat vei med felles vedlikeholdsansvar.
Eiendommen har privat borebrønn som vannkilde (manuell pumpe), dog er det ikke innlagt vann til noen av hyttene. Brønnen er av eldre dato og har ukjent utførelse og opprinnelse. Brønnen er i forbindelse med salget ikke undersøkt og det er ikke tatt vannprøver selger bekjent. Det tas forbehold om vannkvalitet og brønnens tilstand.
Regulerings-og arealplaner
Eiendommen ligger i et uregulert område, men er hovedsakelig avsatt til LNF-areal med hensyn på friluftsliv og deler av eiendommen med hensyn på landskap samt del av eiendommen er avsatt til bruk og vern av sjø samt vassdrag med tilhørende strandsone, ved kommuneplanens arealdel 2023-2035 vedtatt 19.06.2023. Utsnitt av planer med tilhørende bestemmelser kan fås ved henvendelse til megler.
Det gjøres oppmerksom på at områder som er avsatt til LNF-formål (landbruks-, natur- og friluftsformål), kan gi begrensninger i forbindelse med evt. videre utbygging av tomt og ved fradeling av tomteareal. Konferer med megler for mer informasjon.
Store deler av eiendommen er innenfor en sone som er båndlagt etter lov om kulturminner iht. kommuneplanen. Når et område er båndlagt vil det være en del begrensninger når det gjelder oppføring av nybygg, tilbygg eller påbygg innenfor dette området. Konferer med megler dersom dette er aktuelt.
Det gjøres oppmerksom på at deler av eiendommen ligger innenfor 100-metersbeltet langs sjø. I henhold til pbl. §1-8 er det et generelt byggeforbud langs sjøen, dette gir restriksjoner i forbindelse med evt. videre utbygging/riving/endring o.l. tilknyttet bygningene/tomten ved sjøen. Søknadspliktige tiltak kan også kreves særskilt søkt, i tillegg må søknadene påregnes behandlet hos statsforvalter. Konferer med megler for mer informasjon.
Riksantikvaren fredet Brannmennenes feriehjem etter vedtak om fredning, dette ble tinglyst på eiendommen den 29.11.1996. Fredningen gjelder for følgende bygninger på eiendommen: Hytte nr. 1-9, våningshus, uthus og båthus. Bygningenes eksteriør og interiør samt fast inventar er omfattet av fredningen. Videre omfatter fredningen et område rundt bygningene. Det foreligger et kart over eiendommen som viser avgrensning av fredningsområdet, kartet kan fås ved henvendelse til megler.
Fredningen medfører at det må søkes om tillatelse til å sette i gang alle typer bygningsmessige arbeider og utomhusarbeider utover vanlig vedlikehold innenfor det fredete området. Søknad om tillatelse skal sendes til fylkeskommunen, som avgjør om tiltaket kan iverksettes. Konferer med megler for mer informasjon.
Det opplyses om at eiere av freda kulturminner og kulturmiljøer har mulighet for å søke om tilskudd til istandsetting og vedlikehold av Riksantikvaren. Formålet med tilskuddsordningen er å bevare fredete kulturminner og kulturmiljø i privat eie og å bidra til at slike settes i stand etter antikvariske retningslinjer. Tilskuddet dekker merkostnader, hel eller delvis, som følge av krav til antikvarisk utførelse ved sikring, istandsetting, vedlikehold og skjøtsel. Se mer informasjon om vilkår og søknadsprosess på www.riksantikvaren.no.
Økonomi
Økonomi
Kommunale utgifter
Renovasjonskostnader: kr 6.356,25,- pr. år (4 terminer). Type renovasjonsordning: Hytterenovasjon sommer FK, fakturert på eiendommen i 2024.
Eiendommen har borebrønnsvann med manuell pumpe, det må påregnes kostnader til vedlikehold av brønnen og pumpen.
Eiendommen er tilknyttet et privat veilag, selger har ikke opplyst om kostnader til dette men det må påregnes.
Bygningene er forsikret via Gjensidige, det må påregnes kostnader til bygningsforsikring og innboforsikring.
Det må påregnes kostnader til strøm og nettleie, dette vil variere avhengig av strøm-/nettselskap. Alle hyttene har hatt et strømforbruk på ca. 15.000 kWh tilsammen pr. år, det er to separate strømmålere.
Eiendommen er ikke tilknyttet tv eller internett.
Ovenstående kostnader vil variere avhengig av forbruk.
Eiendomsskatt
Eiendomsskatten er på kr 14.195,- pr. år, årsprognose på eiendommen for 2025.
Omkostninger
32 000 000,00 Prisantydning
Omkostninger
800 000,00 Dokumentavgift til staten (2,5% av kjøpesum)
13 650,00 Gjensidige boligkjøperforsikring - Kun rettshjelpsdekning (valgfri)
545,00 Tinglysing panterettsdokument
545,00 Tinglysing skjøte
--------------------------------------------------------
814 740,00 Omkostninger totalt
--------------------------------------------------------
32 814 740,00 Totalpris inkl. omkostninger
--------------------------------------------------------
Totalpris inkl. omkostninger forutsetter kjøp til prisantydning.
Det tas forbehold om endringer i avgifter og gebyrer.
Tilbud om lånefinansiering
Megler formidler gjerne kontakt med rådgiver hos vår samarbeidspartner BN Bank. De har konkurransedyktige betingelser samt rask og løsningsorientert behandling av din lånesøknad. Krogsveen mottar et honorar dersom lån opprettes.
Betalingsbetingelser
Kjøpesum inkludert omkostninger, samt pantedokument tilknyttet eventuelt lån, skal være disponibelt hos megler 2 virkedager før overtagelsen.
Annen viktig informasjon
Annen viktig informasjon
Eier
Oslo Brannfunksjonærers Feriehjem
Konsesjon
Da eiendommen er over 2 mål er den i utgangspunktet underlagt konsesjonslovgivning, og kjøper må ved kontrakt undertegne egenerklæring om konsesjonsfrihet. Denne erklæringen må godkjennes fra kommunen før eiendommen kan overskjøtes til kjøper.
Overtakelse
Etter nærmere avtale.
Boligselgerforsikring
Det gjøres oppmerksom på at selger ikke har tegnet boligselgerforsikring som dekker selgers ansvar etter avhendingsloven. Likevel foreligger selgers egenerklæring og godkjent tilstandsrapport som interessenter må sette seg inn i før bud inngis. Eventuelle reklamasjoner må rettes direkte til selger.
Boligkjøperforsikring
Innen kontraktsmøtet må kjøper ta stilling til om det ønskes å bestille Boligkjøperforsikring som leveres gjennom Gjensidige. Forsikringen er en fri rettshjelpsdekning i 5 år, dvs at de behandler ethvert mangelskrav kjøper måtte ha overfor selger. Kjøper mottar ingen særskilt faktura for Boligkjøperforsikringen da kostnaden legges til kjøpesummen for boligen. Det gjøres oppmerksom på at Krogsveen mottar et honorar for denne formidlingen.
Produktark for Boligkjøperforsikring ligger vedlagt i salgsoppgaven.
Ta kontakt med megler for ytterligere informasjon.
Budgivning
Forbrukerinformasjon om budgivning er vedlagt denne salgsoppgaven og er også på vår hjemmeside Krogsveen.no. Alle bud og budforhøyelser må inngis skriftlig. I tillegg må legitimasjon være fremlagt sammen med signatur fra budgiver.
Vi oppfordrer til å gi bud elektronisk via GI BUD-knappen på eiendommens hjemmeside på Krogsveen.no. Da vil samtlige vilkår bli oppfylt.
Eventuelle forhøyelser eller endringer av budet kan bekreftes pr SMS eller på e-post. Vi oppfordrer alltid til å kontakte megler pr. telefon i tillegg da forsinkelser i SMS og e-post kan forekomme.
For at budene skal kunne bli behandlet og videreformidlet skriftlig til alle involverte parter, må alle bud ha en tilstrekkelig lang akseptfrist, jf. eiendomsmeglingsforskriften § 6-3.
Selger må også skriftlig akseptere budet før aksept kan formidles til budgiver. Akseptfrist bør derfor være på minimum 30 minutter, og budforhøyelser må derfor skje i god tid før fristens utløp.
Bud i forbrukerforhold kan uansett ikke settes med kortere frist enn kl. 12.00 første virkedag etter siste annonserte visning. I tillegg kan ikke budet ha forbehold om at det skal holdes hemmelig ovenfor øvrige interessenter. Megler har iht lov om eiendomsmegling ikke anledning til å videreformidle disse budene, og de vil dermed heller ikke bli journalført.
Etter at eiendommen er solgt vil kjøper og selger få tilsendt budjournal. Øvrige budgivere kan få utlevert kopi av budjournalen i anonymisert form.
Hvitvaskingsreglene
I henhold til lov om hvitvasking og terrorfinansiering har megler plikt til å gjennomføre kontrolltiltak overfor kunder, herunder fullmektiger. Dette innebærer bl.a. å bekrefte kunders og reelle rettighetshaveres identitet på bakgrunn av fremvist gyldig legitimasjon eller på annen godkjent måte, samt å innhente opplysninger om kundeforholdets formål og tilsiktede art.
Dersom slike kundetiltak ikke kan gjennomføres, kan megler ikke etablere kundeforholdet eller utføre transaksjonen.
Hvis kjøper ikke bidrar til gjennomføring av kundekontrollen og dette fører til at transaksjonen blir forsinket eller ikke kan gjennomføres, vil dette ansees som mislighold av avtalen og gi selger rettigheter etter avhendingslova kapittel 5. I tilfeller der selger ikke bidrar til gjennomføring av løpende kundekontroll underveis i oppdraget, er det selger som misligholder sine forpliktelser etter avtalen og gi kjøper rettigheter etter avhendingslovens kapittel 4. Partene er selv ansvarlige for eventuelle kostnader og ansvar dette kan medføre. Eiendomsmegleren eller eiendomsmeglingsforetaket kan ikke holdes ansvarlig for de konsekvenser dette vil kunne få for partene eller andre som har interesser i eiendomshandelen.
Kjøper oppfordres til å innbetale kjøpesummen som ikke kommer fra låneinstitusjon i én samlet innbetaling fra egen konto i norsk bank. Megler har plikt til å melde fra til Økokrim om eiendomshandler som fremstår som mistenkelige. Melding sendes Økokrim uten at partene varsles.
Personopplysningsloven
I henhold til personopplysningsloven gjør vi oppmerksom på at interessenter kan bli registrert for videre oppfølging.
Lovanvendelse
Generelle bestemmelser
Salgsoppgaven er basert på de opplysningene selger har gitt til megler, den bygningssakyndiges tilstandsrapport, samt opplysninger innhentet fra kommunen, Kartverket og andre tilgjengelige kilder. Det er viktig at kjøper setter seg grundig inn i alle salgsdokumentene, herunder salgsoppgave, tilstandsrapport og selgers egenerklæring. Kjøper anses kjent med forhold som er tydelig beskrevet i salgsdokumentene, og slike forhold kan ikke påberopes som mangler. Dette gjelder uavhengig av om kjøper har lest dokumentene. Alle interessenter oppfordres til å undersøke eiendommen nøye, gjerne sammen med fagkyndig før bud inngis. Kjøper som velger å kjøpe usett kan ikke gjøre gjeldende som mangel noe han burde blitt kjent med ved undersøkelsen.
Dersom det er behov for avklaringer, anbefaler vi at interessenter rådfører seg med eiendomsmegler eller egne rådgivere før det legges inn bud.
En bolig som har blitt brukt i en viss tid, har vanligvis blitt utsatt for slitasje og skader kan ha oppstått. Slik bruksslitasje må kjøper regne med, og det kan avdekkes enkelte forhold etter overtakelse som nødvendiggjør utbedringer. Normal slitasje og skader som nødvendiggjør utbedring, er innenfor hva kjøper må forvente og vil ikke utgjøre en mangel.
Kjøper og selgers rettigheter og plikter reguleres av avtalen mellom partene, samt informasjonen som har vært tilgjengelig for kjøperen i forbindelse med handelen. Avtalen utfylles av avhendingsloven, og det gjelder ulike avtalevilkår avhengig av om kjøper er forbrukerkjøper eller ikke. Dette er nærmere beskrevet nedenfor.
På grunn av ulike avtalevilkår kan selger vurdere bud fra en som ikke er forbruker, ulikt fra en forbrukers bud. Dersom kjøper ikke er forbruker, er selger sitt mulige mangelsansvar begrenset fordi eiendommen selges "som den er". Selger kan ikke ta «som den er»- forbehold overfor en forbrukerkjøper. Selv et lavere bud fra en som ikke er forbruker kan foretrekkes fordi begrensningen i mulig mangelsansvar kan ha egenverdi for selger. Selger står fritt til å forkaste eller akseptere ethvert bud, og er for eksempel ikke forpliktet til å akseptere høyeste bud.
Budgiver skal i budskjema avgi egenerklæring om budgiver er forbruker eller næringsdrivende/ person som hovedsakelig handler som ledd i næringsvirksomhet. Budgivere får informasjon dersom andre bud er inngitt av en som ikke er forbruker.
Forbrukerkjøp - definisjon
Med forbrukerkjøp menes kjøp av eiendom når kjøperen er en fysisk person som ikke hovedsakelig handler som ledd i næringsvirksomhet.
Forbruker – avtalevilkår
Eiendommen har en mangel dersom den ikke er i samsvar med kravene som følger av avtalen, eller det foreligger brudd på bestemmelsene i avhendingsloven §§ 3-2 til 3-8. Hvis eiendommen ikke er i samsvar med det kjøperen må kunne forvente ut ifra alder, type og synlig tilstand, kan det være grunnlag for mangelskrav. Det samme gjelder hvis det er holdt tilbake eller gitt uriktige opplysninger om eiendommen. Dette gjelder likevel bare dersom man kan gå ut ifra at det virket inn på avtalen at opplysningen ikke ble gitt eller at mangelskravet ikke blir rettet i tide på en tydelig måte.
Boligen kan ha en mangel etter avhendingsloven § 3-3 andre ledd, dersom det er avvik mellom opplyst og faktisk innvendig areal, forutsatt at avviket er på 2% eller mer og minimum 1 kvm.
Ved beregning av et eventuelt prisavslag eller erstatning må kjøper selv dekke tap/kostnader opptil et beløp på kr 10 000 (egenandel).
Ikke-forbruker (næringsdrivende) – definisjon
Hvis kjøper er en juridisk person, eller en fysisk person som hovedsakelig handler som ledd i næringsvirksomhet, vil kjøpet ikke anses som et forbrukerkjøp.
Ikke-forbruker – avtalevilkår
Eiendommen har en mangel dersom den ikke er i samsvar med kravene som følger av avtalen.
Eiendommen selges «som den er», og selgers ansvar utover det konkret avtalte er da begrenset etter avhendingsloven § 3-9, første ledd andre setning.
Avhendingsloven § 3-3 andre ledd fravikes, og hvorvidt boligens arealsvikt utgjør en mangel vurderes etter avhendingsloven § 3-8.
Informasjon om kjøpers undersøkelsesplikt, herunder oppfordringen om å undersøke eiendommen nøye, gjelder også for kjøpere som ikke anses som forbrukere.
Det forutsettes at hjemmel overføres til kjøper. Hvis kjøper ikke ønsker hjemmelsoverføring av eiendommen, må det tas forbehold om dette i budet.
Meglers vederlag
Meglers vederlag betales av selger og er avtalt til:
Vederlag: 1,50 % av salgssummen
Utlegg:
Utlegg tilstandsrapporter fra Anticimex i forbindelse med fritidsboligene kr 37 500,00
Vi er opptatt av verdiskapning, og har knyttet til oss samarbeidspartnere som skal sikre våre kunder de beste produkter og tjenester;
• I forbindelse med forberedelse av salget, innhenter vi informasjon om eiendommen hovedsakelig fra vår samarbeidspartner Amibita.
• Gjensidige leverer boligselgerforsikring og tilbyr bygningsforsikring
• Boligkjøperforsikring leveres av Hiscox og med Sedgwick som skadebehandler, og er formidlet gjennom Gjensidige.
• BN bank tilbyr finansieringsløsninger
• Vår avdeling Krogsveen Pluss tilbyr flyttetjenester som utvask, visningsvask, lager, tømming og transport av flyttelass, i tillegg til å formidle kontakt med Flip for overflateoppussing.
• I forbindelse med overtagelse av eiendommen tilbyr Overo avtale om strøm, alarm og bredbånd.
• Krogsveen er, sammen med øvrige bransjeaktører, medeier i den digitale annonseringsplattformen Hjem som eies av Bomega AS.
Opplysninger om oppdraget
Oppdragsnummer 30-0176/25
Eiendomsmegler Krogsveen AS, avd. Moss
Kongens gate 23, 1530, MOSS
950 007 613
Oppdragets KR-kode KR30.25176
Dato
Sist oppdatert: 07. mai 2026 kl. 13:08
Dokumenter
Dokumenter
PDF – 944 KB
PDF – 384 KB
PDF – 418 KB
PDF – 372 KB
PDF – 445 KB
PDF – 393 KB
PDF – 344 KB
PDF – 482 KB
PDF – 457 KB
PDF – 609 KB
PDF – 312 KB
PDF – 29 KB
PDF – 127 KB
PDF – 392 KB
Område
Legg til steder som er viktige for deg
Visning
Kontakt megler mht. ønsker om visning. Privatvisninger avtales på forespørsel!
Lurer du på noe?
Vurderer du utleie?
Få et tilbud fra Utleie KrogsveenHva koster lånet?
Sjekk estimert lånekostnadVil du varsles om lignende boliger?
Ved å lagre ditt boligsøk hos oss får du beskjed når vi har en bolig som ligner denne, før den legges ut på markedet!




