Klokkersvingen 10B
13 950 000 kr
157 m²
3 soverom
Solgt
Sjelden anledning på Hosle
Bolig med unik beliggenhet i stille & rolig blindvei-Dobbelgarasje-Direkte tilgang til turvei, skole, barnehage & butikk
Prisantydning
13 950 000 krOmkostninger
359 790 krTotalpris
14 309 790 kr
Pris
Bruksareal
189 m²BRA-I (internt bruksareal)
157 m²BRA-E (eksternt bruksareal)
32 m²TBA (terrasse-balkongareal)
62 m²
Areal
Etasje
3Byggeår
1965Soverom
3 soveromBad
2 badType
Halvpart vertikaldelt boligEierform
EierseksjonFasiliteter
Garasje/P-plass og Balkong/Terrasse
Nøkkelinfo
Unngå doble boligrenter
Vi tilbyr gunstig forsikring.
Vurderer du utleie?
Få et tilbud fra Utleie KrogsveenHva koster lånet?
Sjekk estimert lånekostnadBeskrivelse
Kort om eiendommen
Drømmebolig i en egen oase av en hage med unik beliggenhet i stille og rolig blindvei. Boligen har attraktiv beliggenhet med tursti som nærmeste nabo som fører til bilfri vei til skole, barnehage butikk og idrettsanlegg. Det er også nærhet til det populære friluftsområdet Sauejordet, samt marka med et rikt utvalg turmuligheter.
Boligen inneholder:
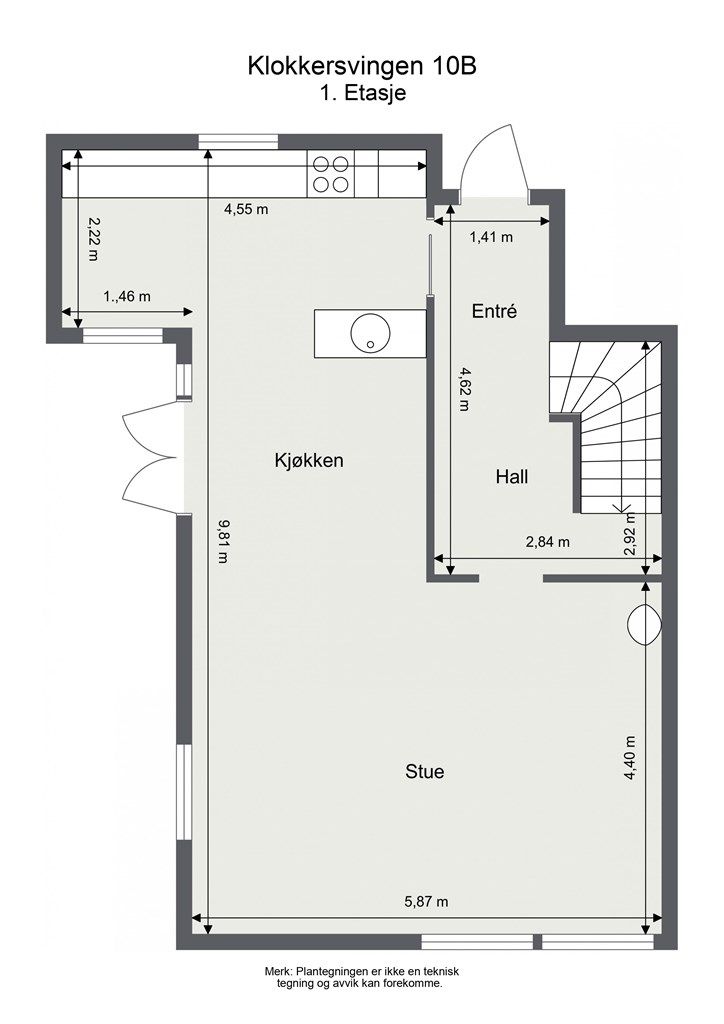
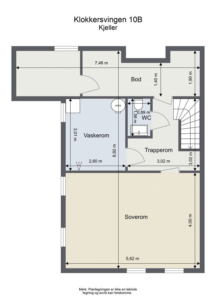
•Kjeller: 57 kvm: Soverom/stue, vaskerom, toalettrom, bod og trapperom
•1. etasje 57 kvm: Entré og stue/kjøkken
•2. etasje 43 kvm: Bad, gang og 3 soverom
Høydepunkter:
•Flott familiebolig over 3 plan med god planløsning
•Tomannsbolig med eneboligfølelse
•Fantastiske terrasser og nydelig, usjenert hage
•Solrik beliggenhet
•Nytt tak i 2024
•Dobbelgarasje med hems og automatisk portåpner fra Grimstad Garasjen
•Meget barnevennlig og rolig
Område
Legg til steder som er viktige for deg
På flyttefot? Tenk kjøp og salg samtidig.
Få din egen rådgiver gjennom hele kjøps- og salgsprosessen. Det starter med en verdivurdering.
Unngå doble boligrenter
Vi tilbyr gunstig forsikring.
Vurderer du utleie?
Få et tilbud fra Utleie KrogsveenHva koster lånet?
Sjekk estimert lånekostnadVil du varsles om lignende boliger?
Ved å lagre ditt boligsøk hos oss får du beskjed når vi har en bolig som ligner denne, før den legges ut på markedet!




