Langes gate 4
3 150 000 kr
59 m²
1 soverom
Solgt

Presenteres av
Eirik LundbekkStrømsø
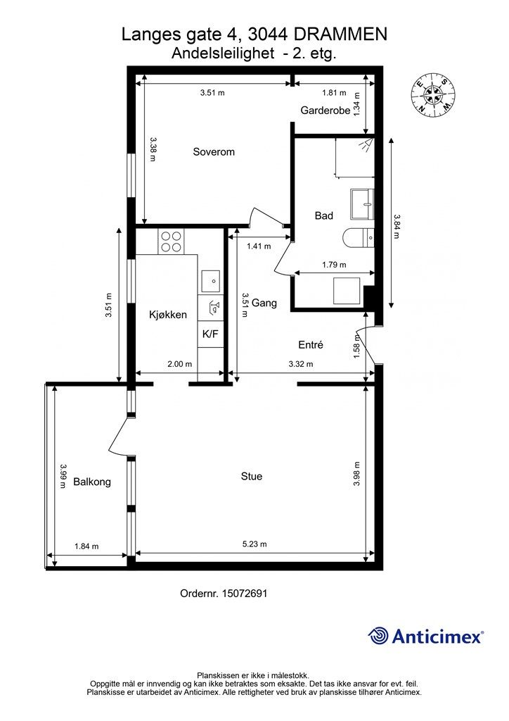
Innbydende og velholdt 2-roms. Balkong med kveldssol, rolig bakgård. Garasjeplass. Heis. Meget sentralt beliggenhet.
Prisantydning
3 150 000 krAndel fellesgjeld
105 309 krOmkostninger
19 250 krTotalpris
3 274 559 kr
Pris
Bruksareal
64 m²BRA-I (internt bruksareal)
59 m²BRA-E (eksternt bruksareal)
5 m²TBA (terrasse-balkongareal)
7 m²
Areal
Etasje
2Byggeår
1987Soverom
1 soveromBad
1 badType
AndelsleilighetEierform
AndelFasiliteter
Garasje/P-plass, Heis og Balkong/TerrasseFellesutgifter
4 580 krEnergimerke
Rød E
Nøkkelinfo
Unngå doble boligrenter
Vi tilbyr gunstig forsikring.
Vurderer du utleie?
Få et tilbud fra Utleie KrogsveenHva koster lånet?
Sjekk estimert lånekostnadBeskrivelse
Kort om eiendommen
Innbydende og velholdt 2-roms leilighet beliggende i 2. etasje.
Leiligheten har en praktisk planløsning med romslige rom
Lys stue med delvis åpen løsning mot kjøkkenet
Flislagt bad med dusj og gulvvarme (oppgradert bad i 2017-2018)
Soverom med delvis åpen løsning mot garderoberom
Balkongdør og vinduer fra 2019 (i regi av borettslaget)
Overbygget nordøstvendt balkong på ca. 7kvm (vendt mot bakgård)
Heis- og trappeadkomst til leilighetens etasjeplan
Disponibel parkeringsplass i felles garasjeanlegg
Tilrettelagt for etablering av ladeboks til el-bil i garasjen
Strømsø Torg er kun få minutters gange unna og det er ca. 10 min gange til Bragernes Torg
Det er både bussknutepunkt, taxiholdeplass og togstasjon på Strømsø
Område
Legg til steder som er viktige for deg
På flyttefot? Tenk kjøp og salg samtidig.
Få din egen rådgiver gjennom hele kjøps- og salgsprosessen. Det starter med en verdivurdering.
Unngå doble boligrenter
Vi tilbyr gunstig forsikring.
Vurderer du utleie?
Få et tilbud fra Utleie KrogsveenHva koster lånet?
Sjekk estimert lånekostnadVil du varsles om lignende boliger?
Ved å lagre ditt boligsøk hos oss får du beskjed når vi har en bolig som ligner denne, før den legges ut på markedet!
På flyttefot? Slik gjør vi det enklere for deg
Skreddersydd flyttepakke
Vi fikser håndverkere, vask, pakking, lagring og transport, og legger ut for utgiftene underveis.
Hjelp med både kjøp og salg
Hos oss har du din egen rådgiver gjennom hele kjøps- og salgsprosessen.
Hjelp til finansiering
Vårt samarbeid med BN Bank sikrer deg rask og løsningsorientert hjelp, til konkurransedyktige betingelser.

