Nedre Kalbakkvei 3
4 200 000 kr
63 m²
2 soverom
Solgt
Kalbakken
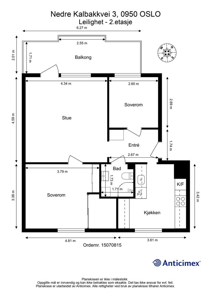
Lys og attraktiv 3-romsleilighet med nordvestvendt balkong- Nærhet til off. transport og marka - Attraktiv beliggenhet
Prisantydning
4 200 000 krAndel fellesgjeld
252 000 krOmkostninger
19 252 krTotalpris
4 471 252 kr
Pris
Bruksareal
71 m²BRA-I (internt bruksareal)
63 m²BRA-E (eksternt bruksareal)
8 m²TBA (terrasse-balkongareal)
7 m²
Areal
Etasje
2Byggeår
1954Soverom
2 soveromBad
1 badType
AndelsleilighetEierform
AndelFasiliteter
Balkong/TerrasseFellesutgifter
4 548 krEnergimerke
Rød F
Nøkkelinfo
Unngå doble boligrenter
Vi tilbyr gunstig forsikring.
Vurderer du utleie?
Få et tilbud fra Utleie KrogsveenHva koster lånet?
Sjekk estimert lånekostnadBeskrivelse
Kort om eiendommen
En lys og attraktiv 3-roms leilighet, attraktivt beliggende på Kalbakken. Leiligheten har en god planløsning som sørger for god størrelse på alle rom.
Kort fortalt:
- God standard
- Separat stue/kjøkkenløsning
- Pent kjøkken med god skap- og benkeplass
- Flislagt bad med opplegg for vaskemaskin
- Nordvestvendt balkong på 7 kvm, med lite innsyn
- To romslige soverom
- Store vindusflater som gir rikelig med naturlig lys
- Vinduer fra 2012
- Fellesvaskeri og sykkelhus i borettslaget
- Arrangementslokale i borettslaget
- Parkeringsplass til leie etter venteliste
- Tv og internett er inkl. i felleskostnader
- Tre boder for oppbevaring
- Kort vei til servicetilbud, fasiliteter, offentlig kommunikasjon og marka
Velkommen til visning!
Område
Legg til steder som er viktige for deg
På flyttefot? Tenk kjøp og salg samtidig.
Få din egen rådgiver gjennom hele kjøps- og salgsprosessen. Det starter med en verdivurdering.
Unngå doble boligrenter
Vi tilbyr gunstig forsikring.
Vurderer du utleie?
Få et tilbud fra Utleie KrogsveenHva koster lånet?
Sjekk estimert lånekostnadVil du varsles om lignende boliger?
Ved å lagre ditt boligsøk hos oss får du beskjed når vi har en bolig som ligner denne, før den legges ut på markedet!




