Frydenbølien 23
3 150 000 kr
62 m²
1 soverom
Komplett salgsoppgave

Gyldenpris
Lekker og sentrumsnær leilighet med nydelig utsikt |Varmtvann ink i fellesutgifter|Soverom + kontor|Garasjeplass.
Prisantydning
3 150 000 krAndel fellesgjeld
444 375 krOmkostninger
11 040 krTotalpris
3 605 415 kr
Pris
Bruksareal
68 m²BRA-I (internt bruksareal)
62 m²BRA-E (eksternt bruksareal)
6 m²
Areal
Etasje
1Byggeår
1978Soverom
1 soveromBad
1 badType
AndelsleilighetEierform
AndelFasiliteter
Garasje/P-plassFellesutgifter
6 913 krEnergimerke
Rød F
Nøkkelinfo
Unngå doble boligrenter
Vi tilbyr gunstig forsikring.
Vurderer du utleie?
Få et tilbud fra Utleie KrogsveenHva koster lånet?
Sjekk estimert lånekostnadBeskrivelse
Kort om eiendommen
- Velkommen til Frydenbølien 23 -
Her nyter man en flott og sentrumsnær beliggenhet med gangavstand inn til byen samt flotte turmuligheter opp Løvstakken og Løvstien. Videre nyter man godt av kort gangavstand til både kollektivtransport og dagligvarebutikk. Her ligger alt til rette for å trives!
Kort fortalt:
- Nydelig utsiktsforhold
- God planløsning med soverom + kontor
- Rør-i-rør
- TV/internett og varmtvann ink i fellesutgifter
- Fast parkeringplass med mulighet for el-lader
- God plass til gjesteparkering
- Spar butikk like utenfor
- 2 boder utenfor leilighet i samme etasje
- Ingen forkjøpsrett
- Fine turmuligheter ved Løvstien og Løvstakken like i nærheten
Velkommen til visning!
Innhold og byggemåte
Innhold og byggemåte
Eiendommen
Frydenbølien 23, 5056 BERGEN
Kommunenummer 4601, gårdsnummer 156, bruksnummer 105, ideell andel 1/1
Andelsnummer 3, Münsterbekken Borettslag, organisasjonsnummer 953715279
Innhold
Totalt bruksareal BRA: 68 kvm
BRA-i:
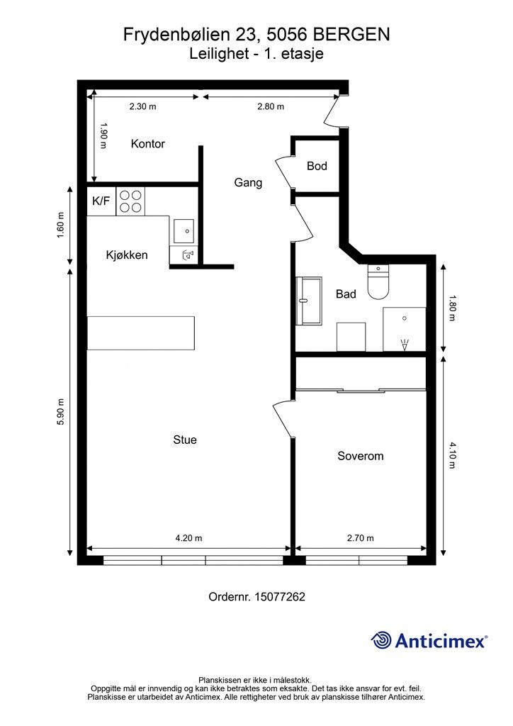
1. etasje 62 kvm: Gang, kontor, soverom, bad, stue og kjøkken
BRA-e:
1. etasje 6 kvm: 2 boder (samme etasje)
Vedlagte plantegninger er ikke målbare. De oppgitte arealer er hentet fra rapport med befaringsdato 19.11.2025 utført av Erik Furnes.
Byggemåte
Selger har fått utarbeidet en tilstandsrapport, dvs. en teknisk gjennomgang av boligen hvor eventuelle avvik, risiko for kjøper og prisoverslag for hva som bør gjøres av oppgradering, er skissert. Se særskilt TGIU (tilstandsgrad ikke undersøkt), samt TG2 og TG3 som viser hva som er boligens normale slitasje, alder og type, hva som er avvik fra dette og hva som bør/må utbedres. Rapporten og selgers egenerklæring er en del av salgsoppgaven og må leses nøye før bud inngis. Kjøper overtar ansvaret for de opplysninger som fremkommer av salgsdokumentasjonen, og kan ikke gjøre gjeldende som mangel noe som burde vært kjent eller som ikke kan anses å ha betydning for avtalen.
Bygningen er iht. tilstandsrapporten oppført i 1978. Grunnmur av betong. Fundamentert på ukjent byggegrunn. Bygget er oppført med felles parkeringsanlegg i
underetasjen. Yttervegger av betong/ trekonstruksjoner. Fasaden er kledd med fasadeplater. Etasjeskillere av betong. Flatt tak (ikke
besiktiget).Leiligheten har entrédør med brannklasse B30. Vinduer med karmer av tre, og to-lags glass. Elektrisk oppvarming. Naturlig ventilasjon. Les for øvrig mer om byggemåte og den tekniske tilstanden i rapporten.
Det gjøres spesielt oppmerksom på:
Våtrom - bad: ventilasjon, sanitærutstyr, overflater, membran, tettsjikt og overgang til sluk
Øvrige rom: ventilasjon
VVS: vannrør
Se supplerende tekst i tilstandsrapporten om overnevnte bygningsdeler. Kjøper overtar ansvar og risiko for dette.
Standard
Leiligheten har gjennomgående god standard og har gjennom årene fått en rekke oppgraderinger.
- Bad renovert i 2008 i regi av borettslag
- Innvendige rør byttet til rør-i-rør i 2008 i regi av borettslaget
- Kjøkkeninnrending fra Kvik (2010)
- Lekker 1-stavs laminat med gulvvarme i gang, stue og kjøkken
- Automatsikringer
- Spotter i himling i gang og på bad
- Byttet til LED spotter på bad med dimmer
- Byttet vask, oppvaskkum og oppvaskmaskin i 2024
- Oppgradert stekeovn med dampfunksjon 2024
Det er kun de hvitevarene som er listet opp som følger med. Disse hvitevarene følger med: integrerte hvitevarer på kjøkken medfølger.
Det gjøres oppmerksom på at hvitevarene er kjøpt for noen år tilbake, og kjøper må forvente slitasje som følge alder og normal bruk.
Løsøre og tilbehør
Vi viser til liste fra Norges Eiendomsmeglerforbund som gjelder fra 01.01.2020 angående løsøre og tilbehør.
Barstoler følger med.
Hyller på vegg stue følger ikke med.
Taklampe på gjesterom/kontor følger ikke med.
Oppvarming
Elektrisk oppvarming og varmekabler i gulv på bad samt varmefolie i gulv i stue, kjøkken og gang. Dersom beboelsesrom ikke har vegg- eller fastmonterte varmekilder ved visning følger dette heller ikke med.
Ferdigattest/brukstillatelse
Det foreligger ferdigattest på eiendommen datert 31.05.1979. Denne kan fås ved henvendelse til megler.
Det gjøres oppmerksom at det ikke lenger utstedes ferdigattest på tiltak det er søkt om før 1998 jf. plan- og bygningsloven §21-10. Kommunen vil ikke kreve ferdigattest for disse tiltakene og vil avvise eventuelle søknader. Bestemmelsen innebærer ikke at tiltak med manglende søknad blir lovlige, men at man ikke trenger å avslutte gamle byggesaker. Normalt sett kreves ferdigattest for alle søknadspliktige tiltak som gjøres etter plan - og bygningsloven.
Kjøper overtar eiendommen slik den framstår på visning.
Tinglyste heftelser og rettigheter
Utover andel fellesgjeld overdras leiligheten fri for pengeheftelser.
Borettslaget har legalpant for forfalte felleskostnader og andre krav som følger av borettslagsforholdet iht. burettslagsloven § 5-20. Pantet er begrenset oppad til 2G (G = folketrygdens grunnbeløp).
Det er tinglyst 3 servitutter på borettslagets eiendom. Disse omhandler blant annet bestemmelse om garasje/parkering og vei som adkomst til garasje.
Servituttene vil følge eiendommen. Kjøpers bank vil få pant etter ovennevnte heftelser og servitutter.
Eventuell adgang til utleie
Andelseier kan ikke uten samtykke fra styret i borettslaget overlate bruken av boligen til andre. Med samtykke kan andelseier overlate boligen til andre i inntil tre år hvis andelseier har bodd i boligen i minst ett av de to siste år. Utleie i andre tilfeller kan godtas ved særlige grunner, jf. burettslagslova § 5-6. Utleie forutsetter at leiligheten har forsvarlige radonverdier. Se også borettslagets vedtekter og konferer megler ved spørsmål.
Beliggenhet og tomteforhold
Beliggenhet og tomteforhold
Beliggenhet
Leiligheten har en meget sentral beliggenhet på Gyldenpris. Her har du kort gangavstand til butikk, buss og flotte turområder som Løvstakken, Løvstien og Damsgårdsfjellet.
Gangavstand til Bergen sentrum er ca. 15 minutter. Her finner du alle byens fasiliteter og servicetilbud som blant annet studieinstitusjonene Universitetet i Bergen, BI, Høgskolen på Vestlandet, Sats, Studentsenteret, kaféer og shopping.
For dagligvarehandel ligger det en Spar butikk kun hundre meter fra boligen og Rema 1000 Gyldenpris en kort spasertur unna.
Bussholdeplass ligger like ved ved boligen hvor bussrute 10 går hele tiden. Ytterligere busstopp ved Puddefjordsbroen hvor bussen bringer deg direkte til sentrum på cirka 5 min.
Ellers ligger Damsgård mot nord og Solheimsviken mot sør. Disse områdene er store satsningsområder i Bergen med mange nye boligprosjekter langs hele bryggekanten. Her ligger det allerede butikker, restauranter og treningssentre som blant annet Bunnpris, Pizzabakeren, Sumo Restaurant og Evo treningssenter. Det er bygget en gangbro, Småpudden som tar deg raskt fra Solheimsviken og rett over til BI.
Adkomst
Fra Bergen sentrum: kjør over Puddefjordsbroen (retning Sotra) og ta av mot Damsgård straks etter broen. Ta til høyre i lyskrysset inn i Michael Krohns gate. Følg denne et par hundre meter og ta til høyre opp Gyldenprisveien. Kjør oppover og ta så til høyre inn Frydenbølien.
Barnehager, skoler og fritid
Barnehager:
Gyldenpris barnehage (0-5 år)
Den Internasjonale barnehage (0-6 år)
Akasia Laksevåg kirkes barnehage
Skoler:
Damsgård skole (1-10 kl.)
St. Paul skole (1-10 kl.)
Møhlenpris skole (1-7 kl.)
Ny Krohnborg skole (1-10 kl.)
St. Paul gymnas
Metis privatistskole
Beskrivelse av tomt
Eiet tomt på 24.741 kvm som tilhører borettslaget.
Parkering
Fast parkeringsplass i garasjeanlegget under blokken. Det er lagt opp system for el-bil lader som eier enkelt kan bestille gjennom Aneo.
Flere gjesterparkeringer på borettslagets eiendom. Ellers gateparkering etter områdets bestemmelser.
Vei, vann og avløp
Eiendommen har adkomst via kommunal vei.
Eiendommen er tilknyttet kommunalt ledningsnett via private stikkledninger. Borettslaget er ansvarlig for private stikkledninger til bygningen.
Regulerings-og arealplaner
Eiendommen er regulert til boligblokk i henhold til reguleringsplan Laksevåg/Årstad. Karensfryd- Frydenbø- Gyldenpris ikrafttrådt 22.01.1974.
Hensynssoner:
Luftkvalitet- Gul sone. Dekningsgrad: 100%
Vei støy- Gul sone. Dekningsgrad: 55,1%
Utsnitt av plan med tilhørende bestemmelser kan fås ved henvendelse til megler.
Økonomi
Økonomi
Boligens kostnader
Felleskostnadene er kr 6 913,- pr. mnd. og inkluderer: TV/internett, varmtvann, renter, avdrag, forsikring, kommunale avgifter, vaktmester, renhold, administrasjon og løpende vedlikehold.
I tråd med vedtak på ekstraordinær generalforsamling 18. juni 2024 om igangsetting av rehabilitering av borettslaget, er det nå opptatt byggelån i Handelsbanken på MNOK 274, som også inkluderer refinansiering av tidligere felleslån i Nordea.
Byggelånet har en løpetid på to år og er avdragsfritt i perioden. Ved fullført rehabilitering blir lånet konvertert til et ordinært lån med løpetid på 40 år.
Lånet delutbetales etter hvert som rehabiliteringen skrider frem. Felleskostnadene (grunnbeløpet) øker med 30 % med virkning fra 1. januar 2025.
Det er planlagt ytterligere økninger på 25 % fra 1. januar 2026 og 20 % fra 1. januar 2027.
Det er estimert at felleskostnader etter rehabilitering for denne leilighetstypen vil være totalt kr. 8 220,- pr mnd fra 1. januar 2027 og andel fellesgjeld vil øke til kr. 921 186,- ifølge beregninger fra forretningsfører. Kontakt megler for info.
Formuesverdi
Formuesverdi for 2024 kr. 717 335,- ifølge skatteetaten. Beløpet forutsetter at eier bor fast i boligen (primærbolig).
Ved eventuell øvrig bruk av eiendommen (f.eks. fritidsbolig, pendlerbolig, utleieobjekt) var formuesverdien for 2024 kr 2 869 338,-
Fra 2026 har Stortinget vedtatt en oppdatert modell for beregning av formuesverdi for primærbolig, så avvik kan forekomme.
For mer informasjon se skatteetaten.no
Opplysninger om fellesgjeld
Andel formue er kr 102 125,- pr. 31.12.25
Andel fellesgjeld er kr 444 375,- pr. 06.01.2026
Total fellesgjeld for boligselskapet er kr 131 172,- pr. 06.01.2026 og lånevilkårene er:
Rentebetingelser: 4,590, flytende
Lånets løpetid: 40 år
Avdragsfrihet:
Total gjeld for boligselskapet etter byggelån er konvertert til ordinært lån vil være 274 000 000,-
Omkostninger
3 150 000,00 Prisantydning
444 375,00 Andel av fellesgjeld
--------------------------------------------------------
3 594 375,00 Pris inkl. fellesgjeld
Omkostninger
9 950,00 Gjensidige Boligkjøperpakke (valgfri)
545,00 Tinglysing hjemmel
545,00 Tinglysing panterettsdokument
--------------------------------------------------------
11 040,00 Omkostninger totalt
--------------------------------------------------------
3 605 415,00 Totalpris inkl. omkostninger
--------------------------------------------------------
Tilbud om lånefinansiering
Megler formidler gjerne kontakt med rådgiver hos vår samarbeidspartner BN Bank. De har konkurransedyktige betingelser samt rask og løsningsorientert behandling av din lånesøknad. Krogsveen mottar et honorar dersom lån opprettes.
Betalingsbetingelser
Kjøpesum inkludert omkostninger, samt pantedokument tilknyttet eventuelt lån, skal være disponibelt hos megler 2 virkedager før overtagelsen.
Annen viktig informasjon
Annen viktig informasjon
Eier
Johnny Larsen
Informasjon om borettslaget
Leiligheten er tilknyttet Münsterbekken Borettslag. Borettslaget består av 274 leiligheter i følge lagets vedtekter.
Forretningsfører er AS Eiendomsforvaltning, tlf 55 90 45 30. Dugnad betales for gjennom felleskostnader.
Dyrehold må søkes om til styret.
Pågående arbeider: Borettslaget er i gang med rehabilitering av blokkene vedtatt på generalforsamling 18.juni 2024.
Arbeidende i borettslaget omfatter følgende dødvendige rehabiliteringstiltak:
•Tak –Etterisolering, ny taktekking og utbedringer
•Fasader –Etterisolering, vindtetting og ny fasade
•Nye vinduer, balkongdører og hovedinngangsdører
•Eksisterende balkonger –Tetthet, drenering og rekkverk
•Balansert ventilasjon med varmegjenvinning
•Fuktsikring garasjetak i blokk D og bakside blokk E.
•Etterisolering av gulv mot garasje
•Utskiftning av garasjefronter
Felleskostnader og andel fellesgjeld vil øke trinnvis mens rehabiliteringen foretgår. Se pkt om økonomi/ felleskostnader for nærmere beskrivelse.
Det praktiseres ikke forkjøpsrett i borettslaget.
Borettslag har anledning til å være tilknyttet et sikringsfond som dekker eventuelt manglende innbetaling av felleskostnader. Dette borettslaget er ikke tilknyttet et slikt fond, noe som vil kunne medføre en risiko for økte felleskostnader dersom andre andelseiere ikke betaler sine felleskostnader. Borettslaget har imidlertid legalpant i andelen, og manglende betaling av felleskostnader kan dermed tvangsinndrives av borettslaget.
I henhold til borettslagets vedtekter må kjøper godkjennes av styret som ny andelseier. Det er kjøpers ansvar at styregodkjenning blir gitt, men styret kan ikke nekte godkjenning uten saklig grunn. Iht. burettslagslova kan man bare eie én andel i borettslaget. Kun fysiske personer kan være andelseiere. Borettslag har anledning til å være tilknyttet et sikringsfond som dekker eventuelt manglende innbetaling av felleskostnader. Dette borettslaget er ikke tilknyttet et slikt fond, noe som vil kunne medføre en risiko for økte felleskostnader dersom andre andelseiere ikke betaler sine felleskostnader. Borettslaget har imidlertid legalpant i andelen, og manglende betaling av felleskostnader kan dermed tvangsinndrives av borettslaget.
Overtakelse
Etter avtale
Boligselgerforsikring
Selger har i forbindelse med salget tegnet boligselgerforsikring levert av Gjensidige.
Boligselgerforsikringen dekker selgers ansvar etter avhendingsloven begrenset oppad til kr 14 millioner. Dersom kjøper oppdager forhold ved eiendommen som hen mener utgjør en mangel ved eiendommen, vil Gjensidige behandle reklamasjonen på vegne av selger. Forsikringsvilkår kan fås ved henvendelse til megler.
Vedlagt salgsoppgaven følger selgers egenerklæringsskjema og tilstandsrapport. Interessenter må sette seg inn i dokumentene før bud inngis.
Boligkjøperforsikring
Innen kontraktsmøtet må kjøper ta stilling til om det ønskes å bestille Boligkjøperpakken gjennom Gjensidige. I denne gunstige pakken er boligen ferdig forsikret og inkluderer rettshjelpsforsikring, også kalt Boligkjøperforsikring. Rettshjelpsforsikring gir trygghet og tilgang på profesjonell juridisk hjelp dersom det oppdages uventede feil eller mangler det første året etter overtagelse. Forsikringsselskapet behandler i så fall ethvert mangelskrav kjøper måtte ha overfor selger.
Boligkjøperpakken inkluderer bygningsforsikring for hus og hytte, innboforsikring, flytteforsikring og dobbel rentedekning - i situasjoner hvor kjøper ikke får solgt nåværende primærbolig.
Kjøper mottar ingen særskilt faktura for Boligkjøperpakken da kostnaden det første året legges til kjøpesummen for boligen. Det gjøres oppmerksom på Krogsveen mottar et honorar for denne formidlingen.
Produktark for Boligkjøperpakken ligger vedlagt i salgsoppgaven.
Dersom ikke boligkjøperpakke ønskes kan kun rettshjelpsforsikring, også kalt boligkjøperforsikring, tegnes særskilt via megler. Rettshjelpsforsikringen varer i 5 år fra overtagelse og leveres gjennom Gjensidige. Ta kontakt med megler for ytterligere informasjon.
Selskap og privatpersoner som driver med kjøp/salg/utvikling som ledd i egen næringsvirksomhet kan ikke tegne boligkjøperpakke eller rettshjelpsforsikring.
Budgivning
Forbrukerinformasjon om budgivning er vedlagt denne salgsoppgaven og er også på vår hjemmeside Krogsveen.no. Alle bud og budforhøyelser må inngis skriftlig. I tillegg må legitimasjon være fremlagt sammen med signatur fra budgiver.
Vi oppfordrer til å gi bud elektronisk via GI BUD-knappen på eiendommens hjemmeside på Krogsveen.no. Da vil samtlige vilkår bli oppfylt.
Eventuelle forhøyelser eller endringer av budet kan bekreftes pr SMS eller på e-post. Vi oppfordrer alltid til å kontakte megler pr. telefon i tillegg da forsinkelser i SMS og e-post kan forekomme.
For at budene skal kunne bli behandlet og videreformidlet skriftlig til alle involverte parter, må alle bud ha en tilstrekkelig lang akseptfrist, jf. eiendomsmeglingsforskriften § 6-3.
Selger må også skriftlig akseptere budet før aksept kan formidles til budgiver. Akseptfrist bør derfor være på minimum 30 minutter, og budforhøyelser må derfor skje i god tid før fristens utløp.
Bud i forbrukerforhold kan uansett ikke settes med kortere frist enn kl. 12.00 første virkedag etter siste annonserte visning. I tillegg kan ikke budet ha forbehold om at det skal holdes hemmelig ovenfor øvrige interessenter. Megler har iht lov om eiendomsmegling ikke anledning til å videreformidle disse budene, og de vil dermed heller ikke bli journalført.
Etter at eiendommen er solgt vil kjøper og selger få tilsendt budjournal. Øvrige budgivere kan få utlevert kopi av budjournalen i anonymisert form.
Hvitvaskingsreglene
I henhold til lov om hvitvasking og terrorfinansiering har megler plikt til å gjennomføre kontrolltiltak overfor kunder, herunder fullmektiger. Dette innebærer bl.a. å bekrefte kunders og reelle rettighetshaveres identitet på bakgrunn av fremvist gyldig legitimasjon eller på annen godkjent måte, samt å innhente opplysninger om kundeforholdets formål og tilsiktede art.
Dersom slike kundetiltak ikke kan gjennomføres, kan megler ikke etablere kundeforholdet eller utføre transaksjonen.
Hvis kjøper ikke bidrar til gjennomføring av kundekontrollen og dette fører til at transaksjonen blir forsinket eller ikke kan gjennomføres, vil dette ansees som mislighold av avtalen og gi selger rettigheter etter avhendingslova kapittel 5. I tilfeller der selger ikke bidrar til gjennomføring av løpende kundekontroll underveis i oppdraget, er det selger som misligholder sine forpliktelser etter avtalen og gi kjøper rettigheter etter avhendingslovens kapittel 4. Partene er selv ansvarlige for eventuelle kostnader og ansvar dette kan medføre. Eiendomsmegleren eller eiendomsmeglingsforetaket kan ikke holdes ansvarlig for de konsekvenser dette vil kunne få for partene eller andre som har interesser i eiendomshandelen.
Kjøper oppfordres til å innbetale kjøpesummen som ikke kommer fra låneinstitusjon i én samlet innbetaling fra egen konto i norsk bank. Megler har plikt til å melde fra til Økokrim om eiendomshandler som fremstår som mistenkelige. Melding sendes Økokrim uten at partene varsles.
Personopplysningsloven
I henhold til personopplysningsloven gjør vi oppmerksom på at interessenter kan bli registrert for videre oppfølging.
Lovanvendelse
Generelle bestemmelser
Salgsoppgaven er basert på de opplysningene selger har gitt til megler, den bygningssakyndiges tilstandsrapport, samt opplysninger innhentet fra kommunen, Kartverket og andre tilgjengelige kilder. Det er viktig at kjøper setter seg grundig inn i alle salgsdokumentene, herunder salgsoppgave, tilstandsrapport og selgers egenerklæring. Kjøper anses kjent med forhold som er tydelig beskrevet i salgsdokumentene, og slike forhold kan ikke påberopes som mangler. Dette gjelder uavhengig av om kjøper har lest dokumentene. Alle interessenter oppfordres til å undersøke eiendommen nøye, gjerne sammen med fagkyndig før bud inngis. Kjøper som velger å kjøpe usett kan ikke gjøre gjeldende som mangel noe han burde blitt kjent med ved undersøkelsen.
Dersom det er behov for avklaringer, anbefaler vi at interessenter rådfører seg med eiendomsmegler eller egne rådgivere før det legges inn bud.
En bolig som har blitt brukt i en viss tid, har vanligvis blitt utsatt for slitasje og skader kan ha oppstått. Slik bruksslitasje må kjøper regne med, og det kan avdekkes enkelte forhold etter overtakelse som nødvendiggjør utbedringer. Normal slitasje og skader som nødvendiggjør utbedring, er innenfor hva kjøper må forvente og vil ikke utgjøre en mangel.
Kjøper og selgers rettigheter og plikter reguleres av avtalen mellom partene, samt informasjonen som har vært tilgjengelig for kjøperen i forbindelse med handelen. Avtalen utfylles av avhendingsloven, og det gjelder ulike avtalevilkår avhengig av om kjøper er forbrukerkjøper eller ikke. Dette er nærmere beskrevet nedenfor.
På grunn av ulike avtalevilkår kan selger vurdere bud fra en som ikke er forbruker, ulikt fra en forbrukers bud. Dersom kjøper ikke er forbruker, er selger sitt mulige mangelsansvar begrenset fordi eiendommen selges "som den er". Selger kan ikke ta «som den er»- forbehold overfor en forbrukerkjøper. Selv et lavere bud fra en som ikke er forbruker kan foretrekkes fordi begrensningen i mulig mangelsansvar kan ha egenverdi for selger. Selger står fritt til å forkaste eller akseptere ethvert bud, og er for eksempel ikke forpliktet til å akseptere høyeste bud.
Budgiver skal i budskjema avgi egenerklæring om budgiver er forbruker eller næringsdrivende/ person som hovedsakelig handler som ledd i næringsvirksomhet. Budgivere får informasjon dersom andre bud er inngitt av en som ikke er forbruker.
Forbrukerkjøp - definisjon
Med forbrukerkjøp menes kjøp av eiendom når kjøperen er en fysisk person som ikke hovedsakelig handler som ledd i næringsvirksomhet.
Forbruker – avtalevilkår
Eiendommen har en mangel dersom den ikke er i samsvar med kravene som følger av avtalen, eller det foreligger brudd på bestemmelsene i avhendingsloven §§ 3-2 til 3-8. Hvis eiendommen ikke er i samsvar med det kjøperen må kunne forvente ut ifra alder, type og synlig tilstand, kan det være grunnlag for mangelskrav. Det samme gjelder hvis det er holdt tilbake eller gitt uriktige opplysninger om eiendommen. Dette gjelder likevel bare dersom man kan gå ut ifra at det virket inn på avtalen at opplysningen ikke ble gitt eller at mangelskravet ikke blir rettet i tide på en tydelig måte.
Boligen kan ha en mangel etter avhendingsloven § 3-3 andre ledd, dersom det er avvik mellom opplyst og faktisk innvendig areal, forutsatt at avviket er på 2% eller mer og minimum 1 kvm.
Ved beregning av et eventuelt prisavslag eller erstatning må kjøper selv dekke tap/kostnader opptil et beløp på kr 10 000 (egenandel).
Ikke-forbruker (næringsdrivende) – definisjon
Hvis kjøper er en juridisk person, eller en fysisk person som hovedsakelig handler som ledd i næringsvirksomhet, vil kjøpet ikke anses som et forbrukerkjøp.
Ikke-forbruker – avtalevilkår
Eiendommen har en mangel dersom den ikke er i samsvar med kravene som følger av avtalen.
Eiendommen selges «som den er», og selgers ansvar utover det konkret avtalte er da begrenset etter avhendingsloven § 3-9, første ledd andre setning.
Avhendingsloven § 3-3 andre ledd fravikes, og hvorvidt boligens arealsvikt utgjør en mangel vurderes etter avhendingsloven § 3-8.
Informasjon om kjøpers undersøkelsesplikt, herunder oppfordringen om å undersøke eiendommen nøye, gjelder også for kjøpere som ikke anses som forbrukere.
Det forutsettes at hjemmel overføres til kjøper. Hvis kjøper ikke ønsker hjemmelsoverføring av eiendommen, må det tas forbehold om dette i budet.
Meglers vederlag
Meglers vederlag betales av selger og er avtalt til:
Vederlag: 1,30 % av salgssummen
Vederlag:
Fotopakke inkl rådgivning stylist kr 6 500,00
Kontroll av hjemmel og heftelser kr 2 900,00
Markedsføringspakke Xtra - Finn.no, Hjem.no, smartannonser sosiale medier og nettaviser og BSR boligmatch kr 29 900,00
Oppgjør kr 7 500,00
Tilrettelegging kr 17 000,00
Visninger pr stk (3 visninger inkludert) kr 2 500,00
Utlegg:
Tinglysing sikring kr 545,00
Andre utgifter:
AX tilstandsrapport leilighet kr 9 950,00
Boligselgerforsikring Gjensidige Andel/Aksje regnes av prisant. kr 8 473,50
Vi er opptatt av verdiskapning, og har knyttet til oss samarbeidspartnere som skal sikre våre kunder de beste produkter og tjenester;
• Gjensidige leverer boligselgerforsikring og tilbyr bygningsforsikring
• Boligkjøperforsikring leveres av Hiscox og med Sedgwick som skadebehandler, og er formidlet gjennom Gjensidige.
• BN bank tilbyr finansieringsløsninger
• Vår avdeling Krogsveen Pluss tilbyr flyttetjenester som utvask, visningsvask, lager, tømming og transport av flyttelass, i tillegg til å formidle kontakt med Flip for overflateoppussing.
• I forbindelse med overtagelse av eiendommen tilbyr Overo avtale om strøm, alarm og bredbånd.
• Krogsveen er, sammen med øvrige bransjeaktører, medeier i Bomega AS som tilbyr den digitale annonseringsplattformen Hjem.
Opplysninger om oppdraget
Oppdragsnummer 74-0091/25
Eiendomsmegler Krogsveen AS, avd. Åsane
Åsane Senter 42, 5116, ULSET
950 007 613
Oppdragets KR-kode KR74.2591
Dato
Sist oppdatert: 04. februar 2026 kl. 16:38
Dokumenter
Dokumenter
PDF – 424 KB
PDF – 312 KB
PDF – 29 KB
PDF – 127 KB
PDF – 392 KB
Område
Legg til steder som er viktige for deg
Visning
For å delta på visning, ber vi om at du melder deg på. Da sikrer vi at du får nødvendig informasjon og at det er satt av tilstrekkelig med tid. Kontakt megler dersom annet tidspunkt ønskes. Husk å lese salgsoppgaven før visningen, så du stiller forberedt.
Ønsker du kun å bli holdt orientert, kan du fra eiendommens hjemmeside få varsel om solgtpris, eller kontakte megler.
Lurer du på noe?
Unngå doble boligrenter
Vi tilbyr gunstig forsikring.
Vurderer du utleie?
Få et tilbud fra Utleie KrogsveenHva koster lånet?
Sjekk estimert lånekostnadVil du varsles om lignende boliger?
Ved å lagre ditt boligsøk hos oss får du beskjed når vi har en bolig som ligner denne, før den legges ut på markedet!

