St. Jørgens vei 13
5 950 000 kr
65 m²
2 soverom
Solgt
Hovin
Rålekker og nyoppusset 3R toppleilighet. Solrik balkong og lite innsyn. Pipeløp. Vinduer 2017. Familievennlig!
Prisantydning
5 950 000 krAndel fellesgjeld
298 000 krOmkostninger
19 252 krTotalpris
6 267 252 kr
Pris
Bruksareal
75 m²BRA-I (internt bruksareal)
65 m²BRA-E (eksternt bruksareal)
10 m²
Areal
Etasje
3Byggeår
1954Soverom
2 soveromBad
1 badType
AndelsleilighetEierform
AndelFasiliteter
Balkong/TerrasseFellesutgifter
5 237 krEnergimerke
Rød F
Nøkkelinfo
Unngå doble boligrenter
Vi tilbyr gunstig forsikring.
Vurderer du utleie?
Få et tilbud fra Utleie KrogsveenHva koster lånet?
Sjekk estimert lånekostnadBeskrivelse
Kort om eiendommen
Tom Martinsen v/ Krogsveen har gleden av å presentere St. Jørgens vei 13! En attraktiv og innbydende 3-toppleilighet med sentral beliggenhet på Hovin. Leiligheten ligger høyt og fritt til i byggets 3.etasje med flott utsikt samt lite innsyn. Videre har leiligheten en herlig vestvendt balkong på 8 kvm med fine solforhold.
Kvaliteter:
Hasle t-bane med linje 5. Helsfyr, Ensjø og Tøyen med linje 1-4
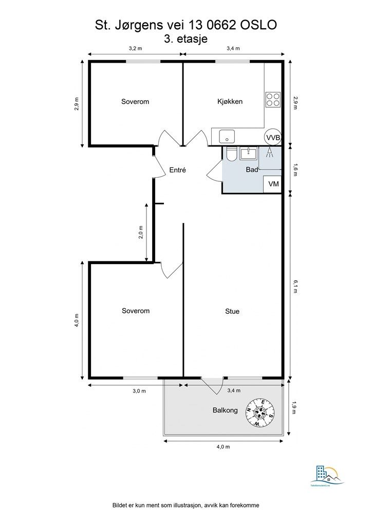
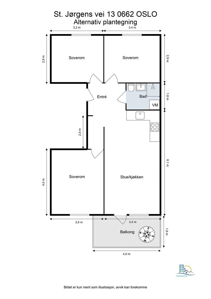
Mulighet å etablere et ekstra soverom, se salgsoppgave
Hasle Torg rett ved med et godt servicetilbud
Joker med søndagsåpent midt i borettslaget
Vestvendt balkong på hele 8 kvm
Sentral og attraktiv beliggenhet
Gjennomgående planløsning
Flotte og grønne uteområder
Gulvvarme i alle rom
Vinduer fra 2017
Internett inkl.
Tre boder
Velkommen!
Område
Legg til steder som er viktige for deg
På flyttefot? Tenk kjøp og salg samtidig.
Få din egen rådgiver gjennom hele kjøps- og salgsprosessen. Det starter med en verdivurdering.
Unngå doble boligrenter
Vi tilbyr gunstig forsikring.
Vurderer du utleie?
Få et tilbud fra Utleie KrogsveenHva koster lånet?
Sjekk estimert lånekostnadVil du varsles om lignende boliger?
Ved å lagre ditt boligsøk hos oss får du beskjed når vi har en bolig som ligner denne, før den legges ut på markedet!
På flyttefot? Slik gjør vi det enklere for deg
Skreddersydd flyttepakke
Vi fikser håndverkere, vask, pakking, lagring og transport, og legger ut for utgiftene underveis.
Hjelp med både kjøp og salg
Hos oss har du din egen rådgiver gjennom hele kjøps- og salgsprosessen.
Hjelp til finansiering
Vårt samarbeid med BN Bank sikrer deg rask og løsningsorientert hjelp, til konkurransedyktige betingelser.




