Frydenlund 43C
2 800 000 kr
157 m²
3 soverom
Komplett salgsoppgave

Frydenlund
Rekkehus med stort potensial på populære Frydenlund | 3 sov | Vestvendt terrasse og balkong | Garasje
Prisantydning
2 800 000 krAndel fellesgjeld
374 289 krOmkostninger
11 040 krTotalpris
3 185 329 kr
Pris
Bruksareal
175 m²BRA-I (internt bruksareal)
157 m²BRA-E (eksternt bruksareal)
18 m²TBA (terrasse-balkongareal)
20 m²
Areal
Etasje
3Byggeår
1977Soverom
3 soveromBad
1 badType
RekkehusEierform
AndelFellesutgifter
6 780 krEnergimerke
E
Nøkkelinfo
Unngå doble boligrenter
Vi tilbyr gunstig forsikring.
Vurderer du utleie?
Få et tilbud fra Utleie KrogsveenHva koster lånet?
Sjekk estimert lånekostnadBeskrivelse
Kort om eiendommen
Krogsveen v/Vindum ønsker velkommen til attraktive Frydenlund!
Boligen har en funksjonell planløsning som gir god plass til hele familien, men bærer preg av en viss tidsmessighet. Her får du ditt eget blanke lerret, og mulighet til å få boligen akkurat slik du selv ønsker!
Høydepunkter:
- Rekkehus over tre plan med tre soverom, gjestetoalett og bad
- God plan- og romløsning med muligheter for ytterligere innredning
- Nydelig vestvendt terrasse hvor man nyter gode solforhold
- Garasjeplass i felles garasjerekke
- På Frydenlund bor man sentralt og barnevennlig til. Et område uten gjennomgangstrafikk og med kort vei til sentrum, dagligvare, skoler og barnehager
Velkommen til en hyggelig visning!
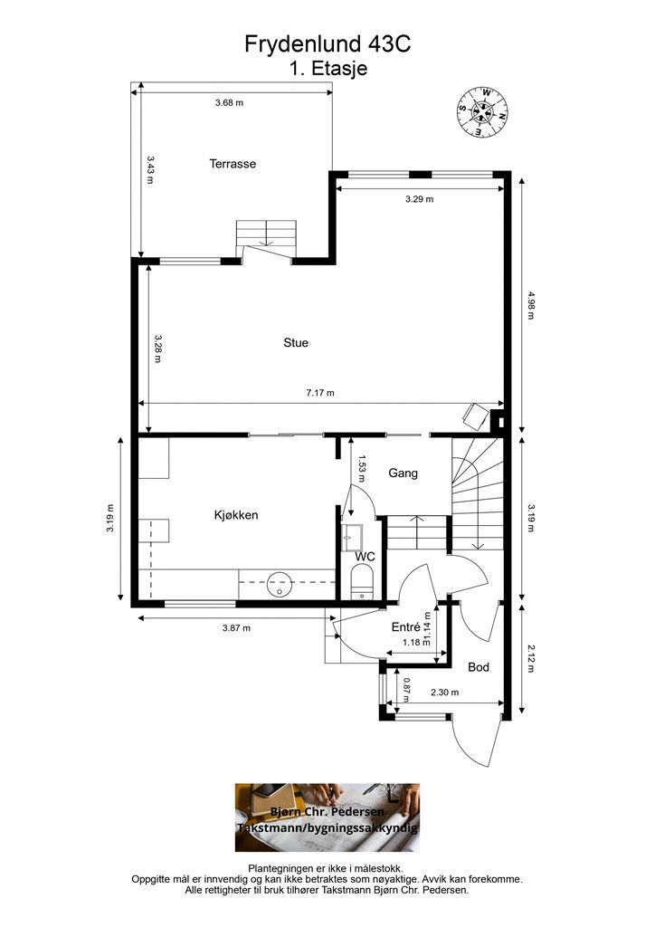
Innhold og byggemåte
Innhold og byggemåte
Eiendommen
Frydenlund 43C, 3238 SANDEFJORD
Kommunenummer 3907, gårdsnummer 42, bruksnummer 692, ideell andel 1/1
Andelsnummer 29, Movold Borettslag, organisasjonsnummer 952695614
Innhold
Totalt bruksareal BRA: 175 kvm
BRA-i:
Rekkehus:
Kjeller 51 kvm: Gang, vaskekjeller og tre boder.
1. etasje 58 kvm: Entré, gang, stue, kjøkken, toalettrom og en bod.
2. etasje 48 kvm: Gang, bad og tre soverom.
BRA-e:
Bakkeplan 18 kvm: Garasje.
Åpent areal:
1. etasje 13 kvm: Terrasse.
2. etasje 7 kvm: Balkong.
Boligen disponerer parkering for en bil i felles garasjerekke, som er oppmålt til 18 m2 (BRA-e). Garasjen er avlåst på befaringsdagen og derfor skjønnsmessig oppmålt. Avvik kan forekomme.
Terrasse er oppmålt til 13 m2 (TBA). Balkong er oppmålt til 7 m2 (TBA).
Arealet under kjellertrapp er medregnet som bruksareal ettersom arealet ikke opptar større plass enn trappens projeksjon.
Vedlagte plantegninger er ikke målbare. De oppgitte arealer er hentet fra rapport med befaringsdato 18.03.2026 utført av Supertakst AS v/Bjørn Chr. Pedersen.
Byggemåte
Selger har innhentet en tilstandsrapport av boligen. Dersom det er registrert avvik, er disse klassifisert med tilstandsgrader (TGIU, TG2 og/eller TG3). Kjøper overtar ansvaret for de opplysninger som fremkommer av salgsdokumentasjonen, og kan ikke gjøre gjeldende som mangel noe som burde vært kjent eller som ikke kan anses å ha betydning for avtalen.
Bygningen er iht. tilstandsrapport et rekkehus over tre plan, oppført i 1977. Bygningen er oppført på støpt betong mot grunn med grunnmur av betong. Yttervegger, etasjeskillere og tak er i trekonstruksjoner. Fasader har liggende trekledning og saltaket er tekket med betongtakstein, hvor takomlegging er vurdert å være fra 2014. Takkonstruksjonen er et saltak, men er en lukket konstruksjon. Vinduer og dører har to-lags isolerglass med rammer og karmer i tre, mens det i kjelleren er rammer og karmer av PVC. Vinduer i kjeller er fra 2014, og vinduer i stue og på soverom 2 er fra 1998. Ytterdøren er en sandwichkonstruksjon med isolerglassfelt. Det er en vestvendt terrasse på 13 m² og en vestvendt balkong på 7 m². Pipa er en helsteins teglpipe med montert vedovn.
Boligen disponerer en garasje på 18 m² i en felles garasjerekke. Bygningskonstruksjonen er ikke beskrevet i rapporten. Ferdigattest for garasjene er datert 18.06.2012.
Sikringsskap med skrusikringer, måler og kursoversikt er plassert i bod 2. Det elektriske anlegget er uten dokumentasjon/samsvarserklæring.
Det gjøres spesielt oppmerksom på at følgende bygningsdeler er gitt Tilstandsgrad 3 (TG3) — Store eller alvorlige avvik:
Drenering
- Drenering: Drenering er fra byggeåret og med bakgrunn i alder kan det ikke gis noen garanti for dreneringens tilstand. Normal levetid for drenering er ca. 30 år. Manglende grunnmursplast skyldes vanlig byggeskikk da huset ble bygget. Uten denne beskyttelsen er grunnmuren mer utsatt for fukt fra omkringliggende masser. Fuktmerker eller misfarging på gulv og nedre del av vegger. Kan tyde på kapillæroppsug fra grunnen eller inntrengning fra utsiden.
Toalettrom
- Toalettrom: Det registreres fuktskade i gulv. Det er riss/skade på klosettet. Klosettet er løst og må festes bedre til gulv.
Følgende bygningsdeler er gitt Tilstandsgrad 2 (TG2) — Avvik som kan kreve tiltak:
Grunnmur og fundament
- Grunnmur og fundament: Det registreres riss/sprekker i grunnmuren. Det er ukjent om sprekker er gjennomgående. Setninger kan ikke utelukkes. På innvendig side er det observert fuktmerker og kalk/saltutslag, noe som indikerer fuktvandring i konstruksjonen.
Rom under terreng
- Rom under terreng: Det er observert sprekker i det støpte dekket. Det registreres mineralutslag (salt/kalkutsalg) i overflater som er et symptom på fuktvandring gjennom grunnmur. Det er ikke etablert membran/tettesjikt i vaskekjeller. Rommets lekkasjesikkerhet kan ikke verifiseres. Etasjen har utlektede vegger under terreng, noe som er en risikokonstruksjon med tanke på fukt og kondensproblematikk. Bygningen er fra en tid hvor det ikke var vanlig med fuktsperre mot grunn, og det er derfor økt fare for kapillært oppsug. Det er foretatt hulltaking og utført fuktmåling med egnet instrument (Protimeter MMS), i utlektet kjellervegg. Det ble ikke registrert forhøyede fuktverdier. Målingen gir kun et øyeblikksbilde av forholdene og kan endre seg med årstider, fukt- og temperaturforhold. Målingene viser vektprosent under 16.
Balkong, terrasse, platting
- Balkong, terrasse, platting: Det registreres noe skjevheter i konstruksjonen. Fundamenter er skjult av konstruksjonen og derfor ikke inspisert. Skjulte skader kan ikke utelukkes. Terrassebord bærer preg av alder. Balkongen danner tak over innvendige rom i 1.etasjen. Tettesjiktet er skjult og ikke tilgjengelig for inspeksjon. Ukjent alder.
Vinduer og dører
- Vinduer og dører: Vinduer bærer preg av alder. Karmer er værslitte.
Yttervegger
- Yttervegger: Musesperre i ytterhjørner har behov for utbedring. Forholdet ligger under borettslagets ansvar.
Takkonstruksjon og loft
- Takkonstruksjon og loft: Takkonstruksjonen er en lukket konstruksjon. Inspeksjon ikke mulig. Skjulte skader kan ikke utelukkes. TG 2 er satt for å belyse risiko ved manglende inspeksjonsmulighet i henhold til NS3600.
Kjøkken
- Overflater og innredning: Kjøkkeninnredningen bærer preg av alder og har diverse skader.
- Avtrekk: Avtrekk har begrenset funksjon.
Avløpsrør
- Avløpsrør: Avløpsanlegg fra byggeåret har nådd en høy alder og skader / lekkasjer kan oppstå.
Vannledninger
- Vannledninger: Vannrør er i all hovedsak vurdert å være fra byggeåret, og har nådd en alder hvor det vil være økt risiko for lekkasjer.
Våtrom: Bad
- Overflater: Vindu og dør er plassert i våtsone. Vindu og dør med karmer og listverk vil ikke tåle belastningen av fritt vann. Det registreres knirk i gulvet. Ukjent årsak. Det registreres "bom" i gulvflis (mangelfull heft mot underlag). Selv om bom eller hullyd ikke alltid er et umiddelbart problem, bør det overvåkes nøye for eventuell utvikling i sprekker i flisfuger e.l., oppstår dette må en foreta tiltak for å begrense utviklingen. Flislagte overflater er ikke fagmessig utført. Gulvet har fall til sluk, men dette er mindre enn referansenivået. Lokalfall i sluksonen er målt til 7 mm. Fallet er mindre enn 1:50. Fallforhold er ikke kontrollert under badekar pga manglende adkomst for måling.
- Membran, tettesjikt og sluk: Tilstandsgrad 2 er satt med bakgrunn i alder på tettesjikt, og at det ikke kan verifiseres om det er benyttet tilstrekkelig tettesjikt på våtrommets gulv- og veggplater. Våtrommets lekkasjesikkerhet kan ikke bekreftes, og derav økt risiko for lekkasjer.
- Ventilasjon: Rommet har kun naturlig avtrekk og vil kun være effektivt ved vind og større temperaturforskjeller inne og ute. Tilstandsgrad 2 er satt selv om løsningen tilfredsstiller forskriften ved byggeåret.
Øvrige innvendige overflater
- Øvrige innvendige overflater: Innvendige overflater bærer preg av alder og slitasje. Belegg og vegg-til-vegg tepper har skader, bulker og svanker. Det er registrert bomlyd i gulvfliser. Parkett har skader. Tapet har stedvis manglende vedheft. Enkelte sprekker er observert.
Følgende bygningsdeler er ikke undersøkt (TGIU):
Taktekking
- Taktekking: Ikke tilfredsstillende inspisert.
Helse, miljø og sikkerhet
Det er avvik på rekkverk, håndløper eller åpninger mellom trinn på innvendig trapp i forhold til dagens forskriftskrav. Innvendig trapp mangler håndløper på begge sider. Forholdet avviker fra dagens forskriftskrav og tilfredsstiller ikke anbefalt sikkerhetsnivå. Manglende håndløper reduserer muligheten for støtte og stabilitet ved bruk av trappen, og øker risikoen for fallulykker, særlig for barn, eldre og personer med redusert balanse. Kjellertrappen oppfyller ikke dagens krav med for store åpninger mellom trinn, noe som gir lavere sikkerhetsnivå enn dagens standard.
Tilstandsrapporten er inntatt i salgsoppgaven. Rapporten inneholder informasjon om eventuelle avvik og konsekvensen av disse. Dersom det er registrert avvik med TG3, har den bygningssakkyndige i tillegg gitt et anslag på hva det vil koste å utbedre disse. Ettersom kjøper regnes å være kjent med forhold som tydelig fremgår av tilstandsrapporten, oppfordres du til å sette deg grundig inn i rapporten i sin helhet.
Selger beskriver også i egenerklæringsskjema:
Det er synlig utslag og merker på kjellervegg, og selger opplyser at dette er fra byggeår. Det har vært skadedyr i fellesområdene, og borettslaget engasjerte et skadedyrbekjempelsesfirma, men omfanget er ukjent. Selger opplyser videre at alt innvendig er å anse som fra byggeår, og at utbedringer som er gjort, er utført i regi av borettslaget.
Moderniseringer og påkostninger
Følgende moderniseringer er foretatt de senere år:
2016:
- Installert ny varmtvannsbereder.
Standard
Velkommen til Frydenlund 43C – Et rekkehus med attraktiv beliggenhet i et populært og barnevennlig boligområde. Boligen har en funksjonell planløsning som gir god plass til hele familien.
Boligen bærer preg av en viss tidsmessighet, så her får du ditt eget blanke lerret, og mulighet til å få boligen akkurat slik du selv ønsker!
Med borettslaget som ansvarlig for utvendige forhold, trenger du kun å fokusere på boligens interiør.
I husets første etasje finner du entrè, mellomgang/trapperom, kjøkken med god skapplass og med plass til kjøkkenbord for de daglige måltider, gjestetoalett og en lys, trivelig stue med plass til både salong og spisestue. Fra stuen er det utgang til vestvendt terrasse og hage. Her er svært gode solforhold i rolige omgivlser. Hagen er pent opparbeidet med plen, prydbusker og tett hekk, beliggende mot åpne fellesarealer.
I andre etasje finner du badet og tre soverom - hvor hovedsoverommet har utgang til balkong. Det er godt med garderobeplass på soverommene.
I kjelleren er det et stort lagringsrom, praktisk vaskerom med utslagsvask, opplegg til vaskemaskin og nyere varmtvannsbereder samt en mindre bod. Det store rommet er pr idag uinnredet, men flere naboer har benyttet muligheten til å innredet dette til kjellerstue. Det kreves søknad til kommunen og borettslaget samt endring av rømningsforholdene. En slik endring vil være ny eiers ansvar og risiko, og kun ment som innspill til muligheter for ytterligere innredning.
Alt i alt er dette en familievennlig bolig som er klart for nye impulser, men med mange gode kvaliteter - fine utearealer og en beliggenhet som kombinerer ro og nærhet til det du trenger i hverdagen. Velkommen til Frydenlund!
Løsøre og tilbehør
Vi viser til liste fra Norges Eiendomsmeglerforbund som gjelder fra 01.01.2020 angående løsøre og tilbehør.
Oppvarming
Oppvarming av boligen er basert på elektrisitet og vedfyring. Det er montert vedovn i stuen.
Dersom beboelsesrom ikke har vegg- eller fastmonterte varmekilder ved visning, følger dette heller ikke med.
Ferdigattest/brukstillatelse
Det foreligger ferdigattest for oppføring av 6-manns-bolig datert 24.05.1976. Det foreligger i tillegg en ferdigattest for garasjer datert 18.06.2012. Disse kan fås ved henvendelse til megler.
Det foreligger godkjente og byggemeldte tegninger for rekkehuset som stemmer med dagens bruk, datert januar 1972. Det foreligger også godkjente og byggemeldte tegninger for garasjene, stemplet av kommunen 13. juli 2009.
Det foreligger en tegning for 'Ny takløsning' datert 13.03.2014. Det er ikke funnet en tilhørende byggesak eller ferdigattest for dette tiltaket i de mottatte dokumentene.
Kjøper overtar alt ansvar, kostnad og risiko for dette videre.
Tinglyste heftelser og rettigheter
Utover andel fellesgjeld overdras leiligheten fri for pengeheftelser.
Borettslaget har legalpant for forfalte felleskostnader og andre krav som følger av borettslagsforholdet iht. burettslagsloven § 5-20. Pantet er begrenset oppad til 2G (G = folketrygdens grunnbeløp).
Det er tinglyst 2 servitutter på borettslagets eiendom. Disse omhandler blant annet rett for kommunen til å kjøpe ubebygget grunn og bestemmelser om vann- og kloakkledninger.
Servituttene vil følge eiendommen. Kjøpers bank vil få prioritet etter ovennevnte heftelser og servitutter.
Eventuell adgang til utleie
Andelseier kan ikke uten samtykke fra styret i borettslaget overlate bruken av boligen til andre. Med samtykke kan andelseier overlate boligen til andre i inntil tre år hvis andelseier har bodd i boligen i minst ett av de to siste år. Utleie i andre tilfeller kan godtas ved særlige grunner, jf. burettslagslova § 5-6. Utleie forutsetter at leiligheten har forsvarlige radonverdier. Se også borettslagets vedtekter og konferer megler ved spørsmål.
Diverse
Boligens selges ved fullmektig. Fullmektigen har ikke selv bebodd eiendommen og har derfor ikke kunnskap om eiendommens tilstand utover det som fremkommer i salgsoppgave og tilstandsrapport.
Eiendommen vil ikke bli ytterligere rengjort før overtakelse.
Energimerking
Denne boligen er energimerket. På en skala fra A til G, der A er best, har denne boligen oppnådd oransje E (en normalbolig vil gjerne ligge i området C-F). Kopi av energiattest ligger vedlagt i salgsoppgaven eller kan fås ved henvendelse til megler.
Beliggenhet og tomteforhold
Beliggenhet og tomteforhold
Beliggenhet
Frydenlund er et av Sandefjords attraktive områder. Det er veletablert og et rolig, godt nabolag å bo i. Her er ingen gjennomgangstrafikk, så det er trygt og godt for de med barn. Like utenfor hekken er et stort fellesområde hvor det er god plass til lek for de minste i familien. Og like utenfor ytterdøren er det i tillegg et friareal med fotballøkke og fri lek for barna. Det er flere lekeplasser i nærmiljøet, men nærmeste ligger en tusleavstand fra huset.
På Frydenlund bor man sentralt med kort vei til det aller meste. Her bor man med umiddelbar nærhet til dagligvareforretning, treningssenter, busstopp som har godt rutenett til sentrum og nærliggende storbyer samt Pindsle med et bredt utvalg av detaljhandel. Sentrum ligger med fin gangavstand fra Frydenlund.
Skoler og barnehager har man i nærområdet, være seg SVGS, Mosserød, flere privat skoler og barnehager. For pendlere er det enkel adkomst til jernbanestasjonen, E18 og Torp.
Adkomst
Se Google maps - det er enkelt å finne frem i kartet. Det vil bli skiltet med Krogsveen visningsskilt ved fellesvisninger.
Barnehager, skoler og fritid
Boligen sokner til Mosserød barneskole og Breidablikk ungdomsskole. Informasjon om tilhørende skolekretser er hentet fra Prognosesenteret som dataleverandør, og tilhørigheten kan årlig endres av kommunen. Dersom skole- og barnehagetilbud er av betydning for kjøpet, ber vi om at det rettes en særskilt henvendelse til Skolesjefens kontor for oppdatert informasjon.
Beskrivelse av tomt
Eiertomt på 10 789,5 kvm som tilhører borettslaget. Oppgitt tomteareal er hentet fra digitalt eiendomskart fra Sandefjord kommune. Oppgitt/anslått areal kan derfor avvike fra nøyaktig areal.
Fellesområdene er opparbeidet med kjøre-og gangveier samt plenområder. Det er også et friareal tilrettelagt for aktiviteter som fotballsparking og lekeplass.
Hver enhet disponerer tilliggende utendørsareal. Boligen har pent opparbeidet uteområde på fremsiden med plen, prydbusker og gangvei. Her kan det være mulighet for å anlegge parkering, dog vil dette måtte avklares med borettslaget.
Det er godt med morgensol på fremsiden av boligen, slik at morgensolen kan nytes i rolige omgivelser. Med utgang fra stuen har man tilgang til terrasse og hage, som er vestvendt. Her er svært gode solforhold. Det er plensatt hage med prydbusker og tett hekk. Eiendommen er beliggende mot et åpent og fint fellesareal, slik at man gode solforhold.
Parkering
Boligen disponerer en garasjeplass i felles garasjerekke. Borettslaget har tilrettelagt for elbillading med Zaptec-system. Øvrige parkeringsplasser er tilgjengelig for gjester.
Det gjøres oppmerksom på at dagens parkeringsløsning er etablert på borettslagets fellesareal, og at parkeringsplassene således ikke eies av den enkelte andelseier. Det er borettslaget i fellesskap som beslutter bruken, og du har selv ikkev eierrett og rettsvern for parkeringsplassen.
Vei, vann og avløp
Eiendommen har adkomst via privat vei med felles vedlikeholdsansvar. Eiendommen er tilknyttet kommunalt ledningsnett via private stikkledninger. Borettslaget er ansvarlig for private stikkledninger til bygningen. Eiendommen har ikke installert vannmåler.
Regulerings-og arealplaner
Eiendommen er uregulert, og er i kommuneplanens arealdel avsatt til boligbebyggelse og 15 m² er avsatt til blå/grønnstruktur. Kommuneplanen gjelder foran eldre reguleringsplaner ved motstrid.
Kommunen opplyser at eiendommen berøres av følgende hensynssoner:
H310: Arealet ligger innenfor fareområde for ras- og skredfare, som betyr at området ligger under marin grense og/eller ligger i et kjent fareområde for kvikkleire.
H410: Arealet ligger innenfor konsesjonsområdet for fjernvarme.
H220: Arealet ligger innenfor gul støysone, som betyr at eiendommen er utsatt for støy fra veitrafikk, jernbanen, flytrafikk eller skytebane.
H530: Arealet ligger innenfor et område med særlige viktige landbruksinteresser og/eller har stor verdi for friluftsliv.
At en eiendom ligger innenfor en eller flere hensynssoner får ikke betydning før borettslaget eventuelt søker om å gjennomføre nye tiltak på eiendommen. Konsekvenser av hensynssoner kan eksempelvis være krav fra kommunen om geotekniske vurderinger, støyreduserende tiltak, m.m.
Situasjonskart ligger vedlagt salgsoppgaven. Øvrige utsnitt av planer og bestemmelser kan fås ved henvendelse til megler.
Økonomi
Økonomi
Boligens kostnader
Totale felleskostnader er pr 16/03-2026 kr 6 780,- per måned. Dette inkluderer renter og avdrag på fellesgjeld, TV-anlegg, kommunale avgifter og renovasjon.
Felleskostnadene er fordelt slik:
• Felleskostnader: kr 3 520,-
• Renter felleslån: kr 1 564,-
• Avdrag felleslån: kr 1 063,-
• TV-Anlegg: kr 633,-
Borettslagets lån har flytende rente, og felleskostnadene kan derfor endres ved rentejusteringer.
Styret har bekreftet at det ikke er planlagt påkostninger som vil medføre økninger i felleskostnadene i nær fremtid. Det pågår imidlertid en undersøkelse av fukt i en kjeller på et annet rekkehus, men ingen økonomiske beslutninger er fattet.
Kommunale utgifter
Kommunale avgifter faktureres borettslaget og er dekket gjennom de månedlige felleskostnadene.
Strøm: Årlig strømforbruk og kostnad er usikkert.
TV/Internett: Tilknyttet Kabel-TV og Internett via Telenor. Hastighet og månedlig kostnad er ikke oppgitt.
Alarm: Eiendommen er tilknyttet alarm, men abonnementet følger ikke med salget.
Utgiftene er basert på nåværende eiers forbruk og avtaler.
Formuesverdi
Formuesverdi for 2024 var kr 773 555,- ifølge Skatteetaten. Beløpet forutsetter at eier bor fast i boligen (primærbolig).
Ved eventuell øvrig bruk av eiendommen (f.eks. fritidsbolig, pendlerbolig, utleieobjekt) var formuesverdien for 2023 kr 3 094 218,-.
Fra 2026 har Stortinget vedtatt en oppdatert modell for beregning av formuesverdi for primærbolig, så avvik kan forekomme.
For mer informasjon se skatteetaten.no
Eiendomsskatt
Det er p.t ikke vedtatt eiendomsskatt for eiendommer i kommunen.
Opplysninger om fellesgjeld
Andel formue er kr 44 121,- pr. 01.01.2026
Andel fellesgjeld er kr 374 289,- pr. 16.03.2026
Total fellesgjeld for boligselskapet er kr 11 824 293,- pr. 16.03.2026 og lånevilkårene er:
Lånenummer: 16366521821, DNB Bank ASA
Annuitetslån, 2 terminer per år.
Rentesats per 16.03.2026: 5% pa.
Antall terminer til innfrielse: 37
Saldo per 16.03.2026: 11 824 293
Andel av saldo: 374 290
Første termin/første avdrag: 30.12.2023 ( siste termin 30.06.2044 )
Flytende rente
Det er ikke vedtatt avtale om individuell nedbetaling av fellesgjeld.
Omkostninger
2 800 000,00 Prisantydning
374 289,00 Andel av fellesgjeld
--------------------------------------------------------
3 174 289,00 Pris inkl. fellesgjeld
Omkostninger
9 950,00 Gjensidige Boligkjøperpakke (valgfri)
545,00 Tinglysing hjemmel
545,00 Tinglysing panterettsdokument
--------------------------------------------------------
11 040,00 Omkostninger totalt
--------------------------------------------------------
3 185 329,00 Totalpris inkl. omkostninger
--------------------------------------------------------
Dersom borettslaget har fellesgjeld, vil leilighetens andel av fellesgjelden komme i tillegg til kjøpesummen. Denne gjelden skal ikke innbetales i oppgjøret, men følger leiligheten. Det tas forbehold om endringer i avgifter og gebyrer.
Tilbud om lånefinansiering
Megler formidler gjerne kontakt med rådgiver hos vår samarbeidspartner BN Bank. De har konkurransedyktige betingelser samt rask og løsningsorientert behandling av din lånesøknad. Krogsveen mottar et honorar dersom lån opprettes.
Betalingsbetingelser
Kjøpesum inkludert omkostninger, samt pantedokument tilknyttet eventuelt lån, skal være disponibelt hos megler 2 virkedager før overtagelsen.
Annen viktig informasjon
Annen viktig informasjon
Eier
Sigveig Karlsson
Informasjon om borettslaget
Leiligheten er tilknyttet Movold Borettslag. Borettslaget består av 34 boliger.
Forretningsfører er Boligbyggelaget Usbl.
Beboerne plikter å delta på fellesdugnader og klippe plen etter turnusplan.
Dyrehold er tillatt, men hunder skal holdes i bånd, jf. ordensreglene.
Borettslaget er forsikret i If Skadeforsikring NUF, med polisenummer SP561472.
Viktig informasjon:
På generalforsamlingen 05.05.2025 ble det vedtatt å undersøke en kjeller for å avdekke omfanget av et fuktproblem. Styret har bekreftet 17. mars 2026 at det utover dette ikke er planlagte påkostninger som vil medføre økning i felleskostnadene i nær fremtid.
Megler har kopi av budsjett for 2025 og årsregnskap for 2024. Årsregnskapet for 2024 viste et overskudd på kr 473 222,-. Borettslagets disponible midler var kr 1 216 505,- per 31.12.2024. Egenkapitalen var negativ med kr -4 011 759,- per 31.12.2024, noe som i regnskapet forklares med at bygningsmassen er balanseført til historisk kost, og at den virkelige verdien vurderes å være høyere.
I henhold til borettslagets vedtekter må kjøper godkjennes av styret som ny andelseier. Det er kjøpers ansvar at styregodkjenning blir gitt, men styret kan ikke nekte godkjenning uten saklig grunn. Iht. burettslagslova kan man bare eie en andel i borettslaget. Kun fysiske personer kan være andelseiere.
Øvrige andelseiere i borettslaget og eventuelt medlemmer av boligbyggelaget har forkjøpsrett. I henhold til burettslagslova tar dette inntil 20 dager å avklare fra melding om salget er gitt borettslaget. Dersom boligen tas på forkjøpsrett løses kjøper fra avtalen.
Borettslaget er tilknyttet Klare Finans AS som dekker manglende innbetaling av felleskostnader fra øvrige andelseiere. Avtalen om sikring er gyldig til avtalen sies opp av en av partene. Oppsigelsesfrist er 1 desember med gyldighet fra førstkommende årsskifte.
Dokumenter for borettslaget kan fås ved henvendelse til megler.
Overtakelse
Etter nærmere avtale. Overtakelse kan tidligst skje etter at forkjøpsretten for øvrige andelseiere i borettslaget og eventuelt medlemmer av boligbyggelaget er avklart, samt at styrets godkjennelse er avklart.
Boligselgerforsikring
Selger har i forbindelse med salget tegnet boligselgerforsikring levert av Gjensidige.
Boligselgerforsikringen dekker selgers ansvar etter avhendingsloven begrenset oppad til kr 14 millioner. Dersom kjøper oppdager forhold ved eiendommen som hen mener utgjør en mangel ved eiendommen, vil Gjensidige behandle reklamasjonen på vegne av selger. Forsikringsvilkår kan fås ved henvendelse til megler.
Vedlagt salgsoppgaven følger selgers egenerklæringsskjema og tilstandsrapport. Interessenter må sette seg inn i dokumentene før bud inngis.
Boligkjøperforsikring
Innen kontraktsmøtet må kjøper ta stilling til om det ønskes å bestille Boligkjøperpakken gjennom Gjensidige. I denne gunstige pakken er boligen ferdig forsikret og inkluderer rettshjelpsforsikring, også kalt Boligkjøperforsikring. Rettshjelpsforsikring gir trygghet og tilgang på profesjonell juridisk hjelp dersom det oppdages uventede feil eller mangler det første året etter overtagelse. Forsikringsselskapet behandler i så fall ethvert mangelskrav kjøper måtte ha overfor selger.
Boligkjøperpakken inkluderer bygningsforsikring for hus og hytte, innboforsikring, flytteforsikring og dobbel rentedekning - i situasjoner hvor kjøper ikke får solgt nåværende primærbolig.
Kjøper mottar ingen særskilt faktura for Boligkjøperpakken da kostnaden det første året legges til kjøpesummen for boligen. Det gjøres oppmerksom på Krogsveen mottar et honorar for denne formidlingen.
Produktark for Boligkjøperpakken ligger vedlagt i salgsoppgaven.
Dersom ikke boligkjøperpakke ønskes kan kun rettshjelpsforsikring, også kalt boligkjøperforsikring, tegnes særskilt via megler. Rettshjelpsforsikringen varer i 5 år fra overtagelse og leveres gjennom Gjensidige. Ta kontakt med megler for ytterligere informasjon.
Selskap og privatpersoner som driver med kjøp/salg/utvikling som ledd i egen næringsvirksomhet kan ikke tegne boligkjøperpakke eller rettshjelpsforsikring.
Budgivning
Forbrukerinformasjon om budgivning er vedlagt denne salgsoppgaven og er også på vår hjemmeside Krogsveen.no. Alle bud og budforhøyelser må inngis skriftlig. I tillegg må legitimasjon være fremlagt sammen med signatur fra budgiver.
Vi oppfordrer til å gi bud elektronisk via GI BUD-knappen på eiendommens hjemmeside på Krogsveen.no. Da vil samtlige vilkår bli oppfylt.
Eventuelle forhøyelser eller endringer av budet kan bekreftes pr SMS eller på e-post. Vi oppfordrer alltid til å kontakte megler pr. telefon i tillegg da forsinkelser i SMS og e-post kan forekomme.
For at budene skal kunne bli behandlet og videreformidlet skriftlig til alle involverte parter, må alle bud ha en tilstrekkelig lang akseptfrist, jf. eiendomsmeglingsforskriften § 6-3.
Selger må også skriftlig akseptere budet før aksept kan formidles til budgiver. Akseptfrist bør derfor være på minimum 30 minutter, og budforhøyelser må derfor skje i god tid før fristens utløp.
Bud i forbrukerforhold kan uansett ikke settes med kortere frist enn kl. 12.00 første virkedag etter siste annonserte visning. I tillegg kan ikke budet ha forbehold om at det skal holdes hemmelig ovenfor øvrige interessenter. Megler har iht lov om eiendomsmegling ikke anledning til å videreformidle disse budene, og de vil dermed heller ikke bli journalført.
Etter at eiendommen er solgt vil kjøper og selger få tilsendt budjournal. Øvrige budgivere kan få utlevert kopi av budjournalen i anonymisert form.
Hvitvaskingsreglene
I henhold til lov om hvitvasking og terrorfinansiering har megler plikt til å gjennomføre kontrolltiltak overfor kunder, herunder fullmektiger. Dette innebærer bl.a. å bekrefte kunders og reelle rettighetshaveres identitet på bakgrunn av fremvist gyldig legitimasjon eller på annen godkjent måte, samt å innhente opplysninger om kundeforholdets formål og tilsiktede art.
Dersom slike kundetiltak ikke kan gjennomføres, kan megler ikke etablere kundeforholdet eller utføre transaksjonen.
Hvis kjøper ikke bidrar til gjennomføring av kundekontrollen og dette fører til at transaksjonen blir forsinket eller ikke kan gjennomføres, vil dette ansees som mislighold av avtalen og gi selger rettigheter etter avhendingslova kapittel 5. I tilfeller der selger ikke bidrar til gjennomføring av løpende kundekontroll underveis i oppdraget, er det selger som misligholder sine forpliktelser etter avtalen og gi kjøper rettigheter etter avhendingslovens kapittel 4. Partene er selv ansvarlige for eventuelle kostnader og ansvar dette kan medføre. Eiendomsmegleren eller eiendomsmeglingsforetaket kan ikke holdes ansvarlig for de konsekvenser dette vil kunne få for partene eller andre som har interesser i eiendomshandelen.
Kjøper oppfordres til å innbetale kjøpesummen som ikke kommer fra låneinstitusjon i én samlet innbetaling fra egen konto i norsk bank. Megler har plikt til å melde fra til Økokrim om eiendomshandler som fremstår som mistenkelige. Melding sendes Økokrim uten at partene varsles.
Personopplysningsloven
I henhold til personopplysningsloven gjør vi oppmerksom på at interessenter kan bli registrert for videre oppfølging.
Lovanvendelse
Generelle bestemmelser
Salgsoppgaven er basert på de opplysningene selger har gitt til megler, den bygningssakyndiges tilstandsrapport, samt opplysninger innhentet fra kommunen, Kartverket og andre tilgjengelige kilder. Det er viktig at kjøper setter seg grundig inn i alle salgsdokumentene, herunder salgsoppgave, tilstandsrapport og selgers egenerklæring. Kjøper anses kjent med forhold som er tydelig beskrevet i salgsdokumentene, og slike forhold kan ikke påberopes som mangler. Dette gjelder uavhengig av om kjøper har lest dokumentene. Alle interessenter oppfordres til å undersøke eiendommen nøye, gjerne sammen med fagkyndig før bud inngis. Kjøper som velger å kjøpe usett kan ikke gjøre gjeldende som mangel noe han burde blitt kjent med ved undersøkelsen.
Dersom det er behov for avklaringer, anbefaler vi at interessenter rådfører seg med eiendomsmegler eller egne rådgivere før det legges inn bud.
En bolig som har blitt brukt i en viss tid, har vanligvis blitt utsatt for slitasje og skader kan ha oppstått. Slik bruksslitasje må kjøper regne med, og det kan avdekkes enkelte forhold etter overtakelse som nødvendiggjør utbedringer. Normal slitasje og skader som nødvendiggjør utbedring, er innenfor hva kjøper må forvente og vil ikke utgjøre en mangel.
Kjøper og selgers rettigheter og plikter reguleres av avtalen mellom partene, samt informasjonen som har vært tilgjengelig for kjøperen i forbindelse med handelen. Avtalen utfylles av avhendingsloven, og det gjelder ulike avtalevilkår avhengig av om kjøper er forbrukerkjøper eller ikke. Dette er nærmere beskrevet nedenfor.
På grunn av ulike avtalevilkår kan selger vurdere bud fra en som ikke er forbruker, ulikt fra en forbrukers bud. Dersom kjøper ikke er forbruker, er selger sitt mulige mangelsansvar begrenset fordi eiendommen selges "som den er". Selger kan ikke ta «som den er»- forbehold overfor en forbrukerkjøper. Selv et lavere bud fra en som ikke er forbruker kan foretrekkes fordi begrensningen i mulig mangelsansvar kan ha egenverdi for selger. Selger står fritt til å forkaste eller akseptere ethvert bud, og er for eksempel ikke forpliktet til å akseptere høyeste bud.
Budgiver skal i budskjema avgi egenerklæring om budgiver er forbruker eller næringsdrivende/ person som hovedsakelig handler som ledd i næringsvirksomhet. Budgivere får informasjon dersom andre bud er inngitt av en som ikke er forbruker.
Forbrukerkjøp - definisjon
Med forbrukerkjøp menes kjøp av eiendom når kjøperen er en fysisk person som ikke hovedsakelig handler som ledd i næringsvirksomhet.
Forbruker – avtalevilkår
Eiendommen har en mangel dersom den ikke er i samsvar med kravene som følger av avtalen, eller det foreligger brudd på bestemmelsene i avhendingsloven §§ 3-2 til 3-8. Hvis eiendommen ikke er i samsvar med det kjøperen må kunne forvente ut ifra alder, type og synlig tilstand, kan det være grunnlag for mangelskrav. Det samme gjelder hvis det er holdt tilbake eller gitt uriktige opplysninger om eiendommen. Dette gjelder likevel bare dersom man kan gå ut ifra at det virket inn på avtalen at opplysningen ikke ble gitt eller at mangelskravet ikke blir rettet i tide på en tydelig måte.
Boligen kan ha en mangel etter avhendingsloven § 3-3 andre ledd, dersom det er avvik mellom opplyst og faktisk innvendig areal, forutsatt at avviket er på 2% eller mer og minimum 1 kvm.
Ved beregning av et eventuelt prisavslag eller erstatning må kjøper selv dekke tap/kostnader opptil et beløp på kr 10 000 (egenandel).
Ikke-forbruker (næringsdrivende) – definisjon
Hvis kjøper er en juridisk person, eller en fysisk person som hovedsakelig handler som ledd i næringsvirksomhet, vil kjøpet ikke anses som et forbrukerkjøp.
Ikke-forbruker – avtalevilkår
Eiendommen har en mangel dersom den ikke er i samsvar med kravene som følger av avtalen.
Eiendommen selges «som den er», og selgers ansvar utover det konkret avtalte er da begrenset etter avhendingsloven § 3-9, første ledd andre setning.
Avhendingsloven § 3-3 andre ledd fravikes, og hvorvidt boligens arealsvikt utgjør en mangel vurderes etter avhendingsloven § 3-8.
Informasjon om kjøpers undersøkelsesplikt, herunder oppfordringen om å undersøke eiendommen nøye, gjelder også for kjøpere som ikke anses som forbrukere.
Det forutsettes at hjemmel overføres til kjøper. Hvis kjøper ikke ønsker hjemmelsoverføring av eiendommen, må det tas forbehold om dette i budet.
Meglers vederlag
Meglers vederlag betales av selger og er avtalt til:
Fastpris: 35 000,-
Vederlag:
Fotopakke kr 4 800,00
Kontroll av hjemmel og heftelser kr 4 600,00
Markedsføringspakke kr 29 900,00
Oppgjør kr 8 900,00
Tilrettelegging kr 14 900,00
Visninger - Alle inkludert kr 4 500,00
Utlegg:
Eierskiftegebyr forretningsfører (selger) kr 6 725,00
Innhenting av informasjon forretningsfører USBL kr 5 138,00
Innhenting av offentlig opplysninger Sandefjord - Norkart kr 3 504,00
Tinglysing sikring kr 545,00
Andre utgifter:
AX tilstandsrapport rekkehus/tomannsbolig over 100 kvm eller annen takstmann kr 15 000,00
Boligselgerforsikring Gjensidige Andel/Aksje regnes av prisant. kr 7 532,00
Vi er opptatt av verdiskapning, og har knyttet til oss samarbeidspartnere som skal sikre våre kunder de beste produkter og tjenester;
• I forbindelse med forberedelse av salget, innhenter vi informasjon om eiendommen hovedsakelig fra vår samarbeidspartner Ambita.
• Gjensidige leverer boligselgerforsikring og tilbyr bygningsforsikring
• Boligkjøperforsikring leveres av Hiscox og med Sedgwick som skadebehandler, og er formidlet gjennom Gjensidige.
• BN bank tilbyr finansieringsløsninger
• Vår avdeling Krogsveen Pluss tilbyr flyttetjenester som utvask, visningsvask, lager, tømming og transport av flyttelass, i tillegg til å formidle kontakt med Flip for overflateoppussing.
• I forbindelse med overtagelse av eiendommen tilbyr Overo avtale om strøm, alarm og bredbånd.
• Krogsveen er, sammen med øvrige bransjeaktører, medeier i Bomega AS som tilbyr den digitale annonseringsplattformen Hjem.
Opplysninger om oppdraget
Oppdragsnummer 22-0088/26
Eiendomsmegler Krogsveen AS, avd. Sandefjord
Jernbanealléen 13, 3210, SANDEFJORD
950 007 613
Oppdragets KR-kode KR22.2688
Dato
Sist oppdatert: 08. mai 2026 kl. 13:05
Dokumenter
Dokumenter
PDF – 914 KB
PDF – 170 KB
PDF – 6 MB
PDF – 17 MB
PDF – 312 KB
PDF – 29 KB
PDF – 127 KB
PDF – 392 KB
Område
Legg til steder som er viktige for deg
Visning
For å delta på visning, ber vi om at du melder deg på. Da sikrer vi at du får nødvendig informasjon og at det er satt av tilstrekkelig med tid. Kontakt megler dersom annet tidspunkt ønskes. Husk å lese salgsoppgaven før visningen, så du stiller forberedt. NB. Visning utgår dersom det ikke er noen påmeldte.
Ønsker du kun å bli holdt orientert, kan du fra eiendommens hjemmeside få varsel om solgtpris, eller kontakte megler.
Ta kontakt med megler for avtale om privatvisning. Ønsker du kun å bli holdt orientert, kan du fra eiendommens hjemmeside få varsel om solgtpris, eller kontakte megler.
Lurer du på noe?
Unngå doble boligrenter
Vi tilbyr gunstig forsikring.
Vurderer du utleie?
Få et tilbud fra Utleie KrogsveenHva koster lånet?
Sjekk estimert lånekostnadVil du varsles om lignende boliger?
Ved å lagre ditt boligsøk hos oss får du beskjed når vi har en bolig som ligner denne, før den legges ut på markedet!


























