Traverveien 31
5 380 000 kr
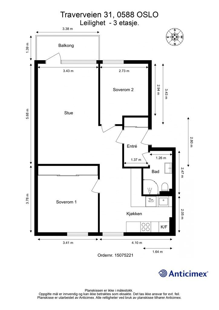
67 m²
2 soverom
Solgt

Presenteres av
Hanne PettersenDISEN/ÅRVOLL
FRODIG IDYLL! Lekker 3-roms m/solrik balkong og flott utsikt! - Nytt kjøkken og overflater - Parkering*
Prisantydning
5 380 000 krAndel fellesgjeld
304 218 krOmkostninger
18 978 krTotalpris
5 703 196 kr
Pris
Bruksareal
71 m²BRA-I (internt bruksareal)
67 m²BRA-E (eksternt bruksareal)
4 m²TBA (terrasse-balkongareal)
5 m²
Areal
Etasje
3Byggeår
1955Soverom
2 soveromBad
1 badType
AndelsleilighetEierform
AndelFasiliteter
Balkong/TerrasseFellesutgifter
5 942 kr
Nøkkelinfo
Unngå doble boligrenter
Vi tilbyr gunstig forsikring.
Vurderer du utleie?
Få et tilbud fra Utleie KrogsveenHva koster lånet?
Sjekk estimert lånekostnadBeskrivelse
Kort om eiendommen
Tonsenjordet borettslag er et svært populært borettslag på Disen/Årvoll.
Her er det et ungt, sporty og engasjert bomiljø.
Skiløypene/turstien starter rett utenfor blokken og fører opp i Lillomarka.
Dette er leiligheten for deg som ønsker kort vei til både byen og skogen.
Traverveien 31 har en fin beliggenhet i rolig blindvei og er omkranset av store grøntarealer.
Her bor du usjenert og skjermet i tredje etasje.
Denne leiligheten er det vanskelig å ikke falle for!
Nymalte vegger og enstavs-laminatgulv fra 2025
Solrik balkong med fin utsikt
Kvik-kjøkken fra 2025 m/integrerte hvitevarer
2 gode soverom
Tidløst bad m/gulvvarme og opplegg for vaskemaskin
Kjeller- og loftsbod m/gulvareal på hhv. 4 og 12 kvm
Varmtvann og fyring er inkl. i felleskostn.
Område
Legg til steder som er viktige for deg
På flyttefot? Tenk kjøp og salg samtidig.
Få din egen rådgiver gjennom hele kjøps- og salgsprosessen. Det starter med en verdivurdering.
Unngå doble boligrenter
Vi tilbyr gunstig forsikring.
Vurderer du utleie?
Få et tilbud fra Utleie KrogsveenHva koster lånet?
Sjekk estimert lånekostnadVil du varsles om lignende boliger?
Ved å lagre ditt boligsøk hos oss får du beskjed når vi har en bolig som ligner denne, før den legges ut på markedet!
På flyttefot? Slik gjør vi det enklere for deg
Skreddersydd flyttepakke
Vi fikser håndverkere, vask, pakking, lagring og transport, og legger ut for utgiftene underveis.
Hjelp med både kjøp og salg
Hos oss har du din egen rådgiver gjennom hele kjøps- og salgsprosessen.
Hjelp til finansiering
Vårt samarbeid med BN Bank sikrer deg rask og løsningsorientert hjelp, til konkurransedyktige betingelser.

