Vibes gate 13B

8 900 000 kr

78 m²

1 soverom

Komplett salgsoppgave

Terje Tveit
Pojan Eskandari
Presenteres av
Terje Tveit og Pojan Eskandari

MAJORSTUEN

Klassisk, gjennomgående 3-roms leilighet med peisovn, 2 bad og soverom – Hybel - Attraktiv beliggenhet!

    Pris

  • Prisantydning

    8 900 000 kr

  • Andel fellesgjeld

    78 728 kr

  • Omkostninger

    11 040 kr

  • Totalpris

    8 989 768 kr

    Areal

  • Bruksareal

    86 m²

  • BRA-I (internt bruksareal)

    78 m²

  • BRA-E (eksternt bruksareal)

    8 m²

    Nøkkelinfo

  • Etasje

    3

  • Byggeår

    1898

  • Soverom

    1 soverom

  • Bad

    2 bad

  • Type

    Andelsleilighet

  • Eierform

    Andel

  • Fellesutgifter

    4 953 kr

  • Energimerke

    Oransje G

Unngå doble boligrenter

Vi tilbyr gunstig forsikring.

Hva koster lånet?

Sjekk estimert lånekostnad

Beskrivelse

Kort om eiendommen

Velkommen til Vibes gate 13B, presentert av Terje Tveit i Krogsveen. Her får du en klassisk 3-roms leilighet med perfekt beliggenhet i Vibes gate - rolig og tilbaketrukket, men samtidig svært sentralt. Du har Majorstuen, Bogstadveien og et vell av butikker, kafeer og restauranter rett i nærheten. Offentlig transport er lett tilgjengelig med trikk, T-bane og buss, og populære parker som Frognerparken og Stensparken er bare en kort spasertur unna. Kort fortalt:
  • 2 bad, 2 kjøkken
  • Gjennomgående leilighet
  • God takhøyde opptil 3,03 meter
  • Soverom mot rolig bakgård
  • Peisovn i stuen
  • Attraktiv beliggenhet!
  • 2 lofts og 2 kjellerboder
  • Rosett og stukkatur
  • Rolig og meget sentral gate
  • Lave omkostninger, ingen dok.avgift Velkommen til visning!
  • Innhold og byggemåte

    Eiendommen

    Vibes gate 13B, 0356 OSLO
    Kommunenummer 301, gårdsnummer 214, bruksnummer 414, ideell andel 1/1
    Andelsnummer 30, Borettslaget Vibes gate 13, organisasjonsnummer 953460459

    Innhold

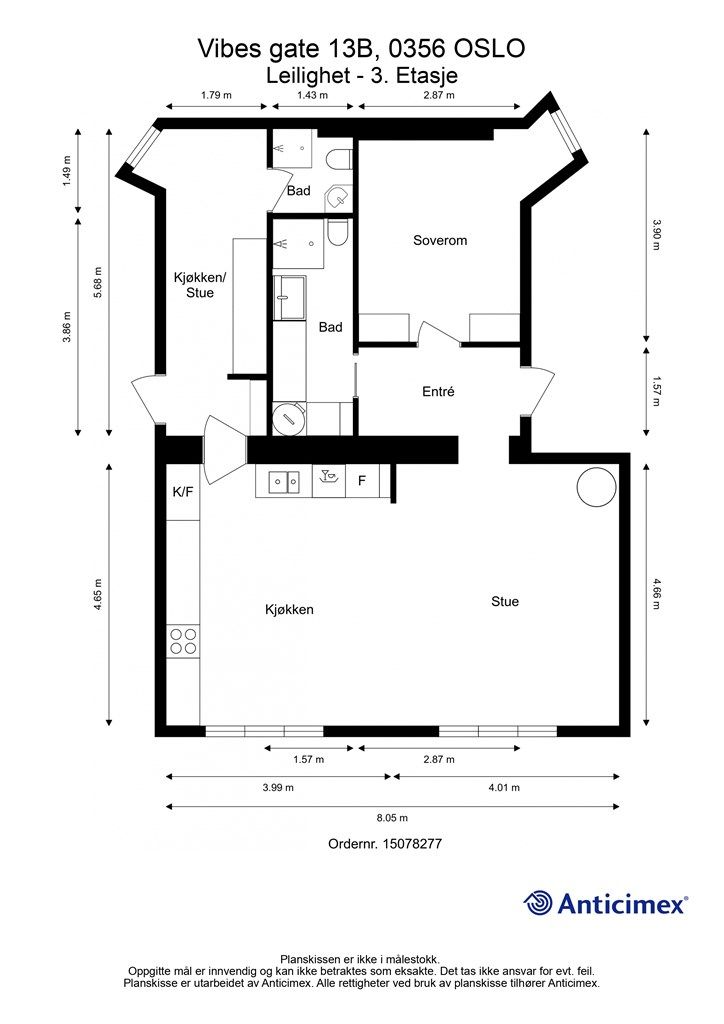
    Totalt bruksareal BRA: 86 kvm

    BRA-i:
    3. etasje 78 kvm: Entré, stue, kjøkken, hybelkjøkken/-stue, bad, hybelbad og soverom.

    BRA-e:
    5. etasje 8 kvm: 2 loftsboder.

    Boligen disponerer 4 boder. 2 av bodene er i kjelleren og 2 av bodene er på loftet.

    Vedlagte plantegninger er ikke målbare. De oppgitte arealer er hentet fra rapport med befaringsdato 15.01.2026 utført av Anticimex AS. Arealene er beregnet og rom er definert etter dagens faktiske bruk, uavhengig av hva som er godkjent av bygningsmyndighetene.

    Følgende endringer er gjort siden ferdigattester ble gitt:
    - Dagens hovedkjøkken var opprinnelig stue da sammenslåing av leilighetene ble utført.
    - Dagens kjøkken/stue var opprinnelig kjøkken da sammenslåing av leilighetene ble utført og det var en vegg mellom kjøkken/stue og gang som er revet slik at tidligere gang nå er en del av kjøkken/stue. Delen som var gang tidligere er det usikkert om er omsøkt til rom for varig opphold.
    - Dagens to bad var opprinnelig ett stort bad da ferdigattest på innredning av bad og WC ble gitt. Deler av dagens store bad (hovedbadet) er bygget ut i det som var "gang" på de godkjente byggetegningene ved ferdigattesten for innredning av bad og WC fra 1982.
    - Dagens stue og kjøkken var opprinnelig to stuer. Siden ferdigattest ble gitt er vegg mellom disse stuene revet for å få ett større rom.

    Byggemåte

    Selger har fått utarbeidet en tilstandsrapport, dvs. en teknisk gjennomgang av boligen hvor eventuelle avvik, risiko for kjøper og prisoverslag for hva som bør gjøres av oppgradering, er skissert. Se særskilt TGIU (tilstandsgrad ikke undersøkt), samt TG2 og TG3 som viser hva som er avvik fra boligens normale slitasje, alder og type, eller som bør/må utbedres. Rapporten og selgers egenerklæring er en del av salgsoppgaven og må leses nøye før bud inngis. Kjøper overtar ansvaret for de opplysninger som fremkommer av salgsdokumentasjonen, og kan ikke gjøre gjeldende som mangel noe som burde vært kjent eller som ikke kan anses å ha betydning for avtalen.

    Bygård over 4.etasjer samt kjeller og loft. Grunnmur og bærende konstruksjoner av naturstein, teglstein og murkonstruksjoner. Etasjeskiller av trekonstruksjoner. Saltak i trekonstruksjoner (ikke besiktiget). Utvendige fasader med pussede overflater. Leiligheten har slette entredører. Vinduer med karmer av tre, og to-lags glass fra 1982. Oppvarming med elektrisitet kombinert med vedfyring.

    Teknisk anlegg/VVS
    Hovedstoppekran er plassert i fordelerskap på bad. Vannrør av typen rør-i-rør, avløpsrør av plast. Oppvarming med elektrisitet og vedfyring. Varmtvannsbereder på 198 liter plassert på bad.

    Elektrisk anlegg
    Sikringsskap med automatsikringer er plassert på bad. Leiligheten har delvis skjult og delvis åpent elektrisk anlegg.

    Brann
    Det er avdekket forhold som tyder på at deler av boligen ikke ser ut til å være delt opp med brannskillende konstruksjoner etter kravene i dagens byggtekniske forskrift. Det er registrert at dør mellom hybel og leilighet oppfyller ikke branntekniske egenskaper etter krav i dagens byggtekniske forskrift. Det anbefales derfor å gjennomføre en utvidet brannteknisk kontroll av en kvalifisert fagkyndig person.

    Det gjøres spesielt oppmerksom på:

    TG 2 er gitt på følgende bygningsdeler:
    - Våtrom - Hovedbad: Gulv utenfor dusjsonen er tilnærmet flatt. Tettesjiktet har en alder som tilsier at restlevetiden er usikker. Våtrommet har kun naturlig ventilasjon. Drenering fra innebygget sisterne er ikke registrert.
    - Våtrom - Hybelbad: Tettesjiktet har en alder som tilsier at restlevetiden er usikker. Våtrommet har kun naturlig ventilasjon. Drenering fra innebygget sisterne er ikke registrert.
    - Kjøkken - Hovedkjøkken: Vannrørene er ikke plugget mot varerør. Av denne grunn kan eventuelt lekkasjevann fra rør-i-rør system forårsake følgeskader. Det er kun kullfilter og ikke separat avtrekk fra rommet.
    - Kjøkken - Hybelkjøkken: Gulvoverflater bærer preg av slitasje. Det er stedvis knirk i gulvflater. Vannrørene er ikke plugget mot varerør. Det er kun kullfilter og ikke separat avtrekk fra rommet.
    - Øvrige rom - Leilighet: Det er registrert riss/sprekker i himling i stue. Gulvoverflater bærer preg av slitasje. Det er stedvis knirk i gulvflater.
    - Øvrige rom - Hybel: Gulvoverflater bærer preg av slitasje. Det er stedvis knirk i gulvflater. Dør har fuktskader. Servantskap bør skiftes ut.
    - Ildsteder / skorsteiner innvendig. (Omfatter ikke funksjonalitet og innvendig pipeløp): TG2 er satt grunnet alder for skorstein. Det er ikke fremlagt dokumentasjon på piperehab.
    - Etasjeskiller - 3. Etasje: Det er noen merkbare skjevheter i boligen.
    - Vinduer: induer er av eldre dato og har behov for oppgraderinger/ overflatebehandling.

    TGIU (tilstandsgrad ikke undersøkt):
    - Våtrom - Hovedbad: På grunn av våtrommets utforming og bruk er det ikke praktisk mulig å gjennomføre hulltaking og fuktmåling i de mest fuktutsatte delene av våtsonen, som erfaringsmessig er områdene der skader forekommer.
    - Våtrom - Hybelbad: Våtrommet har vegger av mur/betong og det er derfor ikke utført hulltaking/fuktmåling.
    - Tekniske anlegg, VVS anlegg (Sjekkpunkter utover det som er inkludert i andre rom): Avløpsrørene er skjult og eventuell stakeluke er ikke lokalisert.

    Det er ikke påvist noen TG 3.

    Se supplerende tekst i tilstandsrapporten om overnevnte bygningsdeler. Kjøper overtar ansvar og risiko for dette. Les forøvrig mer om byggemåte og den tekniske tilstanden i rapporten.

    Se vedlagt dokument til salgsoppgaven med selgers egenerklæring for tilleggsinformasjon til tilstandsrapporten.

    Standard

    Entré
    Entré med plass til skap eller hyller. Fra entreen kommer man videre til stue, bad og soverom.

    Stue og spisestue
    I stuen er det god plass til sittegruppe og TV-område. Den åpne løsningen til kjøkken/spisestue skaper en sosial atmosfære når man er med venner eller familie. Moderne peisovn i stuen for ekstra varme og hygge på kjølige dager.

    Kjøkken
    Åpen kjøkkenløsning. Innredningen er fra ukjent årstall med slette fronter. Benkeplate av stein. Nedfelt oppvaskkum med ett-greps kjøkkenarmatur. Benkeskapsbelysning og stikkontakter over kjøkkenbenk. Integrert stekeovn, platetopp, oppvaskmaskin og kjøleskap med fryser. Ventilator i overskap. Vannrør av typen rør-i-rør. Synlige avløpsrør av plast. Gulvflater belagt med heltre. Vegg og himlingsflater i malte flater.

    De integrerte hvitevarene medfølger ved salg. Det gjøres oppmerksom på at hvitevarene er kjøpt for noen år tilbake, og kjøper må forvente slitasje som følge av alder og normal bruk.

    Bad
    Bad fra 2009. Flislagt gulv med gulvvarme og flislagte/malte vegger. Nedsenket himling med downlights. Vegghengt servantinnredning med skuffer. Ovenpåliggende servant med ett-greps armatur. Speil over servant. Dusjhjørne med dører. Vegghengt dusjarmatur (hånddusj og regndusj). Vegghengt toalett. Vannrør av typen rør-i-rør. Synlige avløpsrør av plast. Naturlig avtrekksventil i himling. Opplegg for vaskemaskin. Varmtvannsbereder plassert i hjørne.

    Soverom
    Soverommet har plass til seng med nattbord på hver side, samt garderobeskap.

    Hybel:
    Bad
    Bad fra 2009. Flislagt gulv med gulvvarme og flislagte vegger. Nedsenket himling med downlights. Vegghengt servant med ett-greps armatur. Speil med overlys. Dusjhjørne med forheng. Vegghengt dusjarmatur. Vegghengt toalett. Vannrør av typen rør-i-rør. Synlige avløpsrør av plast. Naturlig avtrekksventil på vegg.

    Kjøkken /-stue
    Åpen kjøkkenløsning. Innredningen er fra ukjent årstall med slette fronter. Benkeplate av laminat. Nedfelt oppvaskkum med ett-greps kjøkkenarmatur. Benkeskapsbelysning og stikkontakter over kjøkkenbenk. Frittstående kjøleskap. Ventilator i overskap. Vannrør av typen rør-i-rør system. Synlige avløpsrør av plast. Gulvflater belagt med laminat. Vegg og himlingsflater i malte flater. Fliser mellom kjøkkenbenk og overskap.

    Lagringsplass
    Leiligheten disponerer 4 boder. 2 av bodene er i kjelleren og 2 av bodene er på loftet.

    Overflater
    Gulv: heltre, laminat, fliser.
    Vegger: malte flater, fliser.
    Himling: malte flater, nedsenket himling med downlights.

    Løsøre og tilbehør

    Vi viser til liste fra Norges Eiendomsmeglerforbund som gjelder fra 01.01.2020 angående løsøre og tilbehør.

    Oppvarming

    Boligen varmes opp med elektrisitet, gulvvarme på badene og vedfyring i stuen med peisovn.

    Dersom beboelsesrom ikke har vegg- eller fastmonterte varmekilder ved visning, følger dette heller ikke med. 

    Ferdigattest/brukstillatelse

    Det foreligger ferdigattest på våningshus, datert 01.12.1898. Denne kan fås ved henvendelse til megler.
    Det foreligger ferdigattest på sammenslåing av leiligheter, datert 15.06.1979. Denne kan fås ved henvendelse til megler.
    Det foreligger ferdigattest på innredning bad og WC, datert 04.08.1982. Denne kan fås ved henvendelse til megler.

    Følgende endringer er gjort siden ferdigattester ble gitt:
    - Dagens hovedkjøkken var opprinnelig stue da sammenslåing av leilighetene ble utført.
    - Dagens kjøkken/stue var opprinnelig kjøkken da sammenslåing av leilighetene ble utført og det var en vegg mellom kjøkken/stue og gang som er revet slik at tidligere gang nå er en del av kjøkken/stue. Delen som var gang tidligere er det usikkert om er omsøkt til rom for varig opphold.
    - Dagens to bad var opprinnelig ett stort bad da ferdigattest på innredning av bad og WC ble gitt. Deler av dagens store bad (hovedbadet) er bygget ut i det som var "gang" på de godkjente byggetegningene ved ferdigattesten for innredning av bad og WC fra 1982.
    - Dagens stue og kjøkken var opprinnelig to stuer. Siden ferdigattest ble gitt er vegg mellom disse stuene revet for å få ett større rom.

    Kjøper overtar alt ansvar, kostnad og risiko for dette videre. 

    Det gjøres oppmerksom på at det ikke lenger utstedes ferdigattest på tiltak det er søkt om før 1998 jf. plan- og bygningsloven § 21-10. Kommunen vil ikke kreve ferdigattest for disse tiltakene og vil avvise eventuelle søknader. Bestemmelsen innebærer ikke at tiltak med manglende søknad blir lovlige, men at man ikke trenger å avslutte gamle byggesaker. Normalt sett kreves ferdigattest for alle søknadspliktige tiltak som gjøres etter plan- og bygningsloven.

    Tinglyste heftelser og rettigheter

    Utover andel fellesgjeld overdras leiligheten fri for pengeheftelser.

    Borettslaget har legalpant for forfalte felleskostnader og andre krav som følger av borettslagsforholdet iht. burettslagsloven § 5-20. Pantet er begrenset oppad til 2G (G = folketrygdens grunnbeløp).

    Det er ingen tinglyste servitutter på eiendommen.

    Eventuell adgang til utleie

    Fremleie skal ha styrets skriftlige godkjennelse. Samtykke kan ordinært bare gis for inntil 3 – tre – år dersom andelseieren selv har bodd i bostedet minst ett av de siste to år. Eier av andelsleilighet i borettslag må ha skriftlig godkjennelse fra styret for å leie ut leiligheten gjennom Airbnb, så fremt andelsleiligheten er en sekundærbolig.

    Samtykke til fremleie utover 3 år skal bare gis i ekstraordinære tilfeller. Utleie som skyldes særlige grunner som nevnt i Lov om borettslag § 5-6 gir rett til utleie iht. lovens regel. For øvrig vises til Lov om borettslag. Ved fremleie skal det fylles ut et eget skjema som leveres til styret.

    Andelseiere som leier ut leiligheten plikter å informere styret om leietagers navn og kontaktdetaljer.

    Beliggenhet og tomteforhold

    Beliggenhet

    Leiligheten ligger attraktivt til i vakre Vibes gate som i hovedsak preges av flotte klassiske bygårder. Dette er kort fortalt beliggenheten for deg som vil bo i et ærverdig og rolig nabolag, uten å gå glipp av noe. Supersentral, men likevel rolig beliggenhet på "beste" Majorstuen med umiddelbar nærhet til det meste storbyen har å by på!

    Bogstadveien, byens fineste handlegate, ligger ca. 200 meter unna. Her finner du et bredt shoppingtilbud og noe for enhver anledning. Start gjerne dagen med en tur innom Baker Hansen i Schultz gate eller Kaffebrenneriet i Valkyriegata. Videre er det mange restauranter i nærheten. Her finner du populære spisesteder som pizza restauranten Villa Paradiso og La Såda. Tatakii ved Frognerparken, tapasrestauranten Delicatessen Majorstuen, eller koselige Olivia litt lenger ned i Hegdehaugsveien er andre gode alternativer. Du finner ellers gode muligheter for take-away av både indisk, thai, sushi og pizza i umiddelbar nærhet.

    Fra leiligheten går du raskt til T-banestasjonen på Majorstua, her finner du alle seks linjer som tar deg effektivt videre rundt i byen.
    Trikkestopp finner du i Bogstadveien like i nærheten. Fra trikkestoppet går trikkens linje 11 ned til Nationaltheatret og Jernbanetorget, mens linje 19 tar deg til Stortorvet i en mer direkte linje. Majorstua er også knutepunkt for en hel rekke bussruter, deriblant 20, 25, 28, 45 og 46 i tillegg til Flybussen til Gardermoen.

    Dagligvarene handler du enkelt på Rema 1000 i Industrigata. I kvartalene rundt finnes også flere større dagligvareforretninger som Coop Extra, MENY og Kiwi.

    Området er også godt dekket hva gjelder grønne lunger og parker for den tur -/og treningsglade. På de solrike sommerdagene er Frognerparken et herlig sted å tilbringe noen timer i gresset. Om solen skulle bli for het, har store og små mulighet til å kjøle seg ned i Frognerbadet - bare ca. 10 minutters gange unna leiligheten. På vinterstid kan du snøre på deg skøytene og ta en runde på Frogner Stadion.

    For innendørs trening tilbyr en rekke senterkjeder gode alternativer, deriblant Sats Colosseum, Sats Bislett, Sats Fagerborg, Evo, Fresh Fitness eller Barrys Colosseum. Sats Yoga er et eksklusivt yogastudio som ligger et minutts gange fra leiligheten, og er absolutt verdt et besøk. Besøk gjerne også Bislett stadion for gratis innendørs løping i proffe omgivelser. Foretrekker du i stedet trening i friluft, tar T-banes linje 1 og 5 deg raskt og enkelt opp til de flotte markområdene rundt Frognerseteren og Sognsvann. Her er det flotte forhold både sommer og vinter.

    På Colosseum Kino får du med deg de nyeste filmene, mens Deichmanske bibliotek og Litteraturhuset tilbyr et bredt spekter av kulturelle aktiviteter som foredrag og høytlesning.

    Her bor du med andre ord i nærhet til det meste du har behov for i hverdagen!

    Adkomst

    Se vedlagt kartskisse nederst i annonsen på Krogsveen.no. Ved å trykke på kartet får du enkelt tilgang til en spesifisert reiserute fra din startdestinasjon til boligen. Det vil bli skiltet med Krogsveen visningsskilt ved fellesvisninger. Velkommen til visning!

    Barnehager, skoler og fritid

    Barnehager
    - Godbiten barnehage (1-5 år) 0,3 km
    - Hjelmsgate barnehage (1-5 år) 0,4 km
    - Fagerborggaten barnehage (0-5 år) 0,5 km

    Skoler
    - Bolteløkka skole (1-7 kl.) 0,8 km
    - Majorstuen skole (1-10 kl.) 0,9 km
    - Uranienborg skole (1-10 kl.) 1 km
    - Kristelig gymnasium (8-10 kl.) 0,8 km
    - Fagerborg skole (8-10 kl.) 0,9 km
    - Kristelig gymnasium 0,7 km

    Beskrivelse av tomt

    Eiertomt på 1 343 kvm som tilhører borettslaget. Stor felles nydelig bakgård, opparbeidet med busker, trær, diverse beplantning, plenområder, sykkelparkering, hellebelagt og asfalterte internveier, terrasseplatting og sittegrupper.

    Parkering

    Gateparkering etter områdets bestemmelser.

    Vei, vann og avløp

    Eiendommen har adkomst via kommunal vei.

    Eiendommen er tilknyttet kommunalt ledningsnett via private stikkledninger. Borettslaget er ansvarlig for private stikkledninger til bygningen.

    Regulerings-og arealplaner

    Eiendommen er regulert til byggeområde for boliger i henhold til reguleringsplan S-2255 datert 28.07.1977 med senere endringer i henhold til S-2937 datert 01.10.1987. Planen er helt eller delvis opphevet som følge av bystyrets vedtak 23.09.2015 sak 262 gjennom ny "Kommuneplan 2015 - Oslo mot 2030 - Smart, trygg og grønn." Området blir berørt av endringer i reguleringsplan for Oslo Sentrum og indre sone i Oslo kommune som følge av dette. Denne nye planen får betydning for en rekke vedtatte reguleringsplaner i Oslo. Henviser til kommunens nettsider for ytterligere informasjon: https://www.oslo.kommune.no/politikk-og-administrasjon/politikk/kommuneplan/. Utsnitt av plan med tilhørende bestemmelser kan fås ved henvendelse til megler.

    Eiendommen er verneverdig da den står oppført på Byantikvarens Gule Liste. Dette kan medføre at større endringer av bygningen må godkjennes av kommunen eller fylket før igangsetting.

    Pågående byggesaker:
    Vibes gate 19 A-D - Oppføring av balkonger. Det er gitt igangsettingstillatelse 08.11.2024. Saksnummer 202509877.
    Vibes gate 20 A-C - Oppføring av seks balkonger. Det er gitt tillatelse til tiltak 16.05.2025. Saksnummer 202514073
    Vibes gate 21 A - bruksendring av lokale i underetasje fra næring til bolig og fasadeendringer. Saksnummer 202508578.

    Det pågår arbeider med Fornebubanen som tidvis vil påvirke omgivelsene rundt Majorstuen T-bane stasjon.

    Det kan påregnes støy, ulemper og/eller endringer i omgivelsene ved ovennevnte plan- og byggesaker.

    Opplistingen er ikke uttømmende og interessenter oppfordres til å sette seg inn i reguleringsplaner for området. For flere byggesaker og informasjon i området, gå inn på Oslo kommune, plan og bygg sine nettsider: https://od2.pbe.oslo.kommune.no/kart/

    Økonomi

    Boligens kostnader

    Felleskostnadene er kr  4 953,-  pr. mnd. og inkluderer: Kabel-TV, internett, renter og avdrag lån, forretningsførsel, revisjon, vedlikehold, bygningsforsikring,

    Felleskostnadene justeres normalt en til to ganger årlig i forhold til borettslagets faktiske utgifter og ble sist justert 01.02.2026.

    Nåværende eier har et strømforbruk som tilsvarer ca. kr 1 500,- pr. mnd. Nåværende eier har ikke tegnet Norgespris.
    Boligen er tilknyttet Telia som leverandør av kabel-tv og internett og er inkludert i felleskostnadene. Tv-tuner/dekoder medfølger ikke.

    Utgiftene er basert på nåværende eiers forbruk. Kjøper må selv tegne innboforsikring.

    Formuesverdi

    Formuesverdi for 2024 var kr 2 103 539,- ifølge selgers Skatteetaten. Beløpet forutsetter at eier bor fast i boligen (primærbolig).

    Ved eventuell øvrig bruk av eiendommen (f.eks. fritidsbolig, pendlerbolig, utleieobjekt) var formuesverdien for 2024 kr 8 414 154,-.

    Formuesverdien justeres normalt årlig.

    Fra 2026 har Stortinget vedtatt en oppdatert modell for beregning av formuesverdi for primærbolig, så avvik kan forekomme.
    For mer informasjon se skatteetaten.no

    Opplysninger om fellesgjeld

    Andel formue er kr 63 644,- pr. 31.12.2024
    Andel fellesgjeld er kr 78 728,- pr. 14.01.2026

    Total fellesgjeld for boligselskapet er kr 2 820 888,- pr. 14.01.2026 og lånevilkårene er:
    Rentebetingelser: 5,7%
    Lånets løpetid: Lån på kr 927 667,- innfris 30.03.2038. Lån på kr 1 893 221,- innfris 30.10.2041.

    Omkostninger

    8 900 000,00 Prisantydning
    78 728,00 Andel av fellesgjeld
    --------------------------------------------------------
    8 978 728,00 Pris inkl. fellesgjeld

    Omkostninger

    9 950,00  Gjensidige Boligkjøperpakke (valgfri)
    545,00  Tinglysing hjemmel
    545,00  Tinglysing panterettsdokument
    --------------------------------------------------------
    11 040,00 Omkostninger totalt

    --------------------------------------------------------
    8 989 768,00 Totalpris inkl. omkostninger

    --------------------------------------------------------

    Dersom kjøper ikke er medlem av boligbyggelaget, må det påregnes en innmeldingsavgift og årlig medlemsgebyr pr. ny andelseier. Dette faktureres direkte fra boligbyggelaget.
    Dersom borettslaget har fellesgjeld, vil leilighetens andel av fellesgjelden komme i tillegg til kjøpesummen. Denne gjelden skal ikke innbetales i oppgjøret, men følger leiligheten.
    Det tas forbehold om endringer i avgifter og gebyrer.

    Tilbud om lånefinansiering

    Megler formidler gjerne kontakt med rådgiver hos vår samarbeidspartner BN Bank. De har konkurransedyktige betingelser samt rask og løsningsorientert behandling av din lånesøknad. Krogsveen mottar et honorar dersom lån opprettes. 

    Betalingsbetingelser

    Kjøpesum inkludert omkostninger, samt pantedokument tilknyttet eventuelt lån, skal være disponibelt hos megler 2 virkedager før overtagelsen.

    Annen viktig informasjon

    Eier

    Paal Ellingsen og Tina Kongslie Ellingsen

    Informasjon om borettslaget

    Leiligheten er tilknyttet Borettslaget Vibes gate 13, og består av 32 boligenheter, samt ett næringslokale.
    Forretningsfører er Oslo og Omegn Boligforvaltning AS (OBF)
    Borettslaget er forsikret i Gjensidige Forsikring ASA, polisenummer: 88969201.
    Dugnad må påregnes. Alle beboere plikter å betale dugnadsbidrag på kr 100,- pr. mnd. Dette beløpet refunderes ved deltakelse på dugnad.
    Dyrehold er tillatt, men må ikke være til sjenanse for andre beboere. Se vedtekter for mer informasjon om dyrehold.

    I henhold til borettslagets vedtekter må kjøper godkjennes av styret som ny andelseier. Det er kjøpers ansvar at styregodkjenning blir gitt, men styret kan ikke nekte godkjenning uten saklig grunn. Iht. burettslagslova kan man bare eie én andel i borettslaget. Kun fysiske personer kan være andelseiere.

    Foretatte påkostninger de siste årene:
    2024: Oppgradering av røykvarsleranlegg.
    2022: Arbeidet med å male oppgangene ble avsluttet. Byttet to strømkurser, nå med jordfeilbrytere.
    2020: Oppgradering av lysarmaturer i loft og kjeller.
    2019: Isolering og drenering grunnmur, samt nytt asfaltdekke i lille gårdsrom, senke sluk, og legge heller for plass til sykkelstativer i store gårdsrom.
    2018: Ferdig med luftekanaler i boder i oppgang A – B – G og E. Lukket pålegg fra Oslo kommune Vann- og avløpsetaten, bytte av avløpsrør fra gården til rør i gaten.
    2017: Vår 2017, rehabilitering av murpuss + maling av nedre del av fasaden mot gaten, gårdsrommene, begge portalene + langgangen ved oppg. D, minus fasade fra oppg. E – F. Samt å gjenåpne ventilasjonskanal i boder i oppg. F.
    2014: Rehabilitering av pipeløp. Ferdigstilt i mars 2015.
    2013: Arbeidene med brannsikring av gården i henhold til «Brannteknisk tilstandsanalyse» fra 2010 er ferdigstilt. Videre er tak isolert, forsterket og brannsikret over alle oppgangene fra loft siden, samt å tette åpning mot tak.
    2012 – 2013: Branntetting og isolering i kjeller, trapperom, boder og på loft.
    2011 – 2012: Vindusrehabilitering av vinduene i oppgangene.
    2010: Brannsikring i borettslaget.
    2008 – 2009: Balkongutbygging.
    2007: Rehabilitering i store gårdsrom. Skiftet defekte stoppekraner og i kjeller og skiftet defekte varmekabler i takrenner.
    2005: Nye brannsikre dører til kjeller og loft, nytt elektrisk anlegg i kjeller og på loft. Brannsikring av trappeganger og kanaler.
    2004: Skiftet porttelefoner. (Data-Call) Installert brannvarslingsanlegg (Autronica)

    Borettslag har anledning til å være tilknyttet et sikringsfond som dekker eventuelt manglende innbetaling av felleskostnader. Dette borettslaget er ikke tilknyttet et slikt fond, noe som vil kunne medføre en risiko for økte felleskostnader dersom andre andelseiere ikke betaler sine felleskostnader.

    Informasjon om forkjøpsrett

    Øvrige andelseiere i borettslaget og eventuelt medlemmer av boligbyggelaget har forkjøpsrett. Ingen har valgt å benytte seg av forkjøpsretten ved dette salget.  

    Overtakelse

    Etter nærmere avtale.

    Boligselgerforsikring

    Selger har i forbindelse med salget tegnet boligselgerforsikring levert av Gjensidige.  
    Boligselgerforsikringen dekker selgers ansvar etter avhendingsloven begrenset oppad til kr 14 millioner. Dersom kjøper oppdager forhold ved eiendommen som hen mener utgjør en mangel ved eiendommen, vil Gjensidige behandle reklamasjonen på vegne av selger. Forsikringsvilkår kan fås ved henvendelse til megler.  

    Vedlagt salgsoppgaven følger selgers egenerklæringsskjema og tilstandsrapport. Interessenter må sette seg inn i dokumentene før bud inngis. 

    Boligkjøperforsikring

    Innen kontraktsmøtet må kjøper ta stilling til om det ønskes å bestille Boligkjøperpakken gjennom Gjensidige. I denne gunstige pakken er boligen ferdig forsikret og inkluderer rettshjelpsforsikring, også kalt Boligkjøperforsikring. Rettshjelpsforsikring gir trygghet og tilgang på profesjonell juridisk hjelp dersom det oppdages uventede feil eller mangler det første året etter overtagelse. Forsikringsselskapet behandler i så fall ethvert mangelskrav kjøper måtte ha overfor selger. 

    Boligkjøperpakken inkluderer bygningsforsikring for hus og hytte, innboforsikring, flytteforsikring og dobbel rentedekning - i situasjoner hvor kjøper ikke får solgt nåværende primærbolig.   

    Kjøper mottar ingen særskilt faktura for Boligkjøperpakken da kostnaden det første året legges til kjøpesummen for boligen. Det gjøres oppmerksom på Krogsveen mottar et honorar for denne formidlingen.
    Produktark for Boligkjøperpakken ligger vedlagt i salgsoppgaven.  

    Dersom ikke boligkjøperpakke ønskes kan kun rettshjelpsforsikring, også kalt boligkjøperforsikring, tegnes særskilt via megler. Rettshjelpsforsikringen varer i 5 år fra overtagelse og leveres gjennom Gjensidige. Ta kontakt med megler for ytterligere informasjon. 

    Selskap og privatpersoner som driver med kjøp/salg/utvikling som ledd i egen næringsvirksomhet kan ikke tegne boligkjøperpakke eller rettshjelpsforsikring. 

    Budgivning

    Forbrukerinformasjon om budgivning er vedlagt denne salgsoppgaven og er også på vår hjemmeside Krogsveen.no. Alle bud og budforhøyelser må inngis skriftlig. I tillegg må legitimasjon være fremlagt sammen med signatur fra budgiver.

    Vi oppfordrer til å gi bud elektronisk via GI BUD-knappen på eiendommens hjemmeside på Krogsveen.no. Da vil samtlige vilkår bli oppfylt.  
    Eventuelle forhøyelser eller endringer av budet kan bekreftes pr SMS eller på e-post. Vi oppfordrer alltid til å kontakte megler pr. telefon i tillegg da forsinkelser i SMS og e-post kan forekomme.

    For at budene skal kunne bli behandlet og videreformidlet skriftlig til alle involverte parter, må alle bud ha en tilstrekkelig lang akseptfrist, jf. eiendomsmeglingsforskriften § 6-3.

    Selger må også skriftlig akseptere budet før aksept kan formidles til budgiver. Akseptfrist bør derfor være på minimum 30 minutter, og budforhøyelser må derfor skje i god tid før fristens utløp.

    Bud i forbrukerforhold kan uansett ikke settes med kortere frist enn kl. 12.00 første virkedag etter siste annonserte visning. I tillegg kan ikke budet ha forbehold om at det skal holdes hemmelig ovenfor øvrige interessenter. Megler har iht lov om eiendomsmegling ikke anledning til å videreformidle disse budene, og de vil dermed heller ikke bli journalført.

    Etter at eiendommen er solgt vil kjøper og selger få tilsendt budjournal. Øvrige budgivere kan få utlevert kopi av budjournalen i anonymisert form.

    Hvitvaskingsreglene

    I henhold til lov om hvitvasking og terrorfinansiering har megler plikt til å gjennomføre kontrolltiltak overfor kunder, herunder fullmektiger. Dette innebærer bl.a. å bekrefte kunders og reelle rettighetshaveres identitet på bakgrunn av fremvist gyldig legitimasjon eller på annen godkjent måte, samt å innhente opplysninger om kundeforholdets formål og tilsiktede art.

    Dersom slike kundetiltak ikke kan gjennomføres, kan megler ikke etablere kundeforholdet eller utføre transaksjonen.

    Hvis kjøper ikke bidrar til gjennomføring av kundekontrollen og dette fører til at transaksjonen blir forsinket eller ikke kan gjennomføres, vil dette ansees som mislighold av avtalen og gi selger rettigheter etter avhendingslova kapittel 5. I tilfeller der selger ikke bidrar til gjennomføring av løpende kundekontroll underveis i oppdraget, er det selger som misligholder sine forpliktelser etter avtalen og gi kjøper rettigheter etter avhendingslovens kapittel 4. Partene er selv ansvarlige for eventuelle kostnader og ansvar dette kan medføre. Eiendomsmegleren eller eiendomsmeglingsforetaket kan ikke holdes ansvarlig for de konsekvenser dette vil kunne få for partene eller andre som har interesser i eiendomshandelen.

    Kjøper oppfordres til å innbetale kjøpesummen som ikke kommer fra låneinstitusjon i én samlet innbetaling fra egen konto i norsk bank. Megler har plikt til å melde fra til Økokrim om eiendomshandler som fremstår som mistenkelige. Melding sendes Økokrim uten at partene varsles. 

    Personopplysningsloven

    I henhold til personopplysningsloven gjør vi oppmerksom på at interessenter kan bli registrert for videre oppfølging.

    Lovanvendelse

    Generelle bestemmelser
    Salgsoppgaven er basert på de opplysningene selger har gitt til megler, den bygningssakyndiges tilstandsrapport, samt opplysninger innhentet fra kommunen, Kartverket og andre tilgjengelige kilder. Det er viktig at kjøper setter seg grundig inn i alle salgsdokumentene, herunder salgsoppgave, tilstandsrapport og selgers egenerklæring. Kjøper anses kjent med forhold som er tydelig beskrevet i salgsdokumentene, og slike forhold kan ikke påberopes som mangler. Dette gjelder uavhengig av om kjøper har lest dokumentene. Alle interessenter oppfordres til å undersøke eiendommen nøye, gjerne sammen med fagkyndig før bud inngis. Kjøper som velger å kjøpe usett kan ikke gjøre gjeldende som mangel noe han burde blitt kjent med ved undersøkelsen. 

    Dersom det er behov for avklaringer, anbefaler vi at interessenter rådfører seg med eiendomsmegler eller egne rådgivere før det legges inn bud.

    En bolig som har blitt brukt i en viss tid, har vanligvis blitt utsatt for slitasje og skader kan ha oppstått. Slik bruksslitasje må kjøper regne med, og det kan avdekkes enkelte forhold etter overtakelse som nødvendiggjør utbedringer. Normal slitasje og skader som nødvendiggjør utbedring, er innenfor hva kjøper må forvente og vil ikke utgjøre en mangel.

    Kjøper og selgers rettigheter og plikter reguleres av avtalen mellom partene, samt informasjonen som har vært tilgjengelig for kjøperen i forbindelse med handelen. Avtalen utfylles av avhendingsloven, og det gjelder ulike avtalevilkår avhengig av om kjøper er forbrukerkjøper eller ikke.  Dette er nærmere beskrevet nedenfor. 

    På grunn av ulike avtalevilkår kan selger vurdere bud fra en som ikke er forbruker, ulikt fra en forbrukers bud. Dersom kjøper ikke er forbruker, er selger sitt mulige mangelsansvar begrenset fordi eiendommen selges "som den er".  Selger kan ikke ta «som den er»- forbehold overfor en forbrukerkjøper. Selv et lavere bud fra en som ikke er forbruker kan foretrekkes fordi begrensningen i mulig mangelsansvar kan ha egenverdi for selger. Selger står fritt til å forkaste eller akseptere ethvert bud, og er for eksempel ikke forpliktet til å akseptere høyeste bud.

    Budgiver skal i budskjema avgi egenerklæring om budgiver er forbruker eller næringsdrivende/ person som hovedsakelig handler som ledd i næringsvirksomhet. Budgivere får informasjon dersom andre bud er inngitt av en som ikke er forbruker. 

    Forbrukerkjøp - definisjon
    Med forbrukerkjøp menes kjøp av eiendom når kjøperen er en fysisk person som ikke hovedsakelig handler som ledd i næringsvirksomhet.

    Forbruker – avtalevilkår
    Eiendommen har en mangel dersom den ikke er i samsvar med kravene som følger av avtalen, eller det foreligger brudd på bestemmelsene i avhendingsloven §§ 3-2 til 3-8. Hvis eiendommen ikke er i samsvar med det kjøperen må kunne forvente ut ifra alder, type og synlig tilstand, kan det være grunnlag for mangelskrav. Det samme gjelder hvis det er holdt tilbake eller gitt uriktige opplysninger om eiendommen. Dette gjelder likevel bare dersom man kan gå ut ifra at det virket inn på avtalen at opplysningen ikke ble gitt eller at mangelskravet ikke blir rettet i tide på en tydelig måte.

    Boligen kan ha en mangel etter avhendingsloven § 3-3 andre ledd, dersom det er avvik mellom opplyst og faktisk innvendig areal, forutsatt at avviket er på 2% eller mer og minimum 1 kvm.

    Ved beregning av et eventuelt prisavslag eller erstatning må kjøper selv dekke tap/kostnader opptil et beløp på kr 10 000 (egenandel).

    Ikke-forbruker (næringsdrivende) – definisjon 
    Hvis kjøper er en juridisk person, eller en fysisk person som hovedsakelig handler som ledd i næringsvirksomhet, vil kjøpet ikke anses som et forbrukerkjøp. 

    Ikke-forbruker – avtalevilkår
    Eiendommen har en mangel dersom den ikke er i samsvar med kravene som følger av avtalen.
    Eiendommen selges «som den er», og selgers ansvar utover det konkret avtalte er da begrenset etter avhendingsloven § 3-9, første ledd andre setning. 

    Avhendingsloven § 3-3 andre ledd fravikes, og hvorvidt boligens arealsvikt utgjør en mangel vurderes etter avhendingsloven § 3-8. 

    Informasjon om kjøpers undersøkelsesplikt, herunder oppfordringen om å undersøke eiendommen nøye, gjelder også for kjøpere som ikke anses som forbrukere.

    Det forutsettes at hjemmel overføres til kjøper. Hvis kjøper ikke ønsker hjemmelsoverføring av eiendommen, må det tas forbehold om dette i budet.

    Meglers vederlag

    Meglers vederlag betales av selger og er avtalt til:
    Vederlag: 0,90 % av salgssummen inkl. eventuell fellesgjeld. Minimumsprovisjon er kr 70 000,00

    Vederlag:
    Kontroll av hjemmel og heftelser  kr 2 900,00
    Markedsføringspakke  kr 26 250,00
    Oppgjør  kr 7 500,00
    Tilrettelegging  kr 17 000,00
    Visninger pr stk / Overtagelse  kr 3 500,00

    Utlegg:
    Eierskiftegebyr forretningsfører (selger)  kr 6 570,00
    Forkjøpsrett - forhåndsutlyst forretningsfører  kr 8 406,00
    Innhenting av informasjon forretningsfører OBF  kr 3 900,00
    Innhenting av offentlig opplysninger Oslo kommune  kr 3 900,00
    Tinglysing sikring  kr 545,00

    Andre utgifter:
    AX tilstandsrapport leilighet  kr 10 750,00
    Boligselgerforsikring Gjensidige Andel/Aksje regnes av prisant.  kr 23 941,00
    Foto med områdebilder  kr 6 000,00

    Vi er opptatt av verdiskapning, og har knyttet til oss samarbeidspartnere som skal sikre våre kunder de beste produkter og tjenester;
    • I forbindelse med forberedelse av salget, innhenter vi informasjon om eiendommen hovedsakelig fra vår samarbeidspartner Amibita.
    • Gjensidige leverer boligselgerforsikring og tilbyr bygningsforsikring
    • Boligkjøperforsikring leveres av Hiscox og med Sedgwick som skadebehandler, og er formidlet gjennom Gjensidige.
    • BN bank tilbyr finansieringsløsninger
    • Vår avdeling Krogsveen Pluss tilbyr flyttetjenester som utvask, visningsvask, lager, tømming og transport av flyttelass, i tillegg til å formidle kontakt med Flip for overflateoppussing.
    • I forbindelse med overtagelse av eiendommen tilbyr Overo avtale om strøm, alarm og bredbånd.
    • Krogsveen er, sammen med øvrige bransjeaktører, medeier i Bomega AS som tilbyr den digitale annonseringsplattformen Hjem.

    Opplysninger om oppdraget

    Oppdragsnummer 15-0102/25
    Eiendomsmegler Krogsveen AS, avd. Asker
    Torvveien 1, 1383, ASKER
    950 007 613
    Oppdragets KR-kode KR15.25102

    Dato

    Sist oppdatert: 06. februar 2026 kl. 15:06

    Dokumenter

    Utskriftsvennlig salgsoppgave

    Prisutvikling for området

    Kvadratmeterpris

    0 kr/m²

    Endring

    ↘︎ % ()

    Visning

    Lurer du på noe?

    Unngå doble boligrenter

    Vi tilbyr gunstig forsikring.

    Hva koster lånet?

    Sjekk estimert lånekostnad

    Vil du varsles om lignende boliger?

    Ved å lagre ditt boligsøk hos oss får du beskjed når vi har en bolig som ligner denne, før den legges ut på markedet!

    På flyttefot? Slik gjør vi det enklere for deg

    Skreddersydd flyttepakke

    Vi fikser håndverkere, vask, pakking, lagring og transport, og legger ut for utgiftene underveis.

    Hjelp med både kjøp og salg

    Hos oss har du din egen rådgiver gjennom hele kjøps- og salgsprosessen.

    Hjelp til finansiering

    Vårt samarbeid med BN Bank sikrer deg rask og løsningsorientert hjelp, til konkurransedyktige betingelser.