Adolph Tidemands gate 49
4 890 000 kr
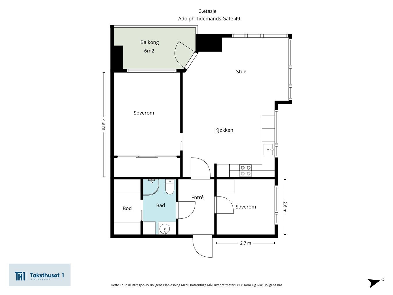
58 m²
2 soverom
Komplett salgsoppgave

Lillestrøm sentrum
Sentral og arealeffektiv 3-roms | Balkong mot Kirkeparken | Garasjeplass m/elbillader | Heis
Prisantydning
4 890 000 krAndel fellesgjeld
181 061 krOmkostninger
19 252 krTotalpris
5 090 313 kr
Pris
Bruksareal
61 m²BRA-I (internt bruksareal)
58 m²BRA-E (eksternt bruksareal)
3 m²TBA (terrasse-balkongareal)
6 m²
Areal
Etasje
3Byggeår
2007Soverom
2 soveromBad
1 badType
AndelsleilighetEierform
AndelFasiliteter
Garasje/P-plass, Heis og Balkong/TerrasseFellesutgifter
5 303 krEnergimerke
Grønn C
Nøkkelinfo
Unngå doble boligrenter
Vi tilbyr gunstig forsikring.
Vurderer du utleie?
Få et tilbud fra Utleie KrogsveenHva koster lånet?
Sjekk estimert lånekostnadBeskrivelse
Kort om eiendommen
Innhold og byggemåte
Innhold og byggemåte
Eiendommen
Adolph Tidemands gate 49, 2000 LILLESTRØM
Kommunenummer 3205, gårdsnummer 81, bruksnummer 193, seksjonsnummer 1, ideell andel 1/1
Andelsnummer 14, Storgata 29 Borettslag , organisasjonsnummer 986257462
Innhold
Totalt bruksareal BRA: 61 kvm
BRA-i:
3. etasje 58 kvm: Entré, bad, to soverom, stue/kjøkken.
BRA-e:
Kjeller 3 kvm: Bod.
Balkongareal (TBA):
3. etasje 6 kvm
Vedlagte plantegninger er ikke målbare. De oppgitte arealer er hentet fra rapport med befaringsdato 21.01.2026 utført av Taksthuset 1 AS v/Kenneth Andre Sørlie.
Byggemåte
Selger har fått utarbeidet en tilstandsrapport, dvs. en teknisk gjennomgang av boligen hvor eventuelle avvik, risiko for kjøper og prisoverslag for hva som bør gjøres av oppgradering, er skissert. Se særskilt TGIU (tilstandsgrad ikke undersøkt), samt TG2 og TG3 som viser hva som er boligens normale slitasje, alder og type, eller som bør/må utbedres. Rapporten og selgers egenerklæring er en del av salgsoppgaven og må leses nøye før bud inngis. Kjøper overtar ansvaret for de opplysninger som fremkommer av salgsdokumentasjonen, og kan ikke gjøre gjeldende som mangel noe som burde vært kjent eller som ikke kan anses å ha betydning for avtalen.
Bygningen er iht. tilstandsrapport en leilighet i et boligbygg fra 2007, oppført i betongkonstruksjoner med innfelte trekonstruksjoner, som var en vanlig byggemåte på oppføringstidspunktet. Etasjeskillere er av betongdekke.
Følgende er gitt TG2:
Bad:
- sluk, membran og tettesjikt
- overflater vegger og himling
- overflater gulv
Vinduer og dører
Innvendige overflater
Ovennevnte er kun et utdrag fra rapporten. Se supplerende tekst i tilstandsrapporten for mer informasjon. Kjøper overtar ansvar og risiko for dette.
Standard
Velkommen til Adolph Tidemands gate 49, en pen og moderne 3-roms hjørneleilighet beliggende sentralt i Lillestrøm.
Leiligheten har god standard med moderne løsninger.
Boligen ligger i 3. etasje og har bl.a. overbygget balkong, romslig baderom, 2 soverom, garasjeplass, heis og gangavstand til alt hverdagen krever.
Ønsker du en enkel hverdag med nærhet til buss, tog, kjøpesenter m.m. er dette leiligheten for deg.
Boligen ønsker deg velkommen med en hyggelig entré
Innbydende stue med store vindusflater og utgang til overbygget balkong på ca 6 kvm.
Fra balkongen kan du nyte utsikten mot kirken og parken, eller se ned på folkelivet i gaten under.
Stuen har åpen løsning mot kjøkken med spisesplass.
Pen innredning med hvite glatte fronter, benkeplate i slitesterk laminat og integrert oppvaskmaskin som var ny i 2025.
Boligen har to soverom.
Hovedsoverommet har montert skyvedørsgarderobe med speildører, og det andre rommet har garderobeskap.
Det innbydende badet er holdt i hvite og nøytrale farger, og har fliser på vegg og gulv.
Innredningen består av skuffeskap med toppmontert servant, og speilskap med belysning over.
Opplegg til vaskemaskin i nisje.
Dusjhjørne med regnfallsdusj og innfellbare glassdører.
Gulvmontert toalett og varmekabler i gulv.
Kun integrerte hvitevarer på kjøkkenet følger boligen.
Det gjøres oppmerksom på at hvitevaren er kjøpt for noen år tilbake, og kjøper må forvente slitasje som følge alder og normal bruk.
Oppvarming
Elektrisk oppvarming med panelovner, samt varmekabler på bad.
Dersom beboelsesrom ikke har vegg- eller fastmonterte varmekilder ved visning følger dette heller ikke med.
Ferdigattest/brukstillatelse
Det er utstedt ferdigattest for nytt bolig- og forretningsbygg datert 04.10.2007.
Denne kan fås ved henvendelse til megler.
Tinglyste heftelser og rettigheter
Utover andel fellesgjeld overdras leiligheten fri for pengeheftelser med unntak av:
Dagboknr. 247086, tinglyst 24.05.2006, Festekontrakt - vilkår:
Festekontrakt med årlig festeavgift. Avgiften var opprinnelig på NOK 280 000 per 01.01.2003 og kan reguleres.
Borettslaget har legalpant for forfalte felleskostnader og andre krav som følger av borettslagsforholdet iht. burettslagsloven § 5-20. Pantet er begrenset oppad til 2G (G = folketrygdens grunnbeløp).
Det er tinglyst følgende servitutter på borettslagets eiendom:
Dagboknr. 100127, tinglyst 10.01.1977, Skjønn:
Bestemmelse om fortau. Kommunen bekoster opparbeidelse og fysisk vedlikehold av fortauet, mens grunneier er ansvarlig for renhold og snørydding. Eiendommen beholder rett til eksisterende innkjørsel og inngang.
Dagboknr. 106288, tinglyst 27.10.1977, Bestemmelse om garasje/parkering:
Eier er forpliktet til å rive eller flytte en midlertidig garasje på eiendommen uten omkostninger for kommunen, dersom kommunen forlanger det.
Dagboknr. 12883, tinglyst 01.09.1994, Erklæring/avtale:
Bestemmelse om at en garasje/bod vil bli revet når bygningsrådet forlanger det ved gjennomføring av reguleringsplanen.
Dagboknr. 749451, tinglyst 20.09.2007, Erklæring/avtale:
Heftelser tinglyst på gnr. 81 bnr. 194 gjelder også for denne eiendommen.
Dagboknr. 3763, tinglyst 03.01.2008, Bestemmelse om adkomstrett:
Rettighet for gnr. 81 bnr. 258 til adkomst over eiendommen.
Servituttene vil følge eiendommen. Kjøpers bank vil få prioritet etter ovennevnte heftelser og servitutter.
Eventuell adgang til utleie
Andelseier kan ikke uten samtykke fra styret i borettslaget overlate bruken av boligen til andre. Med samtykke kan andelseier overlate boligen til andre i inntil tre år hvis andelseier har bodd i boligen i minst ett av de to siste år. Utleie i andre tilfeller kan godtas ved særlige grunner, jf. burettslagslova § 5-6. Utleie forutsetter at leiligheten har forsvarlige radonverdier. Se også borettslagets vedtekter og konferer megler ved spørsmål.
Beliggenhet og tomteforhold
Beliggenhet og tomteforhold
Beliggenhet
Sentral beliggenhet midt i Lillestrøm sentrum med nærhet til matbutikker, shopping, kjøpesenter, kino, restauranter, cafeer, Lillestrøm jernbanestasjon og bussterminal.
Fra Adolph Tidemands gate 49 er det gangavstand til Lillestrøm stasjon. Stasjonen er et knutepunkt for Nedre Romerike med hyppige avganger mot Oslo på kun 10 og tog til Gardermoen på kun 12 minutter. Buss 401 går mot Oslo og bruker bla. 12 min til AHUS.
Lillestrøm har et rikt tilbud på fritiden. Det er kino med filmtilbud for alle aldre og på kulturhuset er det flere konsert og teater oppsetninger, der flere av de største artistene og showene de siste årene har vært innom. De aller fleste idrettstilbud finnes i Lillestrøm, med området rundt Skedsmohallen som sentrum. Her er det flere treningssentre, friidrettsbane, hestegård, stor innehall, bowling, fotballhall, gressbaner og kunstgressbaner. Nebbursvollen ligger på Volla siden av byen, her er det bassenger for store og små og sandvolleyball baner. Langs flomvollen mot Nitelva er det gode rekreasjonsmuligheter.
På vinteren er det kort vei til Tæruddalen og innover i Romeriksåsene. Innover i marka finner man et veletablert turstinett som er merket etter DNT - standard, fiske- og badevann, skiløyper m.m.
I Lillestrøm finnes et rikt shopping tilbud. Lillestrøm Torv har ca. 80 butikker som inneholder noe for alle.
Deler av storgata i Lillestrøm er bilfri og har et rikt tilbud av serverings - og spisesteder som bl.a. Olivia, Casa Mia og Mirabel.
Tidsavstander med bil:
Strømmen ca. 5 min.
Oslo S ca. 20 min. Kun 11 min med toget.
Gardermoen ca. 24 min.
Barnehager, skoler og fritid
Skoler:
Volla skole (1-7 kl.)
Vigernes skole (1-7 kl.)
Kjeller skole (1-10 kl.)
Kjellervolla skole (8-10 kl.)
Lillestrøm videregående skole
Skedsmo videregående skole
Barnehager:
Sølepytten barnehage
Måsan barnehage
Volla barnehage
Informasjon om tilhørende skolekretser er hentet fra Prognosesenteret som dataleverandør, og tilhørigheten kan årlig endres av kommunen. Dersom skole- og barnehagetilbud er av betydning for kjøpet, ber vi om at det rettes en særskilt henvendelse til kommunen for oppdatert informasjon.
Beskrivelse av tomt
Festetomt som tilhører borettslaget.
Regulering av feste
Festeavgiften for borettslaget er kr 280 000,- pr. 01.01.2003. Festeavtalen utløper 2055.
Samtykke til overdragelse fra grunneier kreves ikke.
Festeavgiften reguleres hvert 10 år iht konsumprisindeksen.
Parkering
Det medfølger garasjeplass (nr. 6) i felles garasjeanlegg.
Bruksrett til plassen følger leiligheten ved salg, og det er en månedlig avgift på kr 450,- .
Garasjeplassen er utstyrt med elbillader.
Vei, vann og avløp
Eiendommen har adkomst via privat vei med felles vedlikeholdsansvar for Borettslaget.
Eiendommen er tilknyttet kommunalt ledningsnett via private stikkledninger. Borettslaget er ansvarlig for private stikkledninger til bygningen.
Regulerings-og arealplaner
Eiendommen er regulert til bolig/næring i henhold til reguleringsplan Kvartal 22, Teatergt, Storgata, Parkalleen og Brøtergt. datert 20.04.2005 med tilhørende reguleringsbestemmelser.
Eiendommen ligger i et område som er avsatt til sentrumsformål i kommuneplanens arealdel, datert 04.09.2024.
Eiendommen ligger innenfor et område som ligger under marin grense. For alle planer og tiltak under marin grense skal faren for områdeskred vurderes i henhold til krav i pbl. § 28-1 og TEK17 § 7-3 med veiledning.
Utsnitt av plan med tilhørende bestemmelser kan fås ved henvendelse til megler.
Økonomi
Økonomi
Boligens kostnader
Felleskostnadene er kr 5 303,- pr. mnd. og inkluderer: Kommunale avgifter, bygningsforsikring, forretningsførsel, TV/internett, drift, vedlikehold og renter/avdrag på fellesgjeld.
Felleskostnadene justeres normalt en til to ganger årlig i forhold til borettslagets faktiske utgifter.
Det kan komme en økning av felleskostnadene med 5% fra april/mai grunnet økte kommunale avgifter. Dette er ikke vedtatt pt.
Felleskostnadene fordeles slik:
- Felleskostnader kr 4 078,-
- Parkering kr 450,-
- Stipulerte avdrag kr 420,-
- Stipulerte renter kr 355,-
Nåværende eier har et strømforbruk som tilsvarer ca. kr 15 000,- pr. år.
Boligen er tilknyttet Telia som leverandør av tv/internett og har avgift. Tv-tuner/dekoder medfølger ikke.
Beboer er selv ansvarlig for å ordne med tilkobling selv ved innflytting.
Utgiftene er basert på nåværende eiers forbruk. Kjøper må selv tegne innboforsikring.
Formuesverdi
Ved hjelp av skatteetatens boligkalkulator er boligens formuesverdi beregnet til kr 1 072 868,- for 2024 når boligen benyttes som primærbolig.
Formuesverdien er en gitt prosent av den beregnede markedsverdien. Beregnet markedsverdi er basert på Statistisk sentralbyrå (SSB) sine opplysninger om omsatte boliger. I beregningen tas det hensyn til boligens beliggenhet, areal, byggeår og boligtype.
Det er eier av boligen som fastsetter formuesverdien, jf. skatteforvaltningsloven § 9-1 første ledd, men skattemyndighetene kan kontrollere at verdien er satt riktig.
Opplysninger om fellesgjeld
Andel formue pr 31.12.2025 kr 20 373,-
Total fellesgjeld for boligselskapet er kr 9 750 462,- pr. 31.12.2025 og lånevilkårene er:
Andel fellesgjeld er kr 181 061,- pr. 31.12.2025
Lån 1
Bank: DNB BANK ASA
Type: Annuitetslån (IN-lån)
Restsaldo kr 4 186 938,-
Løpetid: 01.12.11 - 30.12.38
Rente: 5,60%.
Lån 2
Bank: DNB BANK ASA
Type: Annuitetslån
Restsaldo kr 5 563 524,-
Løpetid: 19.02.25 - 30.09.49
Rente: 5,60%.
Borettslaget har lagt til rette for individuell nedbetaling på deler av fellesgjelden (IN-lån). Denne andelen har innfridd sin del av IN-lånet.
Omkostninger
4 890 000,00 Prisantydning
181 061,00 Andel av fellesgjeld
--------------------------------------------------------
5 071 061,00 Pris inkl. fellesgjeld
Omkostninger
8 212,00 Forkjøpsrett - forhåndsutlyst (kjøper)
9 950,00 Gjensidige Boligkjøperpakke (valgfri)
545,00 Tinglysing hjemmel
545,00 Tinglysing panterettsdokument
--------------------------------------------------------
19 252,00 Omkostninger totalt
--------------------------------------------------------
5 090 313,00 Totalpris inkl. omkostninger
--------------------------------------------------------
Dersom kjøper ikke er medlem av boligbyggelaget, må det påregnes en innmeldingsavgift og årlig medlemsgebyr pr. ny andelseier. Dette faktureres direkte fra boligbyggelaget.
Dersom borettslaget har fellesgjeld, vil leilighetens andel av fellesgjelden komme i tillegg til kjøpesummen. Denne gjelden skal ikke innbetales i oppgjøret, men følger leiligheten.
Det tas forbehold om endringer i avgifter og gebyrer.
Tilbud om lånefinansiering
Megler formidler gjerne kontakt med rådgiver hos Trøgstad Sparebank. De har konkurransedyktige betingelser samt rask og løsningsorientert behandling av din lånesøknad.
Betalingsbetingelser
Kjøpesum inkludert omkostninger, samt pantedokument tilknyttet eventuelt lån, skal være disponibelt hos megler 2 virkedager før overtagelsen.
Annen viktig informasjon
Annen viktig informasjon
Eier
Diman Barzigar
Informasjon om borettslaget
Leiligheten er tilknyttet Storgata 29 Borettslag .
Borettslaget består av 39 leiligheter.
Forretningsfører er BORI Boligbyggelaget Romerike
Dugnad må påregnes.
Det er tillatt å holde hund og/eller katt på betingelse av at det inngås skriftlig kontrakt med borettslaget. Dyrehold skal ikke være til sjenanse for andre beboere. Kontakt styret for mer informasjon.
Det er gjennomført nødvendig vedlikehold, som etter styrets oppfatning, er tilstrekkelig til å ivareta bygningenes tilstand og verdi.
Borettslaget må begynne å sette av midler til utskifting av heis om noen år.
Øvrige andelseiere i borettslaget og eventuelt medlemmer av boligbyggelaget har forkjøpsrett. I henhold til burettslagslova tar dette inntil 20 dager å avklare fra melding om salget er gitt borettslaget. Dersom boligen tas på forkjøpsrett løses kjøper fra avtalen.
I henhold til borettslagets vedtekter må kjøper godkjennes av styret som ny andelseier. Det er kjøpers ansvar at styregodkjenning blir gitt, men styret kan ikke nekte godkjenning uten saklig grunn.
Iht. burettslagslova kan man bare eie én andel i borettslaget. Kun fysiske personer kan være andelseiere.
Borettslaget er tilknyttet Borettslagenes Sikringsordning AS som dekker manglende innbetaling av felleskostnader fra øvrige andelseiere. Avtalen om sikring er gyldig til avtalen sies opp av en av partene. Oppsigelsesfrist er 1 desember med gyldighet fra førstkommende årsskifte.
Dokumenter for borettslaget kan fås ved henvendelse til megler.
Overtakelse
Etter nærmere avtale. Overtakelse kan tidligst skje etter at forkjøpsretten for øvrige andelseiere i borettslaget og eventuelt medlemmer av boligbyggelaget er avklart, samt at styrets godkjennelse er avklart.
Boligselgerforsikring
Selger har i forbindelse med salget tegnet boligselgerforsikring levert av Gjensidige.
Boligselgerforsikringen dekker selgers ansvar etter avhendingsloven begrenset oppad til kr 14 millioner. Dersom kjøper oppdager forhold ved eiendommen som hen mener utgjør en mangel ved eiendommen, vil Gjensidige behandle reklamasjonen på vegne av selger. Forsikringsvilkår kan fås ved henvendelse til megler.
Vedlagt salgsoppgaven følger selgers egenerklæringsskjema og tilstandsrapport. Interessenter må sette seg inn i dokumentene før bud inngis.
Boligkjøperforsikring
Innen kontraktsmøtet må kjøper ta stilling til om det ønskes å bestille Boligkjøperpakken gjennom Gjensidige. I denne gunstige pakken er boligen ferdig forsikret og inkluderer rettshjelpsforsikring, også kalt Boligkjøperforsikring. Rettshjelpsforsikring gir trygghet og tilgang på profesjonell juridisk hjelp dersom det oppdages uventede feil eller mangler det første året etter overtagelse. Forsikringsselskapet behandler i så fall ethvert mangelskrav kjøper måtte ha overfor selger.
Boligkjøperpakken inkluderer bygningsforsikring for hus og hytte, innboforsikring, flytteforsikring og dobbel rentedekning - i situasjoner hvor kjøper ikke får solgt nåværende primærbolig.
Kjøper mottar ingen særskilt faktura for Boligkjøperpakken da kostnaden det første året legges til kjøpesummen for boligen. Det gjøres oppmerksom på Krogsveen mottar et honorar for denne formidlingen.
Produktark for Boligkjøperpakken ligger vedlagt i salgsoppgaven.
Dersom ikke boligkjøperpakke ønskes kan kun rettshjelpsforsikring, også kalt boligkjøperforsikring, tegnes særskilt via megler. Rettshjelpsforsikringen varer i 5 år fra overtagelse og leveres gjennom Gjensidige. Ta kontakt med megler for ytterligere informasjon.
Selskap og privatpersoner som driver med kjøp/salg/utvikling som ledd i egen næringsvirksomhet kan ikke tegne boligkjøperpakke eller rettshjelpsforsikring.
Budgivning
Forbrukerinformasjon om budgivning er vedlagt denne salgsoppgaven og er også på vår hjemmeside Krogsveen.no. Alle bud og budforhøyelser må inngis skriftlig. I tillegg må legitimasjon være fremlagt sammen med signatur fra budgiver.
Vi oppfordrer til å gi bud elektronisk via GI BUD-knappen på eiendommens hjemmeside på Krogsveen.no. Da vil samtlige vilkår bli oppfylt.
Eventuelle forhøyelser eller endringer av budet kan bekreftes pr SMS eller på e-post. Vi oppfordrer alltid til å kontakte megler pr. telefon i tillegg da forsinkelser i SMS og e-post kan forekomme.
For at budene skal kunne bli behandlet og videreformidlet skriftlig til alle involverte parter, må alle bud ha en tilstrekkelig lang akseptfrist, jf. eiendomsmeglingsforskriften § 6-3.
Selger må også skriftlig akseptere budet før aksept kan formidles til budgiver. Akseptfrist bør derfor være på minimum 30 minutter, og budforhøyelser må derfor skje i god tid før fristens utløp.
Bud i forbrukerforhold kan uansett ikke settes med kortere frist enn kl. 12.00 første virkedag etter siste annonserte visning. I tillegg kan ikke budet ha forbehold om at det skal holdes hemmelig ovenfor øvrige interessenter. Megler har iht lov om eiendomsmegling ikke anledning til å videreformidle disse budene, og de vil dermed heller ikke bli journalført.
Etter at eiendommen er solgt vil kjøper og selger få tilsendt budjournal. Øvrige budgivere kan få utlevert kopi av budjournalen i anonymisert form.
Hvitvaskingsreglene
I henhold til lov om hvitvasking og terrorfinansiering har megler plikt til å gjennomføre kontrolltiltak overfor kunder, herunder fullmektiger. Dette innebærer bl.a. å bekrefte kunders og reelle rettighetshaveres identitet på bakgrunn av fremvist gyldig legitimasjon eller på annen godkjent måte, samt å innhente opplysninger om kundeforholdets formål og tilsiktede art.
Dersom slike kundetiltak ikke kan gjennomføres, kan megler ikke etablere kundeforholdet eller utføre transaksjonen.
Hvis kjøper ikke bidrar til gjennomføring av kundekontrollen og dette fører til at transaksjonen blir forsinket eller ikke kan gjennomføres, vil dette ansees som mislighold av avtalen og gi selger rettigheter etter avhendingslova kapittel 5. I tilfeller der selger ikke bidrar til gjennomføring av løpende kundekontroll underveis i oppdraget, er det selger som misligholder sine forpliktelser etter avtalen og gi kjøper rettigheter etter avhendingslovens kapittel 4. Partene er selv ansvarlige for eventuelle kostnader og ansvar dette kan medføre. Eiendomsmegleren eller eiendomsmeglingsforetaket kan ikke holdes ansvarlig for de konsekvenser dette vil kunne få for partene eller andre som har interesser i eiendomshandelen.
Kjøper oppfordres til å innbetale kjøpesummen som ikke kommer fra låneinstitusjon i én samlet innbetaling fra egen konto i norsk bank. Megler har plikt til å melde fra til Økokrim om eiendomshandler som fremstår som mistenkelige. Melding sendes Økokrim uten at partene varsles.
Personopplysningsloven
I henhold til personopplysningsloven gjør vi oppmerksom på at interessenter kan bli registrert for videre oppfølging.
Lovanvendelse
Generelle bestemmelser
Salgsoppgaven er basert på de opplysningene selger har gitt til megler, den bygningssakyndiges tilstandsrapport, samt opplysninger innhentet fra kommunen, Kartverket og andre tilgjengelige kilder. Det er viktig at kjøper setter seg grundig inn i alle salgsdokumentene, herunder salgsoppgave, tilstandsrapport og selgers egenerklæring. Kjøper anses kjent med forhold som er tydelig beskrevet i salgsdokumentene, og slike forhold kan ikke påberopes som mangler. Dette gjelder uavhengig av om kjøper har lest dokumentene. Alle interessenter oppfordres til å undersøke eiendommen nøye, gjerne sammen med fagkyndig før bud inngis. Kjøper som velger å kjøpe usett kan ikke gjøre gjeldende som mangel noe han burde blitt kjent med ved undersøkelsen.
Dersom det er behov for avklaringer, anbefaler vi at interessenter rådfører seg med eiendomsmegler eller egne rådgivere før det legges inn bud.
En bolig som har blitt brukt i en viss tid, har vanligvis blitt utsatt for slitasje og skader kan ha oppstått. Slik bruksslitasje må kjøper regne med, og det kan avdekkes enkelte forhold etter overtakelse som nødvendiggjør utbedringer. Normal slitasje og skader som nødvendiggjør utbedring, er innenfor hva kjøper må forvente og vil ikke utgjøre en mangel.
Kjøper og selgers rettigheter og plikter reguleres av avtalen mellom partene, samt informasjonen som har vært tilgjengelig for kjøperen i forbindelse med handelen. Avtalen utfylles av avhendingsloven, og det gjelder ulike avtalevilkår avhengig av om kjøper er forbrukerkjøper eller ikke. Dette er nærmere beskrevet nedenfor.
På grunn av ulike avtalevilkår kan selger vurdere bud fra en som ikke er forbruker, ulikt fra en forbrukers bud. Dersom kjøper ikke er forbruker, er selger sitt mulige mangelsansvar begrenset fordi eiendommen selges "som den er". Selger kan ikke ta «som den er»- forbehold overfor en forbrukerkjøper. Selv et lavere bud fra en som ikke er forbruker kan foretrekkes fordi begrensningen i mulig mangelsansvar kan ha egenverdi for selger. Selger står fritt til å forkaste eller akseptere ethvert bud, og er for eksempel ikke forpliktet til å akseptere høyeste bud.
Budgiver skal i budskjema avgi egenerklæring om budgiver er forbruker eller næringsdrivende/ person som hovedsakelig handler som ledd i næringsvirksomhet. Budgivere får informasjon dersom andre bud er inngitt av en som ikke er forbruker.
Forbrukerkjøp - definisjon
Med forbrukerkjøp menes kjøp av eiendom når kjøperen er en fysisk person som ikke hovedsakelig handler som ledd i næringsvirksomhet.
Forbruker – avtalevilkår
Eiendommen har en mangel dersom den ikke er i samsvar med kravene som følger av avtalen, eller det foreligger brudd på bestemmelsene i avhendingsloven §§ 3-2 til 3-8. Hvis eiendommen ikke er i samsvar med det kjøperen må kunne forvente ut ifra alder, type og synlig tilstand, kan det være grunnlag for mangelskrav. Det samme gjelder hvis det er holdt tilbake eller gitt uriktige opplysninger om eiendommen. Dette gjelder likevel bare dersom man kan gå ut ifra at det virket inn på avtalen at opplysningen ikke ble gitt eller at mangelskravet ikke blir rettet i tide på en tydelig måte.
Boligen kan ha en mangel etter avhendingsloven § 3-3 andre ledd, dersom det er avvik mellom opplyst og faktisk innvendig areal, forutsatt at avviket er på 2% eller mer og minimum 1 kvm.
Ved beregning av et eventuelt prisavslag eller erstatning må kjøper selv dekke tap/kostnader opptil et beløp på kr 10 000 (egenandel).
Ikke-forbruker (næringsdrivende) – definisjon
Hvis kjøper er en juridisk person, eller en fysisk person som hovedsakelig handler som ledd i næringsvirksomhet, vil kjøpet ikke anses som et forbrukerkjøp.
Ikke-forbruker – avtalevilkår
Eiendommen har en mangel dersom den ikke er i samsvar med kravene som følger av avtalen.
Eiendommen selges «som den er», og selgers ansvar utover det konkret avtalte er da begrenset etter avhendingsloven § 3-9, første ledd andre setning.
Avhendingsloven § 3-3 andre ledd fravikes, og hvorvidt boligens arealsvikt utgjør en mangel vurderes etter avhendingsloven § 3-8.
Informasjon om kjøpers undersøkelsesplikt, herunder oppfordringen om å undersøke eiendommen nøye, gjelder også for kjøpere som ikke anses som forbrukere.
Det forutsettes at hjemmel overføres til kjøper. Hvis kjøper ikke ønsker hjemmelsoverføring av eiendommen, må det tas forbehold om dette i budet.
Meglers vederlag
Meglers vederlag betales av selger og er avtalt til:
Vederlag: 1 % av salgssummen inkl. eventuell fellesgjeld.
Vederlag:
Kontroll av hjemmel og heftelser kr 3 900,-
Markedsføringspakke kr 29 900,-
Oppgjør kr 8 900,-
Tilrettelegging kr 19 900,-
Visninger kr 2 000 pr stk - 2 inkl.
Utlegg:
Eierskiftegebyr forretningsfører kr 6 725,-
Innhenting av informasjon forretningsfører kr 5 200,-
Tinglysing sikring kr 545,-
Andre utgifter:
Foto kr 4 200,-
Tilstandsrapport kr 8 000,-
Vi er opptatt av verdiskapning, og har knyttet til oss samarbeidspartnere som skal sikre våre kunder de beste produkter og tjenester;
• I forbindelse med forberedelse av salget, innhenter vi informasjon om eiendommen hovedsakelig fra vår samarbeidspartner Amibita.
• Gjensidige leverer boligselgerforsikring og tilbyr bygningsforsikring
• Boligkjøperforsikring leveres av Hiscox og med Sedgwick som skadebehandler, og er formidlet gjennom Gjensidige.
• BN bank tilbyr finansieringsløsninger
• Vår avdeling Krogsveen Pluss tilbyr flyttetjenester som utvask, visningsvask, lager, tømming og transport av flyttelass, i tillegg til å formidle kontakt med Flip for overflateoppussing.
• I forbindelse med overtagelse av eiendommen tilbyr Overo avtale om strøm, alarm og bredbånd.
• Krogsveen er, sammen med øvrige bransjeaktører, medeier i Bomega AS som tilbyr den digitale annonseringsplattformen Hjem.
Opplysninger om oppdraget
Oppdragsnummer 60-0012/26
Eiendomsmegler Krogsveen AS, avd. Lillestrøm
Adolph Tidemands gate 38, 2000, LILLESTRØM
950 007 613
Oppdragets KR-kode KR60.2612
Dato
Sist oppdatert: 08. mars 2026 kl. 13:31
Dokumenter
Dokumenter
PDF – 941 KB
PDF – 67 KB
PDF – 76 KB
PDF – 3 MB
PDF – 312 KB
PDF – 29 KB
PDF – 127 KB
PDF – 392 KB
Visning
Trykk "VISNINGSPÅMELDING" for å avtale tidspunkt for visning.
For å delta på visning, ber vi om at du melder deg på. Da sikrer vi at du får nødvendig informasjon og at det er satt av tilstrekkelig med tid. Kontakt megler dersom annet tidspunkt ønskes. Husk å lese salgsoppgaven før visningen, så du stiller forberedt. NB. Visning utgår dersom det ikke er noen påmeldte.
Ønsker du kun å bli holdt orientert, kan du fra eiendommens hjemmeside få varsel om solgtpris, eller kontakte megler.
Lurer du på noe?
Unngå doble boligrenter
Vi tilbyr gunstig forsikring.
Vurderer du utleie?
Få et tilbud fra Utleie KrogsveenHva koster lånet?
Sjekk estimert lånekostnadVil du varsles om lignende boliger?
Ved å lagre ditt boligsøk hos oss får du beskjed når vi har en bolig som ligner denne, før den legges ut på markedet!

