Salmakerstien 2H
2 450 000 kr
58 m²
2 soverom
Solgt

Presenteres av
Knut DahlSkredderåsen
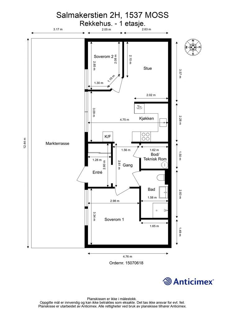
Oppgradert og ombygget 3-roms andelsleilighet med fantastiske, solfylte utearealer. Nyere kjøkken og bad. Garasjeplass.
Prisantydning
2 450 000 krAndel fellesgjeld
357 267 krOmkostninger
11 040 krTotalpris
2 818 307 kr
Pris
Bruksareal
64 m²BRA-I (internt bruksareal)
58 m²BRA-E (eksternt bruksareal)
6 m²TBA (terrasse-balkongareal)
40 m²
Areal
Etasje
1Byggeår
1978Soverom
2 soveromBad
1 badType
RekkehusEierform
AndelFasiliteter
Garasje/P-plassFellesutgifter
6 752 kr
Nøkkelinfo
Unngå doble boligrenter
Vi tilbyr gunstig forsikring.
Vurderer du utleie?
Få et tilbud fra Utleie KrogsveenHva koster lånet?
Sjekk estimert lånekostnadBeskrivelse
Kort om eiendommen
Ombygget og oppgradert tre-roms andelsleilighet i rolige omgivelser på Skredderåsen
- Fantastiske utearealer - sol store deler av dagen sommerstid
- Stor terrasse på hele 40 kvm. og lettstelt gressplen
- Innvendige overflater skiftet ut og behandlet i senere år
- Kjøkken og bad av nyere årgang
- Bod åpnet mot hovedsoverom og tatt i bruk som walk-in
- Bod/teknisk rom med rør-opplegg til vaskemaskin
- Et ekstra gjesterom/kontor nylig skilt ut fra stuen
- Garasjeplass med mulighet for abonnementsbasert lading av EL-bil
- Enkel tilgang til fine turområder i Mossemarka
- Kort avstand til barnehage og barneskole
- Under 10 min. med buss eller bil til sentrum
- Kort vei til E6 og Mosseporten kjøpesenter
Område
Legg til steder som er viktige for deg
På flyttefot? Tenk kjøp og salg samtidig.
Få din egen rådgiver gjennom hele kjøps- og salgsprosessen. Det starter med en verdivurdering.
Unngå doble boligrenter
Vi tilbyr gunstig forsikring.
Vurderer du utleie?
Få et tilbud fra Utleie KrogsveenHva koster lånet?
Sjekk estimert lånekostnadVil du varsles om lignende boliger?
Ved å lagre ditt boligsøk hos oss får du beskjed når vi har en bolig som ligner denne, før den legges ut på markedet!
På flyttefot? Slik gjør vi det enklere for deg
Skreddersydd flyttepakke
Vi fikser håndverkere, vask, pakking, lagring og transport, og legger ut for utgiftene underveis.
Hjelp med både kjøp og salg
Hos oss har du din egen rådgiver gjennom hele kjøps- og salgsprosessen.
Hjelp til finansiering
Vårt samarbeid med BN Bank sikrer deg rask og løsningsorientert hjelp, til konkurransedyktige betingelser.

