Evjebakken 14
4 800 000 kr
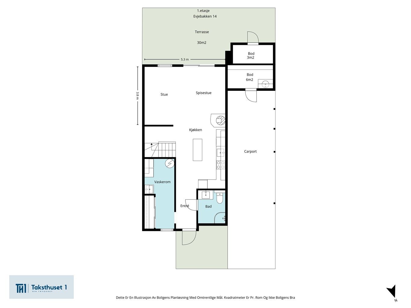
110 m²
3 soverom
Solgt

Moderne bolig fra 2022 med høy standard | 3 soverom | 2 bad | Carport med elbillader | Solrike uteplasser på Årnes
Prisantydning
4 800 000 krOmkostninger
140 990 krTotalpris
4 940 990 kr
Pris
Bruksareal
119 m²BRA-I (internt bruksareal)
110 m²BRA-E (eksternt bruksareal)
9 m²TBA (terrasse-balkongareal)
64 m²
Areal
Etasje
2Byggeår
2022Soverom
3 soveromBad
2 badType
RekkehusEierform
EierseksjonFellesutgifter
1 885 krEnergimerke
Rød B
Nøkkelinfo
Unngå doble boligrenter
Vi tilbyr gunstig forsikring.
Vurderer du utleie?
Få et tilbud fra Utleie KrogsveenHva koster lånet?
Sjekk estimert lånekostnadBeskrivelse
Kort om eiendommen
Velkommen til en moderne og innbydende bolig med gjennomført standard og smarte løsninger. Hjemmet byr på et stilrent Kvik-kjøkken med kjøkkenøy, integrerte hvitevarer og vinskap – perfekt for både matlaging og sosiale sammenkomster. Stuen har store vindusflater, peis og utgang til en solrik platting, mens tre romslige soverom gir gode private soner. Boligen har to delikate bad samt praktisk vaskerom. Uteområdene er godt utnyttet med både platting og balkong som gir sol gjennom hele dagen. Carport med elbillader (2024) samt to ekstra utvendige boder, gir rikelig med oppbevaringsplass. En bolig som kombinerer funksjonalitet, komfort og moderne design – klar til å flyttes rett inn i.
Område
Legg til steder som er viktige for deg
På flyttefot? Tenk kjøp og salg samtidig.
Få din egen rådgiver gjennom hele kjøps- og salgsprosessen. Det starter med en verdivurdering.
Unngå doble boligrenter
Vi tilbyr gunstig forsikring.
Vurderer du utleie?
Få et tilbud fra Utleie KrogsveenHva koster lånet?
Sjekk estimert lånekostnadVil du varsles om lignende boliger?
Ved å lagre ditt boligsøk hos oss får du beskjed når vi har en bolig som ligner denne, før den legges ut på markedet!

