Helgesens gate 78E
4 600 000 kr
53 m²
1 soverom
Solgt
Sofienberg
Lys og sjarmerende 2-roms med romslig, solrik balkong - Originalt tregulv - Attraktiv beliggenhet ved Sofienbergparken!
Prisantydning
4 600 000 krAndel fellesgjeld
372 983 krOmkostninger
19 252 krTotalpris
4 992 235 kr
Pris
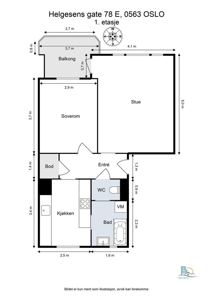
Bruksareal
68 m²BRA-I (internt bruksareal)
53 m²BRA-E (eksternt bruksareal)
15 m²TBA (terrasse-balkongareal)
8 m²
Areal
Etasje
1Byggeår
1946Soverom
1 soveromBad
1 badType
AndelsleilighetEierform
AndelFasiliteter
Balkong/TerrasseFellesutgifter
6 265 krEnergimerke
Grønn F
Nøkkelinfo
Unngå doble boligrenter
Vi tilbyr gunstig forsikring.
Vurderer du utleie?
Få et tilbud fra Utleie KrogsveenHva koster lånet?
Sjekk estimert lånekostnadDette liker selger best ved boligen
Det mest positive ved denne leiligheten er kombinasjonen av sentral beliggenhet og rolige omgivelser. Her bor du midt i byen, med kort vei til alle typer kollektivtransport – buss, trikk, T-bane og toget fra Tøyen stasjon – samtidig som du har grønne lunger på alle kanter, som Ola Narr, Tøyenparken, Sofienbergparken og Botanisk hage. Leiligheten er lys og luftig og har en god planløsning med originale tregulv i stue og soverom som gir særpreg. Soverommet vender ut mot en stille bakgård, noe som gir en rolig og behagelig atmosfære til tross for den urbane beliggenheten. Radiatorene gir god varme med lave strømkostnader, og leiligheten har nye vinduer som isolerer godt, noe som bidrar til et behagelig inneklima. Leiligheten er en høy første etasje som gjør at den har lett tilgjengelighet samtidig som den ikke oppleves sjenerende med innsyn. Balkongen er nylig renovert, perfekt for hyggelige stunder ute, og borettslaget er engasjert med stor felles vaskekjeller, egen sykkelbod, gode bodmuligheter på loft og i kjeller, samt fellesrom som kan leies til arrangementer. I bakgården finnes lekeplass, grøntområder og mulighet for parsellkasser, som gir rom for både aktivitet og avslapning. I nærområdet finner du et bredt utvalg av dagligvarebutikker som Rema 1000, Kiwi, Sofienberg Mat, Joker og Coop Mega, i tillegg til restauranter, kafeer og uteliv på Tøyen, Carl Berner og Grünerløkka. Tøyenbadet ligger også rett i nærheten. Hele boligblokken er nylig totalrenovert med nye vinduer, balkonger og slemming.
Beskrivelse
Kort om eiendommen
Tom Martinsen v/Krogsveen har gleden av å presentere en lys og sjarmerende 2-roms leilighet på Sofienberg. Leiligheten har god intern beliggenhet med balkong vendt mot frodige grøntområder. Store vindusflater sørger for en luftig atmosfære. Boligen holder en god standard med velholdte overflater. Denne vil du ikke gå glipp av!
Kvaliteter:
Vestvendt balkong på 8 kvm - perfekt for varme sommerdager
Kort vei til servicetilbud, fasiliteter og kollektivtilbud
God oppbevaringsplass i kjeller- og loftsbod
Tiltalende overflater i behagelige nyanser
TV, internett, varmtvann og fyring inkl.
Vinduer og balkongdør fra 2024
Felles vaskeri og sykkelbod
Velholdt med god standard
Høy 1. etg med lite innsyn
God planløsning
Originalt tregulv
Område
Legg til steder som er viktige for deg
På flyttefot? Tenk kjøp og salg samtidig.
Få din egen rådgiver gjennom hele kjøps- og salgsprosessen. Det starter med en verdivurdering.
Unngå doble boligrenter
Vi tilbyr gunstig forsikring.
Vurderer du utleie?
Få et tilbud fra Utleie KrogsveenHva koster lånet?
Sjekk estimert lånekostnadVil du varsles om lignende boliger?
Ved å lagre ditt boligsøk hos oss får du beskjed når vi har en bolig som ligner denne, før den legges ut på markedet!
På flyttefot? Slik gjør vi det enklere for deg
Skreddersydd flyttepakke
Vi fikser håndverkere, vask, pakking, lagring og transport, og legger ut for utgiftene underveis.
Hjelp med både kjøp og salg
Hos oss har du din egen rådgiver gjennom hele kjøps- og salgsprosessen.
Hjelp til finansiering
Vårt samarbeid med BN Bank sikrer deg rask og løsningsorientert hjelp, til konkurransedyktige betingelser.




