Saudagata 2
4 790 000 kr
73 m²
2 soverom
Komplett salgsoppgave

Lekker tre-roms med førsteklasses utsikt. Stavanger sentrum like utenfor døren. Parkering i lukket anlegg. Heis.
Prisantydning
4 790 000 krOmkostninger
130 790 krTotalpris
4 920 790 kr
Pris
Bruksareal
78 m²BRA-I (internt bruksareal)
73 m²BRA-E (eksternt bruksareal)
5 m²TBA (terrasse-balkongareal)
9 m²
Areal
Byggeår
1989Soverom
2 soveromBad
1 badType
EierleilighetEierform
EierseksjonFasiliteter
Garasje/P-plass, Heis og Balkong/TerrasseFellesutgifter
2 508 krEnergimerke
Gul D
Nøkkelinfo
Unngå doble boligrenter
Vi tilbyr gunstig forsikring.
Vurderer du utleie?
Få et tilbud fra Utleie KrogsveenHva koster lånet?
Sjekk estimert lånekostnadBeskrivelse
Kort om eiendommen
Innhold og byggemåte
Innhold og byggemåte
Eiendommen
Saudagata 2, 4012 STAVANGER
Kommunenummer 1103, gårdsnummer 55, bruksnummer 100, seksjonsnummer 19, ideell andel 1/1
Innhold
Totalt bruksareal BRA: 78 kvm
BRA-i:
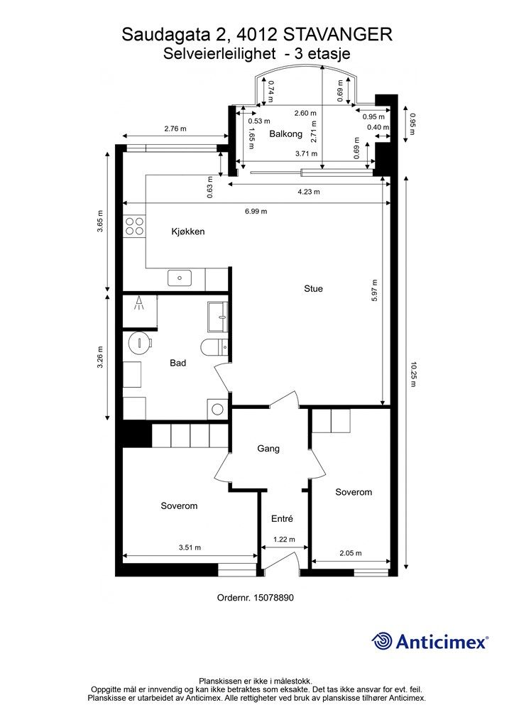
3. etasje 73 kvm: Entré, gang, bad, kjøkken, stue og 2 soverom.
BRA-e:
Kjeller 5 kvm: Bod.
Åpent areal:
3. etasje 9 kvm: Balkong.
Boligen disponerer en bod i kjeller.
Det gjøres oppmerksom på at boligens eksterne boder tilhører sameiets fellesareal, og at boden således ikke eies av den enkelte sameier. Dette medfører at sameiet i fellesskap beslutter bruken, og at man ikke selv har eierrett og rettsvern for boden. Sameiet kan ved vedtak beslutte annet bruk av fellesarealet og disponering av bodarealet kan dermed opphøre.
Vedlagte plantegninger er ikke målbare. De oppgitte arealer er hentet fra rapport med befaringsdato 02.02.2026 utført av Anticimex v/ Yngve Paulsen.
Byggemåte
Moderniseringer og påkostninger
Ifølge selger ble badet totalrenovert i 2018 og kjøkkenet i 2020.
Utskiftning av villavent og kjøkkenvifte ifm. oppussing av kjøkken.
2010:
Utskiftning av alle ytterdører, vinduer og skyvedører i sameiet. Behandling og utskiftning av trekledning, behandling av betong/mur vegger og rekkverk.
Behandling av betonghimling, svalganger og balkonger. Utbedring av sår og skader i betong. Taktekking. Balkong i leilighet ble fliselagt.
Standard
For utfyllende teknisk standard for øvrig henvises det til vedlagt tilstandsrapport.
Løsøre og tilbehør
Vi viser til liste fra Norges Eiendomsmeglerforbund som gjelder fra 01.01.2020 angående løsøre og tilbehør.
Følgende medfølger ikke i handelen:
Pendellamper over sofabord og spisebord.
Følgende medfølger i handelen:
Integrert oppvaskmaskin, platetopp og stekeovn, frittstående kjøleskap og tørketrommel.
Oppvarming
Elektrisk oppvarming, varmekabler på bad.
Dersom beboelsesrom ikke har vegg- eller fastmonterte varmekilder ved visning, følger dette heller ikke med.
Ferdigattest/brukstillatelse
Det foreligger ikke ferdigattest på eiendommen, men midlertidig brukstillatelse ble gitt 13.07.1989. Tillatelsen er gitt på følgende vilkår: .
Før ferdigattest kan utskrives må følgende arbeider utføres:
- Gjennomføringer for el. kabler og kanaler etc. i tauleromsvegger må tettes i brannklasse A 60.
- Det må monteres håndlister på begge sider av alle trappeløp.
- Kanalgjennomføringer i vegger rundt heismaskinrom må tettes i brannklasse A 60.
-Hovedtrapp har svint trappeløp uten repoer. Ifølge byggeforskift 87, kap. 44:44 skal hovedtrapp ha rette løp.
-Kantinen må få to uavhengige rømningsveier.
- Hovedatkomst til kontorene fra Saudagt. har en svint trapp i nivåskille. Trappen har meget små inntrinn i innersving 100–120 mm. Forskriftsmessig bredde oppnås først nær midten av trappeløpet. Det vil av denne grunn være en viss fare med å ferdes i trappens innersving. Det anbefales derfor å flytte håndrekken inn i trappeløpet slik at man får en brukbar bredde på inntrinn.
-Attest fra bygningen for sanitæranlegget må fremlegges.
-Det må meldes ifra til bygningssjefen når ovennevnte arbeider er utført.
Påpekte mangler må være utført innen: 1. september 1989.
Det er uklart om dette er utført. Kjøper overtar ansvaret for dette.
Det gjøres oppmerksom på at det ikke lenger utstedes ferdigattest på tiltak det er søkt om før 1998 jf. plan- og bygningsloven § 21-10. Kommunen vil ikke kreve ferdigattest for disse tiltakene og vil avvise eventuelle søknader. Bestemmelsen innebærer ikke at tiltak med manglende søknad blir lovlige, men at man ikke trenger å avslutte gamle byggesaker. Normalt sett kreves ferdigattest for alle søknadspliktige tiltak som gjøres etter plan- og bygningsloven.
Tinglyste heftelser og rettigheter
Leiligheten overdras fri for pengeheftelser
Sameiet har legalpant for krav mot sameieren som følger av sameieforholdet iht. eierseksjonsloven § 31. Pantet er begrenset oppad til 2G, (G = folketrygdens grunnbeløp).
Det er ingen tinglyste servitutter på eiendommen.
Eventuell adgang til utleie
Leiligheten kan leies ut såfremt leiligheten har forsvarlige radonverdier. Leietaker må følge sameiets vedtekter og ordensregler på lik linje som eier.
Sameiets styre skal underrettes skriftlig om alle leieforhold.
Beliggenhet og tomteforhold
Beliggenhet og tomteforhold
Beliggenhet
Saudagata 2 har en svært ettertraktet plassering med umiddelbar nærhet til sentrum, servicetilbud og kollektivtransport. Her bor en med byens tilbud like utenfor døren.
Fra leiligheten åpner det seg et flott og luftig panorama over Våland og Kannik, med teaterbygget som et elegant og karakteristisk blikkfang. Den åpne utsikten gir leiligheten en eksklusiv atmosfære og tilfører både lys, romfølelse og en unik visuell kvalitet som er sjelden.
Leiligheten er et ypperlig valg for deg som ønsker en moderne og sentral leilighet med sterke bokvaliteter, nærhet til kulturtilbud og en utsikt av de sjeldne.
Adkomst
Veibeskrivelse: Se Google maps - det er enkelt å finne frem i kartet.
Det vil bli skiltet med Krogsveen visningsskilt ved fellesvisninger.
Barnehager, skoler og fritid
Barnehager:
- St. Svithun barnehage (1-5 år) 0,4 km
- Nymansveien barnehage (1-5 år) 0,9 km
- Solvang barnehage (1-5 år) 1,2 km
Skoler:
- Storhaug skole (1-7 kl.) 0,5 km
- Våland skole (1-7 kl.) 0,9 km
- Nylund skole (1-7 kl.) 1,1 km
- St. Svithun skole (8-10 kl.) 0,3 km
- Kannik skole (8-10kl.) 1,1 km
- Bergeland videregående skole, 0,3 km
- Stavanger katedralskole, 0,6 km
Informasjon om tilhørende skolekretser er hentet fra Prognosesenteret som dataleverandør, og tilhørigheten kan årlig endres av kommunen. Dersom skole- og barnehagetilbud er av betydning for kjøpet, ber vi om at det rettes en særskilt henvendelse til kommunen/bydelsadministrasjonen for oppdatert informasjon.
Beskrivelse av tomt
Eiertomt på 1.302 kvm som tilhører sameiet.
Tomten er fellesareal, opparbeidet med asfaltert vei.
Oppgitt tomteareal er hentet fra digitalt eiendomskart fra Stavanger kommune. Oppgitt/anslått areal kan derfor avvike fra nøyaktig areal.
Parkering
Parkeringsplass merket med nr. 307 i lukket parkeringsanlegg.
Iflg. selger er det klargjort for tilkobling av elbil-lader ved parkeringsplass.
Iht. vedtektene har boligseksjonene enerett til å disponere en p-plass pr. seksjon etter skisse utarbeidet fra styret.
Parkeringsplassene med innkjørsel fra Lyder Sagens gate skal kun benyttes av boligseksjonene.
De resterende plasser disponeres av næringsseksjonen alene.
Etter eierseksjonsloven § 26 kan styret, etter krav fra en seksjonseier med nedsatt funksjonsevne, pålegge en annen seksjonseier uten behov for en tilrettelagt plass å bytte parkeringsplass. Dette gjelder kun dersom seksjonseieren med nedsatt funksjonsevne allerede disponerer en parkeringsplass i sameiet.
Med samtykke fra styret kan en seksjonseier anlegge ladepunkt for elbil og ladbare hybrider ved parkeringsplassen som seksjonen disponerer, eller andre steder som styret anviser. Styret kan bare nekte å samtykke dersom det foreligger en saklig grunn, jf. eierseksjonsloven § 25.
Vei, vann og avløp
Eiendommen har adkomst via kommunal vei.
Eiendommen er tilknyttet kommunalt ledningsnett via private stikkledninger. Eier er selv ansvarlig for private stikkledninger til boligen.
Regulerings-og arealplaner
Eiendommen er regulert til bolig/kontor i henhold til reguleringsplan ID 1147 datert 10.03.1986 med tilhørende reguleringsbestemmelser.
Eiendommen følger kommuneplan ID KP 2023-2040 datert 28.06.2024 med tilhørende reguleringsbestemmelser.
Eiendommen følger retningslinjer for trehusbyen.
Reguleringsplaner under arbeid i nærheten (100m):
- Plan ID 2829, Detaljregulering for kvartalet Sven Oftedals plass.
Status: Planforslag
Formål: Formålet med planen er å legge til rette for offentlig tjenesteyting i tillegg til å oppdatere eldre reguleringsplaner innenfor planområdet. Det planlegges for et bofellesskap for døve med demens
-Plan ID 2850, teater og museum på Kannikhøyden.
Status: Planlegging igangsatt
Formål: Formålet med planen er å utvikle museumsparken og det kulturhistoriske miljøet på Kannikhøyden som en kulturell møteplass både regionalt og lokalt, gjennom Rogaland Teater og Stavanger museums felles behov for fornying og utvikling. Planlagte arealformål vil være offentlig/privat tjenesteyting med tilhørende anlegg og grønnstruktur.
-PlanID 2832, Detaljregulering for bussveien fra Jernbaneveien til Haugåsveien.
Status: Planforslag
Utsnitt av plan med tilhørende bestemmelser kan fås ved henvendelse til megler.
Økonomi
Økonomi
Boligens kostnader
Fellesutgiftene er kr 2.508,- pr. mnd. og inkluderer bl.a.: Styre- og forretningsførerhonorar, vaktmestertjenester, drift og vedlikehold, fiberaksess, felles utvendig bygningsforsikring og strøm i fellesarealer.
Fellesutgiftene justeres normalt en til to ganger årlig i forhold til sameiets faktiske utgifter.
Felleskostnadene fordeles slik:
Felleskostnader: kr 2.409,-
Fiberaksess: kr 99,-
Nåværende eier hadde i 2025 et strømforbruk som tilsvarte ca. kr 10.000,- inkl. strømstøtte og nettleie / 4.624 kwh.
Boligen er tilknyttet Lyse Altibox som leverandør av fibertjenester. Sameiet har god prisavtale med Altibox med valgfri pakke (betales direkte av eier). Ny eier må tegne eget abonnement. Tv-tuner/dekoder medfølger ikke.
Utgiftene er basert på nåværende eiers forbruk. Kjøper må selv tegne innboforsikring.
Kommunale utgifter
Kommunale avgifter var i 2025 kr 11.722,-. I dette inngår gebyr for vann, avløp og renovasjon.
Formuesverdi
Formuesverdi for 2024 var kr 912.185,- ifølge Skatteetaten. Beløpet forutsetter at eier bor fast i boligen (primærbolig).
Ved eventuell øvrig bruk av eiendommen (f.eks. fritidsbolig, pendlerbolig, utleieobjekt) var formuesverdien for 2024 kr 3.648.738,-
Formuesverdien justeres normalt årlig.
Fra 2026 har Stortinget vedtatt en oppdatert modell for beregning av formuesverdi for primærbolig, så avvik kan forekomme.
For mer informasjon se skatteetaten.no
Eiendomsskatt
Eiendomsskatten er i Stavanger kommune gjeninnført fra 2026, men det er ikke stipulert hvor mye dette utgjør for denne eiendommen.
Omkostninger
4 790 000,00 Prisantydning
Omkostninger
119 750,00 Dokumentavgift til staten (2,5% av kjøpesum)
9 950,00 Gjensidige Boligkjøperpakke (valgfri)
545,00 Tinglysing panterettsdokument
545,00 Tinglysing skjøte
--------------------------------------------------------
130 790,00 Omkostninger totalt
--------------------------------------------------------
4 920 790,00 Totalpris inkl. omkostninger
--------------------------------------------------------
Totalpris inkl. omkostninger forutsetter kjøp til prisantydning.
Det tas forbehold om endringer i avgifter og gebyrer.
Tilbud om lånefinansiering
Megler formidler gjerne kontakt med rådgiver hos vår samarbeidspartner BN Bank. De har konkurransedyktige betingelser samt rask og løsningsorientert behandling av din lånesøknad. Krogsveen mottar et honorar dersom lån opprettes.
Betalingsbetingelser
Kjøpesum inkludert omkostninger, samt pantedokument tilknyttet eventuelt lån, skal være disponibelt hos megler 2 virkedager før overtagelsen.
Annen viktig informasjon
Annen viktig informasjon
Eier
Merete Rag
Informasjon om sameiet
Eiendommen er seksjonert, og leiligheten er tilknyttet sameiet Multigården.
Sameiet består av 24 leiligheter og 1 næringsseksjon.
Forretningsfører er Bate Boligbyggelag.
Dugnad må påregnes.
Det er forbudt å holde dyr i Sameiet. Selv om det er et forbud mot dyrehold, kan brukeren av boligen søke styrets godkjennelse til det. Dersom gode grunner taler for dyreholdet, og det ikke er til ulempe for de andre brukerne av eiendommen, vil søknaden bli innvilget, jfr. § 28 i eierseksjonsloven.
Evt. avslag kan påklages til sameiermøte.
- Boligseksjonene i sameiet har kollektiv avtale med Altibox Fiberaksess. Eier må tegne og dekke eget abonnement.
- Garanterte felleskostnader gjennom Klare Finans AS.
- Bate avregner og fordeler felleskostnadene mellom selger og kjøper ved eierskifter. Kjøper skal betale felleskostnader fra og med overtakelsesdato, og mottar faktura i eget navn.
Styrets arbeid i perioden (2024-2025):
Styret har jevnlig kontakt men det varierer ut ifra saker som kommer inn!
Styret har hatt fokus på vedlikehold og økonomi. Styret har ønsket å bygge opp egenkapitalen.
Styrets planer fremover:
Det er ønskelig å bygge opp egenkapitalen sånn at vi har økonomi til å tåle evt. dyre vedlikeholdsarbeider som kan komme i årene fremover!
Nødvendig vedlikehold vil bli utført!
Vi gjør videre oppmerksom på at det iht. eierseksjonsloven ikke er anledning å erverve mer enn 2 seksjoner i sameiet, her teller også eierskap via. firma, nærstående og familie. Kjøper har risikoen for at overskjøting på denne bakgrunn kan nektes av Statens Kartverk. I så fall vil kjøper uansett være forpliktet til å gjennomføre handelen, og oppgjør til selger vil finne sted tross manglende overskjøting.
Konferer med megler for mer informasjon.
Dokumenter for sameiet og kopi av seksjonsbegjæringen kan fås ved henvendelse til megler.
Overtakelse
Etter nærmere avtale.
Boligselgerforsikring
Selger har i forbindelse med salget tegnet boligselgerforsikring levert av Gjensidige.
Boligselgerforsikringen dekker selgers ansvar etter avhendingsloven begrenset oppad til kr 14 millioner. Dersom kjøper oppdager forhold ved eiendommen som hen mener utgjør en mangel ved eiendommen, vil Gjensidige behandle reklamasjonen på vegne av selger. Forsikringsvilkår kan fås ved henvendelse til megler.
Vedlagt salgsoppgaven følger selgers egenerklæringsskjema og tilstandsrapport. Interessenter må sette seg inn i dokumentene før bud inngis.
Boligkjøperforsikring
Innen kontraktsmøtet må kjøper ta stilling til om det ønskes å bestille Boligkjøperpakken gjennom Gjensidige. I denne gunstige pakken er boligen ferdig forsikret og inkluderer rettshjelpsforsikring, også kalt Boligkjøperforsikring. Rettshjelpsforsikring gir trygghet og tilgang på profesjonell juridisk hjelp dersom det oppdages uventede feil eller mangler det første året etter overtagelse. Forsikringsselskapet behandler i så fall ethvert mangelskrav kjøper måtte ha overfor selger.
Boligkjøperpakken inkluderer bygningsforsikring for hus og hytte, innboforsikring, flytteforsikring og dobbel rentedekning - i situasjoner hvor kjøper ikke får solgt nåværende primærbolig.
Kjøper mottar ingen særskilt faktura for Boligkjøperpakken da kostnaden det første året legges til kjøpesummen for boligen. Det gjøres oppmerksom på Krogsveen mottar et honorar for denne formidlingen.
Produktark for Boligkjøperpakken ligger vedlagt i salgsoppgaven.
Dersom ikke boligkjøperpakke ønskes kan kun rettshjelpsforsikring, også kalt boligkjøperforsikring, tegnes særskilt via megler. Rettshjelpsforsikringen varer i 5 år fra overtagelse og leveres gjennom Gjensidige. Ta kontakt med megler for ytterligere informasjon.
Selskap og privatpersoner som driver med kjøp/salg/utvikling som ledd i egen næringsvirksomhet kan ikke tegne boligkjøperpakke eller rettshjelpsforsikring.
Budgivning
Forbrukerinformasjon om budgivning er vedlagt denne salgsoppgaven og er også på vår hjemmeside Krogsveen.no. Alle bud og budforhøyelser må inngis skriftlig. I tillegg må legitimasjon være fremlagt sammen med signatur fra budgiver.
Vi oppfordrer til å gi bud elektronisk via GI BUD-knappen på eiendommens hjemmeside på Krogsveen.no. Da vil samtlige vilkår bli oppfylt.
Eventuelle forhøyelser eller endringer av budet kan bekreftes pr SMS eller på e-post. Vi oppfordrer alltid til å kontakte megler pr. telefon i tillegg da forsinkelser i SMS og e-post kan forekomme.
For at budene skal kunne bli behandlet og videreformidlet skriftlig til alle involverte parter, må alle bud ha en tilstrekkelig lang akseptfrist, jf. eiendomsmeglingsforskriften § 6-3.
Selger må også skriftlig akseptere budet før aksept kan formidles til budgiver. Akseptfrist bør derfor være på minimum 30 minutter, og budforhøyelser må derfor skje i god tid før fristens utløp.
Bud i forbrukerforhold kan uansett ikke settes med kortere frist enn kl. 12.00 første virkedag etter siste annonserte visning. I tillegg kan ikke budet ha forbehold om at det skal holdes hemmelig ovenfor øvrige interessenter. Megler har iht lov om eiendomsmegling ikke anledning til å videreformidle disse budene, og de vil dermed heller ikke bli journalført.
Etter at eiendommen er solgt vil kjøper og selger få tilsendt budjournal. Øvrige budgivere kan få utlevert kopi av budjournalen i anonymisert form.
Hvitvaskingsreglene
I henhold til lov om hvitvasking og terrorfinansiering har megler plikt til å gjennomføre kontrolltiltak overfor kunder, herunder fullmektiger. Dette innebærer bl.a. å bekrefte kunders og reelle rettighetshaveres identitet på bakgrunn av fremvist gyldig legitimasjon eller på annen godkjent måte, samt å innhente opplysninger om kundeforholdets formål og tilsiktede art.
Dersom slike kundetiltak ikke kan gjennomføres, kan megler ikke etablere kundeforholdet eller utføre transaksjonen.
Hvis kjøper ikke bidrar til gjennomføring av kundekontrollen og dette fører til at transaksjonen blir forsinket eller ikke kan gjennomføres, vil dette ansees som mislighold av avtalen og gi selger rettigheter etter avhendingslova kapittel 5. I tilfeller der selger ikke bidrar til gjennomføring av løpende kundekontroll underveis i oppdraget, er det selger som misligholder sine forpliktelser etter avtalen og gi kjøper rettigheter etter avhendingslovens kapittel 4. Partene er selv ansvarlige for eventuelle kostnader og ansvar dette kan medføre. Eiendomsmegleren eller eiendomsmeglingsforetaket kan ikke holdes ansvarlig for de konsekvenser dette vil kunne få for partene eller andre som har interesser i eiendomshandelen.
Kjøper oppfordres til å innbetale kjøpesummen som ikke kommer fra låneinstitusjon i én samlet innbetaling fra egen konto i norsk bank. Megler har plikt til å melde fra til Økokrim om eiendomshandler som fremstår som mistenkelige. Melding sendes Økokrim uten at partene varsles.
Personopplysningsloven
I henhold til personopplysningsloven gjør vi oppmerksom på at interessenter kan bli registrert for videre oppfølging.
Lovanvendelse
Generelle bestemmelser
Salgsoppgaven er basert på de opplysningene selger har gitt til megler, den bygningssakyndiges tilstandsrapport, samt opplysninger innhentet fra kommunen, Kartverket og andre tilgjengelige kilder. Det er viktig at kjøper setter seg grundig inn i alle salgsdokumentene, herunder salgsoppgave, tilstandsrapport og selgers egenerklæring. Kjøper anses kjent med forhold som er tydelig beskrevet i salgsdokumentene, og slike forhold kan ikke påberopes som mangler. Dette gjelder uavhengig av om kjøper har lest dokumentene. Alle interessenter oppfordres til å undersøke eiendommen nøye, gjerne sammen med fagkyndig før bud inngis. Kjøper som velger å kjøpe usett kan ikke gjøre gjeldende som mangel noe han burde blitt kjent med ved undersøkelsen.
Dersom det er behov for avklaringer, anbefaler vi at interessenter rådfører seg med eiendomsmegler eller egne rådgivere før det legges inn bud.
En bolig som har blitt brukt i en viss tid, har vanligvis blitt utsatt for slitasje og skader kan ha oppstått. Slik bruksslitasje må kjøper regne med, og det kan avdekkes enkelte forhold etter overtakelse som nødvendiggjør utbedringer. Normal slitasje og skader som nødvendiggjør utbedring, er innenfor hva kjøper må forvente og vil ikke utgjøre en mangel.
Kjøper og selgers rettigheter og plikter reguleres av avtalen mellom partene, samt informasjonen som har vært tilgjengelig for kjøperen i forbindelse med handelen. Avtalen utfylles av avhendingsloven, og det gjelder ulike avtalevilkår avhengig av om kjøper er forbrukerkjøper eller ikke. Dette er nærmere beskrevet nedenfor.
På grunn av ulike avtalevilkår kan selger vurdere bud fra en som ikke er forbruker, ulikt fra en forbrukers bud. Dersom kjøper ikke er forbruker, er selger sitt mulige mangelsansvar begrenset fordi eiendommen selges "som den er". Selger kan ikke ta «som den er»- forbehold overfor en forbrukerkjøper. Selv et lavere bud fra en som ikke er forbruker kan foretrekkes fordi begrensningen i mulig mangelsansvar kan ha egenverdi for selger. Selger står fritt til å forkaste eller akseptere ethvert bud, og er for eksempel ikke forpliktet til å akseptere høyeste bud.
Budgiver skal i budskjema avgi egenerklæring om budgiver er forbruker eller næringsdrivende/ person som hovedsakelig handler som ledd i næringsvirksomhet. Budgivere får informasjon dersom andre bud er inngitt av en som ikke er forbruker.
Forbrukerkjøp - definisjon
Med forbrukerkjøp menes kjøp av eiendom når kjøperen er en fysisk person som ikke hovedsakelig handler som ledd i næringsvirksomhet.
Forbruker – avtalevilkår
Eiendommen har en mangel dersom den ikke er i samsvar med kravene som følger av avtalen, eller det foreligger brudd på bestemmelsene i avhendingsloven §§ 3-2 til 3-8. Hvis eiendommen ikke er i samsvar med det kjøperen må kunne forvente ut ifra alder, type og synlig tilstand, kan det være grunnlag for mangelskrav. Det samme gjelder hvis det er holdt tilbake eller gitt uriktige opplysninger om eiendommen. Dette gjelder likevel bare dersom man kan gå ut ifra at det virket inn på avtalen at opplysningen ikke ble gitt eller at mangelskravet ikke blir rettet i tide på en tydelig måte.
Boligen kan ha en mangel etter avhendingsloven § 3-3 andre ledd, dersom det er avvik mellom opplyst og faktisk innvendig areal, forutsatt at avviket er på 2% eller mer og minimum 1 kvm.
Ved beregning av et eventuelt prisavslag eller erstatning må kjøper selv dekke tap/kostnader opptil et beløp på kr 10 000 (egenandel).
Ikke-forbruker (næringsdrivende) – definisjon
Hvis kjøper er en juridisk person, eller en fysisk person som hovedsakelig handler som ledd i næringsvirksomhet, vil kjøpet ikke anses som et forbrukerkjøp.
Ikke-forbruker – avtalevilkår
Eiendommen har en mangel dersom den ikke er i samsvar med kravene som følger av avtalen.
Eiendommen selges «som den er», og selgers ansvar utover det konkret avtalte er da begrenset etter avhendingsloven § 3-9, første ledd andre setning.
Avhendingsloven § 3-3 andre ledd fravikes, og hvorvidt boligens arealsvikt utgjør en mangel vurderes etter avhendingsloven § 3-8.
Informasjon om kjøpers undersøkelsesplikt, herunder oppfordringen om å undersøke eiendommen nøye, gjelder også for kjøpere som ikke anses som forbrukere.
Det forutsettes at hjemmel overføres til kjøper. Hvis kjøper ikke ønsker hjemmelsoverføring av eiendommen, må det tas forbehold om dette i budet.
Meglers vederlag
Meglers vederlag betales av selger og er avtalt til:
Fastpris: 45 000,-
Vederlag:
Kontroll av hjemmel og heftelser kr 3 900,00
Markedsføringspakke kr 28 900,00
Oppgjør kr 8 900,00
Tilrettelegging kr 19 900,00
Visninger pr stk / Overtagelse kr 4 500,00
Utlegg:
Eierskiftegebyr forretningsfører (selger) kr 6 725,00
Innhenting av informasjon forretningsfører BATE kr 4 600,00
Innhenting av offentlig opplysninger Stavanger kommune kr 2 822,82
Tinglysing sikring kr 545,00
Andre utgifter:
AX tilstandsrapport leilighet kr 10 750,00
Foto kr 4 500,00
Vi er opptatt av verdiskapning, og har knyttet til oss samarbeidspartnere som skal sikre våre kunder de beste produkter og tjenester;
• I forbindelse med forberedelse av salget, innhenter vi informasjon om eiendommen hovedsakelig fra vår samarbeidspartner Amibita.
• Gjensidige leverer boligselgerforsikring og tilbyr bygningsforsikring
• Boligkjøperforsikring leveres av Hiscox og med Sedgwick som skadebehandler, og er formidlet gjennom Gjensidige.
• BN bank tilbyr finansieringsløsninger
• Vår avdeling Krogsveen Pluss tilbyr flyttetjenester som utvask, visningsvask, lager, tømming og transport av flyttelass, i tillegg til å formidle kontakt med Flip for overflateoppussing.
• I forbindelse med overtagelse av eiendommen tilbyr Overo avtale om strøm, alarm og bredbånd.
• Krogsveen er, sammen med øvrige bransjeaktører, medeier i Bomega AS som tilbyr den digitale annonseringsplattformen Hjem.
Opplysninger om oppdraget
Oppdragsnummer 35-0016/26
Eiendomsmegler Krogsveen AS, avd. Stavanger
Nedre Strandgate 41, 4005, STAVANGER
950007613
Oppdragets KR-kode KR35.2616
Dato
Sist oppdatert: 06. februar 2026 kl. 14:25
Dokumenter
Dokumenter
PDF – 945 KB
PDF – 167 KB
PDF – 373 KB
PDF – 312 KB
PDF – 29 KB
PDF – 127 KB
PDF – 392 KB
Område
Legg til steder som er viktige for deg
Visning
Unngå doble boligrenter
Vi tilbyr gunstig forsikring.
Vurderer du utleie?
Få et tilbud fra Utleie KrogsveenHva koster lånet?
Sjekk estimert lånekostnadVil du varsles om lignende boliger?
Ved å lagre ditt boligsøk hos oss får du beskjed når vi har en bolig som ligner denne, før den legges ut på markedet!

