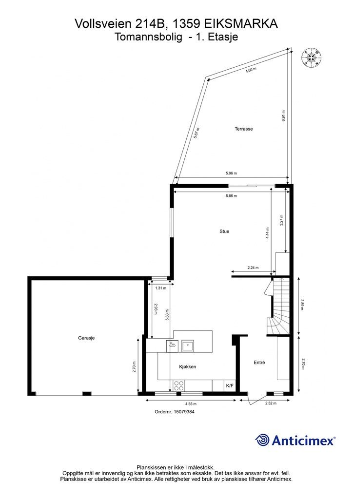
Vollsveien 214B
13 250 000 kr
169 m²
4 soverom
Solgt

Attraktiv og innbydende familiebolig med hybel og garasje - Flotte uteplasser - Populær og barnevennlig beliggenhet
Prisantydning
13 250 000 krOmkostninger
352 240 krTotalpris
13 602 240 kr
Pris
Bruksareal
169 m²BRA-I (internt bruksareal)
169 m²TBA (terrasse-balkongareal)
55 m²
Areal
Byggeår
1967Soverom
4 soveromBad
2 badType
Halvpart vertikaldelt boligEierform
EierseksjonFasiliteter
Garasje/P-plass og Balkong/TerrasseEnergimerke
Oransje F
Nøkkelinfo
Unngå doble boligrenter
Vi tilbyr gunstig forsikring.
Vurderer du utleie?
Få et tilbud fra Utleie KrogsveenHva koster lånet?
Sjekk estimert lånekostnadBeskrivelse
Kort om eiendommen
Eiendomsmegler Mats Lund ved Krogsveen Bærum har gleden av å ønske velkommen til Vollsveien 214B, og en lekker og innbydende halvpart tomannsbolig beliggende i et barnevennlig og hyggelig boligområde på Eiksmarka. Her bor dere med gangavstand til barnehager, skoler, T-bane, buss, butikker og mye mer, samt nærhet til marka med nydelige turområder, sommer som vinter.
Denne flotte familieboligen ble pusset opp innvendig i 2021/2022 og holder en fin, moderne standard hvor det er enkelt å trives. Barnevennlig planløsning med entré og stort oppholdsrom med stue og kjøkken i 1. etasje, soveromsavdeling med tre soverom og bad i 2. etasje, og hybel i kjelleren med stue, kjøkken, soverom og bad. Boligen har nydelige uteplasser i alle etasjer, samt garasje.
Område
Legg til steder som er viktige for deg
På flyttefot? Tenk kjøp og salg samtidig.
Få din egen rådgiver gjennom hele kjøps- og salgsprosessen. Det starter med en verdivurdering.
Unngå doble boligrenter
Vi tilbyr gunstig forsikring.
Vurderer du utleie?
Få et tilbud fra Utleie KrogsveenHva koster lånet?
Sjekk estimert lånekostnadVil du varsles om lignende boliger?
Ved å lagre ditt boligsøk hos oss får du beskjed når vi har en bolig som ligner denne, før den legges ut på markedet!

























































