Sætreskogveien 4E
3 690 000 kr
62 m²
1 soverom
Komplett salgsoppgave
Oppegård Syd
Lys 2-roms med moderne standard | Solrik vestvendt balkong og flott utsikt | Butikk og togstasjon rett utenfor
Prisantydning
3 690 000 krAndel fellesgjeld
52 370 krOmkostninger
104 590 krTotalpris
3 846 960 kr
Pris
Bruksareal
72 m²BRA-I (internt bruksareal)
62 m²BRA-E (eksternt bruksareal)
10 m²TBA (terrasse-balkongareal)
8 m²
Areal
Etasje
2Byggeår
1987Soverom
1 soveromBad
1 badType
EierleilighetEierform
EierseksjonFellesutgifter
3 043 krEnergimerke
Rød F
Nøkkelinfo
Unngå doble boligrenter
Vi tilbyr gunstig forsikring.
Vurderer du utleie?
Få et tilbud fra Utleie KrogsveenHva koster lånet?
Sjekk estimert lånekostnadBeskrivelse
Kort om eiendommen
Innhold og byggemåte
Innhold og byggemåte
Eiendommen
Sætreskogveien 4E, 1415 OPPEGÅRD
Kommunenummer 3207, gårdsnummer 244, bruksnummer 126, seksjonsnummer 9, ideell andel 1/1
Kommunenummer 3207, gårdsnummer 244, bruksnummer 143, ideell andel 1/29
Innhold
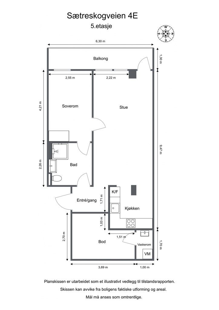
Totalt bruksareal BRA: 72 kvm
BRA-i:
2. etasje 62 kvm: Stue, kjøkken, bod, vaskerom, bad, soverom
BRA-e:
3. etasje 10 kvm: Loft
Åpent areal:
2. etasje 8 kvm: Balkong
Innvendige sjakter er medregnet som BRA-i.
Leiligheten disponerer en bod på loftet. Boden er oppmålt til 10 kvm (bra-e).
Utgang fra stue til vestvendt balkong på 8 kvm (TBA).
Leiligheten består av 53 P-ROM og 9-S-ROM. S-ROM består av innvendig bod, inkludert vegger mot tilstøtende rom.
Vedlagte plantegninger er ikke målbare. De oppgitte arealer er hentet fra rapport med befaringsdato 20.08.2025 utført av Tilstand AS. Arealene er beregnet og rom er definert etter dagens faktiske bruk, uavhengig av hva som er godkjent av bygningsmyndighetene.
Byggemåte
Selger har fått utarbeidet en tilstandsrapport, dvs. en teknisk gjennomgang av boligen hvor eventuelle avvik, risiko for kjøper og prisoverslag for hva som bør gjøres av oppgradering, er skissert. Se særskilt TGIU (tilstandsgrad ikke undersøkt), samt TG2 og TG3 som viser hva som er boligens normale slitasje, alder og type, hva som er avvik fra dette og hva som bør/må utbedres. Rapporten og selgers egenerklæring er en del av salgsoppgaven og må leses nøye før bud inngis. Kjøper overtar ansvaret for de opplysninger som fremkommer av salgsdokumentasjonen, og kan ikke gjøre gjeldende som mangel noe som burde vært kjent eller som ikke kan anses å ha betydning for avtalen.
Bygningen er iht. tilstandsrapporten oppført på følgende måte:
Boligbygg over 5 etasjer. Bygningen har støpt gulv mot grunn. Etasjeskiller og bærende konstruksjoner av betong og stål. Yttervegger utvendig forblendet med fasadeplater, teglstein og pussede flater. Yttertak i saltaksform, utvendig tekket med takpapp/membran (taket er ikke besiktiget). Leiligheten har dører og vinduer fra varierende årstall. Slett entrédør fra 1987 med brannklasse B30 og lydklasse 35db. Balkongdør fra 2021 med karm av tre og to-lags glass. Vinduer fra 1986 med karmer av tre og to-lags glass. Leiligheten har naturlig ventilasjon og er oppvarmet med elektrisitet.
Les forøvrig mer om byggemåte og den tekniske tilstanden i rapporten.
Det gjøres oppmerksom på at det er gitt tilstandsgrad 2 (TG2) på følgende:
- Bad: på kontrollpunkt høydeforskjell og fall til sluk
- Vaskerom: på kontrollpunkt membran/tettesjikt, sanitærutstyr, armaturer, innredning, vannrør, avløpsrør og ventilasjon
- Kjøkken: på kontrollpunkt innredning og vannrør
- Tekniske anlegg: på kontrollpunkt varmtvannsbereder
- Elektriske anlegg
- Vinduer og ytterdører
- Balkong: på kontrollpunkt Rekkverk
Det er gitt 26 punkter på TG1, 13 punkter på TG2 og 3 Punkter TGIU. Ingen TG3.
Se supplerende tekst i tilstandsrapporten om bygningsdelene. Kjøper overtar ansvar og risiko for dette.
Sammendrag av selgers egenerklæring
VÅTROM:
2. Er det utført arbeid på bad, vaskerom eller toalettrom?
Ja
2.1.1. Navn på arbeid: Nytt arbeid
2.1.2. Årstall: 2013
2.1.3. Hvordan ble arbeidet utført: Faglært
2.1.4. Fortell kort hva som ble gjort av faglærte: I følge forrige eier: Totalrenovering av baderom
2.1.5. Hvilket firma utførte jobben: Constructor Bygg AS
2.1.6. Har du dokumentasjon på arbeidet: Ja
TAK, YTTERVEGG OG FASADE:
4. Er det utført arbeid på tak, yttervegger, vindu eller annen fasade?
Ja
4.1.1. Navn på arbeid: Nytt arbeid
4.1.2. Årstall: 2024
4.1.3. Hvordan ble arbeidet utført: Ufaglært
Terrassen/Balkongen med nytt gulv , skillevegg mellom leilighetene og ny markiser 2021 utført av styre i sameie. Verandadør ble byttet i 2022 av styre i sameie. Byttet tak ute på balkong/Terasse i slutten på 2024 av styre i Sameie.
ELEKTRISITET:
10. Er det utført arbeid på det elektriske anlegget?
Ja
10.1.1 Navn på arbeid: Nytt arbeid
10.1.2. Årstall: 2022
10.1.3. Hvordan ble arbeidet utført: Faglært
10.1.4. Fortell kort hva som ble gjort av faglærte: I følge tidligere eier: Fikset jordfeil i stikkontakt entré. Byttet dimmer til stue, fikset 1 koblingsfeil på kjøkken og dobbel stikkontakt under kjøkkenvask i 2021. El-sjekk i bolig ble tatt mars 2022, 2 stikkontakter måtte byttes (1 i stuen og 1 på soverom i taket).
10.1.5. Hvilket firma utførte jobben: Ski Elektriske AS
10.1.6. Har du dokumentasjon på arbeidet: Ja
Standard
Entré: Romslig flislagt entré/gang med god plass til diverse knagger, skohylle og kommode for lagring av utetøy
Stue: Luftig og sosial stue, med god plass til diverse møblering som sofa, bord, tv og tilhørende møblement. Det er gode lysforhold i stuen, samt utgang til vestvendt balkong på 8 kvm med gode solforhold. Vegger er malt i moderne fine farger og gulv bestående av laminat.
Kjøkken: Delvis åpen kjøkkenløsning mot stue. Kjøkkeninnredning med slette lyse fronter fra 2012. Benkeplate av laminat. Fliser på vegg mellom benkeplate og overskap. Stekeovn med platetopp og kjøleskap med frysedel. Godt med skap- og benkeplass.
Bad: Baderom fra 2013, oppusset i regi av tidligere eier. Flislagt gulv med varme og flislagte vegger. Malt, slett flate i himling med downlights. Vegghengt servantinnredning. Ovenpåliggende servant med ett-greps armatur. Speil med belysning og stikkontakt over servant. Dusjhjørne med innfellbare glassdører. Vegghengt toalett. Avtrekksventil i vegg.
Soverom: Soverom er av god størrelse. God plass til garderobeløsning, dobbeltseng og nattbord. Vindu orientert mot vest.
Bod: Rom innredet som soverom er opprinnelig byggemeldt som bod jf. godkjente bygningstegninger og er ikke godkjent til varig opphold. Videre adkomst til vaskerom.
Vaskerom: Vaskerom fra ukjent årstall. Flislagt gulv med sokkelflis. Malte, slette flater på vegger og i himling. Diverse hyller og innredning på vegger. Veggmontert utslagsvask. Opplegg for vaskemaskin. Hovedstoppekran og vannmåler. Varmtvannsbereder på 187 liter fra 2017.
Løsøre og tilbehør
Vi viser til liste fra Norges Eiendomsmeglerforbund som gjelder fra 01.01.2020 angående løsøre og tilbehør.
Oppvarming
Leiligheten er oppvarmet med elektrisitet. Gulvvarme på bad.
Dersom beboelsesrom ikke har vegg- eller fastmonterte varmekilder ved visning, følger dette heller ikke med.
Ferdigattest/brukstillatelse
Det foreligger ferdigattest på eiendommen, datert 27.11.1989. Denne kan fås ved henvendelse til megler.
Det foreligger godkjente og byggemeldte tegninger datert 24.06.1986, men de stemmer ikke overens med dagens bruk.
Avvik fra opprinnelige byggetegninger innvendig:
Bod som er dag brukes som soverom/kontor er utvidet og vaskerom er gjort mindre.
Kjøper overtar alt ansvar, kostnad og risiko for dette videre.
Tinglyste heftelser og rettigheter
Leiligheten overdras fri for pengeheftelser.
Sameiet har legalpant for krav mot sameieren som følger av sameieforholdet iht. eierseksjonsloven § 31. Pantet er begrenset oppad til 2G, (G = folketrygdens grunnbeløp).
Det er tinglyst to servitutter på sameiets eiendom. Disse omhandler blant annet bestemmelse om bebyggelse og jordskifte, avståelse av areal til veggrunn.
Servituttene vil følge eiendommen. Kjøpers bank vil få prioritet etter ovennevnte heftelser og servitutter.
Eventuell adgang til utleie
Leiligheten kan leies ut såfremt leiligheten har forsvarlige radonverdier. Leietaker må følge sameiets vedtekter og ordensregler på lik linje som eier.
Diverse
Tilbud av produkter og tjenester fra våre samarbeidspartnere
VI er opptatt av verdiskapning, og har knyttet til oss samarbeidspartnere som skal sikre våre kunder de beste produkter og tjenester;
• Gjensidige leverer boligselgerforsikring og tilbyr bygningsforsikring
• Boligkjøperforsikring leveres av Hiscox og med Sedgwick som skadebehandler, og er formidlet gjennom Gjensidige.
• BN bank tilbyr finansieringsløsninger
• Vår avdeling Krogsveen Pluss tilbyr flyttetjenester som utvask, visningsvask, lager, tømming og transport av flyttelass, i tillegg til å formidle kontakt med Flip for overflateoppussing.
• I forbindelse med overtagelse av eiendommen tilbyr Overo avtale om strøm, alarm og bredbånd.
• Krogsveen er, sammen med øvrige bransjeaktører, medeier i den digitale annonseringsplattformen Hjem.
Beliggenhet og tomteforhold
Beliggenhet og tomteforhold
Beliggenhet
Leiligheten har en sentral beliggenhet på Oppegård. Det er kort gangavstand til flere barnehager, Greverud barneskole og Flåtestad ungdomsskole. Greverud torg ligger i gangavstand fra leiligheten og består blant annet av dagligvarebutikken Meny, Rema 100, Mester Grønn, legesenter, apotek, frisør, café og restauranter. Dagligvarehandel kan også gjøres på Kiwi som befinner seg nederst i bygget. Oppegård togstasjon rett utenfor leiligheten med meget gode forbindelser til Oslo og Ski hvor det er 4 avganger i timen store deler av dagen. Toget bruker ca. 28 minutter til Oslo S.
Det er flotte tur- og rekreasjonsmuligheter i området, spesielt ved Østre Greverud, Nøstvedtmarka og langs Gjersjøen. Oppegård kan tilby 18-hulls golfbane, skiløyper og lysløype, kunstgressbane, samt en nyere idrettshall ved Østre Greverud. I tillegg har Oppegård IL laget Frisbeegolf-bane ved Østli skole. Gangavstand til bade- og turmuligheter ved Tussetjern og Gjersjøen. Kort kjøretur til Breivoll, Ingierstrand, Hvervenbukta og Svartskog med bademuligheter i sjøen. Den populære fornøyelsesparken Tusenfryd ligger kun 8 minutter med bil fra boligen.
Oppegård tilbyr et aktivt lokalmiljø med mange forskjellige fritidsaktiviteter for barn og ungdom. Oppegård idrettslag er aktive innen blant annet håndball, fotball, friidrett, langrenn, badminton, bordtennis og turn.
Dersom man ønsker utvidet servicetilbud er det ca. 10 minutter med bil til Ski. Ski er regionsenteret i Follo. I Ski sentrum finnes alt av forretninger, servicetilbud og offentlig kommunikasjon. Ski kan by på Ski storsenter med over 145 butikker og spisesteder, restauranter, caféer, bibliotek, bowlinghall, kinosenter og offentlige kontorer. Det er ca. 10 minutter til Kolbotn som kan by på Kolben kulturhus, bibliotek, caféer, restauranter og Kolbotn Torg med 60 butikker. Det er også kort kjørevei til Vinterbro senter med Alti Vinterbro med over 80 butikker. Gode forbindelser med bil via E18 og E6 til Oslo og Østfold. Det tar ca. 25 minutter med bil til Oslo sentrum.
Adkomst
Veibeskrivelse Se Google maps - det er enkelt å finne frem i kartet.
Det vil bli skiltet med Krogsveen visningsskilt ved fellesvisninger.
Barnehager, skoler og fritid
Det er flere barnehager i nærområdet: Sætreskogen barnehage, Slåbråten barnehage og Greverudlia barnehage. Gangavstand til Greverud barneskole og Flåtestad ungdomsskole. Nærmeste videregående skoler er Roald Amundsen VGS og Ski VGS.
Informasjon om tilhørende skolekretser er hentet fra Prognosesenteret som dataleverandør, og tilhørigheten kan årlig endres av kommunen. Dersom skole- og barnehagetilbud er av betydning for kjøpet, ber vi om at det rettes en særskilt henvendelse til kommunen for oppdatert informasjon.
Beskrivelse av tomt
Eiertomt på 1 905 kvm som tilhører sameiet. Tomten er fellesareal. Områdene rundt boligen består i all hovedsak av asfalterte områder med biloppstillingsplasser.
Parkering
Boligen disponerer en parkeringsplass som er på kiwiparkeringen rett under leiligheten.
Sameiet har en festeavtale med Nordre Follo kommune, gnr. 244 og bnr. 143. Det er parkeringsplassen mellom sameiet og jernbanen.
Det gjøres oppmerksom på at dagens parkeringsløsning er etablert på festet grunn hvor sameiet styrer over. Parkeringsplassene eies således ikke av den enkelte sameier. Dette medfører at sameiet i fellesskap beslutter bruken, og at man ikke selv har eierrett og rettsvern for parkeringsplassen. Sameiet kan ved vedtak beslutte annet bruk av fellesarealet.
Etter eierseksjonsloven § 26 kan styret, etter krav fra en seksjonseier med nedsatt funksjonsevne, pålegge en annen seksjonseier uten behov for å tilrettelagt plass å bytte parkeringsplass. Dette gjelder kun dersom seksjonseieren med nedsatt funksjonsevne allerede disponerer en parkeringsplass i sameiet.
Med samtykke fra styret kan en seksjonseier anlegge ladepunkt for elbil og ladbare hybrider ved parkeringsplassen som seksjonen disponerer, eller andre steder som styret anviser. Styret kan bare nekte å samtykke dersom det foreligger en saklig grunn, jf. eierseksjonsloven § 25.
Vei, vann og avløp
Eiendommen har adkomst via kommunal vei.
Eiendommen er tilknyttet kommunalt ledningsnett via private stikkledninger.
Sameiet er ansvarlig for private stikkledninger til bygningen.
Regulerings-og arealplaner
Eiendommen er regulert til 1.713 kvm kombinert bebyggelse og anleggsformål, 142 kvm annen veggrunn og 43 kvm til gang-/sykkelveg i henhold til reguleringsplan med ID 2019003 datert 08.12.2021 med tilhørende reguleringsbestemmelser.
Kommuneplan Nordre Follo 2023 - 2034 datert 03.05.2023 gjelder også for området.
Hensynssoner:
- H320_2: Flomfare
- H110: Nedslagsfelt drikkevann
549 kvm av sameiets tomt er i gul hensynssone for støy.
Utsnitt av plan med tilhørende bestemmelser kan fås ved henvendelse til megler.
Økonomi
Økonomi
Boligens kostnader
Kommunale avgifter er kr 3.615,- for inneværende år. I dette inngår abonnementsgebyr for vann og avløp og fellesrenovasjon.
Fellesutgiftene er kr 3.043,- pr. mnd. og inkluderer: TV/bredbånd, vaktmestertjenester, nedbetaling av fellesgjeld, felles forsikring, drift og vedlikehold, festeavgift for parkeringsplass og kommunale avgifter.
Felleskostnadene fordeles på følgende måte:
Felleskostnader avd. bolig: kr 2.459,-
TV/bredbånd: kr 584,-
Fellesutgiftene justeres normalt en til to ganger årlig i forhold til sameiets faktiske utgifter.
Nåværende eier har et strømforbruk som tilsvarer ca. kr 8.500 kwh. pr. år.
Boligen er tilknyttet Telenor med 500mb som leverandør av internett og kostnaden er inkludert i fellesutgiftene.
Utgiftene er basert på nåværende eiers forbruk. Kjøper må selv tegne innboforsikring.
Formuesverdi
Formuesverdi for 2023 var kr 888 552,- ifølge skatteetaten. Beløpet forutsetter at eier bor fast i boligen (primærbolig).
Ved eventuell øvrig bruk av eiendommen (f.eks. fritidsbolig, pendlerbolig, utleieobjekt) var formuesverdien for 2023 kr 3 554 208,-/3 554 208,-.
Formuesverdien justeres normalt årlig. Se skatteetaten.no for mer informasjon om fastsettelse av formuesverdien.
Opplysninger om fellesgjeld
Andel formue er kr 17.165,- pr. 31.12.2024
Andel fellesgjeld er kr 52.370,- pr. 14.08.2025
Total fellesgjeld for sameiet er kr 2.807.173,- pr. 14.08.2025 og lånevilkårene er:
Rentebetingelse: 7% flytende rente
Innfrielsesdato: 30.09.2049
Avdragsfrihet: Nei
IN-ordning: Nei
Omkostninger
3 690 000,00 Prisantydning
52 370,00 Andel av fellesgjeld
--------------------------------------------------------
3 742 370,00 Pris inkl. fellesgjeld
Omkostninger
93 550,00 Dokumentavgift til staten (2,5% av kjøpesum)
9 950,00 Gjensidige Boligkjøperpakke (valgfri)
545,00 Tinglysing panterettsdokument
545,00 Tinglysing skjøte
--------------------------------------------------------
104 590,00 Omkostninger totalt
--------------------------------------------------------
3 846 960,00 Totalpris inkl. omkostninger
--------------------------------------------------------
Dersom sameiet har fellesgjeld, vil leilighetens andel av fellesgjelden komme i tillegg til kjøpesummen. Denne gjelden skal ikke innbetales i oppgjøret, men følger leiligheten.
Totalpris inkl. omkostninger forutsetter kjøp til prisantydning.
Det tas forbehold om endringer i avgifter og gebyrer.
Betalingsbetingelser
Kjøpesum inkludert omkostninger, samt pantedokument tilknyttet eventuelt lån, skal være disponibelt hos megler 2 virkedager før overtagelsen.
Annen viktig informasjon
Annen viktig informasjon
Eier
Adam Lundstedt
Informasjon om sameiet
Eiendommen er seksjonert, og leiligheten er tilknyttet Sameiet Sætreskogveien 4, med sameiebrøk 68/3424.
Sameiet består av 14 boligseksjoner og 22 næringsseksjoner. Til sammen 36 seksjoner.
Forretningsfører er OBOS Eiendomsforvaltning AS, tlf. 22 86 55 00.
Dugnad må påregnes.
Dyrehold er tillatt så lenge dette ikke på en urimelig eller unødvendig måte er til skade eller ulempe for de øvrige brukerne av eiendommen.
Før man skaffer seg husdyr (hund/katt), skal styret kontaktes. Alle skal underskrive en egen "husdyrerklæring".
Foretatt påkostninger de senere år:
- Sameiet ble reseksjonert og endret fra 29 til 36 seksjoner. Fire nye boligseksjoner på loftet og noen næringsseksjoner ble delt opp i flere seksjoner, og seksjon 28 (Kiwi) ble utvidet med 160 kvm.
- Sameiet har inngått avtale med Telenor TV og internett for alle 14 boligene. Avtalen løper i 5 år.
- Avtale med Steinar Gjelsrud AS om snøbrøyting på parkeringsplassen er forlenget.
- Det vil i 2025 bli inngått avtale med Park Nordic om parkeringskontroll på plassen mot jernbanen.
- Søppelskuret er endret og pusset opp og det er kommet ny trapp ved søppelskuret. Kostnadene for dette er dekket av Sætreskogveien 4 AS som del av avtalen om Kiwi utvidelsen.
- Hele parkering mot jernbanen er nyasffaltert. Eier av Kiwi seksjonen dekket det meste av kostnadene.
- Takplatene over terrassene i 4.etg er skiftet. Under arbeidet ble det oppdaget råteskader i taket. Råteskadene er en konsekvens av arbeidet på loftet, og sameiet krever at Mokollen dekker kostnadene.
- Sameiet fikk utbetalt kr 1,2 mill for salg av fellesområdet for utvidelse av Kiwi. Dette ga sameiet et driftsoverskudd. Sameiet innfridde et av sameiets to lån med kr 926.000,-
Diverse info om sameiet:
Årsmøtet godkjenner at seksjonsnr. 12, 13, 34, 35 og 36 omgjøres til boligseksjoner på følgende betingelser: Reseksjoneringen, byggearbeidene og eventuelle offentlige krav skal ikke medføre kostnader for sameiet, eller sameiets seksjoner. Alle utvendige arbeider og tilplanting øst før sameiets bygning skal godkjennes av sameiets styre, og kostnadene skal dekkes av Nordberg Eiendom AS.
De nye leilighetene på loftet er enda ikke ferdigstilt. Etter styrets forståelse skyldes dette manglende likviditet i Mokollen S4. Styret har ingen informasjon om når de vil bli ferdigstilt. Felleskostnader belastes fortløpende Mokollen.
Parkeringsplassen mot jernbanen er festet av Nordre Follo kommune frem til 2063. I november 2024 fikk styret kjennskap til at kommunen hadde solgt tomten til Mokollen S4.
Overtakelse
Etter nærmere avtale.
Boligselgerforsikring
Selger har i forbindelse med salget tegnet boligselgerforsikring levert av Gjensidige.
Boligselgerforsikringen dekker selgers ansvar etter avhendingsloven begrenset oppad til kr 14 millioner. Dersom kjøper oppdager forhold ved eiendommen som hen mener utgjør en mangel ved eiendommen, vil Gjensidige behandle reklamasjonen på vegne av selger. Forsikringsvilkår kan fås ved henvendelse til megler.
Vedlagt salgsoppgaven følger selgers egenerklæringsskjema og tilstandsrapport. Interessenter må sette seg inn i dokumentene før bud inngis.
Boligkjøperforsikring
Innen kontraktsmøtet må kjøper ta stilling til om det ønskes å bestille Boligkjøperpakken gjennom Gjensidige. I denne gunstige pakken er boligen ferdig forsikret og inkluderer rettshjelpsforsikring, også kalt Boligkjøperforsikring. Rettshjelpsforsikring gir trygghet og tilgang på profesjonell juridisk hjelp dersom det oppdages uventede feil eller mangler det første året etter overtagelse. Forsikringsselskapet behandler i så fall ethvert mangelskrav kjøper måtte ha overfor selger.
Boligkjøperpakken inkluderer bygningsforsikring for hus og hytte, innboforsikring, flytteforsikring og dobbel rentedekning - i situasjoner hvor kjøper ikke får solgt nåværende primærbolig.
Kjøper mottar ingen særskilt faktura for Boligkjøperpakken da kostnaden det første året legges til kjøpesummen for boligen. Det gjøres oppmerksom på Krogsveen mottar et honorar for denne formidlingen.
Produktark for Boligkjøperpakken ligger vedlagt i salgsoppgaven.
Dersom ikke boligkjøperpakke ønskes kan kun rettshjelpsforsikring, også kalt boligkjøperforsikring, tegnes særskilt via megler. Rettshjelpsforsikringen varer i 5 år fra overtagelse og leveres gjennom Gjensidige. Ta kontakt med megler for ytterligere informasjon.
Selskap og privatpersoner som driver med kjøp/salg/utvikling som ledd i egen næringsvirksomhet kan ikke tegne boligkjøperpakke eller rettshjelpsforsikring.
Budgivning
Forbrukerinformasjon om budgivning er vedlagt denne salgsoppgaven og er også på vår hjemmeside Krogsveen.no. Alle bud og budforhøyelser må inngis skriftlig. I tillegg må legitimasjon være fremlagt sammen med signatur fra budgiver.
Vi oppfordrer til å gi bud elektronisk via GI BUD-knappen på eiendommens hjemmeside på Krogsveen.no. Da vil samtlige vilkår bli oppfylt.
Eventuelle forhøyelser eller endringer av budet kan bekreftes pr SMS eller på e-post. Vi oppfordrer alltid til å kontakte megler pr. telefon i tillegg da forsinkelser i SMS og e-post kan forekomme.
For at budene skal kunne bli behandlet og videreformidlet skriftlig til alle involverte parter, må alle bud ha en tilstrekkelig lang akseptfrist, jf. eiendomsmeglingsforskriften § 6-3.
Selger må også skriftlig akseptere budet før aksept kan formidles til budgiver. Akseptfrist bør derfor være på minimum 30 minutter, og budforhøyelser må derfor skje i god tid før fristens utløp.
Bud i forbrukerforhold kan uansett ikke settes med kortere frist enn kl. 12.00 første virkedag etter siste annonserte visning. I tillegg kan ikke budet ha forbehold om at det skal holdes hemmelig ovenfor øvrige interessenter. Megler har iht lov om eiendomsmegling ikke anledning til å videreformidle disse budene, og de vil dermed heller ikke bli journalført.
Etter at eiendommen er solgt vil kjøper og selger få tilsendt budjournal. Øvrige budgivere kan få utlevert kopi av budjournalen i anonymisert form.
Hvitvaskingsreglene
I henhold til lov om hvitvasking og terrorfinansiering har megler plikt til å gjennomføre kontrolltiltak overfor kunder, herunder fullmektiger. Dette innebærer bl.a. å bekrefte kunders og reelle rettighetshaveres identitet på bakgrunn av fremvist gyldig legitimasjon eller på annen godkjent måte, samt å innhente opplysninger om kundeforholdets formål og tilsiktede art.
Dersom slike kundetiltak ikke kan gjennomføres, kan megler ikke etablere kundeforholdet eller utføre transaksjonen.
Hvis kjøper ikke bidrar til gjennomføring av kundekontrollen og dette fører til at transaksjonen blir forsinket eller ikke kan gjennomføres, vil dette ansees som mislighold av avtalen og gi selger rettigheter etter avhendingslova kapittel 5. I tilfeller der selger ikke bidrar til gjennomføring av løpende kundekontroll underveis i oppdraget, er det selger som misligholder sine forpliktelser etter avtalen og gi kjøper rettigheter etter avhendingslovens kapittel 4. Partene er selv ansvarlige for eventuelle kostnader og ansvar dette kan medføre. Eiendomsmegleren eller eiendomsmeglingsforetaket kan ikke holdes ansvarlig for de konsekvenser dette vil kunne få for partene eller andre som har interesser i eiendomshandelen.
Kjøper oppfordres til å innbetale kjøpesummen som ikke kommer fra låneinstitusjon i én samlet innbetaling fra egen konto i norsk bank. Megler har plikt til å melde fra til Økokrim om eiendomshandler som fremstår som mistenkelige. Melding sendes Økokrim uten at partene varsles.
Personopplysningsloven
I henhold til personopplysningsloven gjør vi oppmerksom på at interessenter kan bli registrert for videre oppfølging.
Lovanvendelse
Generelle bestemmelser
Salgsoppgaven er basert på de opplysningene selger har gitt til megler, den bygningssakyndiges tilstandsrapport, samt opplysninger innhentet fra kommunen, Kartverket og andre tilgjengelige kilder. Det er viktig at kjøper setter seg grundig inn i alle salgsdokumentene, herunder salgsoppgave, tilstandsrapport og selgers egenerklæring. Kjøper anses kjent med forhold som er tydelig beskrevet i salgsdokumentene, og slike forhold kan ikke påberopes som mangler. Dette gjelder uavhengig av om kjøper har lest dokumentene. Alle interessenter oppfordres til å undersøke eiendommen nøye, gjerne sammen med fagkyndig før bud inngis. Kjøper som velger å kjøpe usett kan ikke gjøre gjeldende som mangel noe han burde blitt kjent med ved undersøkelsen.
Dersom det er behov for avklaringer, anbefaler vi at interessenter rådfører seg med eiendomsmegler eller egne rådgivere før det legges inn bud.
En bolig som har blitt brukt i en viss tid, har vanligvis blitt utsatt for slitasje og skader kan ha oppstått. Slik bruksslitasje må kjøper regne med, og det kan avdekkes enkelte forhold etter overtakelse som nødvendiggjør utbedringer. Normal slitasje og skader som nødvendiggjør utbedring, er innenfor hva kjøper må forvente og vil ikke utgjøre en mangel.
Kjøper og selgers rettigheter og plikter reguleres av avtalen mellom partene, samt informasjonen som har vært tilgjengelig for kjøperen i forbindelse med handelen. Avtalen utfylles av avhendingsloven, og det gjelder ulike avtalevilkår avhengig av om kjøper er forbrukerkjøper eller ikke. Dette er nærmere beskrevet nedenfor.
På grunn av ulike avtalevilkår kan selger vurdere bud fra en som ikke er forbruker, ulikt fra en forbrukers bud. Dersom kjøper ikke er forbruker, er selger sitt mulige mangelsansvar begrenset fordi eiendommen selges "som den er". Selger kan ikke ta «som den er»- forbehold overfor en forbrukerkjøper. Selv et lavere bud fra en som ikke er forbruker kan foretrekkes fordi begrensningen i mulig mangelsansvar kan ha egenverdi for selger. Selger står fritt til å forkaste eller akseptere ethvert bud, og er for eksempel ikke forpliktet til å akseptere høyeste bud.
Budgiver skal i budskjema avgi egenerklæring om budgiver er forbruker eller næringsdrivende/ person som hovedsakelig handler som ledd i næringsvirksomhet. Budgivere får informasjon dersom andre bud er inngitt av en som ikke er forbruker.
Forbrukerkjøp - definisjon
Med forbrukerkjøp menes kjøp av eiendom når kjøperen er en fysisk person som ikke hovedsakelig handler som ledd i næringsvirksomhet.
Forbruker – avtalevilkår
Eiendommen har en mangel dersom den ikke er i samsvar med kravene som følger av avtalen, eller det foreligger brudd på bestemmelsene i avhendingsloven §§ 3-2 til 3-8. Hvis eiendommen ikke er i samsvar med det kjøperen må kunne forvente ut ifra alder, type og synlig tilstand, kan det være grunnlag for mangelskrav. Det samme gjelder hvis det er holdt tilbake eller gitt uriktige opplysninger om eiendommen. Dette gjelder likevel bare dersom man kan gå ut ifra at det virket inn på avtalen at opplysningen ikke ble gitt eller at mangelskravet ikke blir rettet i tide på en tydelig måte.
Boligen kan ha en mangel etter avhendingsloven § 3-3 andre ledd, dersom det er avvik mellom opplyst og faktisk innvendig areal, forutsatt at avviket er på 2% eller mer og minimum 1 kvm.
Ved beregning av et eventuelt prisavslag eller erstatning må kjøper selv dekke tap/kostnader opptil et beløp på kr 10 000 (egenandel).
Ikke-forbruker (næringsdrivende) – definisjon
Hvis kjøper er en juridisk person, eller en fysisk person som hovedsakelig handler som ledd i næringsvirksomhet, vil kjøpet ikke anses som et forbrukerkjøp.
Ikke-forbruker – avtalevilkår
Eiendommen har en mangel dersom den ikke er i samsvar med kravene som følger av avtalen.
Eiendommen selges «som den er», og selgers ansvar utover det konkret avtalte er da begrenset etter avhendingsloven § 3-9, første ledd andre setning.
Avhendingsloven § 3-3 andre ledd fravikes, og hvorvidt boligens arealsvikt utgjør en mangel vurderes etter avhendingsloven § 3-8.
Informasjon om kjøpers undersøkelsesplikt, herunder oppfordringen om å undersøke eiendommen nøye, gjelder også for kjøpere som ikke anses som forbrukere.
Det forutsettes at hjemmel overføres til kjøper. Hvis kjøper ikke ønsker hjemmelsoverføring av eiendommen, må det tas forbehold om dette i budet.
Meglers vederlag
Meglers vederlag betales av selger og er avtalt til:
Vederlag: 1,6% av salgssummen inkl. eventuell fellesgjeld.
Tilrettelegging fra kr 14.900,-
Oppgjør: kr 7.500,-
Markedspakke: kr 27.400,-
Visninger: kr 3.490,- pr. visning
Oppslag eiendomsregister: kr 2.900,-
Megler har i tillegg krav på dekning av følgende utlegg:
Eierskiftegebyr forretningsfører - OBOS: kr 6.570,-
Innhenting av informasjon forretningsfører OBOS: kr 4.038,-
Innhenting av offentlig opplysninger Nordre Follo - legalpant: kr 537,-
Innhenting av offentlig opplysninger Nordre Follo kommune: kr 3.300,-
Tinglysing sikring: kr 545,-
Tilstandsrapport: kr 10.750,-
Foto: kr 7.300,-
Opplysninger om oppdraget
Oppdragsnummer 49-0075/25
Eiendomsmegler Krogsveen AS, avd. Kolbotn
Jan Baalsruds plass 1, 1410, KOLBOTN
950 007 613
Oppdragets KR-kode KR49.2575
Dato
Sist oppdatert: 23. januar 2026 kl. 14:52
Dokumenter
Dokumenter
PDF – 744 KB
PDF – 943 KB
PDF – 292 KB
PDF – 312 KB
PDF – 29 KB
PDF – 127 KB
PDF – 392 KB
Område
Legg til steder som er viktige for deg
Visning
NB! For å delta på visning, ber vi om at du melder deg på. Da sikrer vi at du får nødvendig informasjon og at det er satt av tilstrekkelig med tid. Kontakt megler dersom annet tidspunkt ønskes. Husk å lese salgsoppgaven før visningen, så du stiller forberedt.
Ønsker du kun å bli holdt orientert, kan du fra eiendommens hjemmeside få varsel om solgtpris, eller kontakte megler.
Lurer du på noe?
Unngå doble boligrenter
Vi tilbyr gunstig forsikring.
Vurderer du utleie?
Få et tilbud fra Utleie KrogsveenHva koster lånet?
Sjekk estimert lånekostnadVil du varsles om lignende boliger?
Ved å lagre ditt boligsøk hos oss får du beskjed når vi har en bolig som ligner denne, før den legges ut på markedet!




