Tomterveien 95
7 900 000 kr
307 m²
5 soverom
Solgt

Presenteres av
Ragnhild Fjeldvig LeirfallKråkstad
Velholdt enebolig med småbrukfølelsen | To innganger | Over fire måls tomt | Naturskjønne omgivelser | 5 km til Kråkstad
Prisantydning
7 900 000 krOmkostninger
218 490 krTotalpris
8 118 490 kr
Pris
Bruksareal
411 m²BRA-I (internt bruksareal)
307 m²BRA-E (eksternt bruksareal)
91 m²TBA (terrasse-balkongareal)
46 m²
Areal
Byggeår
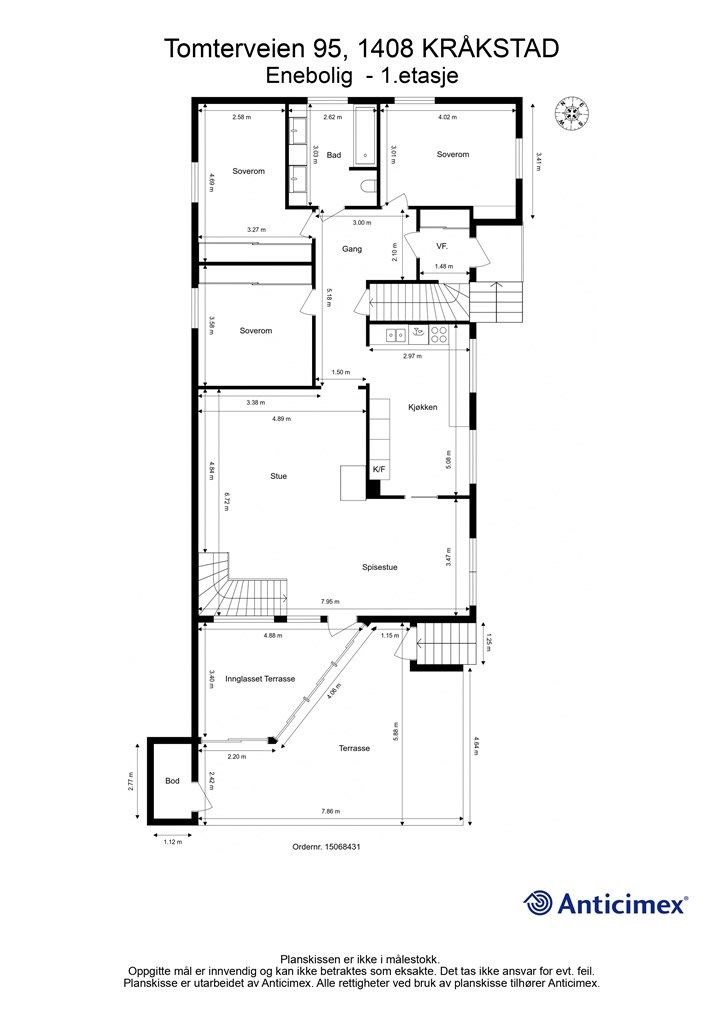
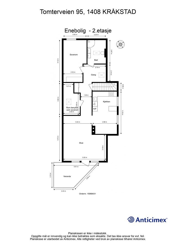
1980Soverom
5 soveromBad
3 badTomteareal
4 604 m² (eiet)Type
Enebolig - FrittliggendeEierform
EietFasiliteter
Garasje/P-plass og Balkong/TerrasseEnergimerke
Oransje E
Nøkkelinfo
Unngå doble boligrenter
Vi tilbyr gunstig forsikring.
Vurderer du utleie?
Få et tilbud fra Utleie KrogsveenHva koster lånet?
Sjekk estimert lånekostnadBeskrivelse
Kort om eiendommen
Velkommen til husmannsplassen "Ødemark". Her kan du skape ditt eget lille småbruk!
- Stor eiendom med enebolig over tre etasjer, garasje og to anneks
- Stort plenareal godt egnet for å etablere grønnsakshage
- Stor gårdsplass med rom for mange biler
- Kun 5 km til Kråkstad sentrum med barnehage, barne-og ungdomsskole, samt Kråkstadhallen, som er et aktivt samlingspunkt for det lokale idrettslaget Kråkstad IL
- Flere oppgraderinger er gjort de siste årene
- 2. etg har vært utleid med leieinntekter på kr 10.000,- pr. mnd. (Etasjen er ikke godkjent)
- Innholdsrikt hus med mange muligheter
- Kjeller med egen inngang
- Romslig og tidløst kjøkken i 1. etasje med benkeplate i stein
- Flott familiebolig med sydvestvendt terrasse
- Meget gode oppbevaringsmuligheter
Område
Legg til steder som er viktige for deg
På flyttefot? Tenk kjøp og salg samtidig.
Få din egen rådgiver gjennom hele kjøps- og salgsprosessen. Det starter med en verdivurdering.
Unngå doble boligrenter
Vi tilbyr gunstig forsikring.
Vurderer du utleie?
Få et tilbud fra Utleie KrogsveenHva koster lånet?
Sjekk estimert lånekostnadVil du varsles om lignende boliger?
Ved å lagre ditt boligsøk hos oss får du beskjed når vi har en bolig som ligner denne, før den legges ut på markedet!
På flyttefot? Slik gjør vi det enklere for deg
Skreddersydd flyttepakke
Vi fikser håndverkere, vask, pakking, lagring og transport, og legger ut for utgiftene underveis.
Hjelp med både kjøp og salg
Hos oss har du din egen rådgiver gjennom hele kjøps- og salgsprosessen.
Hjelp til finansiering
Vårt samarbeid med BN Bank sikrer deg rask og løsningsorientert hjelp, til konkurransedyktige betingelser.

