Smedsrudveien 5B
4 950 000 kr
112 m²
3 soverom
Solgt

Langhus
Høytliggende rekkehus med markterrasse og balkong med fin utsikt | Naturskjønne omgivelser | Garasjeplass | Barnevennlig
Prisantydning
4 950 000 krAndel fellesgjeld
151 186 krOmkostninger
149 360 krTotalpris
5 250 546 kr
Pris
Bruksareal
113 m²BRA-I (internt bruksareal)
112 m²BRA-E (eksternt bruksareal)
1 m²TBA (terrasse-balkongareal)
54 m²
Areal
Byggeår
1977Soverom
3 soveromBad
2 badType
RekkehusEierform
EierseksjonFasiliteter
Garasje/P-plass og Balkong/TerrasseEnergimerke
Oransje F
Nøkkelinfo
Unngå doble boligrenter
Vi tilbyr gunstig forsikring.
Vurderer du utleie?
Få et tilbud fra Utleie KrogsveenHva koster lånet?
Sjekk estimert lånekostnadBeskrivelse
Kort om eiendommen
Velkommen til Smedsrudveien 5B!
Rekkehus beliggende i et meget populært boligområde på Langhus.
Flott, usjenert beliggenhet på tunet. Svært barnevennlig med lite biltrafikk, flere lekeplasser, gangavstand til barnehager, skoler, tog og butikk. Det er flere barnefamilier i nærområdet.
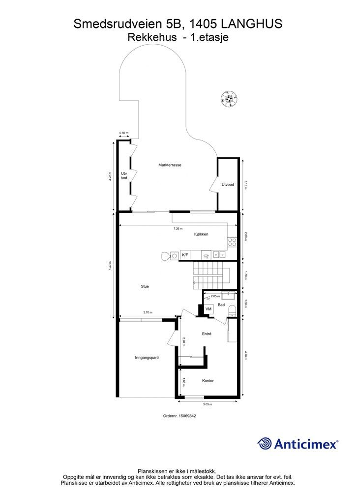
Boligen er arealeffektiv og går over to plan, med blant annet stue og kjøkken i åpen løsning, utgang til stor markterrasse, tre soverom, to bad og kontor.
Nærhet til Nøstvedtmarka som byr på flotte turmuligheter sommer som vinter. Fornøyelsesparken Tusenfryd ligger kun 5 minutter med bil fra boligen. Kort gangavstand til bade- og turmuligheter ved Tussetjern. Kort kjøretur til Breivoll, Ingierstrand og Hvervenbukta.
Velkommen til en hyggelig visning! Husk påmelding.
Område
Legg til steder som er viktige for deg
På flyttefot? Tenk kjøp og salg samtidig.
Få din egen rådgiver gjennom hele kjøps- og salgsprosessen. Det starter med en verdivurdering.
Unngå doble boligrenter
Vi tilbyr gunstig forsikring.
Vurderer du utleie?
Få et tilbud fra Utleie KrogsveenHva koster lånet?
Sjekk estimert lånekostnadVil du varsles om lignende boliger?
Ved å lagre ditt boligsøk hos oss får du beskjed når vi har en bolig som ligner denne, før den legges ut på markedet!

