Låveveien 50
4 200 000 kr
55 m²
1 soverom
Solgt
Skøyenåsen
Flott 2-roms toppleilighet med sydvendt balkong og flott utsikt - Heis - Nytt bad i 2021 - Nærhet til off.kom og marka
Prisantydning
4 200 000 krAndel fellesgjeld
271 567 krOmkostninger
122 810 krTotalpris
4 594 377 kr
Pris
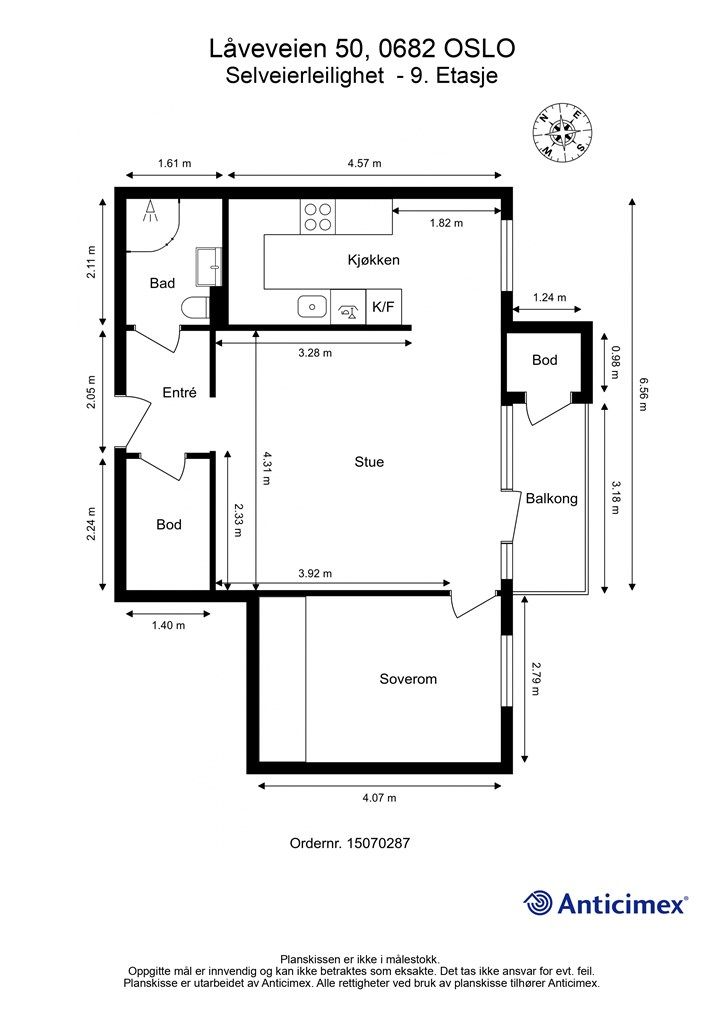
Bruksareal
56 m²BRA-I (internt bruksareal)
55 m²BRA-E (eksternt bruksareal)
1 m²TBA (terrasse-balkongareal)
4 m²
Areal
Etasje
9Byggeår
1967Soverom
1 soveromBad
1 badType
EierleilighetEierform
EierseksjonFasiliteter
Balkong/TerrasseFellesutgifter
5 196 krEnergimerke
Rød F
Nøkkelinfo
Unngå doble boligrenter
Vi tilbyr gunstig forsikring.
Vurderer du utleie?
Få et tilbud fra Utleie KrogsveenHva koster lånet?
Sjekk estimert lånekostnadBeskrivelse
Kort om eiendommen
Lys og stilren 2-roms selveierleilighet beliggende i 9. etasje med heisadkomst. Attraktiv beliggenhet på Skøyenåsen i et skjermet og tilbaketrukket boligområde. Store vindusflater skaper en lys og luftig atmosfære. Boligen holder en god standard og er malt i tidsriktige og moderne farger.
Kort fortalt:
- God planløsning
- Sydvendt balkong med flott utsikt mot Østensjøvannet og nærområdet
- Pent, flislagt bad fra 2021
- Store vindusflater gir rikelig med naturlig lys.
- Heis
- Parkeringsplass kan leies når det er ledige plasser
- Mulighet for å lage et soverom ekstra (se alternativ plantegning)
- TV/internett inkl.
- Nærhet til Oppsal og Bryn senter, med "alt" du trenger av servicetilbud og butikker
- Kort vei til offentlig transport, Østensjøvannet og Østmarka
Område
Legg til steder som er viktige for deg
På flyttefot? Tenk kjøp og salg samtidig.
Få din egen rådgiver gjennom hele kjøps- og salgsprosessen. Det starter med en verdivurdering.
Unngå doble boligrenter
Vi tilbyr gunstig forsikring.
Vurderer du utleie?
Få et tilbud fra Utleie KrogsveenHva koster lånet?
Sjekk estimert lånekostnadVil du varsles om lignende boliger?
Ved å lagre ditt boligsøk hos oss får du beskjed når vi har en bolig som ligner denne, før den legges ut på markedet!




