Lassebakken 3
3 650 000 kr
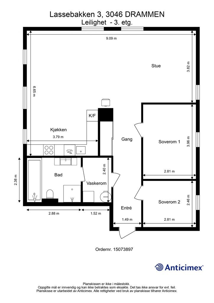
76 m²
2 soverom
Solgt

Presenteres av
Arild KnudsenDanvik
Lys & innbydende 3-roms eierleilighet m/ingen innsyn i toppetasje. Kjøkken fra 2023. Hyggelig fellesareal. Sentrumsnært.
Prisantydning
3 650 000 krOmkostninger
102 290 krTotalpris
3 752 290 kr
Pris
Bruksareal
88 m²BRA-I (internt bruksareal)
76 m²BRA-E (eksternt bruksareal)
12 m²
Areal
Etasje
3Byggeår
1900Soverom
2 soveromBad
1 badType
EierleilighetEierform
EierseksjonFellesutgifter
3 300 krEnergimerke
Rød G
Nøkkelinfo
Unngå doble boligrenter
Vi tilbyr gunstig forsikring.
Vurderer du utleie?
Få et tilbud fra Utleie KrogsveenHva koster lånet?
Sjekk estimert lånekostnadBeskrivelse
Kort om eiendommen
Lys og innbydende 3-roms eierleilighet i 3. etasje.
Leiligheten er gjennomgående og oppleves som luftig samt romslig
Fin utsikt fra leiligheten og ingen innsyn i leiligheten
Oppusset stue, kjøkken og entré/gang i 2023
Moderne og delikat Svane-kjøkken fra 2023 med helintegrerte hvitevarer
Lyst flislagt bad (renovert i 2011) med regnfallsdusj, badekar og varmekabler
Hyggelig felles hageområde og platting med sittemøblement samt grill
Mulighet for å leie parkeringsplass (forutsatt at det er ledig)
Umiddelbar nærhet til bussholdeplass og barnehage
Kort vei til barneskole og ungdomsskole
Gangavstand til sentrum med togstasjon, bussknutepunkt og flere servicetilbud
Nærhet til flotte tur- og rekreasjonsområder i marka samt langs elvebredden
Område
Legg til steder som er viktige for deg
På flyttefot? Tenk kjøp og salg samtidig.
Få din egen rådgiver gjennom hele kjøps- og salgsprosessen. Det starter med en verdivurdering.
Unngå doble boligrenter
Vi tilbyr gunstig forsikring.
Vurderer du utleie?
Få et tilbud fra Utleie KrogsveenHva koster lånet?
Sjekk estimert lånekostnadVil du varsles om lignende boliger?
Ved å lagre ditt boligsøk hos oss får du beskjed når vi har en bolig som ligner denne, før den legges ut på markedet!
På flyttefot? Slik gjør vi det enklere for deg
Skreddersydd flyttepakke
Vi fikser håndverkere, vask, pakking, lagring og transport, og legger ut for utgiftene underveis.
Hjelp med både kjøp og salg
Hos oss har du din egen rådgiver gjennom hele kjøps- og salgsprosessen.
Hjelp til finansiering
Vårt samarbeid med BN Bank sikrer deg rask og løsningsorientert hjelp, til konkurransedyktige betingelser.

