Steinbråteveien 25
9 000 000 kr
232 m²
2 soverom
Komplett salgsoppgave

Skedsmokorset
Frittliggende enebolig med romslig tomt | Stor garasje - perfekt for hobbyer | Skole, fritidsaktiviteter og butikker
Prisantydning
9 000 000 krOmkostninger
245 990 krTotalpris
9 245 990 kr
Pris
Bruksareal
299 m²BRA-I (internt bruksareal)
232 m²BRA-E (eksternt bruksareal)
67 m²TBA (terrasse-balkongareal)
59 m²
Areal
Byggeår
1964Soverom
2 soveromBad
2 badTomteareal
1 451 m² (eiet)Type
Enebolig - FrittliggendeEierform
EietFasiliteter
Garasje/P-plass og Balkong/TerrasseEnergimerke
Rød G
Nøkkelinfo
Unngå doble boligrenter
Vi tilbyr gunstig forsikring.
Vurderer du utleie?
Få et tilbud fra Utleie KrogsveenHva koster lånet?
Sjekk estimert lånekostnadBeskrivelse
Kort om eiendommen
Velkommen til Steinbråteveien 25! En flott eiendom med sentral beliggenhet på Skedsmokorset.
Eiendommen skiller seg ut med flott opparbeidet tomt på, velholdt enebolig og stor garasje med muligheter for enten det er bil, mc, snekkerverksted.
Boligen har praktisk romløsning med luftige rom og gode oppbevaringsmuligheter,
Stor hage og terrasse med gode solforhold, plass til grill, utemøbler, sommerhygge og lek i hagen.
Boligen ligger i et stille og rolig område - perfekt for barnefamilier! Her er det kort vei til skoler, barnehager, butikker, buss og flotte tur- og friluftsområder.
* Stor isolert garasje + carport + integrert garasje
* Meget pene uteområder
* Godt med lagrinsplass i boligen
* Kort vei til skole, buss og butikker
Kontakt megler og bli med på en hyggelig visning
Innhold og byggemåte
Innhold og byggemåte
Eiendommen
Steinbråteveien 25, 2020 SKEDSMOKORSET
Kommunenummer 3205, gårdsnummer 37, bruksnummer 258, ideell andel 1/1
Innhold
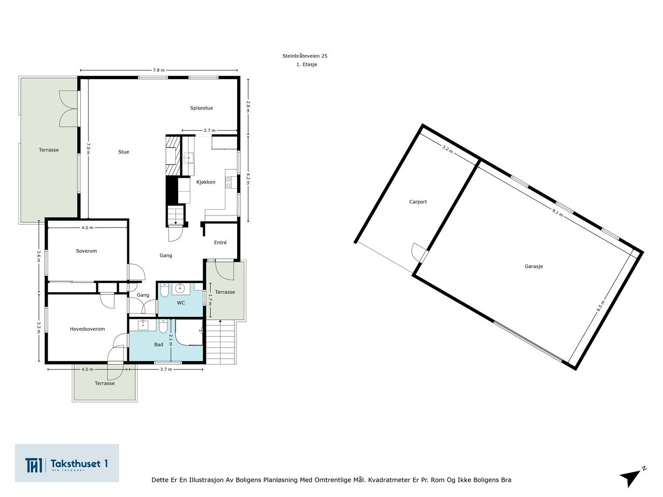
Totalt bruksareal BRA: 299 kvm (inkl. garasje)
BRA-i:
Kjeller: 123 kvm: Gang, Bod 2, Stue, Gang 2, Toalettrom, Bod 3, Vaskerom, Garasje
1. etasje 109 kvm: Kjøkken, Stue, Gang, Soverom, Soverom 2, Bad 1, Bad 2, Entré
BRA-e:
Garasje 67 kvm
Åpent areal:
1. etasje 35 kvm: Hovedterrasse (20m2), Terrasse ved inngangsparti (10 m2), Terrasse ved soverom (5m2)
1. etasje 24 kvm: Terrasse, balkong til garasjen
Vedlagte plantegninger er ikke målbare. De oppgitte arealer er hentet fra rapport med befaringsdato 21.08.2025 utført av Eirik Kalheim.
Rom for varig opphold i kjelleren tilfredsstiller ikke krav til rømning og dagslysflate.
Byggemåte
Selger har fått utarbeidet en tilstandsrapport, dvs. en teknisk gjennomgang av boligen hvor eventuelle avvik, risiko for kjøper og prisoverslag for hva som bør gjøres av oppgradering, er skissert. Se særskilt TGIU (tilstandsgrad ikke undersøkt), samt TG2 og TG3 som viser hva som er boligens normale slitasje, alder og type, hva som er avvik fra dette og hva som bør/må utbedres. Rapporten og selgers egenerklæring er en del av salgsoppgaven og må leses nøye før bud inngis. Kjøper overtar ansvaret for de opplysninger som fremkommer av salgsdokumentasjonen, og kan ikke gjøre gjeldende som mangel noe som burde vært kjent eller som ikke kan anses å ha betydning for avtalen.
Bygningen er iht. tilstandsrapporten oppført i tre og betong. Les for øvrig mer om byggemåte og den tekniske tilstanden i rapporten.
Det gjøres oppmerksom på at følgende er gitt TG3:
Bad 1.Etasje:
- Våtrommet må oppgraderes for å tåle normal bruk etter dagens krav.
Våtrommet har nådd en høy alder, og det kan derfor ikke gis noen garanti for tettheten til rommet.
Sjablongmessig prisanslag: Over kr 300.000,-
Vaskerom kjelleretasje:
-Våtrommet må oppgraderes for å tåle normal bruk etter dagens krav.
Sjablongmessig prisanslag: Over kr 300.000,-
I tillegg er det gitt TG2 for følgende:
- Taktekking
- Takkonstruksjon/Loft
- Vinduer
- Terrasse ved soverom
- Hovedterrasse
- Det er ikke foretatt radonmålinger, og bygget er heller ikke utført med radonsperre
- Pipe og ildsted
- Rom under terreng
- Innvendige trapper
- Innvendige dører- Kjeller
- Sluk, membran og tettesjikt
- Toalettrom/ Naturlig avtrekk
Tekniske installasjoner:
- Vannledninger
- Avløpsrør
- Varmesentral
- Elektrisk anlegg
Tomteforhold:
- Fuktsikring og drenering
- Terrengforhold
- Utvendige vann- og avløpsledninger
- Oljetank
Bad 1.etg. - sluk, membran og tettesjikt
Toalettrom - overflater og konstruksjon
Se supplerende tekst i tilstandsrapporten.
Kjøper overtar ansvar og risiko for dette.
Standard
E n t r è /
h a l l
Velkommen inn i en lys og åpen entrè og hall.
Her er det god plass til oppbevaringsløsninger, samt oppheng for klær.
Ytterdøren har montert kodelås for en enkel og nøkkelfri hverdag.
S t u e /
k j ø k k e n
Boligen har en meget romslig og fin løsning for stue og kjøkken.
Med god utforming og god planløsning har du god plass til å samle gjester i spisestuen for hyggelige middager, i tillegg til en sone for avslapping i sofagruppen.
Gode vindusflater bidrar til en lys og hyggelig atmosfære. Varmepumpe er plassert på vegg i stuen.
Den plassmurte peisen er et naturlig blikkfang i stuen, og skaper varme og hygge på kjølige vinterkvelder.
Fra stuen er det utgang til stor terrasse og hage hvor solen kan nytes hele dagen. Her er det god plass til ønskelig utemøblementer!
Stort, pent og klassisk kjøkken med profilerte fronter og benkeplate i tre.
Kjøkkeninnredningen har integrerte hvitevarer som oppvaskmaskin, platetopp, varmeskuff, micro og stekeovn. Det er nisje for dobbelt kjøle/fryseskap under overskap.
Innredningen har godt med skap- og benkeplass, fliser mellom benk og overskap, samt belysning og stikkontakter.
Kun integrerte hvitevarer på kjøkkenet medfølger. Kjøper må forvente slitasje som følge av alder og normal bruk.
S o v e r om
Boligen har to soverom plassert i første etasje. Iht. godkjente bygningstegninger fra 1961 er eiendommen godkjent med 3 soverom, men soverom 3 er omgjort til baderom.
Begge soverommene er av god størrelse og har garderobeløsning som medfølger.
Hovedsoverommet har bad en suite og utgang til balkong.
Det er montert varmepumpe som også har en kjølende effekt på varme sommerdager.
B a d
Baderom 1
Delikat baderom med flislagte overflater på gulv og vegger.
Baderomsinnredning med skap, underskap med heldekkende servant og speilskap over.
Gulvstående toalett.
Dusjkabinett med skyvedør og regnfallsdusj.
Downlights i himling og varmekabler i gulv.
Badet er gitt TG3 grunnet alder.
Baderom 2
Flislagte overflater på gulv og delvis opp på vegg.
Baderomsinnredning med skap, underskap med heldekkende servant og speil med belysning over.
Gulvstående toalett.
Varmekabler i gulv.
Kjelleretasjen innehar bl.a. kjellerstue, vaskerom/teknisk rom, wc rom og flere boder. Det er innredet til trimrom i den ene boden.
Boder er ikke godkjent til varig opphold.
W C
Toalettrom i kjeller med flislagte overflater på gulv og vegger.
Skap med heldekkende servant og speilskap over.
Gulvstående toalett.
Varmekabler i gulv.
V a s k e r o m /
t e k n i s k
Praktisk vaskerom med vinylfiser på gulv og malte overflater på innvendige vegger og tak.
Vaskerommet er utstyrt med skyllekum, opplegg for vaskemaskin og tørketrommel.
Varmtvannsbereder på 300 liter fra 2010 plassert på vaskerom/teknisk rom.
Oljefyren er plassert her.
Vaskerommet er gitt TG3 grunnet alder.
K j e l l e r s t u e
I underetasjen er det innredet til tv-stue/kjellerstue.
Den plassmurte peisen er også her et naturlig blikkfang, og skaper varme og hygge på kjølige vinterkvelder.
Det er godt med lagringsplass både i boder og garasjer.
Oppvarming
Boligen varmes opp med varmekabler på bad og toalettrom.
Plassmurt peis i stue og kjellerstue.
Varmepumpe på hovedsoverom og i stue.
Det er oljefyranlegg fra 1964 med tilhørende radiatorer i boligen.
Det er ukjent om dette fungerer.
Det er innført forbud mot oppvarming av boliger med fossil olje eller parafin fra 2020. Vi gjør derfor oppmerksom på at det kan komme pålegg for eiendommer med nedgravd oljetank/parafintank om at tanken må fjernes og erstattes med miljøvennlige alternativ, alternativt tømmes/spyles/plomberes.
Kjøper overtar ansvaret og evt. økonomiske følger av dette. For utfyllende informasjon, se www.oljefri.no.
Dersom beboelsesrom ikke har vegg- eller fastmonterte varmekilder ved visning, følger dette heller ikke med.
Ferdigattest/brukstillatelse
Det foreligger ikke ferdigattest på eiendommen, men midlertidig brukstillatelse ble gitt 04.09.1963. Tillatelsen er gitt på følgende vilkår: noe småarbeider gjenstår.
Avvik fra de godkjente bygningstegningene:
På fasadens østside er det bygget balkong og satt inn balkongdør fra det ene soverommet.
1.etg.
- Det er etablert bad i opprinnelig soverom.
- Toalettrom med adkomst fra entrè er fjernet.
U.etg.
- Det er etablert wc-rom i en opprinnelig bod.
- Trimrom er innredet i bod.
Endringene er ikke omsøkt eller godkjent hos kommunen. Kjøper overtar ansvar og risiko for disse forhold videre.
Det foreligger tillatelse til tiltak - nybygg garasje datert 11.08.2011.
Det gjøres oppmerksom på at det ikke lenger utstedes ferdigattest på tiltak det er søkt om før 1998 jf. plan- og bygningsloven § 21-10. Kommunen vil ikke kreve ferdigattest for disse tiltakene og vil avvise eventuelle søknader. Bestemmelsen innebærer ikke at tiltak med manglende søknad blir lovlige, men at man ikke trenger å avslutte gamle byggesaker. Normalt sett kreves ferdigattest for alle søknadspliktige tiltak som gjøres etter plan- og bygningsloven.
Kjøper overtar alt ansvar, kostnad og risiko for dette videre.
Tinglyste heftelser og rettigheter
Eiendommen overdras fri for pengeheftelser.
Det er ingen tinglyste servitutter på eiendommen.
Eventuell adgang til utleie
Eiendommen har ikke separat utleieenhet. Det vil normalt være anledning til utleie av hele eiendommen eller enkeltrom, såfremt utleiearealet er bygningsmessig godkjent for varig opphold og har forsvarlige radonnivåer.
Diverse
Selger har ikke bebodd eiendommen og har derfor ikke kunnskap om eiendommens tilstand. Kjøper må derfor kunne påregne at det kan være flere feil og mangler som normalt oppdages ved bruk av boligen, men som selger ikke har mulighet å vite. Kjøper overtar derfor all risiko for denne type feil og mangler.
Beliggenhet og tomteforhold
Beliggenhet og tomteforhold
Beliggenhet
Eiendommen ligger i et attraktivt og barnevennlig boligområde på Skedsmokorset i Lillestrøm kommune, sentralt plassert midt mellom Oslo og Gardermoen. Fra eiendommen er det gangavstand til skoler, barnehager, offentlig kommunikasjon, samt et rikt utvalg av fasiliteter og servicetilbud. Det er også gangavstand til Skedsmo Senter som har et godt servicetilbud.
Du har Åsenhagen skole og Korshagen barnehage i rett i nærheten.
Det er gangavstand til sentrumskjernen på Skedsmokorset, med blant annet Skedsmo senter, hvor du har det meste av servicetilbud tilgjengelig. Her finnes over 30 butikker og spisesteder, stor Meny butikk og Vinmonopol.
Skedsmo Senter har et bredt utvalg innen helse og velvære aktører som bla. SATS, Klinikk Andersen, Skedsmokorset Legesenter m.f.
Det er gangavstand til bussholdeplass med hyppige avganger. Lillestrøm er nærmeste by med alle servicetilbud tilgjengelig.
Nærmeste dagligvarebutikk er Kiwi som ligger kun ca 600 meter fra boligen. Det er kort vei til E6, og det tar ca. 15 minutter til Oslo og ca. 20 minutter til Gardermoen.
For den aktive har du flere tilbud av treningssenter som Avancia og Sats, store idrettsanlegg for bl.a fotball og ishokchey, og flotte tur- og rekreasjonsområder i nærområdet.
Tæruddalen som ligger i gangavstand fra boligen, er utfartspunkt til Romeriksåsen med turstier, badevann og skiløyper om vinteren.
Boligen ligger rett ved Skedsmo Stadion, og har nærhet til fotballbane, ballbinge, lekeplasser, idrettshall og treningssenter.
Golf kan du spille på Hauger golfbane eller i Lillestrøm.
Kun 2 min med bil til E6.
Med bil er det ca. 20 minutter til Oslo S, ca. 10 minutter til Lillestrøm by og ca. 20 minutter til OSL Gardermoen.
Adkomst
Det vil bli skiltet med Krogsveen visningsskilt ved fellesvisninger.
Barnehager, skoler og fritid
Åsenhagen skole (1-7 kl.)
Vardeåsen skole (1-4 kl.)
Sten-Tærud skole (1-10 kl.)
Brånås skole (1-7 kl.)
Tæruddalen skole (8-10 kl.)
Lillestrøm videregående skole
Skedsmo videregående skole
Korshagen kommunale barnehage (1-5 år) ..
Vardeåsen barnehage (0-5 år)
Åsenhagen barnehage (1-5 år)
Informasjon om tilhørende skolekretser er hentet fra Prognosesenteret som dataleverandør, og tilhørigheten kan årlig endres av kommunen. Dersom skole- og barnehagetilbud er av betydning for kjøpet, ber vi om at det rettes en særskilt henvendelse til kommunen for oppdatert informasjon.
Beskrivelse av tomt
Eiertomt på 1 451 kvm. Tomten er meget pent opparbeidet med plen hekk, busker og bed.
Parkering
Parkering i integrert garasje i boligen, frittstående garasje, carport og egen gårdsplass.
Vei, vann og avløp
Eiendommen har adkomst via kommunal vei.
Eiendommen er tilknyttet kommunalt ledningsnett via private stikkledninger. Eier er selv ansvarlig for private stikkledninger til boligen.
Regulerings-og arealplaner
Eiendommen er omfattes av reguleringsplan 026/61 og er regulert til områder for boliger m/tilhørende anlegg, og med tilhørende reguleringsbestemmelser for området "Prestegårdshagen" gnr 37, bnr 1 m. fl. sist revidert 23.08.2018.
Samt forslag til vedtekter i tilknytning til reguleringsplan for del av Huseby (Prestegårdsskogen) sydøst for Trondheimsveien, og deler av Marenlund og Høkelund i Skedsmo kommune, datert 06.12.1961.
Det foreligger planforslag til ny regulering i og rundt Industriveien
Det er regulert en byggegrense på 21 meter fra Steinbråteveien, og en stor del av eiendommen ligger innenfor byggegrensen.
Tilbygget forlenger eksisterende bygg mot sydøst med 4 meter, med en avstand på ca.15 meter fra midten av veien. På bakgrunn av uttalelse fra samferdsel og siden en stor del av eiendommen ligger innenfor byggegrensen, mener Skedsmo kommune at konsekvenser med tilbygget mot sydøst ikke vil være vesentlige. Dvs at en dispensasjon for også å bygge tilbygg over byggegrense ikke vesentlig tilsidesetter hensynene bak byggegrensen.
Ut fra en konkret vurdering finner Skedsmo kommune at intensjonene i reguleringsplan ikke ble vesentlig tilsidesatt og fordelene ved å gi dispensasjon er klart større enn ulempene. Vilkårene for dispensasjoner etter pbl. §19-2 er oppfylt.
Tiltaket gjelder oppføring av tilbygg som hoveddel (oppholdsrom) med en lengde og bredde på 5 x 4 meter mot sydøst.
Utsnitt av plan med tilhørende bestemmelser kan fås ved henvendelse til megler.
Økonomi
Økonomi
Kommunale utgifter
Kommunale avgifter er kr 21 690,- for inneværende år. I dette inngår gebyr for vann, avløp, renovasjon og feiing/tilsyn.
Det er installert vannmåler på eiendommen og kostnadene betales etter forbruk. Forbruk avleses etter henvendelse fra kommunen. Forbruk betales à konto basert på siste avlesning. Avregning foretas i forbindelse med neste forfall på kommunale avgifter.
Eiendomsskatt utgjør kr 1 731,- for 2025.
Selger har ikke bebodd eiendommen og har således ikke kjennskap til øvrige løpende utgifter for eiendommen.
Formuesverdi
Formuesverdi for 2023 var kr 1 564 356,- ifølge skatteetaten. Beløpet forutsetter at eier bor fast i boligen (primærbolig).
Ved eventuell øvrig bruk av eiendommen (f.eks. fritidsbolig, pendlerbolig, utleieobjekt) var formuesverdien for 2023 kr 6 257 424,-.
Formuesverdien justeres normalt årlig. Se skatteetaten.no for mer informasjon om fastsettelse av formuesverdien.
Omkostninger
9 000 000,00 Prisantydning
Omkostninger
225 000,00 Dokumentavgift til staten (2,5% av kjøpesum)
19 900,00 Gjensidige Boligkjøperpakke (valgfri)
545,00 Tinglysing panterettsdokument
545,00 Tinglysing skjøte
--------------------------------------------------------
245 990,00 Omkostninger totalt
--------------------------------------------------------
9 245 990,00 Totalpris inkl. omkostninger
--------------------------------------------------------
Totalpris inkl. omkostninger forutsetter kjøp til prisantydning.
Det tas forbehold om endringer i avgifter og gebyrer.
Tilbud om lånefinansiering
Megler formidler gjerne kontakt med rådgiver hos Trøgstad Sparebank. De har konkurransedyktige betingelser samt rask og løsningsorientert behandling av din lånesøknad.
Betalingsbetingelser
Kjøpesum inkludert omkostninger, samt pantedokument tilknyttet eventuelt lån, skal være disponibelt hos megler 2 virkedager før overtagelsen.
Annen viktig informasjon
Annen viktig informasjon
Eier
Kenneth Moen
Overtakelse
Etter nærmere avtale.
Boligselgerforsikring
Selger har i forbindelse med salget tegnet boligselgerforsikring levert av Gjensidige.
Boligselgerforsikringen dekker selgers ansvar etter avhendingsloven begrenset oppad til kr 14 millioner. Dersom kjøper oppdager forhold ved eiendommen som hen mener utgjør en mangel ved eiendommen, vil Gjensidige behandle reklamasjonen på vegne av selger. Forsikringsvilkår kan fås ved henvendelse til megler.
Vedlagt salgsoppgaven følger selgers egenerklæringsskjema og tilstandsrapport. Interessenter må sette seg inn i dokumentene før bud inngis.
Boligkjøperforsikring
Innen kontraktsmøtet må kjøper ta stilling til om det ønskes å bestille Boligkjøperpakken gjennom Gjensidige. I denne gunstige pakken er boligen ferdig forsikret og inkluderer rettshjelpsforsikring, også kalt Boligkjøperforsikring. Rettshjelpsforsikring gir trygghet og tilgang på profesjonell juridisk hjelp dersom det oppdages uventede feil eller mangler det første året etter overtagelse. Forsikringsselskapet behandler i så fall ethvert mangelskrav kjøper måtte ha overfor selger.
Boligkjøperpakken inkluderer bygningsforsikring for hus og hytte, innboforsikring, flytteforsikring og dobbel rentedekning - i situasjoner hvor kjøper ikke får solgt nåværende primærbolig.
Kjøper mottar ingen særskilt faktura for Boligkjøperpakken da kostnaden det første året legges til kjøpesummen for boligen. Det gjøres oppmerksom på Krogsveen mottar et honorar for denne formidlingen.
Produktark for Boligkjøperpakken ligger vedlagt i salgsoppgaven.
Dersom ikke boligkjøperpakke ønskes kan kun rettshjelpsforsikring, også kalt boligkjøperforsikring, tegnes særskilt via megler. Rettshjelpsforsikringen varer i 5 år fra overtagelse og leveres gjennom Gjensidige. Ta kontakt med megler for ytterligere informasjon.
Selskap og privatpersoner som driver med kjøp/salg/utvikling som ledd i egen næringsvirksomhet kan ikke tegne boligkjøperpakke eller rettshjelpsforsikring.
Budgivning
Forbrukerinformasjon om budgivning er vedlagt denne salgsoppgaven og er også på vår hjemmeside Krogsveen.no. Alle bud og budforhøyelser må inngis skriftlig. I tillegg må legitimasjon være fremlagt sammen med signatur fra budgiver.
Vi oppfordrer til å gi bud elektronisk via GI BUD-knappen på eiendommens hjemmeside på Krogsveen.no. Da vil samtlige vilkår bli oppfylt.
Eventuelle forhøyelser eller endringer av budet kan bekreftes pr SMS eller på e-post. Vi oppfordrer alltid til å kontakte megler pr. telefon i tillegg da forsinkelser i SMS og e-post kan forekomme.
For at budene skal kunne bli behandlet og videreformidlet skriftlig til alle involverte parter, må alle bud ha en tilstrekkelig lang akseptfrist, jf. eiendomsmeglingsforskriften § 6-3.
Selger må også skriftlig akseptere budet før aksept kan formidles til budgiver. Akseptfrist bør derfor være på minimum 30 minutter, og budforhøyelser må derfor skje i god tid før fristens utløp.
Bud i forbrukerforhold kan uansett ikke settes med kortere frist enn kl. 12.00 første virkedag etter siste annonserte visning. I tillegg kan ikke budet ha forbehold om at det skal holdes hemmelig ovenfor øvrige interessenter. Megler har iht lov om eiendomsmegling ikke anledning til å videreformidle disse budene, og de vil dermed heller ikke bli journalført.
Etter at eiendommen er solgt vil kjøper og selger få tilsendt budjournal. Øvrige budgivere kan få utlevert kopi av budjournalen i anonymisert form.
Hvitvaskingsreglene
I henhold til lov om hvitvasking og terrorfinansiering har megler plikt til å gjennomføre kontrolltiltak overfor kunder, herunder fullmektiger. Dette innebærer bl.a. å bekrefte kunders og reelle rettighetshaveres identitet på bakgrunn av fremvist gyldig legitimasjon eller på annen godkjent måte, samt å innhente opplysninger om kundeforholdets formål og tilsiktede art.
Dersom slike kundetiltak ikke kan gjennomføres, kan megler ikke etablere kundeforholdet eller utføre transaksjonen.
Hvis kjøper ikke bidrar til gjennomføring av kundekontrollen og dette fører til at transaksjonen blir forsinket eller ikke kan gjennomføres, vil dette ansees som mislighold av avtalen og gi selger rettigheter etter avhendingslova kapittel 5. I tilfeller der selger ikke bidrar til gjennomføring av løpende kundekontroll underveis i oppdraget, er det selger som misligholder sine forpliktelser etter avtalen og gi kjøper rettigheter etter avhendingslovens kapittel 4. Partene er selv ansvarlige for eventuelle kostnader og ansvar dette kan medføre. Eiendomsmegleren eller eiendomsmeglingsforetaket kan ikke holdes ansvarlig for de konsekvenser dette vil kunne få for partene eller andre som har interesser i eiendomshandelen.
Kjøper oppfordres til å innbetale kjøpesummen som ikke kommer fra låneinstitusjon i én samlet innbetaling fra egen konto i norsk bank. Megler har plikt til å melde fra til Økokrim om eiendomshandler som fremstår som mistenkelige. Melding sendes Økokrim uten at partene varsles.
Personopplysningsloven
I henhold til personopplysningsloven gjør vi oppmerksom på at interessenter kan bli registrert for videre oppfølging.
Lovanvendelse
Generelle bestemmelser
Salgsoppgaven er basert på de opplysningene selger har gitt til megler, den bygningssakyndiges tilstandsrapport, samt opplysninger innhentet fra kommunen, Kartverket og andre tilgjengelige kilder. Det er viktig at kjøper setter seg grundig inn i alle salgsdokumentene, herunder salgsoppgave, tilstandsrapport og selgers egenerklæring. Kjøper anses kjent med forhold som er tydelig beskrevet i salgsdokumentene, og slike forhold kan ikke påberopes som mangler. Dette gjelder uavhengig av om kjøper har lest dokumentene. Alle interessenter oppfordres til å undersøke eiendommen nøye, gjerne sammen med fagkyndig før bud inngis. Kjøper som velger å kjøpe usett kan ikke gjøre gjeldende som mangel noe han burde blitt kjent med ved undersøkelsen.
Dersom det er behov for avklaringer, anbefaler vi at interessenter rådfører seg med eiendomsmegler eller egne rådgivere før det legges inn bud.
En bolig som har blitt brukt i en viss tid, har vanligvis blitt utsatt for slitasje og skader kan ha oppstått. Slik bruksslitasje må kjøper regne med, og det kan avdekkes enkelte forhold etter overtakelse som nødvendiggjør utbedringer. Normal slitasje og skader som nødvendiggjør utbedring, er innenfor hva kjøper må forvente og vil ikke utgjøre en mangel.
Kjøper og selgers rettigheter og plikter reguleres av avtalen mellom partene, samt informasjonen som har vært tilgjengelig for kjøperen i forbindelse med handelen. Avtalen utfylles av avhendingsloven, og det gjelder ulike avtalevilkår avhengig av om kjøper er forbrukerkjøper eller ikke. Dette er nærmere beskrevet nedenfor.
På grunn av ulike avtalevilkår kan selger vurdere bud fra en som ikke er forbruker, ulikt fra en forbrukers bud. Dersom kjøper ikke er forbruker, er selger sitt mulige mangelsansvar begrenset fordi eiendommen selges "som den er". Selger kan ikke ta «som den er»- forbehold overfor en forbrukerkjøper. Selv et lavere bud fra en som ikke er forbruker kan foretrekkes fordi begrensningen i mulig mangelsansvar kan ha egenverdi for selger. Selger står fritt til å forkaste eller akseptere ethvert bud, og er for eksempel ikke forpliktet til å akseptere høyeste bud.
Budgiver skal i budskjema avgi egenerklæring om budgiver er forbruker eller næringsdrivende/ person som hovedsakelig handler som ledd i næringsvirksomhet. Budgivere får informasjon dersom andre bud er inngitt av en som ikke er forbruker.
Forbrukerkjøp - definisjon
Med forbrukerkjøp menes kjøp av eiendom når kjøperen er en fysisk person som ikke hovedsakelig handler som ledd i næringsvirksomhet.
Forbruker – avtalevilkår
Eiendommen har en mangel dersom den ikke er i samsvar med kravene som følger av avtalen, eller det foreligger brudd på bestemmelsene i avhendingsloven §§ 3-2 til 3-8. Hvis eiendommen ikke er i samsvar med det kjøperen må kunne forvente ut ifra alder, type og synlig tilstand, kan det være grunnlag for mangelskrav. Det samme gjelder hvis det er holdt tilbake eller gitt uriktige opplysninger om eiendommen. Dette gjelder likevel bare dersom man kan gå ut ifra at det virket inn på avtalen at opplysningen ikke ble gitt eller at mangelskravet ikke blir rettet i tide på en tydelig måte.
Boligen kan ha en mangel etter avhendingsloven § 3-3 andre ledd, dersom det er avvik mellom opplyst og faktisk innvendig areal, forutsatt at avviket er på 2% eller mer og minimum 1 kvm.
Ved beregning av et eventuelt prisavslag eller erstatning må kjøper selv dekke tap/kostnader opptil et beløp på kr 10 000 (egenandel).
Ikke-forbruker (næringsdrivende) – definisjon
Hvis kjøper er en juridisk person, eller en fysisk person som hovedsakelig handler som ledd i næringsvirksomhet, vil kjøpet ikke anses som et forbrukerkjøp.
Ikke-forbruker – avtalevilkår
Eiendommen har en mangel dersom den ikke er i samsvar med kravene som følger av avtalen.
Eiendommen selges «som den er», og selgers ansvar utover det konkret avtalte er da begrenset etter avhendingsloven § 3-9, første ledd andre setning.
Avhendingsloven § 3-3 andre ledd fravikes, og hvorvidt boligens arealsvikt utgjør en mangel vurderes etter avhendingsloven § 3-8.
Informasjon om kjøpers undersøkelsesplikt, herunder oppfordringen om å undersøke eiendommen nøye, gjelder også for kjøpere som ikke anses som forbrukere.
Det forutsettes at hjemmel overføres til kjøper. Hvis kjøper ikke ønsker hjemmelsoverføring av eiendommen, må det tas forbehold om dette i budet.
Meglers vederlag
Meglers vederlag betales av selger og er avtalt til:
Vederlag: 0,8% av salgssummen
Tilrettelegging fra kr 17 000,-
Oppgjør: kr 7 500,-
Markedspakke: kr 29 000,-
Visninger: kr 5 000,- pr. visning
Oppslag eiendomsregister: kr 2 900,-
Megler har i tillegg krav på dekning av følgende utlegg:
Innhenting av dokumenter/servitutter fra grunnboken kr 260,- pr stk
Innhenting av offentlig opplysninger kr 3 100,-
Tinglysing sikring kr 545,-
Foto kr 6 700,-
Tilstandsrapport kr 18 000,-
Opplysninger om oppdraget
Oppdragsnummer 60-0266/25
Eiendomsmegler Krogsveen AS, avd. Lillestrøm
Adolph Tidemands gate 38, 2000, LILLESTRØM
950 007 613
Oppdragets KR-kode KR60.25266
Dato
Sist oppdatert: 17. desember 2025 kl. 10:14
Dokumenter
Dokumenter
PDF – 752 KB
PDF – 929 KB
PDF – 869 KB
PDF – 5 MB
PDF – 889 KB
PDF – 763 KB
PDF – 827 KB
PDF – 3 MB
PDF – 312 KB
PDF – 29 KB
PDF – 127 KB
PDF – 392 KB
Område
Legg til steder som er viktige for deg
Visning
Det er ingen planlagte visninger. Meld deg på for å avtale en tid som passer.
Lurer du på noe?
Unngå doble boligrenter
Vi tilbyr gunstig forsikring.
Vurderer du utleie?
Få et tilbud fra Utleie KrogsveenHva koster lånet?
Sjekk estimert lånekostnadVil du varsles om lignende boliger?
Ved å lagre ditt boligsøk hos oss får du beskjed når vi har en bolig som ligner denne, før den legges ut på markedet!

