Kirkeveien 29A
10 300 000 kr
165 m²
3 soverom
Solgt

Ski
Herskapelig enebolig med gangavstand til Ski sentrum. Meget gode solforhold. Flott hage. Garasje.
Prisantydning
10 300 000 krOmkostninger
278 490 krTotalpris
10 578 490 kr
Pris
Bruksareal
195 m²BRA-I (internt bruksareal)
165 m²BRA-E (eksternt bruksareal)
30 m²TBA (terrasse-balkongareal)
17 m²
Areal
Byggeår
1925Soverom
3 soveromBad
2 badTomteareal
765 m² (eiet)Type
Enebolig - FrittliggendeEierform
EietFasiliteter
Garasje/P-plass og Balkong/TerrasseEnergimerke
Rød G
Nøkkelinfo
Unngå doble boligrenter
Vi tilbyr gunstig forsikring.
Vurderer du utleie?
Få et tilbud fra Utleie KrogsveenHva koster lånet?
Sjekk estimert lånekostnadBeskrivelse
Kort om eiendommen
- Meget flott og herskapelig enebolig i attraktivt og barnevennlig nabolag. Her kan man gå til sentrum, flere barnehager, skoler for alle trinn med mer.
- Fra sentrum kan du bruke Follobanen som har 6 avganger i timen og bruker 12 minutter til Oslo S.
- Boligen er vesentlig oppgradert siden nåværende eier kjøpte boligen i 2010.
- To flislagte bad med gulvvarme.
- Kjøkken med integrerte hvitevarer fra 2010.
- Hele huset fikk nytt elektrisk anlegg i 2010.
- Nytt tak 2010.
- Ny drenering 2015.
- Vinduer fra 2010, 2014 og 2024.
- Garasje med el-bil lader.
- 3 store soverom i 2. etasje+kontor 1. etasje.
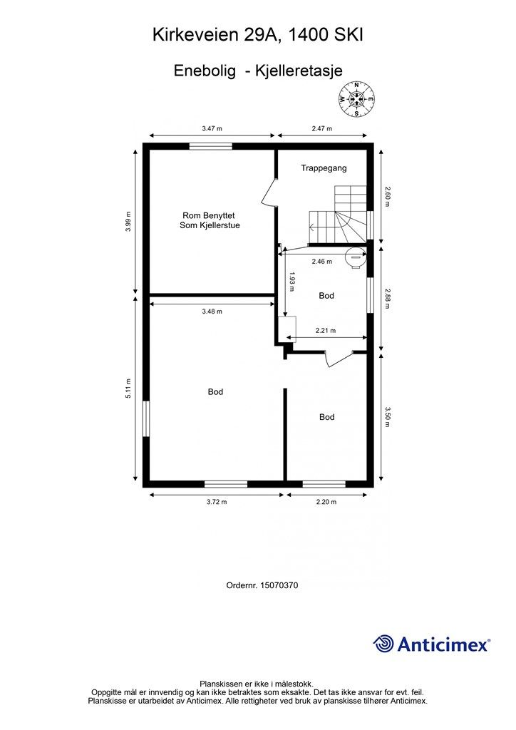
- Stor kjeller med gulvareal på 57 kvm som ikke er måleverdig grunnet lav takhøyde.
- Mye lagringsplass i boligen samt over garasjen.
- Fantastisk hage som er pent opparbeidet.
Område
Legg til steder som er viktige for deg
På flyttefot? Tenk kjøp og salg samtidig.
Få din egen rådgiver gjennom hele kjøps- og salgsprosessen. Det starter med en verdivurdering.
Unngå doble boligrenter
Vi tilbyr gunstig forsikring.
Vurderer du utleie?
Få et tilbud fra Utleie KrogsveenHva koster lånet?
Sjekk estimert lånekostnadVil du varsles om lignende boliger?
Ved å lagre ditt boligsøk hos oss får du beskjed når vi har en bolig som ligner denne, før den legges ut på markedet!

