Kongsvingergata 1B
7 600 000 kr
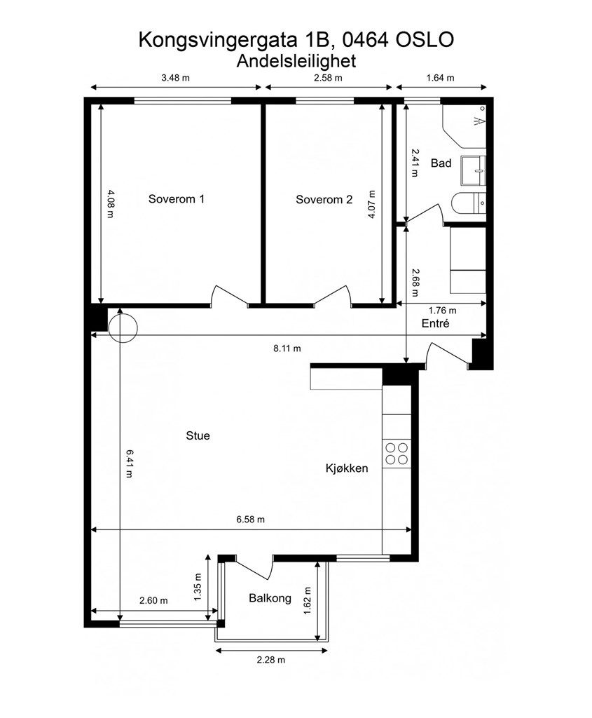
73 m²
2 soverom
Solgt

Presenteres av
Emir MekicSagene
Romslig og åpen 3-roms med balkong. Åpen stue/kjøkken. Peis. Internett inkl. Veletablert borettslag. Nærhet til "alt"
Prisantydning
7 600 000 krAndel fellesgjeld
322 290 krOmkostninger
19 446 krTotalpris
7 941 736 kr
Pris
Bruksareal
90 m²BRA-I (internt bruksareal)
73 m²BRA-E (eksternt bruksareal)
17 m²TBA (terrasse-balkongareal)
4 m²
Areal
Etasje
3Byggeår
1948Soverom
2 soveromBad
1 badType
AndelsleilighetEierform
AndelFasiliteter
Balkong/TerrasseFellesutgifter
4 677 krEnergimerke
Oransje E
Nøkkelinfo
Unngå doble boligrenter
Vi tilbyr gunstig forsikring.
Vurderer du utleie?
Få et tilbud fra Utleie KrogsveenHva koster lånet?
Sjekk estimert lånekostnadBeskrivelse
Kort om eiendommen
Emir Mekic v/ Krogsveen har gleden av å presentere Kongsvingergata 1B! En herlig 3-roms med umiddelbar nærhet til det du har behov for i hverdagen. Leiligheten har en god planløsning og består av åpen stue/kjøkken, to soverom, entré og bad. Leiligheten har også en herlig balkong.
Verdt å merke seg:
Herlig balkong med gode solforhold på sommerhalvåret
Internett tilknyttet fiber inkludert
Rikelig med oppbevaring i stor loftsbod (10 m²) og to kjellerboder (6+1 m²)
Velholdte overflater
Fellesvaskeri og tørkeskap
Åpen stue/kjøkkenløsning
God planløsning
Herlig peisovn
Utsikt til Hjemmets kolonihage (med Portveien 2)
Veletablert borettslag
Nærhet til det du har behov for i hverdagen
Flere populære spisesteder på Sagene
Område
Legg til steder som er viktige for deg
På flyttefot? Tenk kjøp og salg samtidig.
Få din egen rådgiver gjennom hele kjøps- og salgsprosessen. Det starter med en verdivurdering.
Unngå doble boligrenter
Vi tilbyr gunstig forsikring.
Vurderer du utleie?
Få et tilbud fra Utleie KrogsveenHva koster lånet?
Sjekk estimert lånekostnadVil du varsles om lignende boliger?
Ved å lagre ditt boligsøk hos oss får du beskjed når vi har en bolig som ligner denne, før den legges ut på markedet!
På flyttefot? Slik gjør vi det enklere for deg
Skreddersydd flyttepakke
Vi fikser håndverkere, vask, pakking, lagring og transport, og legger ut for utgiftene underveis.
Hjelp med både kjøp og salg
Hos oss har du din egen rådgiver gjennom hele kjøps- og salgsprosessen.
Hjelp til finansiering
Vårt samarbeid med BN Bank sikrer deg rask og løsningsorientert hjelp, til konkurransedyktige betingelser.

