Rådyrfaret 1
2 600 000 kr
52 m²
1 soverom
Komplett salgsoppgave

Øreåsen
Stilfullt oppusset 2-roms på Øreåsen. Moderne kjøkken med hvitevarer. Bad renovert i 2025. Sørvendt veranda med utsyn.
Prisantydning
2 600 000 krAndel fellesgjeld
188 040 krOmkostninger
18 683 krTotalpris
2 806 723 kr
Pris
Bruksareal
54 m²BRA-I (internt bruksareal)
52 m²BRA-E (eksternt bruksareal)
2 m²TBA (terrasse-balkongareal)
3 m²
Areal
Etasje
2Byggeår
1976Soverom
1 soveromBad
1 badType
AndelsleilighetEierform
AndelFasiliteter
Balkong/TerrasseFellesutgifter
4 452 kr
Nøkkelinfo
Unngå doble boligrenter
Vi tilbyr gunstig forsikring.
Vurderer du utleie?
Få et tilbud fra Utleie KrogsveenHva koster lånet?
Sjekk estimert lånekostnadBeskrivelse
Kort om eiendommen
- Sørvendt veranda med utsyn og gode solforhold
- Nye gulv i alle rom, vegger og himlinger behandlet/malt
- Moderne Epoq-kjøkken installert i 2024
- Lekkert bad med gulvvarme, renovert så nylig som i 2025
- Hvitevarer medfølger kjøkken og bad
- Elektrisk anlegg oppgradert i 2024
- Innvendig bod tatt i bruk som walk-in closet
- Ekstern disponibel bod i tredje etasje
- Ingen dokumentavgift - lave omkostninger ved kjøp
- Mulighet for leie av plass i garasje eller carport etter venteliste
- Rolig miljø med bilfrie smågater på borettslaget område
- Nærhet til forretninger, bykjernen av Moss og turområder
Innhold og byggemåte
Innhold og byggemåte
Eiendommen
Rådyrfaret 1, 1528 MOSS
Kommunenummer 3103, gårdsnummer 197, bruksnummer 163, ideell andel 1/1
Andelsnummer 29, Øreåsen Borettslag A/l, organisasjonsnummer 953228807
Innhold
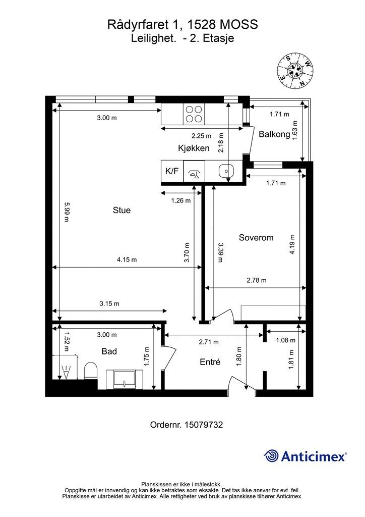
BRA (totalt bruksareal): 54 kvm.
BRA-i (internt bruksareal)
2. etasje:
52 kvm: Entré, bad, soverom, stue og kjøkken.
BRA-e (eksternt bruksareal)
3. etasje:
2 kvm: Bod.
TBA (terrasse- og balkongareal)
2. etasje:
3 kvm: Balkong.
Leiligheten disponerer en bod i 3. etasje. Alle leiligheter er tildelt en bod som er nummerert, andelseier har ansvar for innvendig vedlikehold av boder jf. vedtektene.
De oppgitte arealer er hentet fra rapport med befaringsdato 27.02.2026 utført av Lars Petter Ausland. Arealene er beregnet og rom er definert etter dagens faktiske bruk, uavhengig av hva som er godkjent av bygningsmyndighetene.
Byggemåte
Selger har fått utarbeidet en tilstandsrapport for eiendommen, dvs. en teknisk gjennomgang av boligen hvor eventuelle avvik, risiko for kjøper og prisoverslag for hva som bør gjøres av oppgradering, er skissert. Se særskilt TGIU (tilstandsgrad ikke undersøkt), samt TG2 og TG3 som viser hva som er avvik fra boligens normale slitasje, alder og type, eller som bør/må utbedres. Rapporten og selgers egenerklæring er en del av salgsoppgaven og må leses nøye før bud inngis. Kjøper overtar ansvaret for de opplysninger som fremkommer av salgsdokumentasjonen, og kan ikke gjøre gjeldende som mangel noe som burde vært kjent eller som ikke kan anses å ha betydning for avtalen.
Bygningen er iht. tilstandsrapport, et leilighetsbygg oppført i 1976. Grunnmur og skillende dekker i hovedsak av betong og murkonstruksjoner. Yttervegger forblendet med teglsteinsmur. Tilnærmet flat takkonstruksjon tekket med papp/membran (taket er ikke besiktiget). Leiligheten har entrédør med brannklasse B30. Balkongdør med tre-lags glass fra 2012. Vinduer med to-lags glass fra 2006 og 2012. Les forøvrig mer om byggemåte og den tekniske tilstanden i rapporten.
I rapporten fremkommer det som takstmannen mener kjøper må være særskilt oppmerksom på, dette gjelder blant annet (se utfyllende tekst i rapporten):
Følgende kontrollpunkter/forhold har blitt tildelt TG3:
Det er ingen punkter som har blitt tildelt TG3.
Følgende kontrollpunkter/forhold har blitt tildelt TG2:
- Kjøkken: Vannrør av kobber (og tilhørende komponenter) har en alder som tilsier at fremtidig funksjon er usikker.
Følgende kontrollpunkter/forhold har blitt tildelt TGIU (tilstandsgrad ikke undersøkt):
- Bad: På grunn av våtrommets utforming og bruk er det ikke praktisk mulig å gjennomføre hulltaking og fuktmåling i et område som regelmessig utsettes for bruksvann, og som vurderes å være det området hvor skader erfaringsmessig forekommer. Det ble utført et overflatesøk med fuktindikator på utvalgte steder, uten funn som indikerer fuktskader, også i områdene hvor hulltaking ville vært mulig. Alle disse forholdene og at baderommet er dokumentert fra årstall 2025 utgjør grunnlaget for vurderingen om at hulltaking var unødvendig, og undersøkelse av lukkede konstruksjoner er derfor ikke utført.
Det anbefales ytterligere undersøkelser av disse punktene.
I tillegg opplyses det om følgende i rapporten:
- Forenklet vurdering av elektrisk anlegg: Det er gjennomført en forenklet vurdering av det elektriske anlegget, og hovedsikringer er gamle skrusikringer, uten at det er registrert åpenbare avvik.
- Forenklet vurdering av lovlighets- og branntekniske forhold: Det anses som sannsynlig at det foreligger krav om komfyrvakt i boligen.
Se vedlagt tilstandsrapport for supplerende informasjon vedrørende boligens tilstand.
Tilstandsrapporten og selgers egenerklæring er vedlagt salgsoppgaven. Interessenter må sette seg inn i dokumentene før bud inngis.
Standard
Nåværende eier overtok i 2023 og har siden tilført leiligheten betydelige påkostninger. Resultatet er et stilmessig helhetlig uttrykk kombinert med moderne standard på blant annet kjøkken og bad inkludert.
Alle rom utenom badet (2025), ble pusset opp i 2024. Gulvene ble oppgradert med ny én-stavs laminat, øvrige overflater ble behandlet og malt i tidsaktuelle farger. Samme år ble også elektrisk anlegg oppgradert med blant annet nye ledninger, stikk og taklamper.
Samtidig med den omfattende oppussingen ble kjøkkenet både åpnet mot stuen og oppgradert med en helt ny, moderne og stilsikker innredning fra Epoq. Hvitevarene er fra samme år og alle integrert. Innredningen er effektiv og praktisk utformet med blant annet motstående koke- og vaskesoner, begge omgitt av arbeids- og avlastningsflater.
Badet ble renovert så nylig som i 2025. Arbeidet omfattet blant annet støp av nytt gulv med varmekabler og utskiftning av de fleste vannrør før etablering av nye overflater og montering av nytt sanitærutstyr. Baderomsmøblene er i serien Lind fra Megaflis og tilbyr et større antall oppbevaringsmuligheter. Gulv og vegger er helhetlig utført med storformat fliser i grå nyanser, dusjsonens gulv med mosaikk. Verdt å merke seg er også at vaskemaskin medfølger.
Overflater og innredninger:
Gulv: Fliser på bad, for øvrig laminat.
Innervegger: Fliser på bad, for øvrig malte, pussede flater.
Himlinger: Malt betong.
Kjøkken: Skapinnredning med glatte lyse fronter. Laminerte benkeplater med imitasjon av tre. Nedfelt vask i sort kompositt med sort ett-greps blandebatteri. Integrert platetopp, stekeovn, oppvaskmaskin og kombiskap. Veggmontert sort ventilator.
Bad: Skapinnredning med glatte, folierte fronter med imitasjon av tre. Nedfelt servant i støpemarmor med sort ett-greps blandebatteri. Speilskap med overbelysning. Dusjhjørne med sidehengslet glassdør og to-greps blandebatteri med hånd- og regndusj. Toalett montert på innbygget sisterne. Rør-opplegg til vaskemaskin.
Løsøre og tilbehør
Integrerte hvitevarer på kjøkkenet medfølger i handelen, dette gjelder platetopp med induksjon, stekeovn, oppvaskmaskin og kjøle-/fryseskap.
Videre vises det til liste fra Norges Eiendomsmeglerforbund angående løsøre og tilbehør. Produkter og installasjoner som medfølger overdras uten noen form for garantier, utover eventuell gjenværende leverandørgaranti.
Oppvarming
Gulvvarme på bad. Videre har boligen elektrisk oppvarming ved evt. panelovner.
Dersom det ikke er vegg- eller fastmonterte varmekilder i rom ved visning, følger dette heller ikke med.
Ferdigattest/brukstillatelse
Det foreligger ferdigattest på eiendommen datert 30.09.1976, som omfatter oppføring av boligprosjekt (blokk nr. 1, 2 og 3 - 60 leiligheter). I tillegg er det tilhørende godkjente byggetegninger fra 1974.
Nisje i entré er opprinnelig byggemeldt som kott jf. godkjente byggetegninger.
Kjøper overtar eiendommen slik den framstår på visning.
Tinglyste heftelser og rettigheter
Utover andel fellesgjeld overdras leiligheten fri for pengeheftelser, med unntak av borettslagets tinglyste panterett:
Borettslaget har legalpant for forfalte felleskostnader og andre krav som følger av borettslagsforholdet iht. burettslagsloven § 5-20. Pantet er begrenset oppad til 2G (G = folketrygdens grunnbeløp).
Det er tinglyst 2 servitutter på borettslagets eiendom. Disse omhandler blant annet bestemmelser om gjerde, generende virksomhet, vann-/kloakkledning, elektriske ledninger/kabler m.m. Ingen av disse har direkte betydning for bruken av denne boligen.
Eventuell adgang til utleie
Andelseier kan ikke uten samtykke fra styret i borettslaget overlate bruken av boligen til andre. Med samtykke kan andelseier overlate boligen til andre i inntil tre år hvis andelseier har bodd i boligen i minst ett av de to siste år. Utleie i andre tilfeller kan godtas ved særlige grunner, jf. burettslagslova § 5-6. Utleie forutsetter at leiligheten har forsvarlige radonverdier. Se også borettslagets vedtekter og konferer megler ved spørsmål.
Energimerking
Selger er ansvarlig for at boligen har energiattest. Det foreligger imidlertid ikke energiattest for denne boligen, men hvis kjøper krever det kan energiattest innhentes for selgers regning.
Beliggenhet og tomteforhold
Beliggenhet og tomteforhold
Beliggenhet
På det veletablerte boligområdet Øreåsen bor du nær de fleste fasiliteter hverdagen krever. Spesielt praktisk er det med kort gangavstand til både dagligvareforretning og kjøpesenter. I nærområdet finnes også et større antall store varehus samt et bredt tilbud av helserelaterte tjenester.
Sentrum er lett tilgjengelig med buss fra holdeplass i Øreåsveien, et fåtall meter unna blokken. Bussen har hyppig avganger mot både sentrum og togstasjonen. Reisetiden med tog mellom Moss og Oslo er kun 30 minutter.
Fra Øreåsen går det gangvei direkte mot idylliske Vansjø, veien er heller ikke lang ut til Mossemarka hvor det er lysløype og preparerte skispor når forholdene tillater vinterstid. Flere fine turområder finner du langs Vansjøs milelange bredd og i det vakre landskapet i hjertet av Rygge.
Adkomst
Det vil bli skiltet med Krogsveen visningsskilt ved fellesvisninger. Se kart i nettannonse eller Google Maps for nærmere veibeskrivelse. Velkommen til visning!
Barnehager, skoler og fritid
Barnehager: Solliskogen barnehage (0,1 km), Gaupefaret barnehage (0,3 km), Ørejordet barnehage (1,1 km).
Skoler: Øreåsen barneskole (0,5 km) og Rygge ungdomsskole (2,6 km).
Videre er det Malakoff videregående skole (1,9 km) og Kirkeparken videregående skole (4,2 km) i Moss kommune.
Dersom skole- og barnehagetilbud er av betydning for kjøpet, ber vi om at det rettes en særskilt henvendelse til kommunen for oppdatert informasjon.
Beskrivelse av tomt
Eiertomt på ca. 42 069 kvm som tilhører borettslaget. Tomten er opparbeidet med asfalterte internveier, gressplen, trær, prydbusker, diverse beplantning, sittegrupper og lekeapparater.
Tomten er ikke oppmålt i nyere tid og har usikre grenser. Kommunens grunnkart viser eiendommens grenser med et beregnet normalavvik på 10-30 cm, se kartutsnitt for tomtegrenser. Ved nøyaktig oppmåling kan avvik forekomme, og kjøper aksepterer dette.
Parkering
Borettslaget har et begrenset antall parkeringsplasser til fordeling blant andelseiere og gjester (100 uten tak, 100 i garasje og 54 i carport - 254 tilsammen). Hver andel gis parkeringstillatelse for inntil tre parkeringer samtidig, så lenge det er kapasitet. Dette omfatter andelens egne parkeringer og evt. gjester. Styret tildeler parkeringstillatelser forløpende etter søknad og kapasitet (ansiennitetsliste), det må påregnes en månedlig leie for garasje-/carportplass.
Parkering inne på boligområdet er ikke tillatt jf. husordensreglene.
Det gjøres oppmerksom på at dagens parkeringsløsning og boder er etablert i borettslagets fellesareal, og at parkeringsplassene samt bodene således ikke eies av den enkelte andelseier. Dette medfører at borettslaget i fellesskap beslutter bruken, og at man ikke selv har eierrett og rettsvern for parkeringsplassen/boden. Borettslaget kan ved vedtak beslutte annet bruk av fellesarealet.
Vei, vann og avløp
Eiendommen har adkomst via kommunal vei.
Eiendommen er tilknyttet kommunalt ledningsnett via private stikkledninger. Borettslaget er ansvarlig for private stikkledninger til bygningen.
Regulerings-og arealplaner
Eiendommen er regulert til boligformål, offentlig friområde, parkeringsplass og kjørevei, i henhold til reguleringsplan for Øreåsen sentrale del vedtatt 08.04.1974. Det er flere eldre reguleringsplaner som eiendommen omfattes av, dette gjelder: Øreåsen felt A-B-C vedtatt 27.11.1978, Ørekroken vedtatt 12.04.1985 og Øreåsen felt K vedtatt 08.06.1976. Videre er eiendommen avsatt til boligbebyggelse samt liten del næringsvirksomhet og offentlig eller privat tjenesteyting ved kommuneplanens arealdel 2021-2032 vedtatt 24.03.2021. Utsnitt av planer med tilhørende bestemmelser kan fås ved henvendelse til megler.
Økonomi
Økonomi
Boligens kostnader
Felleskostnadene inkluderer bl.a. kommunale avgifter (vann og avløp), renovasjon, renter og avdrag på andel fellesgjeld, tv/internett grunnpakke, felles vedlikehold, felles driftskostnader, sommer-/vintervedlikehold, renhold/trappevask, strøm i fellesarealer, forretningsførsel, revisjon- og administrasjonskostnader, styrehonorar, felles bygningsforsikring m.m.. Felleskostnadene justeres normalt en til to ganger årlig i forhold til borettslagets faktiske utgifter. Det tas forbehold om at felleskostnadene kan justeres fortløpende pga. renteendringer.
Felleskostnadene pr. mnd fordeles slik:
Faste fellesutgifter kr 3.012,-
Renter kr 888,-
Avdrag kr 552,-
Det er planlagt rehabilitering av betong på balkonger i borettslaget, det er estimert kostnader på 30-40 millioner (bør tas høyde for at omfanget ikke er avklart). Det er også nødvendig med fasadevask og maling samt utbytting av noe treverk på rekkehusene. Det må påregnes en økning av felleskostnadene og en økning av andel fellesgjeld i tilknytning til dette. Pt. er det uklart hva økningen vil bli.
Det må påregnes kostnader til strøm og nettleie, dette vil variere avhengig av strøm-/nettselskap. Selger har ikke opplyst om forbruk av strøm.
Boligen er tilknyttet Telenor som leverandør av tv/internett, grunnpakke er inkludert i felleskostnadene.
Det må påregnes kostnader til innboforsikring.
Ovenstående er basert på nåværende eier/husstands senere års forbruk/utgifter. Dette vil variere avhengig av antall beboere, ønsket innetemperatur, egne fordelsavtaler, kanalvalg, hastighet på bredbånd osv.
Formuesverdi
Formuesverdi for 2024 var kr 560 892,- ifølge Skatteetaten. Beløpet forutsetter at eier bor fast i boligen (primærbolig).
Ved eventuell øvrig bruk av eiendommen (f.eks. fritidsbolig, pendlerbolig, utleieobjekt) var formuesverdien for 2023 kr 2 243 569,-.
Fra 2026 har Stortinget vedtatt en oppdatert modell for beregning av formuesverdi for primærbolig, så avvik kan forekomme.
For mer informasjon se skatteetaten.no.
Opplysninger om fellesgjeld
Andel formue er kr 12 441,- pr. 31.12.2025.
Andel fellesgjeld er kr 188 040,- pr. 24.02.2026.
Total fellesgjeld for boligselskapet er kr 56.033.056,- pr. 24.02.2026 og lånevilkårene er:
Handelsbanken - Lånenr.: 95377045328
Serielån
Opprinnelig lånebeløp: kr 60.000.000,-
Opptaksår: 2023
Lånets løpetid: 2054
Rente Pt.: 5,6 %
Flytende rente
Borettslaget har ikke tilrettelagt for individuell nedbetaling av fellesgjeld.
Omkostninger
2 600 000,00 Prisantydning
188 040,00 Andel av fellesgjeld
--------------------------------------------------------
2 788 040,00 Pris inkl. fellesgjeld
Omkostninger
7 643,00 Gebyr forhåndsavklaring forkjøpsrett
9 950,00 Gjensidige Boligkjøperpakke (valgfri)
545,00 Tinglysing hjemmel
545,00 Tinglysing panterettsdokument
--------------------------------------------------------
18 683,00 Omkostninger totalt
--------------------------------------------------------
2 806 723,00 Totalpris inkl. omkostninger
--------------------------------------------------------
Dersom kjøper ikke er medlem av boligbyggelaget, må det påregnes en innmeldingsavgift og årlig medlemsgebyr pr. ny andelseier. Dette faktureres direkte fra boligbyggelaget.
Dersom borettslaget har fellesgjeld, vil leilighetens andel av fellesgjelden komme i tillegg til kjøpesummen. Denne gjelden skal ikke innbetales i oppgjøret, men følger leiligheten.
Det tas forbehold om endringer i avgifter og gebyrer.
Tilbud om lånefinansiering
Megler formidler gjerne kontakt med rådgiver hos vår samarbeidspartner BN Bank. De har konkurransedyktige betingelser samt rask og løsningsorientert behandling av din lånesøknad. Krogsveen mottar et honorar dersom lån opprettes.
Betalingsbetingelser
Kjøpesum inkludert omkostninger, samt pantedokument tilknyttet eventuelt lån, skal være disponibelt hos megler 2 virkedager før overtagelsen.
Annen viktig informasjon
Annen viktig informasjon
Eier
Simen Gundersen
Informasjon om borettslaget
Leiligheten er tilknyttet Øreåsen Borettslag A/l.
Borettslaget består av 212 andelsleiligheter.
Forretningsfører er Vansjø BBL.
Borettslagets årsregnskap for 2024 viser et underskudd på kr -106.260,-.
Disponible midler i borettslaget pr. 31.12.2024 kr 2.243.616,-.
Dugnader samt noe snørydding/feiing ved inngangspartier tilknyttet borettslaget må påregnes.
Dyrehold er tillatt, med mindre det er til sjenanse for øvrige beboere. Det forutsettes at erklæring om dyrehold undertegnes og overholdes. Hund/katt skal føres i kort bånd innenfor borettslagets område jf. husordensreglene. En andelseier som ønsker å holde flere dyr må søke borettslaget eksplisitt om samtykke til dette (gjelder ikke dyr som utelukkende holdes inne). Et slikt samtykke vil kun bli gitt i de tilfeller hvor andelseier har dokumentert et særlig behov for ytterligere ett dyr, og at slikt dyrehold ikke er til sjenanse for borettslagets øvrige beboere.
Foretatte arbeid/påkostninger i de senere år: Det er byttet fellesdører i oppgangene på blokkene, samt byttet røykluker i de samme oppgangene. De rekkehusdørene som hadde behov for utskiftning er også tatt.
Planlagte arbeid/påkostninger som er ønskelig i 2025: Det er innhentet tilbud på rehabilitering av betong på balkonger i borettslaget, estimatet viser en kostnader på 30-40 millioner (bør tas høyde for at omfanget ikke er avklart). Det er anbefalt å starte med en blokk, for så avklare omfanget samt få en bedre kontroll på kostnadsbildet. I løpet av 2024 ble det gjennomført flere viktige tiltak, herunder flere nødvendige sikringstiltak på bygningsmassen i forbindelse med rehabilitering av betong på verandaer i blokker. Dette arbeidet vil fortsette utover i 2025. Fasadevask og maling, samt utbytting av noe treverk på rekkehus er nødvendig.
I henhold til borettslagets vedtekter må kjøper godkjennes av styret som ny andelseier. Det er kjøpers ansvar at styregodkjenning blir gitt, men styret kan ikke nekte godkjenning uten saklig grunn. Iht. burettslagslova kan man bare eie en andel i borettslaget. Kun fysiske personer kan være andelseiere.
Borettslaget er tilknyttet Borettslagenes Sikringsordning AS som dekker manglende innbetaling av felleskostnader fra øvrige andelseiere. Avtalen om sikring er gyldig til avtalen sies opp av en av partene. Oppsigelsesfrist er 1 desember med gyldighet fra førstkommende årsskifte.
Borettslagets bygningsmasse er fullverdiforsikret i Gjensidige Forsikring ASA, polisenr.: 82400344.
Dokumenter vedrørende borettslaget kan fås ved henvendelse til megler.
Informasjon om forkjøpsrett
Øvrige andelseiere i borettslaget og medlemmer av boligbyggelaget har forkjøpsrett. Forkjøpsretten er forhåndsutlyst, konferer med megler for mer informasjon. I henhold til burettslagslova tar dette 5 dager å avklare fra melding om salget er gitt borettslaget ved forhåndsutlysning. Dersom boligen tas på forkjøpsrett løses kjøper fra avtalen.
Overtakelse
Etter nærmere avtale. Overtakelse kan tidligst skje etter at forkjøpsretten for øvrige andelseiere i borettslaget og eventuelt medlemmer av boligbyggelaget er avklart (forkjøpsretten er forhåndsavklart), samt at styrets godkjennelse er avklart.
Boligselgerforsikring
Selger har i forbindelse med salget tegnet boligselgerforsikring levert av Gjensidige.
Boligselgerforsikringen dekker selgers ansvar etter avhendingsloven begrenset oppad til kr 14 millioner. Dersom kjøper oppdager forhold ved eiendommen som hen mener utgjør en mangel ved eiendommen, vil Gjensidige behandle reklamasjonen på vegne av selger. Forsikringsvilkår kan fås ved henvendelse til megler.
Vedlagt salgsoppgaven følger selgers egenerklæringsskjema og tilstandsrapport. Interessenter må sette seg inn i dokumentene før bud inngis.
Boligkjøperforsikring
Innen kontraktsmøtet må kjøper ta stilling til om det ønskes å bestille Boligkjøperpakken gjennom Gjensidige. I denne gunstige pakken er boligen ferdig forsikret og inkluderer rettshjelpsforsikring, også kalt Boligkjøperforsikring. Rettshjelpsforsikring gir trygghet og tilgang på profesjonell juridisk hjelp dersom det oppdages uventede feil eller mangler det første året etter overtagelse. Forsikringsselskapet behandler i så fall ethvert mangelskrav kjøper måtte ha overfor selger.
Boligkjøperpakken inkluderer bygningsforsikring for hus og hytte, innboforsikring, flytteforsikring og dobbel rentedekning - i situasjoner hvor kjøper ikke får solgt nåværende primærbolig.
Kjøper mottar ingen særskilt faktura for Boligkjøperpakken da kostnaden det første året legges til kjøpesummen for boligen. Det gjøres oppmerksom på Krogsveen mottar et honorar for denne formidlingen.
Produktark for Boligkjøperpakken ligger vedlagt i salgsoppgaven.
Dersom ikke boligkjøperpakke ønskes kan kun rettshjelpsforsikring, også kalt boligkjøperforsikring, tegnes særskilt via megler. Rettshjelpsforsikringen varer i 5 år fra overtagelse og leveres gjennom Gjensidige. Ta kontakt med megler for ytterligere informasjon.
Selskap og privatpersoner som driver med kjøp/salg/utvikling som ledd i egen næringsvirksomhet kan ikke tegne boligkjøperpakke eller rettshjelpsforsikring.
Budgivning
Forbrukerinformasjon om budgivning er vedlagt denne salgsoppgaven og er også på vår hjemmeside Krogsveen.no. Alle bud og budforhøyelser må inngis skriftlig. I tillegg må legitimasjon være fremlagt sammen med signatur fra budgiver.
Vi oppfordrer til å gi bud elektronisk via GI BUD-knappen på eiendommens hjemmeside på Krogsveen.no. Da vil samtlige vilkår bli oppfylt.
Eventuelle forhøyelser eller endringer av budet kan bekreftes pr SMS eller på e-post. Vi oppfordrer alltid til å kontakte megler pr. telefon i tillegg da forsinkelser i SMS og e-post kan forekomme.
For at budene skal kunne bli behandlet og videreformidlet skriftlig til alle involverte parter, må alle bud ha en tilstrekkelig lang akseptfrist, jf. eiendomsmeglingsforskriften § 6-3.
Selger må også skriftlig akseptere budet før aksept kan formidles til budgiver. Akseptfrist bør derfor være på minimum 30 minutter, og budforhøyelser må derfor skje i god tid før fristens utløp.
Bud i forbrukerforhold kan uansett ikke settes med kortere frist enn kl. 12.00 første virkedag etter siste annonserte visning. I tillegg kan ikke budet ha forbehold om at det skal holdes hemmelig ovenfor øvrige interessenter. Megler har iht lov om eiendomsmegling ikke anledning til å videreformidle disse budene, og de vil dermed heller ikke bli journalført.
Etter at eiendommen er solgt vil kjøper og selger få tilsendt budjournal. Øvrige budgivere kan få utlevert kopi av budjournalen i anonymisert form.
Hvitvaskingsreglene
I henhold til lov om hvitvasking og terrorfinansiering har megler plikt til å gjennomføre kontrolltiltak overfor kunder, herunder fullmektiger. Dette innebærer bl.a. å bekrefte kunders og reelle rettighetshaveres identitet på bakgrunn av fremvist gyldig legitimasjon eller på annen godkjent måte, samt å innhente opplysninger om kundeforholdets formål og tilsiktede art.
Dersom slike kundetiltak ikke kan gjennomføres, kan megler ikke etablere kundeforholdet eller utføre transaksjonen.
Hvis kjøper ikke bidrar til gjennomføring av kundekontrollen og dette fører til at transaksjonen blir forsinket eller ikke kan gjennomføres, vil dette ansees som mislighold av avtalen og gi selger rettigheter etter avhendingslova kapittel 5. I tilfeller der selger ikke bidrar til gjennomføring av løpende kundekontroll underveis i oppdraget, er det selger som misligholder sine forpliktelser etter avtalen og gi kjøper rettigheter etter avhendingslovens kapittel 4. Partene er selv ansvarlige for eventuelle kostnader og ansvar dette kan medføre. Eiendomsmegleren eller eiendomsmeglingsforetaket kan ikke holdes ansvarlig for de konsekvenser dette vil kunne få for partene eller andre som har interesser i eiendomshandelen.
Kjøper oppfordres til å innbetale kjøpesummen som ikke kommer fra låneinstitusjon i én samlet innbetaling fra egen konto i norsk bank. Megler har plikt til å melde fra til Økokrim om eiendomshandler som fremstår som mistenkelige. Melding sendes Økokrim uten at partene varsles.
Personopplysningsloven
I henhold til personopplysningsloven gjør vi oppmerksom på at interessenter kan bli registrert for videre oppfølging.
Lovanvendelse
Generelle bestemmelser
Salgsoppgaven er basert på de opplysningene selger har gitt til megler, den bygningssakyndiges tilstandsrapport, samt opplysninger innhentet fra kommunen, Kartverket og andre tilgjengelige kilder. Det er viktig at kjøper setter seg grundig inn i alle salgsdokumentene, herunder salgsoppgave, tilstandsrapport og selgers egenerklæring. Kjøper anses kjent med forhold som er tydelig beskrevet i salgsdokumentene, og slike forhold kan ikke påberopes som mangler. Dette gjelder uavhengig av om kjøper har lest dokumentene. Alle interessenter oppfordres til å undersøke eiendommen nøye, gjerne sammen med fagkyndig før bud inngis. Kjøper som velger å kjøpe usett kan ikke gjøre gjeldende som mangel noe han burde blitt kjent med ved undersøkelsen.
Dersom det er behov for avklaringer, anbefaler vi at interessenter rådfører seg med eiendomsmegler eller egne rådgivere før det legges inn bud.
En bolig som har blitt brukt i en viss tid, har vanligvis blitt utsatt for slitasje og skader kan ha oppstått. Slik bruksslitasje må kjøper regne med, og det kan avdekkes enkelte forhold etter overtakelse som nødvendiggjør utbedringer. Normal slitasje og skader som nødvendiggjør utbedring, er innenfor hva kjøper må forvente og vil ikke utgjøre en mangel.
Kjøper og selgers rettigheter og plikter reguleres av avtalen mellom partene, samt informasjonen som har vært tilgjengelig for kjøperen i forbindelse med handelen. Avtalen utfylles av avhendingsloven, og det gjelder ulike avtalevilkår avhengig av om kjøper er forbrukerkjøper eller ikke. Dette er nærmere beskrevet nedenfor.
På grunn av ulike avtalevilkår kan selger vurdere bud fra en som ikke er forbruker, ulikt fra en forbrukers bud. Dersom kjøper ikke er forbruker, er selger sitt mulige mangelsansvar begrenset fordi eiendommen selges "som den er". Selger kan ikke ta «som den er»- forbehold overfor en forbrukerkjøper. Selv et lavere bud fra en som ikke er forbruker kan foretrekkes fordi begrensningen i mulig mangelsansvar kan ha egenverdi for selger. Selger står fritt til å forkaste eller akseptere ethvert bud, og er for eksempel ikke forpliktet til å akseptere høyeste bud.
Budgiver skal i budskjema avgi egenerklæring om budgiver er forbruker eller næringsdrivende/ person som hovedsakelig handler som ledd i næringsvirksomhet. Budgivere får informasjon dersom andre bud er inngitt av en som ikke er forbruker.
Forbrukerkjøp - definisjon
Med forbrukerkjøp menes kjøp av eiendom når kjøperen er en fysisk person som ikke hovedsakelig handler som ledd i næringsvirksomhet.
Forbruker – avtalevilkår
Eiendommen har en mangel dersom den ikke er i samsvar med kravene som følger av avtalen, eller det foreligger brudd på bestemmelsene i avhendingsloven §§ 3-2 til 3-8. Hvis eiendommen ikke er i samsvar med det kjøperen må kunne forvente ut ifra alder, type og synlig tilstand, kan det være grunnlag for mangelskrav. Det samme gjelder hvis det er holdt tilbake eller gitt uriktige opplysninger om eiendommen. Dette gjelder likevel bare dersom man kan gå ut ifra at det virket inn på avtalen at opplysningen ikke ble gitt eller at mangelskravet ikke blir rettet i tide på en tydelig måte.
Boligen kan ha en mangel etter avhendingsloven § 3-3 andre ledd, dersom det er avvik mellom opplyst og faktisk innvendig areal, forutsatt at avviket er på 2% eller mer og minimum 1 kvm.
Ved beregning av et eventuelt prisavslag eller erstatning må kjøper selv dekke tap/kostnader opptil et beløp på kr 10 000 (egenandel).
Ikke-forbruker (næringsdrivende) – definisjon
Hvis kjøper er en juridisk person, eller en fysisk person som hovedsakelig handler som ledd i næringsvirksomhet, vil kjøpet ikke anses som et forbrukerkjøp.
Ikke-forbruker – avtalevilkår
Eiendommen har en mangel dersom den ikke er i samsvar med kravene som følger av avtalen.
Eiendommen selges «som den er», og selgers ansvar utover det konkret avtalte er da begrenset etter avhendingsloven § 3-9, første ledd andre setning.
Avhendingsloven § 3-3 andre ledd fravikes, og hvorvidt boligens arealsvikt utgjør en mangel vurderes etter avhendingsloven § 3-8.
Informasjon om kjøpers undersøkelsesplikt, herunder oppfordringen om å undersøke eiendommen nøye, gjelder også for kjøpere som ikke anses som forbrukere.
Det forutsettes at hjemmel overføres til kjøper. Hvis kjøper ikke ønsker hjemmelsoverføring av eiendommen, må det tas forbehold om dette i budet.
Meglers vederlag
Meglers vederlag betales av selger og er avtalt til:
Fastpris: 60 000,-
Vederlag:
Foto kr 4 400,00
Kunderabatt SELGER; Rabatt, markedspakke kr -9 900,00
Markedsføringspakke inkl. Smartannonsering & Hjem.no kr 29 900,00
Oppgjør kr 8 900,00
Tilrettelegging inkl. alle visninger m/påmeldte (Forøvrig kr. 3500,-) kr 12 000,00
Utlegg:
Eierskiftegebyr forretningsfører - VBBL kr 5 995,00
Innhenting av informasjon forretningsfører kr 4 500,00
Innhenting av offentlige opplysninger kr 3 500,00
Tinglysing sikring kr 545,00
Andre utgifter:
AX tilstandsrapport leilighet kr 10 750,00
Boligselgerforsikring Gjensidige Andel/Aksje kr 6 994,00
Vi er opptatt av verdiskapning, og har knyttet til oss samarbeidspartnere som skal sikre våre kunder de beste produkter og tjenester;
• I forbindelse med forberedelse av salget, innhenter vi informasjon om eiendommen hovedsakelig fra vår samarbeidspartner Ambita.
• Gjensidige leverer boligselgerforsikring og tilbyr bygningsforsikring
• Boligkjøperforsikring leveres av Hiscox og med Sedgwick som skadebehandler, og er formidlet gjennom Gjensidige.
• BN bank tilbyr finansieringsløsninger
• Vår avdeling Krogsveen Pluss tilbyr flyttetjenester som utvask, visningsvask, lager, tømming og transport av flyttelass, i tillegg til å formidle kontakt med Flip for overflateoppussing.
• I forbindelse med overtagelse av eiendommen tilbyr Overo avtale om strøm, alarm og bredbånd.
• Krogsveen er, sammen med øvrige bransjeaktører, medeier i den digitale annonseringsplattformen Hjem som eies av Bomega AS.
Opplysninger om oppdraget
Oppdragsnummer 30-0033/26
Eiendomsmegler Krogsveen AS, avd. Moss
Kongens gate 23, 1530, MOSS
950 007 613
Oppdragets KR-kode KR30.2633
Dato
Sist oppdatert: 04. mars 2026 kl. 11:05
Dokumenter
Dokumenter
PDF – 940 KB
PDF – 2 MB
PDF – 1 MB
PDF – 312 KB
PDF – 29 KB
PDF – 127 KB
PDF – 392 KB
Område
Legg til steder som er viktige for deg
Visning
For å delta på visning, ber vi om at du melder deg på. Da sikrer vi at du får nødvendig informasjon og at det er satt av tilstrekkelig med tid. Kontakt megler dersom annet tidspunkt ønskes.
Husk å lese salgsoppgaven før visningen, så du stiller forberedt. NB. Visning utgår dersom det ikke er noen påmeldte.
Ønsker du kun å bli holdt orientert, kan du fra eiendommens hjemmeside få varsel om solgtpris, eller kontakte megler.
Lurer du på noe?
Unngå doble boligrenter
Vi tilbyr gunstig forsikring.
Vurderer du utleie?
Få et tilbud fra Utleie KrogsveenHva koster lånet?
Sjekk estimert lånekostnadVil du varsles om lignende boliger?
Ved å lagre ditt boligsøk hos oss får du beskjed når vi har en bolig som ligner denne, før den legges ut på markedet!

