Håkon Jarls gate 2
2 190 000 kr
21 m²
Solgt

Presenteres av
Jan Vidar LysbakkenElgeseter/Øya
Lekker leilighet renovert i 23/24 med svært sentral beliggenhet | Toppetasje med heis | Gangavstand til alt i Midtbyen
Prisantydning
2 190 000 krAndel fellesgjeld
282 387 krOmkostninger
11 040 krTotalpris
2 483 427 kr
Pris
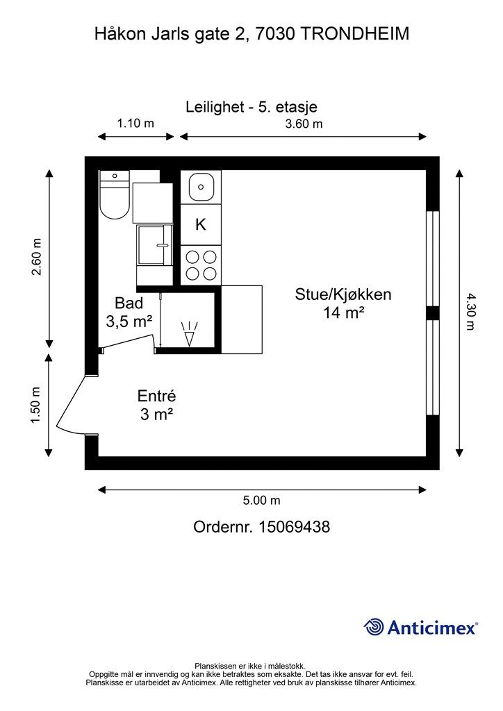
Bruksareal
24 m²BRA-I (internt bruksareal)
21 m²BRA-E (eksternt bruksareal)
3 m²
Areal
Etasje
5Byggeår
1965Bad
1 badType
AndelsleilighetEierform
AndelFasiliteter
HeisFellesutgifter
2 424 krEnergimerke
Rød E
Nøkkelinfo
Unngå doble boligrenter
Vi tilbyr gunstig forsikring.
Vurderer du utleie?
Få et tilbud fra Utleie KrogsveenHva koster lånet?
Sjekk estimert lånekostnadBeskrivelse
Kort om eiendommen
Velkommen til Håkon Jarls gate 2 - en delikat og tiltalende leilighet rett ved Samfundet, Marinen, Øya og alt av sentrale fasiliteter i Midtbyen.
Verdt å nevne
Leiligheten ble renovert i 2023/2024 av fagpersoner, og holder gjennomgående god og lekker standard
5. etg. påbygget ca 1990
Nytt el-anlegg med nye kurser og sikringer i 2023
Kjøkken og bad fra 2024. Badet er blant annet flislagt med varmekabel
Varmtvannsbereder på 56L fra 2024
Medfølgende loftsbod som ligger i nærheten av leiligheten
Heis i bygget
Leiligheten har en svært sentral beliggenhet på Øyasiden, med utsikt mot Samfundet, Nidelva og Marinen
Gangavstand til sentrum, studiesteder, St.Olav, idrettsanlegg med mere
Dagligvare (Joker) og Dromedar kaffebar i første etasje i bygget
Område
Legg til steder som er viktige for deg
På flyttefot? Tenk kjøp og salg samtidig.
Få din egen rådgiver gjennom hele kjøps- og salgsprosessen. Det starter med en verdivurdering.
Unngå doble boligrenter
Vi tilbyr gunstig forsikring.
Vurderer du utleie?
Få et tilbud fra Utleie KrogsveenHva koster lånet?
Sjekk estimert lånekostnadVil du varsles om lignende boliger?
Ved å lagre ditt boligsøk hos oss får du beskjed når vi har en bolig som ligner denne, før den legges ut på markedet!
På flyttefot? Slik gjør vi det enklere for deg
Skreddersydd flyttepakke
Vi fikser håndverkere, vask, pakking, lagring og transport, og legger ut for utgiftene underveis.
Hjelp med både kjøp og salg
Hos oss har du din egen rådgiver gjennom hele kjøps- og salgsprosessen.
Hjelp til finansiering
Vårt samarbeid med BN Bank sikrer deg rask og løsningsorientert hjelp, til konkurransedyktige betingelser.

