Gartnerveien 24
7 980 000 kr
301 m²
5 soverom
Solgt

Nærsnes
Spennende enebolig med fantastisk utsikt - 5 soverom - 3 Bad - oppussingsbehov
Prisantydning
7 980 000 krOmkostninger
220 490 krTotalpris
8 200 490 kr
Pris
Bruksareal
339 m²BRA-I (internt bruksareal)
301 m²BRA-E (eksternt bruksareal)
38 m²TBA (terrasse-balkongareal)
8 m²
Areal
Byggeår
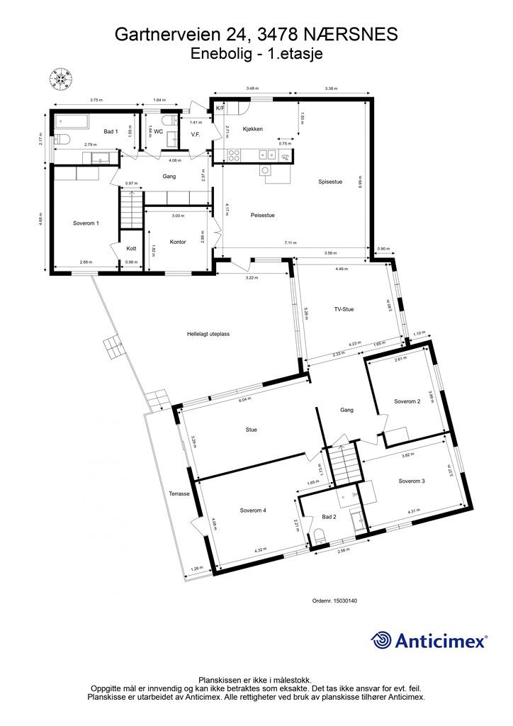
1981Soverom
5 soveromBad
3 badTomteareal
1 216 m² (festet)Type
Enebolig - FrittliggendeEierform
EietEnergimerke
Oransje F
Nøkkelinfo
Unngå doble boligrenter
Vi tilbyr gunstig forsikring.
Vurderer du utleie?
Få et tilbud fra Utleie KrogsveenHva koster lånet?
Sjekk estimert lånekostnadBeskrivelse
Kort om eiendommen
Velkommen til Gartnerveien 24!
Stor familiebolig beliggende i et barnevennlig og rolig område på Nærsnes. Boligen har original standard så det er behov for oppussing. Totalt 5 soverom og 3 stuer så her er det god plass for hele familien. Det er kort vei til barnehage, barneskole og butikk, noe som gjør hverdagen mer praktisk for familier. Kort vei til fjorden med kyststier og til marka med flott turterreng samt skiløyper om vinteren. Nærsnes er et meget idyllisk og flott tettsted langs Oslofjorden. Få min kjøring til Slemmestad sentrum og Rortunet kjøpesenter.
- Utsikt over Oslofjorden
- Dobbel garasje
- Praktisk planløsning
- Stor og koselig hage
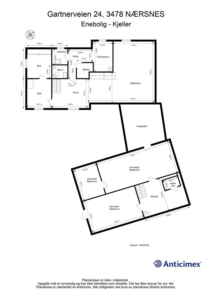
- Badstue i kjelleren
- Varmepumpe med luft/luft i spisestuen
- 5 soverom
- 3 bad, eget vaskerom og toalettrom
- 4 stuer to av dem peis
Område
Legg til steder som er viktige for deg
På flyttefot? Tenk kjøp og salg samtidig.
Få din egen rådgiver gjennom hele kjøps- og salgsprosessen. Det starter med en verdivurdering.
Unngå doble boligrenter
Vi tilbyr gunstig forsikring.
Vurderer du utleie?
Få et tilbud fra Utleie KrogsveenHva koster lånet?
Sjekk estimert lånekostnadVil du varsles om lignende boliger?
Ved å lagre ditt boligsøk hos oss får du beskjed når vi har en bolig som ligner denne, før den legges ut på markedet!

