Mosserødveien 65B
2 995 000 kr
81 m²
3 soverom
Solgt

Mosserød
Koselig enebolig med sydvendt uteplass - Barnevennlig og rolig beliggende
Prisantydning
2 995 000 krOmkostninger
85 910 krTotalpris
3 080 910 kr
Pris
Bruksareal
85 m²BRA-I (internt bruksareal)
81 m²BRA-E (eksternt bruksareal)
4 m²TBA (terrasse-balkongareal)
26 m²
Areal
Byggeår
1949Soverom
3 soveromBad
1 badType
Enebolig - FrittliggendeEierform
EierseksjonEnergimerke
Gul G
Nøkkelinfo
Unngå doble boligrenter
Vi tilbyr gunstig forsikring.
Vurderer du utleie?
Få et tilbud fra Utleie KrogsveenHva koster lånet?
Sjekk estimert lånekostnadBeskrivelse
Kort om eiendommen
Krogsveen v/Vindum ønsker velkommen til Mosserødveien 65B!
* Koselig og sjarmerende liten enebolig
* Boligen er innredet slik at man har alt på en flate med tillegg av innredet 2. etasje
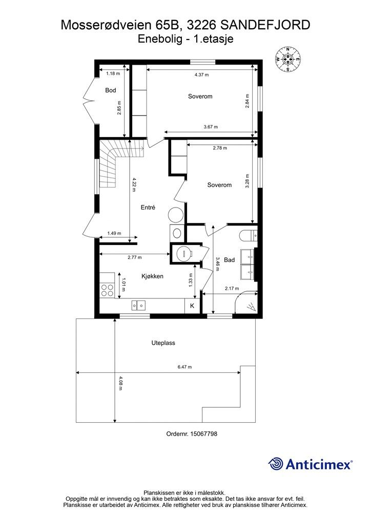
* Det er i hovedetasjen innredet med entrè, 2 soverom (alternativt en stue og ett soverom), kjøkken og bad. I tillegg er det i andre etasjen innredet med stue og soverom/kontor samt kott/bod
* Boligen er eldre og det har vært fokus på å beholde boligens sjarme og stil, noe som er fint gjennomført
* Uteplassen som boligen disponerer er sydvendt og godt skjermet mot innsyn. Her er god plass til utemøblement og med utepeis er alt lagt til rette for en rolig dag i solveggen!
* Eiendommen holder alt av eget vedlikehold og er ikke tilknyttet sameiet mht driftsutgifter og fellesutgifter. Anbefales besiktiget
Område
Legg til steder som er viktige for deg
På flyttefot? Tenk kjøp og salg samtidig.
Få din egen rådgiver gjennom hele kjøps- og salgsprosessen. Det starter med en verdivurdering.
Unngå doble boligrenter
Vi tilbyr gunstig forsikring.
Vurderer du utleie?
Få et tilbud fra Utleie KrogsveenHva koster lånet?
Sjekk estimert lånekostnadVil du varsles om lignende boliger?
Ved å lagre ditt boligsøk hos oss får du beskjed når vi har en bolig som ligner denne, før den legges ut på markedet!

