Straumebuktvegen 23
1 990 000 kr
63 m²
3 soverom
Komplett salgsoppgave

Vrådal Panorama
Duohytte med flott utsikt og meget gode solforhold - Stor terrasse og utebod
Prisantydning
1 990 000 krOmkostninger
60 790 krTotalpris
2 050 790 kr
Pris
Bruksareal
65 m²BRA-I (internt bruksareal)
63 m²BRA-E (eksternt bruksareal)
2 m²TBA (terrasse-balkongareal)
59 m²
Areal
Etasje
2Byggeår
2005Soverom
3 soveromBad
1 badType
Fritidseiendom på fjelletEierform
EierseksjonEnergimerke
Oransje D
Nøkkelinfo
Vurderer du utleie?
Få et tilbud fra Utleie KrogsveenHva koster lånet?
Sjekk estimert lånekostnadBeskrivelse
Kort om eiendommen
Krogsveen v/Vindum ønsker velkommen til Straumebuktvegen 23 i Vrådal – en helårsdestinasjon med ekte hytteglede!
* Hyggelig og funksjonell duohytte med praktisk planløsning og nydelig utsikt mot Mellomvatn og flotte fjellkjeder
* Lettstelt og moderne hytte med tre soverom, bad, kjøkken med plass til spisebord og stue med utgang til terrasse
* Stor, solrik terrasse som går rundt tre av hytteveggene – her kan du enkelt følge solen hele dagen
* Utebod på terrassen gir både naturlig skjerming mot naboen og god lagringsplass
* Hytten er utstyrt med vedovn, varmekabler og varmepumpe – for komfort og brukervennlighet året rundt
* Sentralt, men rolig beliggende på feltet – perfekt kombinasjon av nærhet og fred
* Gode utleiemuligheter for den som ønsker inntekt når hytten ikke er i bruk
Innhold og byggemåte
Innhold og byggemåte
Eiendommen
Straumebuktvegen 23, 3853 VRÅDAL
Kommunenummer 4028, gårdsnummer 1, bruksnummer 89, seksjonsnummer 8, ideell andel 1/1
Innhold
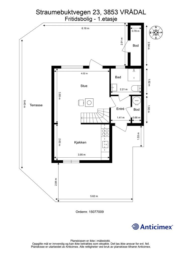
Totalt bruksareal BRA: 65 kvm
BRA-i:
1. etasje 36 kvm: Entre, stue, kjøkken, bad og bod.
2. etasje 27 kvm: Gang og tre soverom.
BRA-e:
1. etasje 2 kvm: Bod med utvendig adkomst.
Åpent areal:
1. etasje 59 kvm: Terrasseområde.
Det gjøres oppmerksom på at vegg mellom bod og hoveddel er skjønnsmessig oppmålt. Avvik kan forekomme.
Arealet på lagringshems måles til 6 m2 (ALH), men grunnet lav takhøyde er ingen deler av arealet måleverdig som bruksareal.
Vedlagte plantegninger er ikke målbare. De oppgitte arealer er hentet fra rapport med befaringsdato 05.11.2025, utført av Anticimex Sandefjord AS.
Arealet på lagringshems måles til 6 m2 (ALH), men grunnet lav takhøyde er ingen deler av arealet måleverdig som bruksareal.
Utvendig bod er oppmålt til 2 m2 (BRA-e). Det gjøres oppmerksom på at areal av yttervegg mellom hoveddel og utvendig bod er skjønnsmessig oppmålt, og avvik kan derfor forekomme.
Byggemåte
Selger har fått utarbeidet en tilstandsrapport, dvs. en teknisk gjennomgang av boligen hvor eventuelle avvik, risiko for kjøper og prisoverslag for hva som bør gjøres av oppgradering, er skissert. Se særskilt TGIU (tilstandsgrad ikke undersøkt), samt TG2 og TG3 som viser hva som er avvik fra boligens normale slitasje, alder og type, eller som bør/må utbedres. Rapporten og selgers egenerklæring er en del av salgsoppgaven og må leses nøye før bud inngis. Kjøper overtar ansvaret for de opplysninger som fremkommer av salgsdokumentasjonen, og kan ikke gjøre gjeldende som mangel noe som burde vært kjent eller som ikke kan anses å ha betydning for avtalen.
Hytta er oppført i 2005 og er iht. tilstandsrapporten oppført på støpt betong mot grunn. Plate på mark. Yttervegger i laftet tømmer. Tak i trekonstruksjon. Saltak tekket med torv. Vinduer og terrassedør med to-lags isolerglass. Ytterdør i trekonstruksjon med isolerglassfelt.
Sammendrag av boligens tilstandsgrad:
TG1 : 62 % | TG2 : 26 % | TG3 : 0 % | TGIU : 12 %
I rapportens sammendrag fremkommer det som takstmannen mener kjøper må være særskilt oppmerksom på utover normal elde og slitasje, herunder TG 2:
* Bad: Tilluftsspalte er ikke etablert. Bomlyd under enkelte gulvfliser. Noen sprukne fliser og flisfuger. Tettesjiktet har påløpt alder. Og ikke tilstrekkelig tettesjikt på veggflater. Gulvet er tilnærmet flatt. Stedvis motfall rundt sluk. Nivåforskjell døråpning - hovedsluk er ikke tilstrekkelig. Det kan ikke verifiseres at det er etablert membranoppkant ved dør.
* Gulvflater øvrige rom: bomlyd under enkelte gulvfliser og noen sprukne fliser og løse flis og flisfuger. Stedvis knirk og sprekker mellom gulvbord. Gulvbord på soverom 3 er ikke fagmessig avsluttet mot yttervegg.
* Innerdører har kontakt med dørterskel/dørkarm.
* Trappen har åpninger på mer enn 0,10 meter. Trappen har ikke håndløper på begge sider.
* Merkbare skjevheter i 2.etasjen.
* Varmtvannsberederen har påløpt alder.
* Elektrisk anlegg uten dokumentasjon.
* Det er observert vridninger på bjelker som utgjør etasjeskiller.
* Knotteplast/takgjennomføring tilknyttet skorstein har behov for utbedringer. Knotteplast som fungerer som underlag for torv har enkelte skader.
* Terrasse: Noe skjevheter i konstruksjonen. Stedvise råteskader. Skjevheter i terrassens fundamenter. Enkelte trebjelker som har direkte kontakt med jord.
Tilstandsrapporten følger vedlagt i salgsoppgaven for utfyllende informasjon. Interessenter må sette seg inn i denne før bud inngis.
Standard
Dette er den perfekte hytten for de som søker en helårshytte, hvor man har aktiviteter for alle aldre, hele året!
Her er alt fra bading, fiske, golf, turområder, alpint, skating og mye mer!
Hytten er praktisk og godt utnyttet. Den har en fin og funksjonell planløsning. Ubehandlede tømmervegger, slik at man kan sette eget preg på hytten. Tidløse flisevalg med varmekabler i gulv.
Beliggende i første rekke til vannet og de store terrasseområdene, hele 59 kvm, hvor man kan nyte både sol og utsikt, er ett pluss for denne hytta!
Man entrer hytta fra overbygget inngangsparti. Inn i gangen er det direkte adkomst til bod/teknisk rom og bad.
Badet er innredet med dusjkabinett, servant, toalett og opplegg til vaskemaskin. Over bod og bad er det hems med god lagringsplass.
Videre inn i hytten entrer man stuen. Den er koselig innredet og det er satt inn et stort vindu for å kunne nyte den flotte utsikten til Mellomvatn og vakre fjellkjeder!
Vedovn for kjøligere årstider, i tillegg til varmepumpe. Energivennlig og funksjonelt. De er utgang til terrassen fra stuen, og den strekker seg rundt hyttens tre sider, slik at man kan flytte seg med sol og vind!
Kjøkkenet ligger i tilknytning til stuen og har fin plass til spisestuen. Kjøkkenet er innredet med integrerte hvitevarer fra byggeår og bruksslitasje må påregnes. Komfyr, platetopp, kjøleskap/fryser, kjøkkenvifte og oppvaskmaskin følger handelen. Dette er et funksjonelt og godt arbeidskjøkken med fin plass til sosiale samlinger.
Videre opp i 2. etasje er det innredet med gang og 3 soverom.
Praktisk med utebod i bakkant av hytten med gode lagringsmuligheter. Den skjermer også fint mot nabo, slik at man kan nyte usjenerte omgivelser mot åpne friarealer og vannet.
Parkering ved hytteveggen, hvor det er montert elbil lader.
Løsøre og tilbehør
Vi viser til liste fra Norges Eiendomsmeglerforbund som gjelder fra 01.01.2020 angående løsøre og tilbehør.
Hytten kan selges møblert, etter avtale med selger.
Oppvarming
Vedovn i stue.
Feiervesenet opplyser om følgende: "Fekk tilbod om feiing og tilsyn 28.01.2019, ikkje utført då det ikkje var nokon til stades. Ingen merknader eller avvik registrert på eigendommane då det ikkje har vore utført noko der av oss." Ny eier oppfordres til å bestille feiing og tilsyn.
Varmepumpe i stuen, montert i 2022.
Varmekabler i 1. etasje.
For øvrig elektrisk med panelovner (de er ikke montert, men står i boden og medfølger handelen) Dersom beboelsesrom ikke har vegg- eller fastmonterte varmekilder ved visning, følger dette heller ikke med.
Ferdigattest/brukstillatelse
Det foreligger ferdigattest på eiendommen datert 11.5.2006. Denne kan fås ved henvendelse til megler.
Ferdigattesten omfatter ikke bytte av vindu i stuen, en fasadeendring, som er søknadspliktig, samt utebod.
Iflg kommunen er ferdigattest notert med feil seksjonsnr. så den som er angitt for snr 12 gjelder snr 7 og 8 (altså denne seksjonen). Dette er bekreftet til megler pr mail fra kommunen.
Kjøper overtar eiendommen slik den fremstår på visning.
Tinglyste heftelser og rettigheter
Hytta overdras fri for pengeheftelser .
Sameiet har legalpant for krav mot sameieren som følger av sameieforholdet iht. eierseksjonsloven § 31. Pantet er begrenset oppad til 2G, (G = folketrygdens grunnbeløp).
Det er ingen tinglyste servitutter på eiendommen.
Eventuell adgang til utleie
Fritidseiendommen har ikke separat utleiedel. Det vil normalt være anledning til utleie av hele eiendommen eller enkeltrom, såfremt utleiearealet er bygningsmessig godkjent for varig opphold.
Beliggenhet og tomteforhold
Beliggenhet og tomteforhold
Beliggenhet
Vrådal Panorama Skisenter er et flott og attraktivt helårs feriested som har blitt veldig populært de siste årene. Her har man masse aktivitetstilbud sommer som vinter. Om sommeren bys det på vakker natur, flotte turområder i fjellet med merkede turer (korte og lange), 9 hulls golfbane med servering, nydelig opparbeidet badestrand- og brygge med båtplasser og vannleker for ungdommen (trampoline og klatreborg), lekeplass med både klatrestativ, hoppepute, skateramp, huskestativ, fotballøkke og dammer med turstier.
Vinterstid bys det på oppkjørte langrennsløyper på fjellet, korte og lange turer, alt etter ønske og form! Det er 18 nedfarter i slalomanlegget med 8 heiser inkl. 8-seters stolheis. Her er det sjelden kø.
Kafeteria og bar på området med tidvise aktivitetstilbud for store og små.
Vrådal har et veldig hyggelig og inkluderende miljø hvor man kan slappe av og bare nyte roen, naturen og de aktiviteter man ønsker. Velkommen
Adkomst
Fra Vrådal sentrum kjører man mot Vrådal Panorama og tar inn her til Alpinanlegget fra hovedveien. Følg veien over broen og rett frem.
Deretter tar man 1. vei opp til høyre, mot alpinanlegget.
Hytten ligger inn første stikkvei på høyre hånd og eiendommen ligger som hytte nr. 2 på høyre hånd etter avkjøringen.
Hytten er skiltet med Krogsveen Til Salgs skilt.
Beskrivelse av tomt
Eiet tomt på 9 083 kvm som tilhører sameiet. Tomten er fellesareal.
Tomten er opparbeidet med gruset bilvei til hyttene og parkering i forbindelse med disse. For øvrig naturtomt som er bestående av naturlig vegetasjon. Hver enhet disponerer sin naturlige del og uteareal. Dog det er ingen skriftlige avtaler på dette.
Hytten ligger flott til på feltet i fremste rekke mot vannet og nyter en uforstyrret, flott utsikt til vannet og fjellkjedene!
Hytten har store terrasse områder mot Vråvatn og alpinanlegget. Man kan flytte seg med solen og finner alltids en lun plass, hvor man kan nyte rolige dager.
Det er utgang til terrassen fra stuen. På terrassen bak, mot naboen er det bygget en utebod, noe som er både praktisk for lagring, le og innsyn.
Fra hytta er det tusleavstand til sandstrand med badeleker på vannet og med brygge. Mulighet for å leie båtplass, om man ønsker det.
Her bor man svært sentralt til med kort avstand til alpinanlegget, skiløyper, turområder og golfbanen, hvor det er hyggelig kafe med servering. Vintersesongen er det ofte aktiviteter på puben, for store og små!
Parkering
Parkering ved hytteveggen med montert elbil lader, som følger handelen.
Vei, vann og avløp
Eiendommen har adkomst via privat vei med felles vedlikeholdsansvar for sameiet.
Eiendommen er tilknyttet kommunalt ledningsnett via private stikkledninger. Sameiet er ansvarlig for private stikkledninger til bygningen.
Regulerings-og arealplaner
Eiendommen er regulert til fritidsformål i henhold til reguleringsplan med tilhørende reguleringsbestemmelser "Vrådal skisenter delområdene B7, B8, B9 OG B11 vedtatt 5.9.2002. Sist revidert 9.11.2006.
Utsnitt av plan med tilhørende bestemmelser kan fås ved henvendelse til megler.
Området er under utbygging.
Økonomi
Økonomi
Kommunale utgifter
Kommunale avgifter er kr 13 212,- for inneværende år. I dette inngår gebyr for vann, avløp, renovasjon og feiing/tilsyn.
Felleskostnad til Vrådal panorama kr 4.790,-.
Nåværende eier har et strømforbruk på ca 2.100 kwh. pr. år. Det er ikke tegnet Norgespris.
Hytten har en årlig forsikringspremie på kr 4.700,-.
Hytta er tilknyttet telefiber 1000/1000 kr 720,-pr mnd.
Brøyting av gårdsplass bestilles i App, etter gjeldende satser.
Velavgift er kr 300,- pr. år. Valgfritt.
Frivillig medlemskap i Velforeningen Panorama. Vrådal Panorama Velforening er en sammenslutning av hytteeiere i Vrådal Panorama Skisenter. Hensikten med velforeningen er at hytteeiere i fellesskap skal skape et bedre og tryggere nærmiljø i vårt område. Kontakt velforeningen for mer informasjon; velforening.vp@gmail.com
Utgiftene er basert på nåværende eiers forbruk og avtaler.
Formuesverdi
Formuesverdi for 2023 var kr 680 943,- ifølge skatteetaten.
Omkostninger
1 990 000,00 Prisantydning
Omkostninger
49 750,00 Dokumentavgift til staten (2,5% av kjøpesum)
9 950,00 Gjensidige Boligkjøperpakke (valgfri)
545,00 Tinglysing panterettsdokument
545,00 Tinglysing skjøte
--------------------------------------------------------
60 790,00 Omkostninger totalt
--------------------------------------------------------
2 050 790,00 Totalpris inkl. omkostninger
--------------------------------------------------------
Totalpris inkl. omkostninger forutsetter kjøp til prisantydning.
Det tas forbehold om endringer i avgifter og gebyrer.
Tilbud om lånefinansiering
Megler formidler gjerne kontakt med rådgiver hos vår samarbeidspartner BN Bank. De har konkurransedyktige betingelser samt rask og løsningsorientert behandling av din lånesøknad. Krogsveen mottar et honorar for denne formidlingen.
Betalingsbetingelser
Kjøpesum inkludert omkostninger, samt pantedokument tilknyttet eventuelt lån, skal være disponibelt hos megler 2 virkedager før overtagelsen.
Annen viktig informasjon
Annen viktig informasjon
Eier
Anders Niklas Thornberg og Charlotte Mari Thornberg
Konsesjon
Eiendommen er ikke konsesjonspliktig, men det er boplikt i Kviteseid kommune. For at eiendommen skal kunne overskjøtes må kjøper signere på egenerklæring om konsesjonsfrihet om at boplikten ikke gjelder for denne eiendommen.
Overtakelse
Etter nærmere avtale.
Boligselgerforsikring
Det gjøres oppmerksom på at selger ikke har tegnet boligselgerforsikring som dekker selgers ansvar etter avhendingsloven. Likevel foreligger selgers egenerklæring og godkjent tilstandsrapport som interessenter må sette seg inn i før bud inngis. Eventuelle reklamasjoner må rettes direkte til selger.
Boligkjøperforsikring
Innen kontraktsmøtet må kjøper ta stilling til om det ønskes å bestille Boligkjøperpakken gjennom Gjensidige. I denne gunstige pakken er boligen ferdig forsikret og inkluderer rettshjelpsforsikring, også kalt Boligkjøperforsikring. Rettshjelpsforsikring gir trygghet og tilgang på profesjonell juridisk hjelp dersom det oppdages uventede feil eller mangler det første året etter overtagelse. Forsikringsselskapet behandler i så fall ethvert mangelskrav kjøper måtte ha overfor selger.
Boligkjøperpakken inkluderer bygningsforsikring for hus og hytte, innboforsikring, flytteforsikring og dobbel rentedekning - i situasjoner hvor kjøper ikke får solgt nåværende primærbolig.
Kjøper mottar ingen særskilt faktura for Boligkjøperpakken da kostnaden det første året legges til kjøpesummen for boligen. Det gjøres oppmerksom på Krogsveen mottar et honorar for denne formidlingen.
Produktark for Boligkjøperpakken ligger vedlagt i salgsoppgaven.
Dersom ikke boligkjøperpakke ønskes kan kun rettshjelpsforsikring, også kalt boligkjøperforsikring, tegnes særskilt via megler. Rettshjelpsforsikringen varer i 5 år fra overtagelse og leveres gjennom Gjensidige. Ta kontakt med megler for ytterligere informasjon.
Selskap og privatpersoner som driver med kjøp/salg/utvikling som ledd i egen næringsvirksomhet kan ikke tegne boligkjøperpakke eller rettshjelpsforsikring.
Budgivning
Forbrukerinformasjon om budgivning er vedlagt denne salgsoppgaven og er også på vår hjemmeside Krogsveen.no. Alle bud og budforhøyelser må inngis skriftlig. I tillegg må legitimasjon være fremlagt sammen med signatur fra budgiver.
Vi oppfordrer til å gi bud elektronisk via GI BUD-knappen på eiendommens hjemmeside på Krogsveen.no. Da vil samtlige vilkår bli oppfylt.
Eventuelle forhøyelser eller endringer av budet kan bekreftes pr SMS eller på e-post. Vi oppfordrer alltid til å kontakte megler pr. telefon i tillegg da forsinkelser i SMS og e-post kan forekomme.
For at budene skal kunne bli behandlet og videreformidlet skriftlig til alle involverte parter, må alle bud ha en tilstrekkelig lang akseptfrist, jf. eiendomsmeglingsforskriften § 6-3.
Selger må også skriftlig akseptere budet før aksept kan formidles til budgiver. Akseptfrist bør derfor være på minimum 30 minutter, og budforhøyelser må derfor skje i god tid før fristens utløp.
Bud i forbrukerforhold kan uansett ikke settes med kortere frist enn kl. 12.00 første virkedag etter siste annonserte visning. I tillegg kan ikke budet ha forbehold om at det skal holdes hemmelig ovenfor øvrige interessenter. Megler har iht lov om eiendomsmegling ikke anledning til å videreformidle disse budene, og de vil dermed heller ikke bli journalført.
Etter at eiendommen er solgt vil kjøper og selger få tilsendt budjournal. Øvrige budgivere kan få utlevert kopi av budjournalen i anonymisert form.
Hvitvaskingsreglene
I henhold til lov om hvitvasking og terrorfinansiering har megler plikt til å gjennomføre kontrolltiltak overfor kunder, herunder fullmektiger. Dette innebærer bl.a. å bekrefte kunders og reelle rettighetshaveres identitet på bakgrunn av fremvist gyldig legitimasjon eller på annen godkjent måte, samt å innhente opplysninger om kundeforholdets formål og tilsiktede art.
Dersom slike kundetiltak ikke kan gjennomføres, kan megler ikke etablere kundeforholdet eller utføre transaksjonen.
Hvis kjøper ikke bidrar til gjennomføring av kundekontrollen og dette fører til at transaksjonen blir forsinket eller ikke kan gjennomføres, vil dette ansees som mislighold av avtalen og gi selger rettigheter etter avhendingslova kapittel 5. I tilfeller der selger ikke bidrar til gjennomføring av løpende kundekontroll underveis i oppdraget, er det selger som misligholder sine forpliktelser etter avtalen og gi kjøper rettigheter etter avhendingslovens kapittel 4. Partene er selv ansvarlige for eventuelle kostnader og ansvar dette kan medføre. Eiendomsmegleren eller eiendomsmeglingsforetaket kan ikke holdes ansvarlig for de konsekvenser dette vil kunne få for partene eller andre som har interesser i eiendomshandelen.
Kjøper oppfordres til å innbetale kjøpesummen som ikke kommer fra låneinstitusjon i én samlet innbetaling fra egen konto i norsk bank. Megler har plikt til å melde fra til Økokrim om eiendomshandler som fremstår som mistenkelige. Melding sendes Økokrim uten at partene varsles.
Personopplysningsloven
I henhold til personopplysningsloven gjør vi oppmerksom på at interessenter kan bli registrert for videre oppfølging.
Lovanvendelse
Generelle bestemmelser
Salgsoppgaven er basert på de opplysningene selger har gitt til megler, den bygningssakyndiges tilstandsrapport, samt opplysninger innhentet fra kommunen, Kartverket og andre tilgjengelige kilder. Det er viktig at kjøper setter seg grundig inn i alle salgsdokumentene, herunder salgsoppgave, tilstandsrapport og selgers egenerklæring. Kjøper anses kjent med forhold som er tydelig beskrevet i salgsdokumentene, og slike forhold kan ikke påberopes som mangler. Dette gjelder uavhengig av om kjøper har lest dokumentene. Alle interessenter oppfordres til å undersøke eiendommen nøye, gjerne sammen med fagkyndig før bud inngis. Kjøper som velger å kjøpe usett kan ikke gjøre gjeldende som mangel noe han burde blitt kjent med ved undersøkelsen.
Dersom det er behov for avklaringer, anbefaler vi at interessenter rådfører seg med eiendomsmegler eller egne rådgivere før det legges inn bud.
En bolig som har blitt brukt i en viss tid, har vanligvis blitt utsatt for slitasje og skader kan ha oppstått. Slik bruksslitasje må kjøper regne med, og det kan avdekkes enkelte forhold etter overtakelse som nødvendiggjør utbedringer. Normal slitasje og skader som nødvendiggjør utbedring, er innenfor hva kjøper må forvente og vil ikke utgjøre en mangel.
Kjøper og selgers rettigheter og plikter reguleres av avtalen mellom partene, samt informasjonen som har vært tilgjengelig for kjøperen i forbindelse med handelen. Avtalen utfylles av avhendingsloven, og det gjelder ulike avtalevilkår avhengig av om kjøper er forbrukerkjøper eller ikke. Dette er nærmere beskrevet nedenfor.
På grunn av ulike avtalevilkår kan selger vurdere bud fra en som ikke er forbruker, ulikt fra en forbrukers bud. Dersom kjøper ikke er forbruker, er selger sitt mulige mangelsansvar begrenset fordi eiendommen selges "som den er". Selger kan ikke ta «som den er»- forbehold overfor en forbrukerkjøper. Selv et lavere bud fra en som ikke er forbruker kan foretrekkes fordi begrensningen i mulig mangelsansvar kan ha egenverdi for selger. Selger står fritt til å forkaste eller akseptere ethvert bud, og er for eksempel ikke forpliktet til å akseptere høyeste bud.
Budgiver skal i budskjema avgi egenerklæring om budgiver er forbruker eller næringsdrivende/ person som hovedsakelig handler som ledd i næringsvirksomhet. Budgivere får informasjon dersom andre bud er inngitt av en som ikke er forbruker.
Forbrukerkjøp - definisjon
Med forbrukerkjøp menes kjøp av eiendom når kjøperen er en fysisk person som ikke hovedsakelig handler som ledd i næringsvirksomhet.
Forbruker – avtalevilkår
Eiendommen har en mangel dersom den ikke er i samsvar med kravene som følger av avtalen, eller det foreligger brudd på bestemmelsene i avhendingsloven §§ 3-2 til 3-8. Hvis eiendommen ikke er i samsvar med det kjøperen må kunne forvente ut ifra alder, type og synlig tilstand, kan det være grunnlag for mangelskrav. Det samme gjelder hvis det er holdt tilbake eller gitt uriktige opplysninger om eiendommen. Dette gjelder likevel bare dersom man kan gå ut ifra at det virket inn på avtalen at opplysningen ikke ble gitt eller at mangelskravet ikke blir rettet i tide på en tydelig måte.
Boligen kan ha en mangel etter avhendingsloven § 3-3 andre ledd, dersom det er avvik mellom opplyst og faktisk innvendig areal, forutsatt at avviket er på 2% eller mer og minimum 1 kvm.
Ved beregning av et eventuelt prisavslag eller erstatning må kjøper selv dekke tap/kostnader opptil et beløp på kr 10 000 (egenandel).
Ikke-forbruker (næringsdrivende) – definisjon
Hvis kjøper er en juridisk person, eller en fysisk person som hovedsakelig handler som ledd i næringsvirksomhet, vil kjøpet ikke anses som et forbrukerkjøp.
Ikke-forbruker – avtalevilkår
Eiendommen har en mangel dersom den ikke er i samsvar med kravene som følger av avtalen.
Eiendommen selges «som den er», og selgers ansvar utover det konkret avtalte er da begrenset etter avhendingsloven § 3-9, første ledd andre setning.
Avhendingsloven § 3-3 andre ledd fravikes, og hvorvidt boligens arealsvikt utgjør en mangel vurderes etter avhendingsloven § 3-8.
Informasjon om kjøpers undersøkelsesplikt, herunder oppfordringen om å undersøke eiendommen nøye, gjelder også for kjøpere som ikke anses som forbrukere.
Det forutsettes at hjemmel overføres til kjøper. Hvis kjøper ikke ønsker hjemmelsoverføring av eiendommen, må det tas forbehold om dette i budet.
Meglers vederlag
Meglers vederlag betales av selger og er avtalt til:
Fastpris: 48 000,-
Vederlag:
Fotopakke inkl drone kr 5 200,00
Kontroll av hjemmel og heftelser kr 2 900,00
Markedsføringspakke Fritid kr 27 400,00
Oppgjør kr 7 500,00
Tilrettelegging kr 17 000,00
Visninger pr stk / Overtagelse kr 2 900,00
Utlegg:
Innhenting av offentlig opplysninger Kviteseid kr 2 096,00
Tinglysing sikring kr 545,00
Andre utgifter:
AX tilstandsrapport Fritidsleilighet kr 10 750,00
Boligselgerforsikring Gjensidige Tomt/Fritid regnes av prisant. kr 12 556,90
Vi er opptatt av verdiskapning, og har knyttet til oss samarbeidspartnere som skal sikre våre kunder de beste produkter og tjenester;
• I forbindelse med forberedelse av salget, innhenter vi informasjon om eiendommen hovedsakelig fra vår samarbeidspartner Amibita.
• Gjensidige leverer boligselgerforsikring og tilbyr bygningsforsikring
• Boligkjøperforsikring leveres av Hiscox og med Sedgwick som skadebehandler, og er formidlet gjennom Gjensidige.
• BN bank tilbyr finansieringsløsninger
• Vår avdeling Krogsveen Pluss tilbyr flyttetjenester som utvask, visningsvask, lager, tømming og transport av flyttelass, i tillegg til å formidle kontakt med Flip for overflateoppussing.
• I forbindelse med overtagelse av eiendommen tilbyr Overo avtale om strøm, alarm og bredbånd.
• Krogsveen er, sammen med øvrige bransjeaktører, medeier i Bomega AS som tilbyr den digitale annonseringsplattformen Hjem.
Opplysninger om oppdraget
Oppdragsnummer 22-0438/25
Eiendomsmegler Krogsveen AS, avd. Sandefjord
Jernbanealléen 13, 3210, SANDEFJORD
950 007 613
Oppdragets KR-kode KR22.25438
Dato
Sist oppdatert: 17. februar 2026 kl. 12:14
Dokumenter
Dokumenter
PDF – 4 MB
PDF – 782 KB
PDF – 679 KB
PDF – 312 KB
PDF – 29 KB
PDF – 127 KB
PDF – 392 KB
Område
Legg til steder som er viktige for deg
Visning
For å delta på visning, ber vi om at du melder deg på. Da sikrer vi at du får nødvendig informasjon og at det er satt av tilstrekkelig med tid. Kontakt megler dersom annet tidspunkt ønskes. Husk å lese salgsoppgaven før visningen, så du stiller forberedt. NB. Visning utgår dersom det ikke er noen påmeldte.
Ta kontakt med megler for avtale om privatvisning.
Ønsker du kun å bli holdt orientert, kan du fra eiendommens hjemmeside få varsel om solgtpris, eller kontakte megler.
Lurer du på noe?
Vurderer du utleie?
Få et tilbud fra Utleie KrogsveenHva koster lånet?
Sjekk estimert lånekostnadVil du varsles om lignende boliger?
Ved å lagre ditt boligsøk hos oss får du beskjed når vi har en bolig som ligner denne, før den legges ut på markedet!

