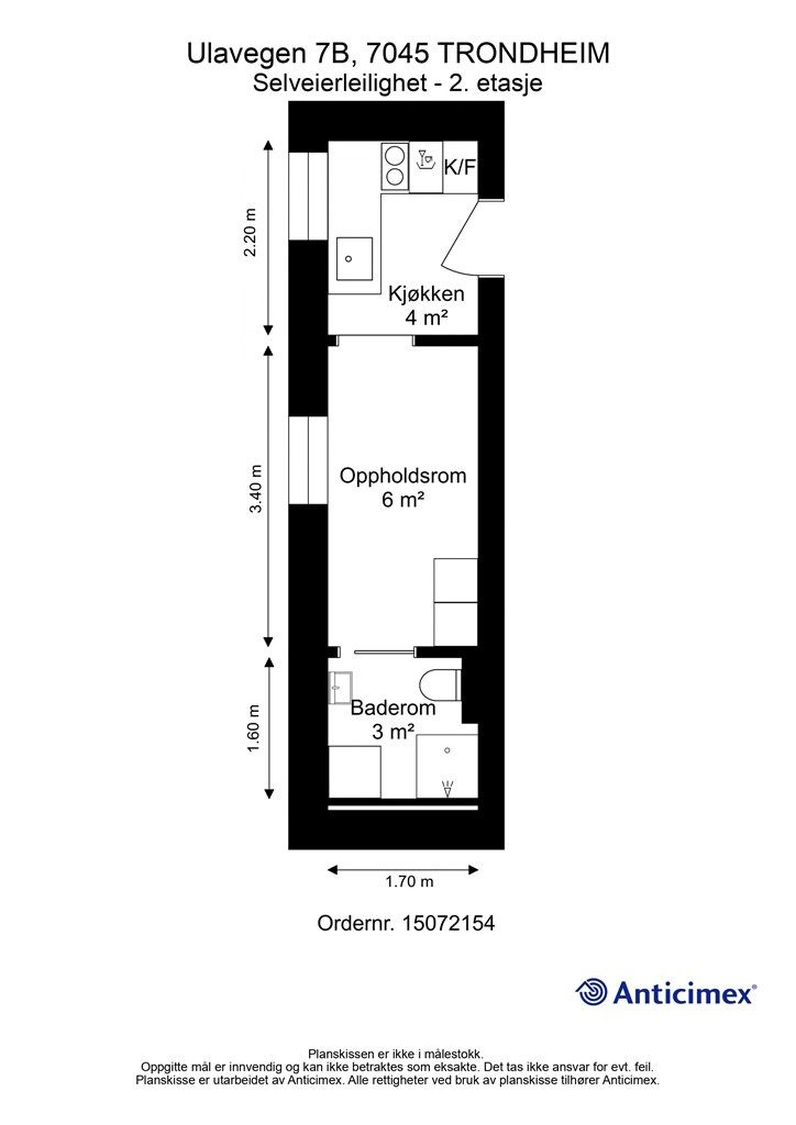
Ulavegen 7B
1 690 000 kr
14 m²
Solgt

Presenteres av
Jan Vidar LysbakkenPersaunet
Moderne og flott 1-romsleilighet beliggende i et veletablert nabolag |Stor takhøyde |Lave felleskostn |Nært studiesteder
Prisantydning
1 690 000 krOmkostninger
53 290 krTotalpris
1 743 290 kr
Pris
Bruksareal
19 m²BRA-I (internt bruksareal)
14 m²BRA-E (eksternt bruksareal)
5 m²
Areal
Etasje
2Byggeår
1943Bad
1 badType
EierleilighetEierform
EierseksjonFellesutgifter
1 486 krEnergimerke
Rød F
Nøkkelinfo
Unngå doble boligrenter
Vi tilbyr gunstig forsikring.
Vurderer du utleie?
Få et tilbud fra Utleie KrogsveenHva koster lånet?
Sjekk estimert lånekostnadBeskrivelse
Kort om eiendommen
Velkommen til Ulavegen 7B - og denne arealeffektive 1-roms selveierleiligheten beliggende i et sentrumsnært og attraktivt boligområde på Persaunet! Her bor du med kort avstand til "alle" dagligdagse servicetilbud, med gangavstand til blant annet skoler, barnehager, dagligvare, treningssenter, kjøpesentre, restauranter og caféer. Det er gode kollektivmuligheter i området.
Leiligheten er nyetablert i 2022 og befinner seg i byggets andre etasje. Leiligheten er innredet med entré/kjøkken, oppholdsrom og baderom, og selges møblert. Her får man virkelig følelsen av at man har flyttet inn i en nydelig hotellsuite.
Kvaliteter du vil sette pris på:
- Stor takhøyde gir en god romfølelse
- Utstrakt bruk av kvalitetsmaterialer.
- Praktisk bod i kjelleren.
Område
Legg til steder som er viktige for deg
På flyttefot? Tenk kjøp og salg samtidig.
Få din egen rådgiver gjennom hele kjøps- og salgsprosessen. Det starter med en verdivurdering.
Unngå doble boligrenter
Vi tilbyr gunstig forsikring.
Vurderer du utleie?
Få et tilbud fra Utleie KrogsveenHva koster lånet?
Sjekk estimert lånekostnadVil du varsles om lignende boliger?
Ved å lagre ditt boligsøk hos oss får du beskjed når vi har en bolig som ligner denne, før den legges ut på markedet!
På flyttefot? Slik gjør vi det enklere for deg
Skreddersydd flyttepakke
Vi fikser håndverkere, vask, pakking, lagring og transport, og legger ut for utgiftene underveis.
Hjelp med både kjøp og salg
Hos oss har du din egen rådgiver gjennom hele kjøps- og salgsprosessen.
Hjelp til finansiering
Vårt samarbeid med BN Bank sikrer deg rask og løsningsorientert hjelp, til konkurransedyktige betingelser.

