Kiserødveien 63b
1 800 000 kr
68 m²
2 soverom
Komplett salgsoppgave

Kiserødåsen
Lekker 3-roms fra 2021 med garasje | Stor, vestvendt terrasse | IN-LÅN
Prisantydning
1 800 000 krAndel fellesgjeld
1 680 000 krOmkostninger
11 040 krTotalpris
3 491 040 kr
Pris
Bruksareal
88 m²BRA-I (internt bruksareal)
68 m²BRA-E (eksternt bruksareal)
20 m²TBA (terrasse-balkongareal)
26 m²
Areal
Etasje
1Byggeår
2021Soverom
2 soveromBad
1 badType
AndelsleilighetEierform
AndelFasiliteter
Garasje/P-plass og Balkong/TerrasseFellesutgifter
10 398 krEnergimerke
Rød A
Nøkkelinfo
Unngå doble boligrenter
Vi tilbyr gunstig forsikring.
Vurderer du utleie?
Få et tilbud fra Utleie KrogsveenHva koster lånet?
Sjekk estimert lånekostnadBeskrivelse
Kort om eiendommen
Velkommen til Kiserødveien 63B!
Dette er en moderne og energieffektiv leilighet beliggende i byggets første etasje. Boligen har god standard og praktiske løsninger. Fra stuen er det utgang til en stor, vestvendt terrasse med gode solforhold, som er en fin forlengelse av leiligheten i sommermånedene. Borettslaget har IN-ordning for fellesgjeld, og ved full innfrielse vil fellesutgifter være på kr. 3.166,- pr 1/5-26.
Kiserødåsen er et hyggelig nabolag med kort vei til Marumskogen med flott turområder samt Granholmen som byr på bademuligheter og helårsåpen badstue.
Verdt å merke seg:
- Bygget i 2021 med energiklasse A
- Kjøkken- og baderomsinnredning fra Sigdal
- Vedovn i stuen
- Stor, vestvendt terrasse på 26 m²
- Plensatt hage med tett hekk
- Garasjeplass på 20 m²
- Vedovn i stuen
Innhold og byggemåte
Innhold og byggemåte
Eiendommen
Kiserødveien 63b, 3231 SANDEFJORD
Kommunenummer 3907, gårdsnummer 132, bruksnummer 40, ideell andel 1/1
Andelsnummer 6, Mariløkka Borettslag, organisasjonsnummer 927151030
Innhold
Totalt bruksareal BRA: 88 kvm
BRA-i:
Borettslagsleilighet:
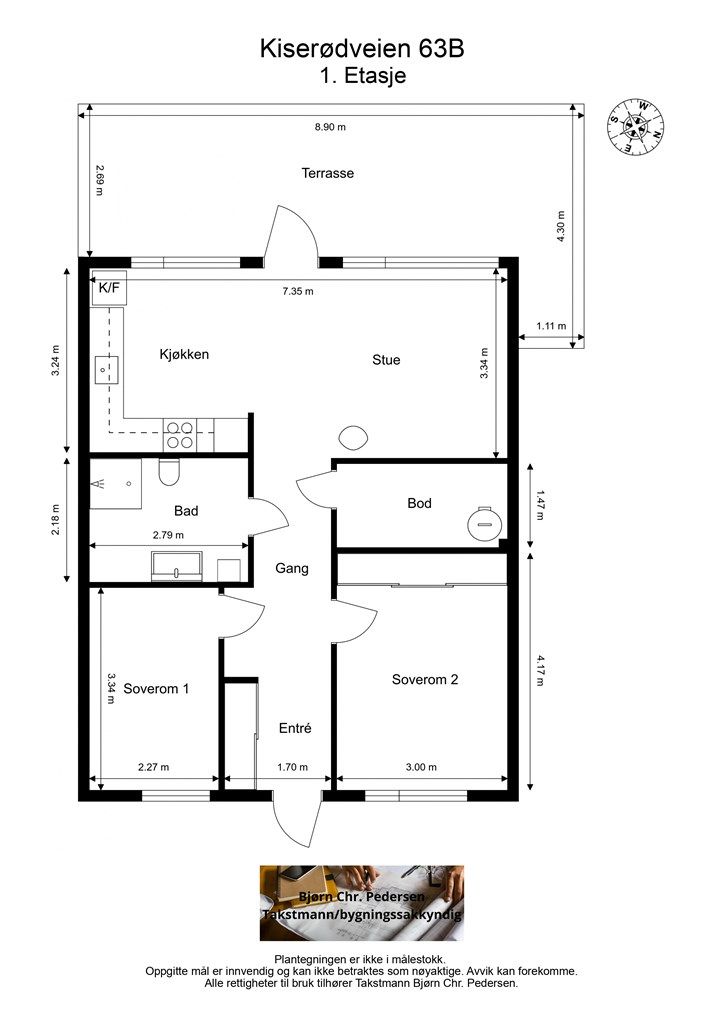
1. etasje 68 kvm: Entre, gang, stue, kjøkken, bad, bod og to soverom.
BRA-e:
1. etasje 20 kvm: Garasje i felles garasjebygning.
Åpent areal:
1. etasje 26 kvm: Terrasse.
Vedlagte plantegninger er ikke målbare. De oppgitte arealer er hentet fra rapport med befaringsdato 15.04.2026 utført av Takstmann Bjørn Chr. Pedersen.
Byggemåte
Selger har innhentet en tilstandsrapport av boligen/eiendommen. Dersom det er registrert avvik, er disse klassifisert med tilstandsgrader (TGIU, TG2 og/eller TG3). Kjøper overtar ansvaret for de opplysninger som fremkommer av salgsdokumentasjonen, og kan ikke gjøre gjeldende som mangel noe som burde vært kjent eller som ikke kan anses å ha betydning for avtalen.
Bygningen er iht. tilstandsrapport en leilighet i flermannsbolig oppført i 2021. Bygningen er oppført på støpt betong mot grunn, med yttervegger i tre- og betongkonstruksjoner og etasjeskillere i betong. Fasader har liggende trekledning, og deler av fasaden er overflatebehandlet i regi av borettslaget. Takkonstruksjonen er i tre med saltak tekket med betongtakstein, men taktekkingen er ikke inspisert og takkonstruksjonen er ikke tilstandsvurdert. Vinduer og terrassedør har tre-lags isolerglass med rammer og karmer i tre. Ytterdøren er i sandwichkonstruksjon med isolerglassfelt og brannklasse EI30, og det er slette innerdører. Det er pipe av stål og montert vedovn. Fra stuen er det utgang til en vestvendt, delvis overbygd terrasse på 26 m² med terrassebord.
Det medfølger parkering for en bil i felles garasjebygning med et areal på 20 m². Adkomst er via en elektrisk leddport med fjernbetjent portåpner. Garasjen er ikke tilstandsvurdert.
Sikringsskap med automatsikringer, måler og kursoversikt er plassert i bod. Det er installert brannslukkingsutstyr og røykvarslere i boligen.
For denne leiligheten er det gitt 17 av 17 mulige "TG1".
Tilstandsrapporten er inntatt i salgsoppgaven. Rapporten inneholder informasjon om eventuelle avvik og konsekvensen av disse. Dersom det er registrert avvik med TG3, har den bygningssakkyndige i tillegg gitt et anslag på hva det vil koste å utbedre disse. Ettersom kjøper regnes å være kjent med forhold som tydelig fremgår av tilstandsrapporten, oppfordres du til å sette deg grundig inn i rapporten i sin helhet.
Selger beskriver også i egenerklæringsskjema:
I 2024 ble de hvite områdene på boligene i borettslaget malt utvendig. Arbeidet ble utført av det faglærte firmaet Vestly vedlikehold AS, og selger har dokumentasjon på arbeidet.
Standard
Dette er en leilighet fra 2021 som ligger på bakkeplan i en flermannsbolig.
Leiligheten er energieffektiv med energiklasse A, og har varmekabler i gulvet i de fleste rom samt vedovn i stuen. Planløsningen er arealeffektiv og gir en god overgang til en stor, vestvendt terrasse og plensatt hage.
Du kommer inn i en entré med flislagt gulv og varmekabler. En skyvedørsgarderobe gir praktisk oppbevaring for yttertøy og sko. Fra entréen leder en gang deg videre inn i leiligheten. Her er det også gulvvarme, og innfelte downlights i taket.
Stuen har en takhøyde på 2,58 meter. Det er lagt eikeparkett med gulvvarme. Her er god plass til både sofagruppe og spisebord. Lyst og trivelig rom med plass til både venner og familie i hyggelig lag. Vedovnen gir ekstra varme og atmosfære på kjølige dager.
De store vindusflatene og utgang til terrassen knytter rommet til uteområdet. Terrassen er vestvendt, på hele 26 m² og er delvis overbygd. Her er det god plass til flere møbelgrupper. I tillegg har man bruksrett på hagen, som er naturlig tilliggende.
Kjøkkenet er fra Sigdal og ligger i åpen løsning med stuen. Innredningen har slette fronter og en laminert benkeplate med god arbeidsplass. Det er gulvvarme, og hvitevarene er integrerte. Hvitevarene er fra 2021 og bruksslitasje må påregnes. Lekkasjestopper og komfyrvakt er installert for ekstra trygghet.
Badet er moderne innredet i tidløs utførelse. Flislagte overflater med gulvvarme og innfelte downlights i taket. Innredningen er fra Sigdal og består av en heldekkende servant, ettgreps armatur og et praktisk høyskap. Det er et dusjhjørne med glassvegger, vegghengt toalett og opplegg for vaskemaskin.
Leiligheten har i alt to soverom. Hovedsoverommet er svalt og romslig og har god plass til dobbeltseng. I tillegg er det innredet med en praktisk og romslig skyvedørsgarderobe. Det andre soverommet egner seg godt som barnerom, gjesterom eller kontor. Begge rommene har eikeparkett på gulvet.
Leiligheten har en innvendig bod som huser tekniske installasjoner som varmtvannsbereder, ventilasjonsaggregat og sikringsskap.
I tillegg medfølger en garasjeplass på 20 m² i felles garasjebygg. Dyp og praktisk med plass til både bil og lagring. Automatisk portåpner.
Her kan du flytte rett inn i nye og trivelige omgivelser uten de store vedlikeholdsoppgavene.
For fullstendig teknisk informasjon om boligen, se punktet Byggemåte i salgsoppgaven.
Løsøre og tilbehør
Vi viser til liste fra Norges Eiendomsmeglerforbund som gjelder fra 01.01.2020 angående løsøre og tilbehør.
Oppvarming
Oppvarming er basert på elektrisitet og vedfyring. Vedovn er montert som ildsted i stuen. Boligen har balansert ventilasjon.
Varmekabler i entrè/gang, bad og stue/kjøkken.
Dersom beboelsesrom ikke har vegg- eller fastmonterte varmekilder ved visning, følger dette heller ikke med.
Ferdigattest/brukstillatelse
Det foreligger ferdigattest datert 07.10.2021. Attesten gjelder "To firemannsboliger (61D og C) og (63B og C), en tomannsbolig (65A og B) og to garasjebygg i felt BFS2".
Det foreligger godkjente og byggemeldte tegninger for leiligheten fra februar 2020, og disse stemmer med dagens bruk.
Ferdigattesten kan fås ved henvendelse til megler, byggetegninger er vedlagt salgsoppgaven.
Tinglyste heftelser og rettigheter
Utover andel fellesgjeld overdras leiligheten fri for pengeheftelser.
Borettslaget har legalpant for forfalte felleskostnader og andre krav som følger av borettslagsforholdet iht. burettslagsloven § 5-20. Pantet er begrenset oppad til 2G (G = folketrygdens grunnbeløp).
Det er tinglyst 6 servitutter på borettslagets eiendom. Disse omhandler blant annet bestemmelse om vannrett, elektriske kraftlinjer, bestemmelse om vann/kloakkledning, erklæring/avtale, bestemmelse om jordkabel/jordkabelanlegg og bestemmelse om nettstasjon. Servituttene er vurdert til ikke å ha noen praktisk betydning for kjøper.
Servituttene vil følge eiendommen.
Eventuell adgang til utleie
Andelseier kan ikke uten samtykke fra styret i borettslaget overlate bruken av boligen til andre. Med samtykke kan andelseier overlate boligen til andre i inntil tre år hvis andelseier har bodd i boligen i minst ett av de to siste år. Utleie i andre tilfeller kan godtas ved særlige grunner, jf. burettslagslova § 5-6. Utleie forutsetter at leiligheten har forsvarlige radonverdier. Se også borettslagets vedtekter og konferer megler ved spørsmål.
Energimerking
Denne boligen er energimerket. På en skala fra A til G, der A er best, har denne boligen oppnådd A (en normalbolig vil gjerne ligge i området C-F). Kopi av energiattest ligger vedlagt i salgsoppgaven eller kan fås ved henvendelse til megler.
Beliggenhet og tomteforhold
Beliggenhet og tomteforhold
Beliggenhet
Kiserød er et veletablert og rolig boligområde. Her bor du skjermet fra byens kjas og mas, men likevel med en svært effektiv hverdag innen rekkevidde.
Dette er et meget populært boområde med nærhet til idylliske Granholmen badestrand og båtbrygge. Granholmen er et attraktivt samlingspunkt på varme sommerdager, med badeplass, matservering og herlig sommerstemning. Det er også kort vei til skog og mark, og sykkelavstand til populære utfartssteder som Ula, Kjerringvik og Eftanglandet.
For familier er logistikken enkel. Store Bergan skole ligger bare en kort spasertur unna, og det er flere barnehager i nærheten, som Sole, Åsane og Noahs Ark Solkollen. Ranvik ungdomsskole er en rask kjøretur på fem minutter unna. For fritidsaktiviteter er det kort vei til både Store Berganhallen og Kiserødåsen balløkke, mens treningssentre som Team og EVO er innenfor en radius på 5-10 minutter med bil.
De daglige innkjøpene kan gjøres hos Meny på Granholmen, og her finnes også blomsterbutikk og apotek. Trenger du et større utvalg, er Hvaltorvet Kjøpesenter i sentrum kun ca. ni minutters kjøretur fra døren. For pendlere er det gode forbindelser med buss fra Øgården busstopp, og Sandefjord stasjon med togforbindelser er under ti minutter unna med bil. Sandefjord lufthavn Torp når du på omtrent 20 minutter.
Dette er et flott sted å bo!
Adkomst
Se Google maps - det er enkelt å finne frem i kartet.
Leiligheten er skiltet med Krogsveen Til Salgs skilt. Det vil bli skiltet med Krogsveen visningsskilt ved fellesvisninger.
Barnehager, skoler og fritid
Store Bergan barneskole og Ranvik ungdomsskole. Tilhørigheten kan årlig endres av kommunen. Dersom skole- og barnehagetilbud er av betydning for kjøpet, ber vi om at det rettes en særskilt henvendelse til Skolesjefens kontor.
Beskrivelse av tomt
Eiertomt på 2831 kvm som tilhører borettslaget. Oppgitt tomteareal er hentet fra digitalt eiendomskart fra Sandefjord kommune. Oppgitt/anslått areal kan derfor avvike fra nøyaktig areal.
Fellesarealene er opparbeidet med asfalterte veier/gangveier, plen og diverse beplantning. Det er godt med parkering for beboere og gjester på tomten i tillegg til garasje i rekke.
Leiligheten er beliggende i 1. etasje og har terrasse med direkte adkomst til hage. Iflg selger har man bruksrett til hagedelen som er naturlig tilliggende leiligheten, men da også vedlikeholdsplikt mht plenklipping etc.
Det er tett hekk mot vei, noe som hindrer innsyn. Solrikt og usjenert uteplass.
Parkering
Leiligheten disponerer garasjeplass i felles garasjerekke (20 m² BRA-e) med elektrisk leddport og fjernbetjent portåpner.
Det er opplegg for å installere ladeboks for elbil for egen regning, og borettslaget har avtale med firmaer for montering og fakturering.
Det gjøres oppmerksom på at dagens parkeringsløsning er etablert på borettslagets fellesareal, og at parkeringsplassene således ikke eies av den enkelte andelseier. Det er borettslaget i fellesskap beslutter bruken, og man har ikke selv eierrett og rettsvern for parkeringsplassen.
Vei, vann og avløp
Eiendommen har adkomst via kommunal vei. Eiendommen er tilknyttet kommunalt ledningsnett via private stikkledninger. Borettslaget er ansvarlig for private stikkledninger til bygningen.
Regulerings-og arealplaner
Eiendommen er regulert til boligbebyggelse-frittliggende småhusbebyggelse, gatetun, og veg, i henhold til plan Kiserødveien-20030005E2, og frisikt i henhold til plan ID20210017. For øvrig er eiendommen avsatt til boligbebyggelse i kommuneplanens arealdel.
Kommunen opplyser at eiendommen berøres av følgende hensynssoner:
H310: Arealet ligger innenfor fareområde for ras- og skredfare, som betyr at området ligger under marin grense og/eller ligger i et kjent fareområde for kvikkleire. For nye tiltak bør det påregnes geotekniske vurderinger.
H140: Arealet ligger innenfor området for frisiktsoner, som betyr at det skal det være fri sikt i en høyde av 0,5 m over tilstøtende veiers planum. Dette gjelder for flere delarealer på eiendommen.
Reguleringskart, kommuneplankart og grensekart ligger vedlagt salgsoppgaven.
Økonomi
Økonomi
Boligens kostnader
Felleskostnadene er pr 01.05.26 kr 10.398,- pr. mnd. og inkluderer: kommunale avgifter, utvendig forsikring, forretningsførsel, betjening av renter på andel fellesgjeld, måking av fellesarealer.
Felleskostnadene justeres normalt en til to ganger årlig i forhold til borettslagets faktiske utgifter.
Felleskostnadene fordeles slik:
Renteutgifter kr 7.232,-
Driftsutgifter kr 3.049
Fiberaksess kr 117,-
Borettslagets lån er avdragsfritt, og frem til 30.09.2031 betales det dermed kun renter. Etter utløpet av avdragsfri periode for fellesgjelden, anslås det at felleskostnadene vil øke med kr 1.980,- pr. mnd. Dette er basert på dagens lånebetingelser, og forutsetter uendret rente.
Borettslaget har IN lån, og ved full innfrielse vil fellesutgiftene justeres til kr 3.166,-.
Nåværende eier har et strømforbruk som tilsvarer ca. 9.678 kwh. pr. år.
Borettslaget har aksessavtale tilknyttet Altibox. Nåværende eier har ikke benyttet seg av denne. Tv-tuner/dekoder medfølger ikke i handelen.
Utgiftene er basert på nåværende eiers forbruk. Kjøper må selv tegne innboforsikring.
Selger har avtalt Norgespris på strøm på eiendommen for perioden til og med 31.12.2026, og denne er pt på 50 øre inkl mva. Nettleie, avgifter og påslag fra kraftleverandøren kommer i tillegg. Er det fjernvarme vil det også komme kostnader i tillegg.
Denne avtalen vil følge eiendommen i den avtalte perioden.
Les mer om Norgespris her: https://www.regjeringen.no/no/aktuelt/legg-fram-lov-om-norgespris-pa-straum-og-fjernvarme/id3102642/
Kommunale utgifter
Kommunale avgifter faktureres borettslaget og er dekket gjennom de månedlige felleskostnadene.
Formuesverdi
Formuesverdi for 2024 var kr 881 226,- ifølge Skatteetaten. Beløpet forutsetter at eier bor fast i boligen (primærbolig).
Ved eventuell øvrig bruk av eiendommen (f.eks. fritidsbolig, pendlerbolig, utleieobjekt) var formuesverdien for 2024 kr 3 524 905,-.
Fra 2026 har Stortinget vedtatt en oppdatert modell for beregning av formuesverdi for primærbolig, så avvik kan forekomme.
For mer informasjon se skatteetaten.no
Eiendomsskatt
Det er p.t ikke vedtatt eiendomsskatt for eiendommer i kommunen.
Opplysninger om fellesgjeld
Andel formue er kr 54 002,- pr. 2025.
Andel fellesgjeld er kr 1 680 000,- pr. 16.04.2026.
Total fellesgjeld for borettslaget er kr 19 650 000,- pr. 16.04.2026 og lånevilkårene er:
Lånenummer: 94887178725, Handelsbanken
Annuitetslån, 4 terminer per år
5,15% flytende rente
Restsaldo pr. 16.04.2026: kr 19 650 000,-
Andel av saldo: kr 1 680 000,-
Avdragsfrihet til og med 30.09.2031. Første avdrag er 30.12.2031.
Innfrielsesdato: 30.09.2061
Dette borettslaget har tilrettelagt for individuell nedbetaling av andel fellesgjeld (IN-ordning). Det vil si at hver enkelt andelseier helt eller delvis kan velge å nedbetale sin andel av borettslagets fellesgjeld til boligbyggelaget. Dette vil i så fall medføre en reduksjon av de månedlige felleskostnadene (andel av renter og avdrag på fellesgjelden). Nedbetalt andel av fellesgjeld knyttes til andelen og følger andelen ved et eventuelt salg.
Omkostninger
1 800 000,00 Prisantydning
Omkostninger
9 950,00 Gjensidige Boligkjøperpakke* (valgfritt)
545,00 Tinglysing hjemmel
545,00 Tinglysing panterettsdokument
--------------------------------------------------------
1 090,00 (Omkostninger totalt (uten Gjensidige Boligkjøperpakke))
11 040,00 Omkostninger totalt (med Gjensidige Boligkjøperpakke))
--------------------------------------------------------
1 801 090,00 Totalpris inkl. omkostninger
1 811 040,00 Totalpris inkl. omkostninger (med Gjensidige Boligkjøperpakke)
--------------------------------------------------------
Dersom kjøper ikke er medlem av boligbyggelaget, må det påregnes en innmeldingsavgift og årlig medlemsgebyr pr. ny andelseier. Dette faktureres direkte fra boligbyggelaget. Dersom borettslaget har fellesgjeld, vil leilighetens andel av fellesgjelden komme i tillegg til kjøpesummen. Denne gjelden skal ikke innbetales i oppgjøret, men følger leiligheten. Det tas forbehold om endringer i avgifter og gebyrer.
Tilbud om lånefinansiering
Megler formidler gjerne kontakt med rådgiver hos vår samarbeidspartner BN Bank. De har konkurransedyktige betingelser samt rask og løsningsorientert behandling av din lånesøknad. Krogsveen mottar et honorar dersom lån opprettes.
Betalingsbetingelser
Kjøpesum inkludert omkostninger, samt pantedokument tilknyttet eventuelt lån, skal være disponibelt hos megler 2 virkedager før overtagelsen.
Annen viktig informasjon
Annen viktig informasjon
Eier
Martine Johannesen
Informasjon om borettslaget
Leiligheten er tilknyttet Mariløkka Borettslag. Borettslaget består av 10 leiligheter. Forretningsfører er Boligbyggelaget USBL.
Borettslaget er forsikret i If Skadeforsikring NUF.
Dyrehold er tillatt, jfr. ordensreglene nr. 3.
Dugnad, samt måking og gressklipping må påregnes.
Planlagte påkostninger:
- Styret har bestilt en EBA-sjekk (Elkontroll) fra USBL som skal gjennomføres i 2026.
- Styret vurderer en prosentvis økning i felleskostnadene for å dekke fremtidig vedlikehold. Det er per 20.04.2026 ikke vedtatt en spesifikk økning, men styret har informert om at det i tilfelle ikke vil være en drastisk økning.
- Styret vurderer investering i robotklipper.
Foretatte påkostninger de senere år:
- I 2025 ble det utført service på ytterdører og vedlikehold av ventilasjonssystemet. Styret fikk også fullmakt til å inspisere taket, men valgte å ikke gjennomføre dette grunnet høy kostnad.
- I 2024 ble det utført malerarbeider og vedlikehold av ventilasjonssystemet.
Megler har kopi av budsjett for 2026 og årsregnskap for 2025. Dette kan interessenter få oversendt. Årsregnskapet for 2025 viser et årsresultat på kr 78 296,-. Borettslagets disponible midler var per 31.12.2025 på kr 368 154,-.
I henhold til borettslagets vedtekter må kjøper godkjennes av styret som ny andelseier. Det er kjøpers ansvar at styregodkjenning blir gitt, men styret kan ikke nekte godkjenning uten saklig grunn. Iht. burettslagslova kan man bare eie én andel i borettslaget. Kun fysiske personer kan være andelseiere.
Øvrige andelseiere i borettslaget og eventuelt medlemmer av boligbyggelaget har forkjøpsrett. I henhold til burettslagslova tar dette inntil 20 dager å avklare fra melding om salget er gitt borettslaget. Dersom boligen tas på forkjøpsrett løses kjøper fra avtalen.
Borettslaget er tilknyttet Klare Finans AS som dekker manglende innbetaling av felleskostnader fra øvrige andelseiere. Avtalen om sikring er gyldig til avtalen sies opp av en av partene. Oppsigelsesfrist er 1. desember med gyldighet fra førstkommende årsskifte.
Dokumenter for borettslaget kan fås ved henvendelse til megler.
Overtakelse
Etter nærmere avtale.
Boligselgerforsikring
Selger har i forbindelse med salget tegnet boligselgerforsikring levert av Gjensidige.
Boligselgerforsikringen dekker selgers ansvar etter avhendingsloven begrenset oppad til kr 14 millioner. Dersom kjøper oppdager forhold ved eiendommen som hen mener utgjør en mangel ved eiendommen, vil Gjensidige behandle reklamasjonen på vegne av selger. Forsikringsvilkår kan fås ved henvendelse til megler.
Vedlagt salgsoppgaven følger selgers egenerklæringsskjema og tilstandsrapport. Interessenter må sette seg inn i dokumentene før bud inngis.
Boligkjøperforsikring
Innen kontraktsmøtet må kjøper ta stilling til om det ønskes å bestille Boligkjøperpakken gjennom Gjensidige. I denne gunstige pakken er boligen ferdig forsikret og inkluderer rettshjelpsforsikring, også kalt Boligkjøperforsikring. Rettshjelpsforsikring gir trygghet og tilgang på profesjonell juridisk hjelp dersom det oppdages uventede feil eller mangler det første året etter overtagelse. Forsikringsselskapet behandler i så fall ethvert mangelskrav kjøper måtte ha overfor selger.
Boligkjøperpakken inkluderer bygningsforsikring for hus og hytte, innboforsikring, flytteforsikring og dobbel rentedekning - i situasjoner hvor kjøper ikke får solgt nåværende primærbolig.
Kjøper mottar ingen særskilt faktura for Boligkjøperpakken da kostnaden det første året legges til kjøpesummen for boligen. Det gjøres oppmerksom på Krogsveen mottar et honorar for denne formidlingen.
Produktark for Boligkjøperpakken ligger vedlagt i salgsoppgaven.
Dersom ikke boligkjøperpakke ønskes kan kun rettshjelpsforsikring, også kalt boligkjøperforsikring, tegnes særskilt via megler. Rettshjelpsforsikringen varer i 5 år fra overtagelse og leveres gjennom Gjensidige. Ta kontakt med megler for ytterligere informasjon.
Selskap og privatpersoner som driver med kjøp/salg/utvikling som ledd i egen næringsvirksomhet kan ikke tegne boligkjøperpakke eller rettshjelpsforsikring.
Budgivning
Forbrukerinformasjon om budgivning er vedlagt denne salgsoppgaven og er også på vår hjemmeside Krogsveen.no. Alle bud og budforhøyelser må inngis skriftlig. I tillegg må legitimasjon være fremlagt sammen med signatur fra budgiver.
Vi oppfordrer til å gi bud elektronisk via GI BUD-knappen på eiendommens hjemmeside på Krogsveen.no. Da vil samtlige vilkår bli oppfylt.
Eventuelle forhøyelser eller endringer av budet kan bekreftes pr SMS eller på e-post. Vi oppfordrer alltid til å kontakte megler pr. telefon i tillegg da forsinkelser i SMS og e-post kan forekomme.
For at budene skal kunne bli behandlet og videreformidlet skriftlig til alle involverte parter, må alle bud ha en tilstrekkelig lang akseptfrist, jf. eiendomsmeglingsforskriften § 6-3.
Selger må også skriftlig akseptere budet før aksept kan formidles til budgiver. Akseptfrist bør derfor være på minimum 30 minutter, og budforhøyelser må derfor skje i god tid før fristens utløp.
Bud i forbrukerforhold kan uansett ikke settes med kortere frist enn kl. 12.00 første virkedag etter siste annonserte visning. I tillegg kan ikke budet ha forbehold om at det skal holdes hemmelig ovenfor øvrige interessenter. Megler har iht lov om eiendomsmegling ikke anledning til å videreformidle disse budene, og de vil dermed heller ikke bli journalført.
Etter at eiendommen er solgt vil kjøper og selger få tilsendt budjournal. Øvrige budgivere kan få utlevert kopi av budjournalen i anonymisert form.
Hvitvaskingsreglene
I henhold til lov om hvitvasking og terrorfinansiering har megler plikt til å gjennomføre kontrolltiltak overfor kunder, herunder fullmektiger. Dette innebærer bl.a. å bekrefte kunders og reelle rettighetshaveres identitet på bakgrunn av fremvist gyldig legitimasjon eller på annen godkjent måte, samt å innhente opplysninger om kundeforholdets formål og tilsiktede art.
Dersom slike kundetiltak ikke kan gjennomføres, kan megler ikke etablere kundeforholdet eller utføre transaksjonen.
Hvis kjøper ikke bidrar til gjennomføring av kundekontrollen og dette fører til at transaksjonen blir forsinket eller ikke kan gjennomføres, vil dette ansees som mislighold av avtalen og gi selger rettigheter etter avhendingslova kapittel 5. I tilfeller der selger ikke bidrar til gjennomføring av løpende kundekontroll underveis i oppdraget, er det selger som misligholder sine forpliktelser etter avtalen og gi kjøper rettigheter etter avhendingslovens kapittel 4. Partene er selv ansvarlige for eventuelle kostnader og ansvar dette kan medføre. Eiendomsmegleren eller eiendomsmeglingsforetaket kan ikke holdes ansvarlig for de konsekvenser dette vil kunne få for partene eller andre som har interesser i eiendomshandelen.
Kjøper oppfordres til å innbetale kjøpesummen som ikke kommer fra låneinstitusjon i én samlet innbetaling fra egen konto i norsk bank. Megler har plikt til å melde fra til Økokrim om eiendomshandler som fremstår som mistenkelige. Melding sendes Økokrim uten at partene varsles.
Personopplysningsloven
I henhold til personopplysningsloven gjør vi oppmerksom på at interessenter kan bli registrert for videre oppfølging.
Lovanvendelse
Generelle bestemmelser
Salgsoppgaven er basert på de opplysningene selger har gitt til megler, den bygningssakyndiges tilstandsrapport, samt opplysninger innhentet fra kommunen, Kartverket og andre tilgjengelige kilder. Det er viktig at kjøper setter seg grundig inn i alle salgsdokumentene, herunder salgsoppgave, tilstandsrapport og selgers egenerklæring. Kjøper anses kjent med forhold som er tydelig beskrevet i salgsdokumentene, og slike forhold kan ikke påberopes som mangler. Dette gjelder uavhengig av om kjøper har lest dokumentene. Alle interessenter oppfordres til å undersøke eiendommen nøye, gjerne sammen med fagkyndig før bud inngis. Kjøper som velger å kjøpe usett kan ikke gjøre gjeldende som mangel noe han burde blitt kjent med ved undersøkelsen.
Dersom det er behov for avklaringer, anbefaler vi at interessenter rådfører seg med eiendomsmegler eller egne rådgivere før det legges inn bud.
En bolig som har blitt brukt i en viss tid, har vanligvis blitt utsatt for slitasje og skader kan ha oppstått. Slik bruksslitasje må kjøper regne med, og det kan avdekkes enkelte forhold etter overtakelse som nødvendiggjør utbedringer. Normal slitasje og skader som nødvendiggjør utbedring, er innenfor hva kjøper må forvente og vil ikke utgjøre en mangel.
Kjøper og selgers rettigheter og plikter reguleres av avtalen mellom partene, samt informasjonen som har vært tilgjengelig for kjøperen i forbindelse med handelen. Avtalen utfylles av avhendingsloven, og det gjelder ulike avtalevilkår avhengig av om kjøper er forbrukerkjøper eller ikke. Dette er nærmere beskrevet nedenfor.
På grunn av ulike avtalevilkår kan selger vurdere bud fra en som ikke er forbruker, ulikt fra en forbrukers bud. Dersom kjøper ikke er forbruker, er selger sitt mulige mangelsansvar begrenset fordi eiendommen selges "som den er". Selger kan ikke ta «som den er»- forbehold overfor en forbrukerkjøper. Selv et lavere bud fra en som ikke er forbruker kan foretrekkes fordi begrensningen i mulig mangelsansvar kan ha egenverdi for selger. Selger står fritt til å forkaste eller akseptere ethvert bud, og er for eksempel ikke forpliktet til å akseptere høyeste bud.
Budgiver skal i budskjema avgi egenerklæring om budgiver er forbruker eller næringsdrivende/ person som hovedsakelig handler som ledd i næringsvirksomhet. Budgivere får informasjon dersom andre bud er inngitt av en som ikke er forbruker.
Forbrukerkjøp - definisjon
Med forbrukerkjøp menes kjøp av eiendom når kjøperen er en fysisk person som ikke hovedsakelig handler som ledd i næringsvirksomhet.
Forbruker – avtalevilkår
Eiendommen har en mangel dersom den ikke er i samsvar med kravene som følger av avtalen, eller det foreligger brudd på bestemmelsene i avhendingsloven §§ 3-2 til 3-8. Hvis eiendommen ikke er i samsvar med det kjøperen må kunne forvente ut ifra alder, type og synlig tilstand, kan det være grunnlag for mangelskrav. Det samme gjelder hvis det er holdt tilbake eller gitt uriktige opplysninger om eiendommen. Dette gjelder likevel bare dersom man kan gå ut ifra at det virket inn på avtalen at opplysningen ikke ble gitt eller at mangelskravet ikke blir rettet i tide på en tydelig måte.
Boligen kan ha en mangel etter avhendingsloven § 3-3 andre ledd, dersom det er avvik mellom opplyst og faktisk innvendig areal, forutsatt at avviket er på 2% eller mer og minimum 1 kvm.
Ved beregning av et eventuelt prisavslag eller erstatning må kjøper selv dekke tap/kostnader opptil et beløp på kr 10 000 (egenandel).
Ikke-forbruker (næringsdrivende) – definisjon
Hvis kjøper er en juridisk person, eller en fysisk person som hovedsakelig handler som ledd i næringsvirksomhet, vil kjøpet ikke anses som et forbrukerkjøp.
Ikke-forbruker – avtalevilkår
Eiendommen har en mangel dersom den ikke er i samsvar med kravene som følger av avtalen.
Eiendommen selges «som den er», og selgers ansvar utover det konkret avtalte er da begrenset etter avhendingsloven § 3-9, første ledd andre setning.
Avhendingsloven § 3-3 andre ledd fravikes, og hvorvidt boligens arealsvikt utgjør en mangel vurderes etter avhendingsloven § 3-8.
Informasjon om kjøpers undersøkelsesplikt, herunder oppfordringen om å undersøke eiendommen nøye, gjelder også for kjøpere som ikke anses som forbrukere.
Det forutsettes at hjemmel overføres til kjøper. Hvis kjøper ikke ønsker hjemmelsoverføring av eiendommen, må det tas forbehold om dette i budet.
Meglers vederlag
Meglers vederlag betales av selger og er avtalt til:
Fastpris: 35 000,-
Vederlag:
Fotopakke kr 4 800,00
Kontroll av hjemmel og heftelser kr 4 600,00
Markedsføringspakke kr 29 900,00
Oppgjør kr 8 900,00
Tilrettelegging kr 10 000,00
Visninger - Alle inkl. kr 4 500,00
Utlegg:
Eierskiftegebyr forretningsfører (selger) kr 6 725,00
Innhenting av informasjon forretningsfører USBL kr 5 138,00
Innhenting av offentlig opplysninger Sandefjord - Norkart kr 3 504,00
Tinglysing sikring kr 545,00
Andre utgifter:
Boligselgerforsikring Gjensidige Andel/Aksje regnes av prisant. (min. kr 4200,-) kr 4 200,00
Tilstandsrapport fra bygningssakkyndig - faktura til megler - Bjørn Pedersen kr 9 000,00
Vi er opptatt av verdiskapning, og har knyttet til oss samarbeidspartnere som skal sikre våre kunder de beste produkter og tjenester;
• I forbindelse med forberedelse av salget, innhenter vi informasjon om eiendommen hovedsakelig fra vår samarbeidspartner Ambita.
• Gjensidige leverer boligselgerforsikring og tilbyr bygningsforsikring
• Boligkjøperforsikring leveres av Hiscox og med Sedgwick som skadebehandler, og er formidlet gjennom Gjensidige.
• BN bank tilbyr finansieringsløsninger
• Vår avdeling Krogsveen Pluss tilbyr flyttetjenester som utvask, visningsvask, lager, tømming og transport av flyttelass, i tillegg til å formidle kontakt med Flip for overflateoppussing.
• I forbindelse med overtagelse av eiendommen tilbyr Overo avtale om strøm, alarm og bredbånd.
• Krogsveen er, sammen med øvrige bransjeaktører, medeier i Bomega AS som tilbyr den digitale annonseringsplattformen Hjem.
Opplysninger om oppdraget
Oppdragsnummer 22-0109/26
Eiendomsmegler Krogsveen AS, avd. Sandefjord
Jernbanealléen 13, 3210, SANDEFJORD
950 007 613
Oppdragets KR-kode KR22.26109
Dato
Sist oppdatert: 23. april 2026 kl. 10:26
Dokumenter
Dokumenter
PDF – 914 KB
PDF – 688 KB
PDF – 4 MB
PDF – 9 MB
PDF – 312 KB
PDF – 29 KB
PDF – 127 KB
PDF – 392 KB
Område
Legg til steder som er viktige for deg
Visning
For å delta på visning, ber vi om at du melder deg på. Da sikrer vi at du får nødvendig informasjon og at det er satt av tilstrekkelig med tid. Kontakt megler dersom annet tidspunkt ønskes. Husk å lese salgsoppgaven før visningen, så du stiller forberedt. NB. Visning utgår dersom det ikke er noen påmeldte. Ønsker du kun å bli holdt orientert, kan du fra eiendommens hjemmeside få varsel om solgtpris, eller kontakte megler.
Lurer du på noe?
Unngå doble boligrenter
Vi tilbyr gunstig forsikring.
Vurderer du utleie?
Få et tilbud fra Utleie KrogsveenHva koster lånet?
Sjekk estimert lånekostnadVil du varsles om lignende boliger?
Ved å lagre ditt boligsøk hos oss får du beskjed når vi har en bolig som ligner denne, før den legges ut på markedet!






























