Sigurd Hoels vei 100
9 500 000 kr
101 m²
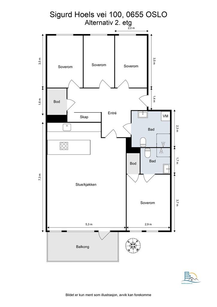
3 soverom
Solgt
Tiedemannsbyen/Ensjø
Lekker og moderne 4(5)-roms med herlig balkong | Gjennomgående planløsning | 2 bad | Garasjeplass m/lader | God standard
Prisantydning
9 500 000 krOmkostninger
249 365 krTotalpris
9 749 365 kr
Pris
Bruksareal
105 m²BRA-I (internt bruksareal)
101 m²BRA-E (eksternt bruksareal)
4 m²TBA (terrasse-balkongareal)
9 m²
Areal
Etasje
2Byggeår
2012Soverom
3 soveromBad
2 badType
EierleilighetEierform
EierseksjonFellesutgifter
4 581 krEnergimerke
Grønn B
Nøkkelinfo
Unngå doble boligrenter
Vi tilbyr gunstig forsikring.
Vurderer du utleie?
Få et tilbud fra Utleie KrogsveenHva koster lånet?
Sjekk estimert lånekostnadDette liker selger best ved boligen
Romslig leilighet med fleksibel og effektiv planløsning i attraktivt og familievennlig sameie. Fint og praktisk kjøkken med mye benkeplass og full høyde kjøl og frys. Godt med bodplass.
Beskrivelse
Kort om eiendommen
Krogsveen v/Nhut Nam Huynh har fått æren av å presentere denne lyse og stilrene 4(5)-roms leiligheten beliggende i 2. etg med heis. Boligen har en romslig nordvestvendt balkong med flott beliggenhet. Store vindusflater skaper en lys og luftig atmosfære. Boligen holder meget god standard, noe som gjenspeiler seg i TG1 på nesten alle elementer i tilstandsrapporten. Bygget ligger i rolige og ettertraktede omgivelser midt i hjertet av Hasle/Ensjø, nærmere bestemt Tiedemannsbyen. Denne vil du ikke gå glipp av!
Lave felleskostnader
Garasjeplass m/lader
2 bad
Barnevennlig
Nordvestvendt balkong på 9 kvm
Gjennomgående og god planløsning
Veldig barnevennlig beliggenhet med barnehage, skole og aktivitetsområder i umiddelbar nærhet
Kort vei til "alt"!
Område
Legg til steder som er viktige for deg
På flyttefot? Tenk kjøp og salg samtidig.
Få din egen rådgiver gjennom hele kjøps- og salgsprosessen. Det starter med en verdivurdering.
Unngå doble boligrenter
Vi tilbyr gunstig forsikring.
Vurderer du utleie?
Få et tilbud fra Utleie KrogsveenHva koster lånet?
Sjekk estimert lånekostnadVil du varsles om lignende boliger?
Ved å lagre ditt boligsøk hos oss får du beskjed når vi har en bolig som ligner denne, før den legges ut på markedet!
På flyttefot? Slik gjør vi det enklere for deg
Skreddersydd flyttepakke
Vi fikser håndverkere, vask, pakking, lagring og transport, og legger ut for utgiftene underveis.
Hjelp med både kjøp og salg
Hos oss har du din egen rådgiver gjennom hele kjøps- og salgsprosessen.
Hjelp til finansiering
Vårt samarbeid med BN Bank sikrer deg rask og løsningsorientert hjelp, til konkurransedyktige betingelser.




