Bassengveien 7 og 9
5 790 000 kr
256 m²
4 soverom
Solgt

Presenteres av
Jan Vidar LysbakkenHemnskjela
Stor og flott eiendom fra 2012 med utleiedel og to garasjer | Stor terrasse med panoramautsikt og gode solforhold
Prisantydning
5 790 000 krOmkostninger
165 740 krTotalpris
5 955 740 kr
Pris
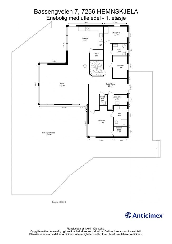
Bruksareal
322 m²BRA-I (internt bruksareal)
256 m²BRA-E (eksternt bruksareal)
66 m²TBA (terrasse-balkongareal)
237 m²
Areal
Etasje
2Byggeår
2012Soverom
4 soveromBad
3 badTomteareal
1 877 m² (eiet)Type
Enebolig - FrittliggendeEierform
EietFasiliteter
Garasje/P-plass og Balkong/TerrasseÅrlig velavgift
4 000 krEnergimerke
Oransje C
Nøkkelinfo
Unngå doble boligrenter
Vi tilbyr gunstig forsikring.
Vurderer du utleie?
Få et tilbud fra Utleie KrogsveenHva koster lånet?
Sjekk estimert lånekostnadBeskrivelse
Kort om eiendommen
Velkommen til Bassengveien 7 og 9 - og denne fantastiske eiendommen beliggende i et idyllisk og flott område. Her bor du med kort vei til dagligvare, skoler og barnehager, samt med en god kollektivforbindelse til Hitra.
Verdt å nevne
Nydelig kjøkken med rikelig skap- og benkeplass.
Flere møbleringsmuligheter i stuen som kan deles opp i soner.
Utgang fra stuen til en stor terrasse med fantastiske sol- og utsiktsforhold.
Tre romslige bad og et praktisk atskilt vaskerom.
Tre store soverom i hoveddel, og et soverom i utleiedelen.
Utleiedel med egen inngang i underetasjen med gode leieinntekter.
Integrert dobbeltgarasje, frittstående garasje med bod og flere biloppstillingsplasser.
Kort vei til Hitra, Orkanger og Trondheim.
Mulighet for båtplass
Område
Legg til steder som er viktige for deg
På flyttefot? Tenk kjøp og salg samtidig.
Få din egen rådgiver gjennom hele kjøps- og salgsprosessen. Det starter med en verdivurdering.
Unngå doble boligrenter
Vi tilbyr gunstig forsikring.
Vurderer du utleie?
Få et tilbud fra Utleie KrogsveenHva koster lånet?
Sjekk estimert lånekostnadVil du varsles om lignende boliger?
Ved å lagre ditt boligsøk hos oss får du beskjed når vi har en bolig som ligner denne, før den legges ut på markedet!
På flyttefot? Slik gjør vi det enklere for deg
Skreddersydd flyttepakke
Vi fikser håndverkere, vask, pakking, lagring og transport, og legger ut for utgiftene underveis.
Hjelp med både kjøp og salg
Hos oss har du din egen rådgiver gjennom hele kjøps- og salgsprosessen.
Hjelp til finansiering
Vårt samarbeid med BN Bank sikrer deg rask og løsningsorientert hjelp, til konkurransedyktige betingelser.

