Sagbukta brygge 28
3 600 000 kr
113 m²
2 soverom
Solgt

Presenteres av
Rune SirnesSagbukta Brygge/Svelvik
Lys og pen vertikaldelt tomannsbolig i naturskjønne omgivelser. Usjenert terrasse og stor hage. Endegarasje. Båtplass.
Prisantydning
3 600 000 krAndel fellesgjeld
20 840 krOmkostninger
101 540 krTotalpris
3 722 380 kr
Pris
Bruksareal
136 m²BRA-I (internt bruksareal)
113 m²BRA-E (eksternt bruksareal)
23 m²TBA (terrasse-balkongareal)
49 m²
Areal
Etasje
2Byggeår
2002Soverom
2 soveromBad
1 badType
Halvpart vertikaldelt boligEierform
EierseksjonFasiliteter
Garasje/P-plass og Balkong/TerrasseFellesutgifter
2 630 krEnergimerke
Rød D
Nøkkelinfo
Unngå doble boligrenter
Vi tilbyr gunstig forsikring.
Vurderer du utleie?
Få et tilbud fra Utleie KrogsveenHva koster lånet?
Sjekk estimert lånekostnadBeskrivelse
Kort om eiendommen
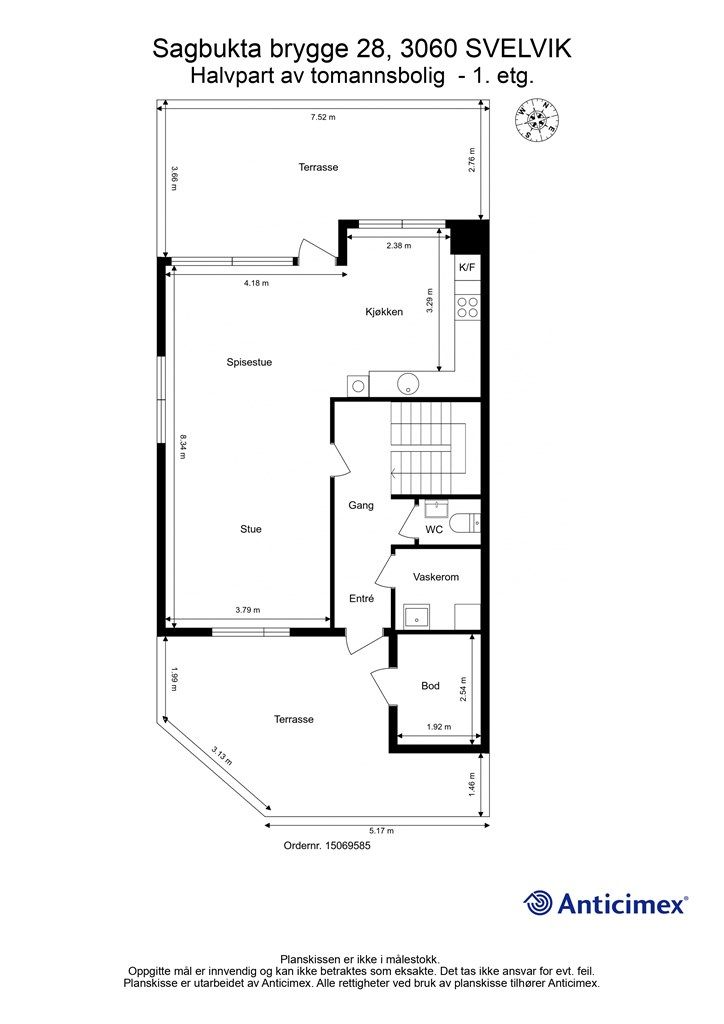
Lys og pen vertikaldelt tomannsbolig med 2 etasjer.
Stue med åpen løsning mot kjøkkenet og vedovn fra 2023
Profilert Sigdal-kjøkken med medfølgende hvitevarer
Bad med dusj (oppgradert innredning i 2010/2020)
Separat vaskerom og praktisk ekstra wc-rom
Skjermet og usjenert nordvestvendt terrasse på ca. 25 kvm (blir ny i april/mai 2025)
Lettstelt og pent opparbeidet hage med god boltreplass
Sydøstvendt terrasse på ca. 24 kvm ved inngangspartiet
Gode parkeringsmuligheter på egen gårdsplass
Endeparkering i felles rekke (like ved boligen)
Umiddelbar nærhet til fjorden og felles badestrand
Rett til en båtplass i felles bryggeanlegg
Flott internbeliggenhet bakerst/i enden av feltet
Grenser til marka og det er ingen gjennomgangstrafikk
Område
Legg til steder som er viktige for deg
På flyttefot? Tenk kjøp og salg samtidig.
Få din egen rådgiver gjennom hele kjøps- og salgsprosessen. Det starter med en verdivurdering.
Unngå doble boligrenter
Vi tilbyr gunstig forsikring.
Vurderer du utleie?
Få et tilbud fra Utleie KrogsveenHva koster lånet?
Sjekk estimert lånekostnadVil du varsles om lignende boliger?
Ved å lagre ditt boligsøk hos oss får du beskjed når vi har en bolig som ligner denne, før den legges ut på markedet!
På flyttefot? Slik gjør vi det enklere for deg
Skreddersydd flyttepakke
Vi fikser håndverkere, vask, pakking, lagring og transport, og legger ut for utgiftene underveis.
Hjelp med både kjøp og salg
Hos oss har du din egen rådgiver gjennom hele kjøps- og salgsprosessen.
Hjelp til finansiering
Vårt samarbeid med BN Bank sikrer deg rask og løsningsorientert hjelp, til konkurransedyktige betingelser.

