Ramstad terrasse 5
4 650 000 kr
82 m²
2 soverom
Solgt
Langhus
Romslig 3-roms toppleilighet i populært sameie | Stor vestvendt terrasse | Fantastisk utsikt | Heis | Garasjeplass
Prisantydning
4 650 000 krOmkostninger
127 290 krTotalpris
4 777 290 kr
Pris
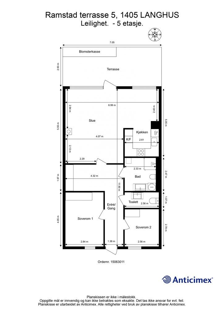
Bruksareal
87 m²BRA-I (internt bruksareal)
82 m²BRA-E (eksternt bruksareal)
5 m²TBA (terrasse-balkongareal)
21 m²
Areal
Etasje
5Byggeår
2001Soverom
2 soveromBad
1 badType
EierleilighetEierform
EierseksjonFasiliteter
Garasje/P-plass, Heis og Balkong/TerrasseFellesutgifter
2 640 krEnergimerke
Rød E
Nøkkelinfo
Unngå doble boligrenter
Vi tilbyr gunstig forsikring.
Vurderer du utleie?
Få et tilbud fra Utleie KrogsveenHva koster lånet?
Sjekk estimert lånekostnadBeskrivelse
Kort om eiendommen
Velkommen til Ramstad terrasse 5
Stor og lys selveierleilighet som ligger i et hyggelig, trygt og veletablert boligområde på Langhus.
- Leiligheten ligger i 5. etasje med heis ned til garasjeanlegget
- Veldrevent sameie med lave felleskostnader og god økonomi
- Stor vestvendt terrasse med elektrisk markise og flott utsikt
- Garasjeplass i felles garasjeanlegg med mulighet for elbillader
- Godt med oppbevaringsplass samt romslig bod i 1. etasje
- Nyinstallert stabilt fiberbredbånd fra Telenor
- Kort vei til matbutikker, apotek, barnehager og skoler
- Østmarka er nærmeste nabo med flotte turområder
- Det er ca. 1 km. til Langhus togstasjon med god forbindelse til bl.a. Oslo, Ski og Drøbak
Område
Legg til steder som er viktige for deg
På flyttefot? Tenk kjøp og salg samtidig.
Få din egen rådgiver gjennom hele kjøps- og salgsprosessen. Det starter med en verdivurdering.
Unngå doble boligrenter
Vi tilbyr gunstig forsikring.
Vurderer du utleie?
Få et tilbud fra Utleie KrogsveenHva koster lånet?
Sjekk estimert lånekostnadVil du varsles om lignende boliger?
Ved å lagre ditt boligsøk hos oss får du beskjed når vi har en bolig som ligner denne, før den legges ut på markedet!
På flyttefot? Slik gjør vi det enklere for deg
Skreddersydd flyttepakke
Vi fikser håndverkere, vask, pakking, lagring og transport, og legger ut for utgiftene underveis.
Hjelp med både kjøp og salg
Hos oss har du din egen rådgiver gjennom hele kjøps- og salgsprosessen.
Hjelp til finansiering
Vårt samarbeid med BN Bank sikrer deg rask og løsningsorientert hjelp, til konkurransedyktige betingelser.




