Roald Amundsens vei 30
9 990 000 kr
228 m²
4 soverom
Solgt
Fjellhamar
Moderne enebolig med flott opparbeidet tomt | Hybel | Velholdt | Familievennlig | Nærhet til skole og barnehage
Prisantydning
9 990 000 krOmkostninger
270 740 krTotalpris
10 260 740 kr
Pris
Bruksareal
245 m²BRA-I (internt bruksareal)
228 m²BRA-E (eksternt bruksareal)
17 m²TBA (terrasse-balkongareal)
88 m²
Areal
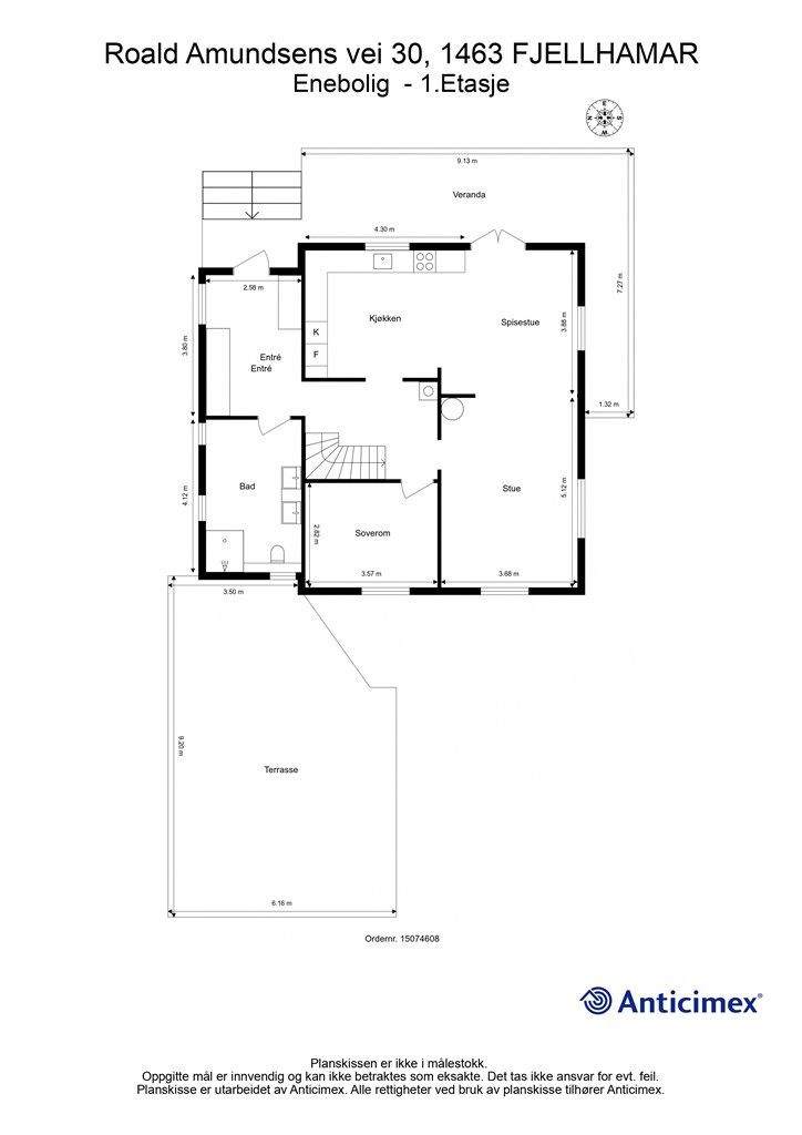
Etasje
3Byggeår
1953Soverom
4 soveromBad
3 badTomteareal
814 m² (eiet)Type
Enebolig - FrittliggendeEierform
EietEnergimerke
Oransje G
Nøkkelinfo
Unngå doble boligrenter
Vi tilbyr gunstig forsikring.
Vurderer du utleie?
Få et tilbud fra Utleie KrogsveenHva koster lånet?
Sjekk estimert lånekostnadBeskrivelse
Kort om eiendommen
Eiendomsmegler Krogsveen v/ Silje Frankplads ønsker velkommen til Roald Amundsens vei 30.
Denne eneboligen på Fjellhamar byr på en attraktiv kombinasjon av gode solforhold, gjennomført vedlikehold og en svært familievennlig beliggenhet. Her får du en romslig bolig med egen hybel som gir mulighet for utleie eller ekstra plass til familien. Nærområdet er trygt og barnevennlig, med kort vei til både skole og barnehage. I tillegg har du enkel tilgang til kollektivtransport, noe som gjør hverdagen både fleksibel og praktisk.
Høydepunkter:
Gode solforhold
Vedlikeholdt
En hybel
Familievennlig
Nærhet til skole og barnehage
Kollektiv nærhet
Velkommen på visning. Velkommen hjem!
Område
Legg til steder som er viktige for deg
På flyttefot? Tenk kjøp og salg samtidig.
Få din egen rådgiver gjennom hele kjøps- og salgsprosessen. Det starter med en verdivurdering.
Unngå doble boligrenter
Vi tilbyr gunstig forsikring.
Vurderer du utleie?
Få et tilbud fra Utleie KrogsveenHva koster lånet?
Sjekk estimert lånekostnadVil du varsles om lignende boliger?
Ved å lagre ditt boligsøk hos oss får du beskjed når vi har en bolig som ligner denne, før den legges ut på markedet!
På flyttefot? Slik gjør vi det enklere for deg
Skreddersydd flyttepakke
Vi fikser håndverkere, vask, pakking, lagring og transport, og legger ut for utgiftene underveis.
Hjelp med både kjøp og salg
Hos oss har du din egen rådgiver gjennom hele kjøps- og salgsprosessen.
Hjelp til finansiering
Vårt samarbeid med BN Bank sikrer deg rask og løsningsorientert hjelp, til konkurransedyktige betingelser.




