Gjallarveien 5
7 750 000 kr
111 m²
3 soverom
Solgt
Tårnåsen
Påkostet, lekkert atriumshus med alt på ett plan - Stilfullt oppgradert i 2023 - Solrik hage/terrasse - "Flytt rett inn"
Prisantydning
7 750 000 krOmkostninger
250 990 krTotalpris
8 000 990 kr
Pris
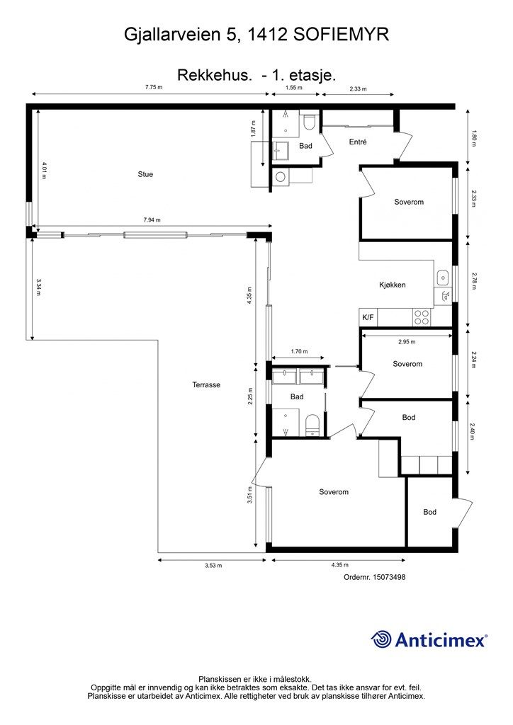
Bruksareal
115 m²BRA-I (internt bruksareal)
111 m²BRA-E (eksternt bruksareal)
4 m²TBA (terrasse-balkongareal)
52 m²
Areal
Etasje
1Byggeår
1966Soverom
3 soveromBad
2 badTomteareal
380 m² (eiet)Type
RekkehusEierform
EietFasiliteter
Balkong/TerrasseEnergimerke
Rød G
Nøkkelinfo
Unngå doble boligrenter
Vi tilbyr gunstig forsikring.
Vurderer du utleie?
Få et tilbud fra Utleie KrogsveenHva koster lånet?
Sjekk estimert lånekostnadBeskrivelse
Kort om eiendommen
Velkommen til Gjallarveien 5!
Et svært familievennlig rekkehus/atriumshus med alt på ett plan. Beliggenheten er særdeles barnevennlig, med nærhet til barnehager, barneskole, lekeplasser, buss og butikk, samt kort gangavstand til marka. Videre kan eiendommen skilte med en vestvendt, helt usjenert hage med boltreplass og en solrik, dels overbygd terrasse på ca. 52 kvm.
Hele boligen er stilfullt oppgradert i 2023, og fremstår med kvalitetsmessige materialvalg, nøye gjennomtenkte løsninger og moderne, nordisk stil. I en stor stue er det møbleringsfrihet og peis, og kjøkkenet i dansk design har integrerte hvitevarer og et spesiallaget vinrom. Videre har boligen to lekre bad/wc, en pen entré og tre gode soverom. Flere rom har garderobe, og lagringsplass finnes i en innebod og i en utebod.
Område
Legg til steder som er viktige for deg
På flyttefot? Tenk kjøp og salg samtidig.
Få din egen rådgiver gjennom hele kjøps- og salgsprosessen. Det starter med en verdivurdering.
Unngå doble boligrenter
Vi tilbyr gunstig forsikring.
Vurderer du utleie?
Få et tilbud fra Utleie KrogsveenHva koster lånet?
Sjekk estimert lånekostnadVil du varsles om lignende boliger?
Ved å lagre ditt boligsøk hos oss får du beskjed når vi har en bolig som ligner denne, før den legges ut på markedet!




