Holtveien 18
18 500 000 kr
223 m²
4 soverom
Solgt
Bekkelaget/Holtet
Solrik villaeiendom nær Holtet med stor tomt på over 1,5 mål
Prisantydning
18 500 000 krOmkostninger
483 490 krTotalpris
18 983 490 kr
Pris
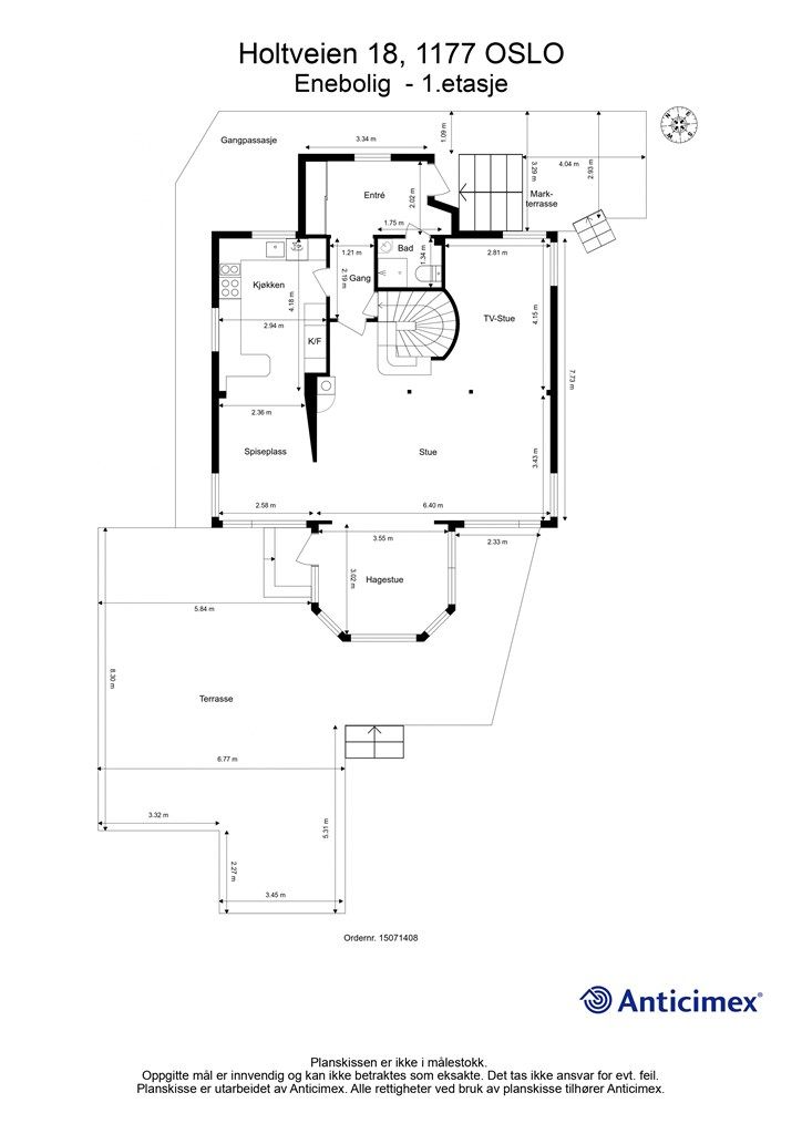
Bruksareal
242 m²BRA-I (internt bruksareal)
223 m²BRA-E (eksternt bruksareal)
19 m²TBA (terrasse-balkongareal)
97 m²
Areal
Byggeår
1939Soverom
4 soveromBad
2 badTomteareal
1 578 m² (eiet)Type
Enebolig - FrittliggendeEierform
EietFasiliteter
Garasje/P-plass og Balkong/TerrasseEnergimerke
Oransje G
Nøkkelinfo
Unngå doble boligrenter
Vi tilbyr gunstig forsikring.
Vurderer du utleie?
Få et tilbud fra Utleie KrogsveenHva koster lånet?
Sjekk estimert lånekostnadBeskrivelse
Kort om eiendommen
Velkommen til Holtveien 18, en stor og solrik villaeiendom nær Holtet. Her har du over 1,5 mål tomt med gode solforhold og en stor og forholdsvis flat hage bak huset. En innholdsrik og romslig villa med en god planløsning og flere bruksmuligheter. Solrike uteplasser og noe fjordutsikt fra 2. etasje. Noe modernisering kan påregnes. Få minutters gange til Holtet der du bl.a. finner Bekkelaget skole, trikkeholdeplass og et bredt servicetilbud.
Område
Legg til steder som er viktige for deg
På flyttefot? Tenk kjøp og salg samtidig.
Få din egen rådgiver gjennom hele kjøps- og salgsprosessen. Det starter med en verdivurdering.
Unngå doble boligrenter
Vi tilbyr gunstig forsikring.
Vurderer du utleie?
Få et tilbud fra Utleie KrogsveenHva koster lånet?
Sjekk estimert lånekostnadVil du varsles om lignende boliger?
Ved å lagre ditt boligsøk hos oss får du beskjed når vi har en bolig som ligner denne, før den legges ut på markedet!




