Sementveien 10
4 200 000 kr
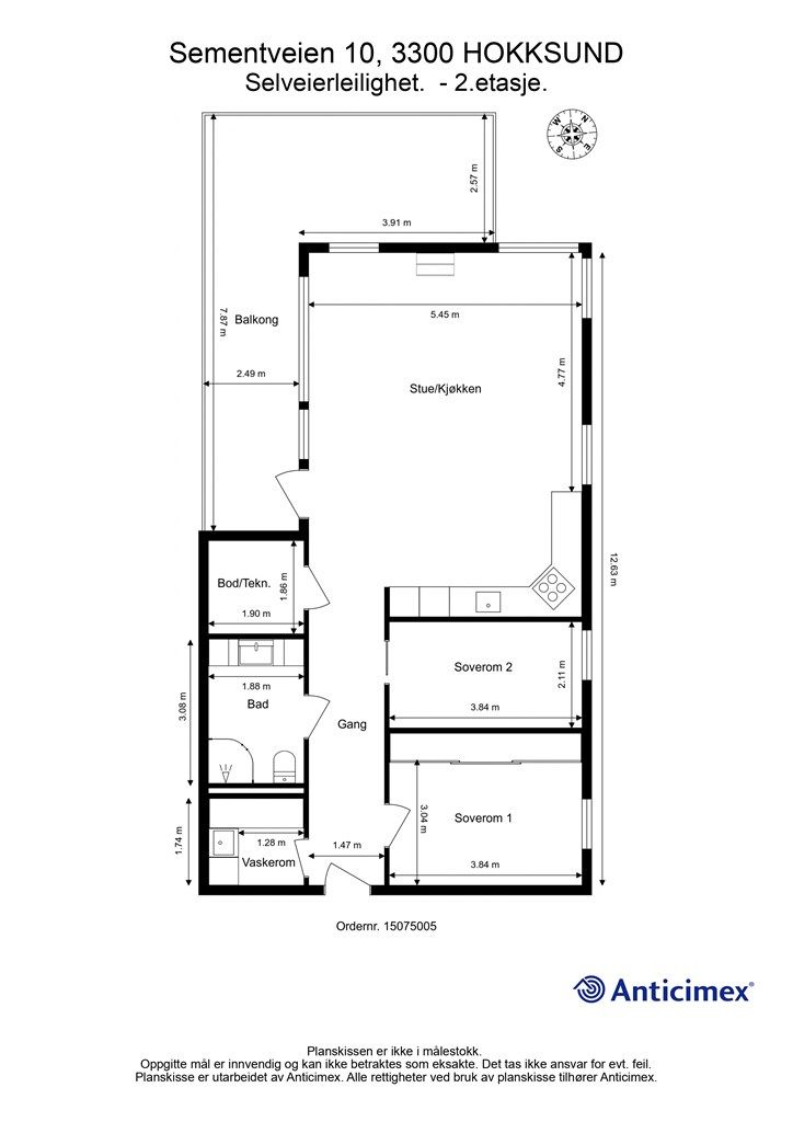
84 m²
2 soverom
Solgt

Presenteres av
Turid BorgersenHokksund
Sentrumsnær, lys og pen 3-roms fra 2016. Stor vestvendt balkong. To garasjeplasser i kjeller. Vannbåren gulvvarme.
Prisantydning
4 200 000 krOmkostninger
116 040 krTotalpris
4 316 040 kr
Pris
Bruksareal
90 m²BRA-I (internt bruksareal)
84 m²BRA-E (eksternt bruksareal)
6 m²TBA (terrasse-balkongareal)
30 m²
Areal
Etasje
2Byggeår
2016Soverom
2 soveromBad
1 badType
EierleilighetEierform
EierseksjonFasiliteter
Garasje/P-plass, Heis og Balkong/TerrasseFellesutgifter
5 130 krEnergimerke
Oransje A
Nøkkelinfo
Unngå doble boligrenter
Vi tilbyr gunstig forsikring.
Vurderer du utleie?
Få et tilbud fra Utleie KrogsveenHva koster lånet?
Sjekk estimert lånekostnadBeskrivelse
Kort om eiendommen
Pen eierleilighet med to soverom beliggende med kort gangavstand til sentrum
- To parkeringsplasser i felles garasjekjeller
- Leiligheten ligger i 2. etasje med adkomst via heis
- Uteplass på stor overbygget vestvendt balkong på ca. 30 kvm
- Flislagt bad og vaskerom med gulvvarme
- Vannbåren gulvvarme i bod, gang soverom, stue og kjøkken
- Motorisert screens på balkong + innvendige lameller i stue
- Lys og stor stue med gasspeis, åpent mot lekkert kjøkken med integrerte hvitevarer
- Innvendig bod og bod i garasjekjeller på 6 kvm
- Kort gangavstand til tog, ny barneskole og flott nyere idrettsanlegg
- Fantastiske turmuligheter i nærheten langs elvestien ved Drammenselva med flotte treningsapparater og sosiale sitteplasser
Område
Legg til steder som er viktige for deg
På flyttefot? Tenk kjøp og salg samtidig.
Få din egen rådgiver gjennom hele kjøps- og salgsprosessen. Det starter med en verdivurdering.
Unngå doble boligrenter
Vi tilbyr gunstig forsikring.
Vurderer du utleie?
Få et tilbud fra Utleie KrogsveenHva koster lånet?
Sjekk estimert lånekostnadVil du varsles om lignende boliger?
Ved å lagre ditt boligsøk hos oss får du beskjed når vi har en bolig som ligner denne, før den legges ut på markedet!
På flyttefot? Slik gjør vi det enklere for deg
Skreddersydd flyttepakke
Vi fikser håndverkere, vask, pakking, lagring og transport, og legger ut for utgiftene underveis.
Hjelp med både kjøp og salg
Hos oss har du din egen rådgiver gjennom hele kjøps- og salgsprosessen.
Hjelp til finansiering
Vårt samarbeid med BN Bank sikrer deg rask og løsningsorientert hjelp, til konkurransedyktige betingelser.

