Engene 92B
2 290 000 kr
28 m²
Solgt

Presenteres av
Eirik LundbekkBrakerøya
Arealeffektiv 1-roms toppleilighet m/heis - Sentralt og pendlervennlig. Kjøkken fra 2023. Ingen forkjøpsrett.
Prisantydning
2 290 000 krAndel fellesgjeld
65 646 krOmkostninger
11 040 krTotalpris
2 366 686 kr
Pris
Bruksareal
29 m²BRA-I (internt bruksareal)
28 m²BRA-E (eksternt bruksareal)
1 m²
Areal
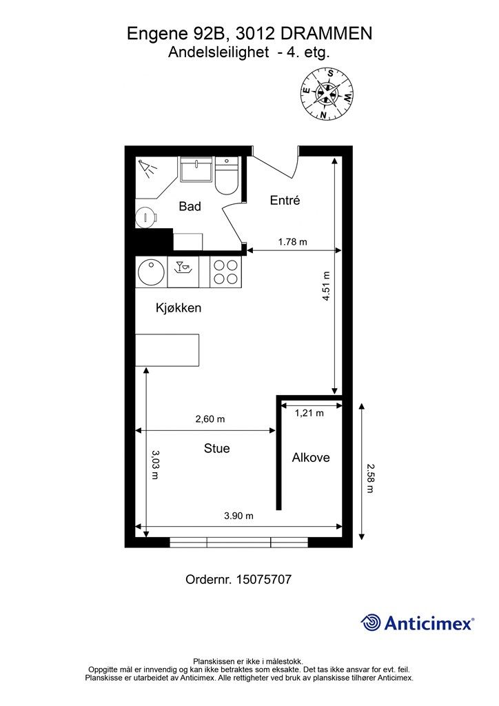
Etasje
4Byggeår
1973Bad
1 badType
AndelsleilighetEierform
AndelFasiliteter
HeisFellesutgifter
3 903 krEnergimerke
Rød F
Nøkkelinfo
Unngå doble boligrenter
Vi tilbyr gunstig forsikring.
Vurderer du utleie?
Få et tilbud fra Utleie KrogsveenHva koster lånet?
Sjekk estimert lånekostnadBeskrivelse
Kort om eiendommen
Arealeffektiv 1-roms toppleilighet beliggende i 4. etasje.
Åpen løsning med flere møbleringsmuligheter
Flislagt bad med gulvvarme. Nyere dusj og servant
Epoq kjøkken med helintegrerte hvitevarer fra 2023
Gipset alle vegger og bygget sovealkove i 2023
Heis
Lagringsplass i egen disponibel bod i felles kjelleretasje
Mulighet for å leie parkeringsplass (etter venteliste), samt gjesteparkering
Sykkelparkering i kjelleretasjen og utvendig sykkelstativ
Kort gangavstand til offentlig kommunikasjon
Kort vei til kjøpesenter og alle sentrumsfasiliteter
Kort vei til det nye sykehuset, sjø, marka og byen.
Nyrenovert fasade mot Engene, med nye vinduer og etterisolering
Borettslaget praktiserer ikke forkjøpsrett
Område
Legg til steder som er viktige for deg
På flyttefot? Tenk kjøp og salg samtidig.
Få din egen rådgiver gjennom hele kjøps- og salgsprosessen. Det starter med en verdivurdering.
Unngå doble boligrenter
Vi tilbyr gunstig forsikring.
Vurderer du utleie?
Få et tilbud fra Utleie KrogsveenHva koster lånet?
Sjekk estimert lånekostnadVil du varsles om lignende boliger?
Ved å lagre ditt boligsøk hos oss får du beskjed når vi har en bolig som ligner denne, før den legges ut på markedet!
På flyttefot? Slik gjør vi det enklere for deg
Skreddersydd flyttepakke
Vi fikser håndverkere, vask, pakking, lagring og transport, og legger ut for utgiftene underveis.
Hjelp med både kjøp og salg
Hos oss har du din egen rådgiver gjennom hele kjøps- og salgsprosessen.
Hjelp til finansiering
Vårt samarbeid med BN Bank sikrer deg rask og løsningsorientert hjelp, til konkurransedyktige betingelser.

