Furulia 27
10 250 000 kr
330 m²
7 soverom
Solgt

Presenteres av
Rune SirnesÅskollen
Moderne, innbydende og innholdsrik enebolig med utleiedel. Solrikt m/suveren fjordutsikt. Dobbelgarasje. Barnevennlig
Prisantydning
10 250 000 krOmkostninger
277 240 krTotalpris
10 527 240 kr
Pris
Bruksareal
418 m²BRA-I (internt bruksareal)
330 m²BRA-E (eksternt bruksareal)
88 m²TBA (terrasse-balkongareal)
80 m²
Areal
Etasje
3Byggeår
2000Soverom
7 soveromBad
3 badTomteareal
1 002 m² (eiet)Type
Enebolig med utleiedelEierform
EietFasiliteter
Garasje/P-plass og Balkong/TerrasseEnergimerke
Gul C
Nøkkelinfo
Unngå doble boligrenter
Vi tilbyr gunstig forsikring.
Vurderer du utleie?
Få et tilbud fra Utleie KrogsveenHva koster lånet?
Sjekk estimert lånekostnadBeskrivelse
Kort om eiendommen
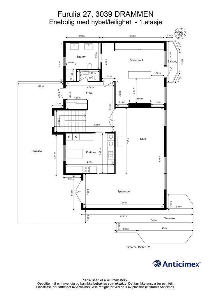
Moderne, innbydende og innholdsrik enebolig med 3 etasjer.
Flott familiebolig mtp. innhold, størrelse og planløsning
Tidsriktig oppusset 1. etasje i 2015 og satt inn klebersteinsovn i stue i 2015
Stilrent kjøkken fra 2015 med Miele hvitevarer
Oppgradert bad i 1. etg og oppusset wc-rom i 2015
Bad i u. etg og separat vaskerom med innredning i u. etg
2-roms utleiedel i u. etg med egen inngang (god skattefri leieinntekt)
Vannbåren gulvvarme i 1. etg + u. etg (hoveddel), delvis varmefolie i 2. etg og varmekabler i u. etg (utleiedel)
Luft-til-vann varmepumpe fra 2025, sentralstøvsuger og delvis balansert ventilasjon i boligen
Solrike uteplasser med suveren utsikt over Lierdalen og fjorden
Isolert og velutstyrt dobbelgarasje med loft samt kjeller
Område
Legg til steder som er viktige for deg
På flyttefot? Tenk kjøp og salg samtidig.
Få din egen rådgiver gjennom hele kjøps- og salgsprosessen. Det starter med en verdivurdering.
Unngå doble boligrenter
Vi tilbyr gunstig forsikring.
Vurderer du utleie?
Få et tilbud fra Utleie KrogsveenHva koster lånet?
Sjekk estimert lånekostnadVil du varsles om lignende boliger?
Ved å lagre ditt boligsøk hos oss får du beskjed når vi har en bolig som ligner denne, før den legges ut på markedet!
På flyttefot? Slik gjør vi det enklere for deg
Skreddersydd flyttepakke
Vi fikser håndverkere, vask, pakking, lagring og transport, og legger ut for utgiftene underveis.
Hjelp med både kjøp og salg
Hos oss har du din egen rådgiver gjennom hele kjøps- og salgsprosessen.
Hjelp til finansiering
Vårt samarbeid med BN Bank sikrer deg rask og løsningsorientert hjelp, til konkurransedyktige betingelser.

