Ringkroken 13A
13 500 000 kr
217 m²
4 soverom
Solgt

JAR / BEKKESTUA
Nydelig tomannsbolig med perfekt beliggenhet rett ved skoler, idrett, barnehager og Bekkestua! - Solrik hage i blindvei!
Prisantydning
13 500 000 krOmkostninger
358 490 krTotalpris
13 858 490 kr
Pris
Bruksareal
217 m²BRA-I (internt bruksareal)
217 m²TBA (terrasse-balkongareal)
19 m²
Areal
Byggeår
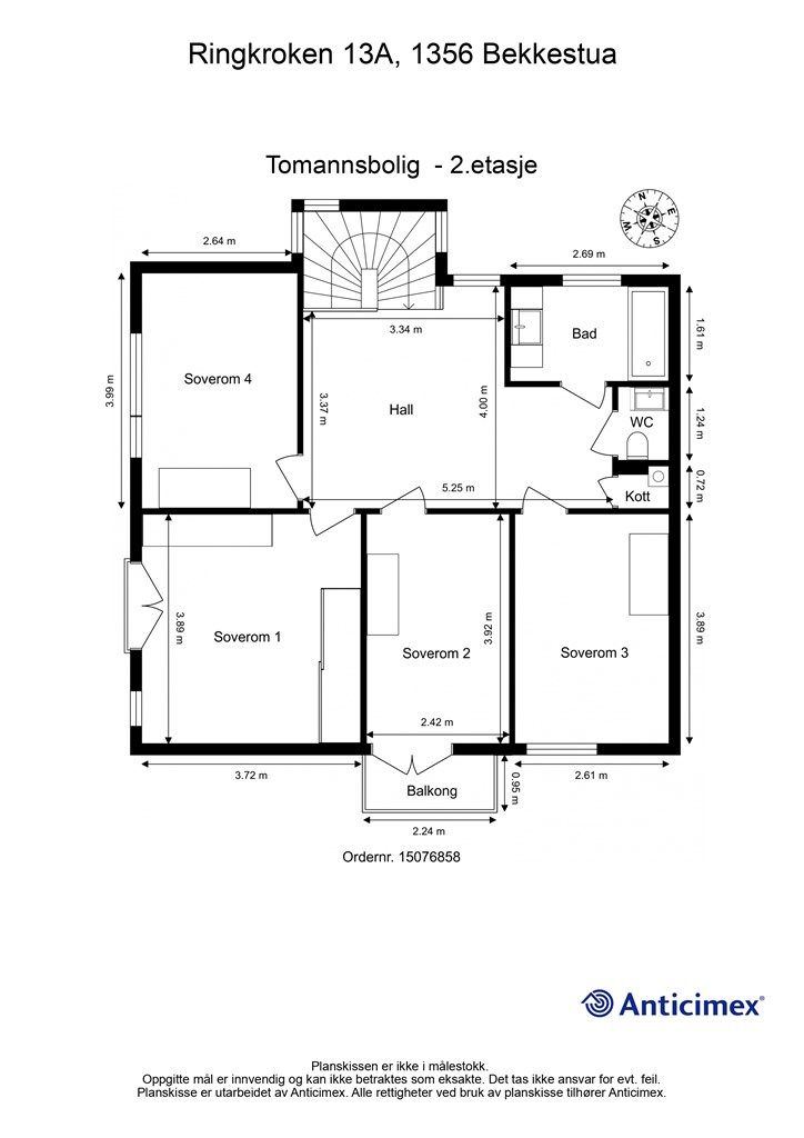
1968Soverom
4 soveromBad
2 badTomteareal
523 m² (eiet)Type
Halvpart vertikaldelt boligEierform
EietFasiliteter
Garasje/P-plass og Balkong/TerrasseEnergimerke
Gul E
Nøkkelinfo
Unngå doble boligrenter
Vi tilbyr gunstig forsikring.
Vurderer du utleie?
Få et tilbud fra Utleie KrogsveenHva koster lånet?
Sjekk estimert lånekostnadBeskrivelse
Kort om eiendommen
Eiendomsmegler Mats Lund ved Krogsveen Bekkestua har gleden av å ønske velkommen til Ringkroken 13A - en innbydende og hyggelig del av tomannsbolig beliggende i et barnevennlig og rolig boligområde rett ved Bekkestua. Her bor dere i flotte omgivelser med korte avstander til barnehager, skoler, T-bane/buss, fritidsaktiviteter og mye mer. Det er heller ikke langt til Bekkestua sentrum med et rikt utvalg butikker, spisesteder og servicefasiliteter.
Familieboligen går over 3 plan og har en god planløsning bestående av en entré, stue/spisestue og kjøkken i 1. etasje, soveromsavdeling med 4 gode soverom, bad, toalettrom og hall i 2. etasje, og kjellerstue, bad og vaskerom i kjelleren. Utvendig har boligen en nydelig, solrik hage, en koselig terrasse og balkong.
Område
Legg til steder som er viktige for deg
På flyttefot? Tenk kjøp og salg samtidig.
Få din egen rådgiver gjennom hele kjøps- og salgsprosessen. Det starter med en verdivurdering.
Unngå doble boligrenter
Vi tilbyr gunstig forsikring.
Vurderer du utleie?
Få et tilbud fra Utleie KrogsveenHva koster lånet?
Sjekk estimert lånekostnadVil du varsles om lignende boliger?
Ved å lagre ditt boligsøk hos oss får du beskjed når vi har en bolig som ligner denne, før den legges ut på markedet!

