Hyttesone H 309
4 500 000 kr
86 m²
5 soverom
Komplett salgsoppgave
Store Arøya - Helgeroa
Fritidsbolig med fantastisk utsikt, helt usjenert tomt og med meget gode solforhold
Prisantydning
4 500 000 krOmkostninger
133 490 krTotalpris
4 633 490 kr
Pris
Bruksareal
103 m²BRA-I (internt bruksareal)
86 m²BRA-E (eksternt bruksareal)
17 m²TBA (terrasse-balkongareal)
150 m²
Areal
Byggeår
1986Soverom
5 soveromBad
1 badTomteareal
1 656 m² (eiet)Type
Fritidseiendom ved sjøenEierform
EietEnergimerke
Nøkkelinfo
Vurderer du utleie?
Få et tilbud fra Utleie KrogsveenHva koster lånet?
Sjekk estimert lånekostnadBeskrivelse
Kort om eiendommen
Innhold og byggemåte
Innhold og byggemåte
Eiendommen
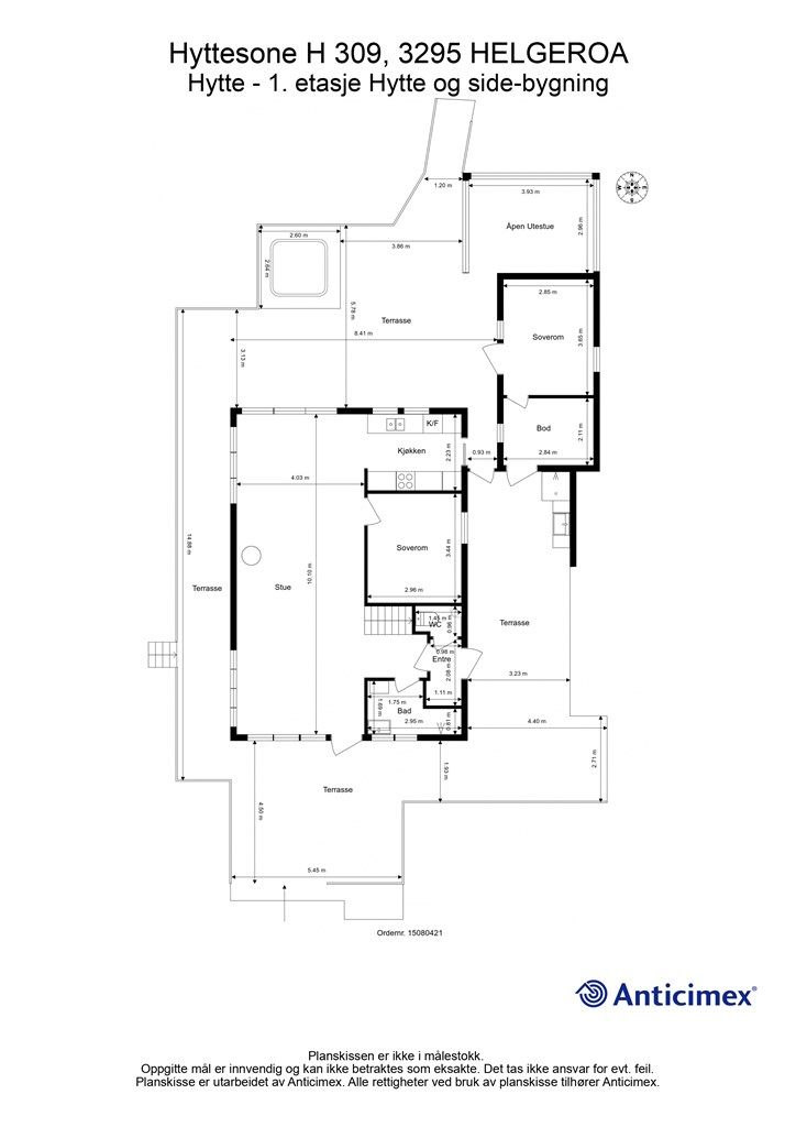
Hyttesone H 309, 3295 HELGEROA
Kommunenummer 3909, gårdsnummer 4083, bruksnummer 229, ideell andel 1/1
Innhold
Totalt bruksareal BRA: 103 kvm
BRA-i:
Hytta:
1. etasje 72 kvm: Gang, toalettrom, bad, stue, soverom og kjøkken.
2. etasje 14 kvm: Tre soverom
BRA-e:
Sidebygning/anneks:
1. etasje 17 kvm: Bod og soverom.
Åpent areal:
Hytta:
1. etasje 150 kvm: Terrasser og plattinger rundt og ved hytta og annekset. Åpen utestue utgjør 16 kvm.
Loftsetasjen/2. etas her et totalt gulvareal (GUA) på 30 kvm., men grunnet stråtak/lav takhøyde er kun 14 kvm. av arealet måleverdig som bruksareal.
Vedlagte plantegninger er ikke målbare. De oppgitte arealer er hentet fra rapport med befaringsdato 31.03.2026 utført av Anticimex Sandefjord AS. Arealene er beregnet og rom er definert etter dagens faktiske bruk, uavhengig av hva som er godkjent av bygningsmyndighetene.
Byggemåte
Selger har innhentet en tilstandsrapport av boligen/eiendommen. Av rapporten fremgår det at flere bygningsdeler har fått tilstandsgrad ikke undersøkt/ikke tilgjengelig for undersøkelse (TG IU), 2 (TG2) og/eller 3 (TG3). Rapporten beskriver også avvik på undersøkte bygningsdeler uten tilstandsgrad. Kjøper overtar ansvaret for de opplysninger som fremkommer av salgsdokumentasjonen, og kan ikke gjøre gjeldende som mangel noe som burde vært kjent eller som ikke kan anses å ha betydning for avtalen.
Bygningen er iht. tilstandsrapporten oppført på søylefundamenter. Bjelkelag av trevirke med stubbloft og asfaltplater. Vegg konstruksjoner og etasjeskillere av treverk. Utvendig fasader er kledd med liggende trekledning. Pulttak med shingel fra 2023. Vinduer og dører med karmer av tre.
Det gjøres spesielt oppmerksom på følgende bygningsdeler som har fått TG2 (vesentlig avvik) i tilstandsrapporten:
Våtrom - Bad:
- Lekkasjesikkerhet: Det er ikke etablert sluk i området på utsiden av dusjsonen, og det er ikke påvist at vanntett sjikt har tilstrekkelig oppkant ved dørterskel for å kompensere for dette. Konsekvens er at bruks- og lekkasjevann som oppstår utenfor dusjsonen derfor ikke vil kunne ledes til sluk, noe som reduserer fuktsikkerheten. Foreslått tiltak er lokal utbedring og overvåkning av området.
- Vanntett sjikt / membran i gulv og vegger: Det er ikke etablert stort nok felt med membran på veggflater i våtsonen, noe som i utgangspunktet medfører mangel med hensyn til våtrommets vanntette sjikt. Konsekvensen er fukskader på omkringliggende områder. Foreslått tiltak er videre overvåkenhet, og undersøkelser for å avdekke om lokale utbedringer og lignende tiltak er tilstrekkelig.
- Vannrør: Deler av vannrør av kobber (og tilhørende komponenter) har en alder som tilsier at fremtidig funksjon er usikker. Konsekvensen er at bygningsdelen erfaringsmessig har risiko for nedsatt funksjon, funksjonssvikt eller andre aldersrelaterte problemer. Bygningsdelen er skjult, så den faktiske tilstanden er ukjent. Foreslått tiltak er videre overvåking, slik at lokale reparasjoner eller utskiftninger kan iverksettes når dette viser seg å være nødvendig.
- Avløp (inkl. sluk): Deler av av avløpsrør har en alder som tilsier at fremtidig funksjon er usikker. Konsekvensen er at bygningsdelen erfaringsmessig har risiko for nedsatt funksjon, funksjonssvikt eller andre aldersrelaterte problemer. Bygningsdelen er skjult, så den faktiske tilstanden er ukjent. Foreslått tiltak er videre overvåking, slik at komplett utskiftning kan iverksettes når dette viser seg å være nødvendig.
- Ventilasjon: Tilluftsspalte eller lignende er ikke etablert. Konsekvens er at forholdet medfører redusert ventilering av våtrommet når døren er lukket. Foreslått tiltak er lokal utbedring.
- Fagmessig utførelse: Det foreligger informasjon om at våtrommet er delvis bygget ved egeninnsats. Konsekvensen er at dette erfaringsmessig medfører risiko for andre skjulte feil og mangler, som ikke lar seg registrere ved visuell inspeksjon.
- Annet: Det ble målt fuktighet i vinduskarm på yttervegg. Selger opplyser også om at det har vært observert fuktighet her tidligere. Årsak er vurdert til å være fuktinnrengning utenfra i overgang vindu/vegg. Dette er også omtalt andre steder i rapporten.
Kjøkken:
- Overflate gulv: Synlige deler av gulvets overflatemateriale har tegn av slitasje. Forholdet vurderes i hovedsak til å være av estetisk betydning, uten nevneverdige konsekvenser utover dette.
- Vannrør: Vannrør av kobber (og tilhørende komponenter) har en alder som tilsier at fremtidig funksjon er usikker. Konsekvensen er at bygningsdelen erfaringsmessig har risiko for nedsatt funksjon, funksjonssvikt eller andre aldersrelaterte problemer. Bygningsdelen er skjult, så den faktiske tilstanden er ukjent. Foreslått tiltak er videre overvåking, slik at lokale reparasjoner eller utskiftninger kan iverksettes når dette viser seg å være nødvendig.
- Avløpsrør: Deler av avløpsrør (og tilhørende komponenter) har en alder som tilsier at fremtidig funksjon er usikker. Konsekvensen er at bygningsdelen erfaringsmessig har risiko for nedsatt funksjon, funksjonssvikt eller andre aldersrelaterte problemer. Bygningsdelen er skjult, så den faktiske tilstanden er ukjent. Foreslått tiltak er videre overvåking, slik at utskiftning eller innvendig rehabilitering/rørfornyelse (hvis dette lar seg gjøre i det aktuelle tilfellet) kan iverksettes når dette viser seg å være nødvendig.
Toalettrom:
- Ventilasjon: Ventilasjonen vurderes som utilstrekkelig. Konsekvens er at forholdet kan medføre økt fuktpåkjenning og redusert luftkvalitet. Foreslått tiltak er forbedring av eksisterende løsning og/eller ventilering ved åpning av vinduer.
Tekniske anlegg:
- Vannrør (utover det som nevnes under andre sjekkpunkter): Deler av hyttas vannrør av kobber (og tilhørende komponenter) har en alder som tilsier at fremtidig funksjon er usikker. Konsekvensen er at bygningsdelen erfaringsmessig har risiko for nedsatt funksjon, funksjonssvikt eller andre aldersrelaterte problemer. Bygningsdelen er skjult, så den faktiske tilstanden er ukjent. Foreslått tiltak er videre overvåking, slik at lokale reparasjoner eller utskiftninger kan iverksettes når dette viser seg å være nødvendig.
- Avløprør (utover det som nevnes under andre sjekkpunkter): Enkelte av hyttas avløpsrør (og tilhørende komponenter) har en alder som tilsier at fremtidig funksjon er usikker. Konsekvensen er at bygningsdelen erfaringsmessig har risiko for nedsatt funksjon, funksjonssvikt eller andre aldersrelaterte problemer. Bygningsdelen er skjult, så den faktiske tilstanden er ukjent. Foreslått tiltak er videre overvåking, slik at utskiftning eller innvendig rehabilitering/rørfornyelse (hvis dette lar seg gjøre i det aktuelle tilfellet) kan iverksettes når dette viser seg å være nødvendig.
Andre rom - 1. etasje :
- Overflate gulv: Synlige deler av gulvets overflatemateriale har tegn av slitasje. Forholdet vurderes i hovedsak til å være av estetisk betydning, uten nevneverdige konsekvenser utover dette.
- Annet: Deler av etasjen har skråtak som er en lukket konstruksjon. Slike konstruksjoner betraktes erfaringsmessig som fuktrisikokonstruksjoner. Konsekvens er risiko for skjulte feil og skader. Det gjøres oppmerksom på at det ikke er observert symptomer på fuktskader. Foreslått tiltak er videre undersøkelser og kartlegging av tilstand og utførelse hvis tilkomst til bygningsdelen blir mulig, eller ved mistanke om fuktproblemer.
Loft - innredet - 2. etasje :
- Innerdører: Dørbladet på enkelte innerdører kommer i kontakt med karmen slik at døren ikke kan åpnes og lukkes som normalt. Konsekvens er at dette påvirker brukerfunksjonen. Justering av dør/karm eller lignende tiltak kan iverksettes ved behov.
- Konstruksjonsoppbygging: Etasjens skråtak er en lukket konstruksjon. Slike konstruksjoner betraktes erfaringsmessig som fuktrisikokonstruksjoner. Konsekvens er risiko for skjulte feil og skader. Det gjøres oppmerksom på at det ikke er observert symptomer på fuktskader. Foreslått tiltak er videre undersøkelser og kartlegging av tilstand og utførelse hvis tilkomst til bygningsdelen blir mulig, eller ved mistanke om fuktproblemer.
Krypkjeller (innvendig inspeksjon) - Området under hytte:
- Helhetsvurdering: Det er valgt å vurdere områdene under hytte og tilhørende/omliggende bygningsdeler) med en samlet helhetsvurdering. Følgende hovedmomenter er lagt til grunn for vurderingen:
Basert på bygningsdelenes samlede tilstandsbilde og hovedmomentene som nevnes over bør det påregnes tiltak som videre overvåkning og lokale utbedringer der dette viser seg å være et behov. Erfaring viser at igangsetting av slike arbeider i mange tilfeller avdekker ytterligere forhold som kan kreve tiltak, noe som det bør tas høyde for. Utvendige forhold har stor betydning for områdets tilstand og skadepotensial.
Etasjeskiller og gulv på grunn (skjevhetsmåling) - 1. etasje:
- Skjevhetsmåling: På kjøkken er det på tilfeldige punkter målt lokale høydeforskjeller opptil 12 mm. I stue måles dette til 15 mm. Stikkprøvene som er utført har ikke avdekket vesentlige skjevheter. Eksakt årsak er ikke kjent, men det anses som lite sannsynlig at forholdet skyldes store strukturelle skader i etasjeskilleren.
Etasjeskiller og gulv på grunn (skjevhetsmåling) - 2. etasje :
- Skjevhetsmåling: På et soverom er det på tilfeldige punkter målt lokale høydeforskjeller opptil 15 mm. Stikkprøvene som er utført har ikke avdekket vesentlige skjevheter. Eksakt årsak er ikke kjent, men det anses som lite sannsynlig at forholdet skyldes store strukturelle skader.
Yttervegger inkl. fasader:
- Helhetsvurdering: Det er valgt å vurdere yttervegger og fasader (og tilhørende bygningsdeler) med en samlet helhetsvurdering. Følgende hovedmomenter er lagt til grunn for vurderingen:
Basert på bygningsdelenes samlede tilstandsbilde og hovedmomentene som nevnes over bør det påregnes tiltak som forebyggende vedlikehold og/eller lokale utbedringer der dette viser seg å være et behov. Erfaring viser at igangsetting av slike arbeider i mange tilfeller avdekker ytterligere forhold som krever tiltak, noe som det bør tas høyde for.
Vinduer og ytterdører:
- Ytterdører og omramming: Dørene viser begynnende tegn til utvendig slitasje. Det er derimot ikke registrert synlige skader av vesentlig betydning. Foreslått tiltak er at det iverksettes forebyggende vedlikehold.
Yttertak:
- Takkonstruksjon: På bakgrunn av at eksakt oppbygning av luftesjikt av takkonstruksjonen ikke kan kartlegges og undersøkes fra innsiden, foreligger det en usikkerhet om hvordan/om denne funksjonen er tilstrekkelig ivaretatt, men det observeres luftespalter i topp og bunn ved utstikk. Foreslått tiltak er videre undersøkelser og kartlegging av dagens utførelse og tilstand. Utstikkende limtredragere er beslått med blikk på endeved. Det er enkelte steder tegn på slitasje/fuktopptrekk i området. Foreslått tiltak er videre overvåking, slik at lokal reparasjon eller utskiftning kan iverksettes når dette blir nødvendig.
Terrasse / platting - Terrasseplattinger rundt og ved hytte. :
- Helhetsvurdering: Det er valgt å vurdere terrassen (og tilhørende bygningsdeler) med en samlet helhetsvurdering. Følgende hovedmomenter er lagt til grunn for vurderingen:
Basert på bygningsdelenes samlede tilstandsbilde og hovedmomentene som nevnes over bør det påregnes tiltak som forebyggende vedlikehold og/eller lokale utbedringer der dette viser seg å være et behov. Erfaring viser at igangsetting av slike arbeider i mange tilfeller avdekker ytterligere forhold som krever tiltak, noe som det bør tas høyde for.
Utvendig trapp - Utvendige trapper:
- Utvendig trapp: Trappen viser tegn til slitasje og elde, med stedvise symptomer på begynnende skader. Konsekvens er svekket beskyttelse av materialene, og pågående nedbrytning. Foreslått tiltak er at det iverksettes forebyggende vedlikehold og lokale reparasjoner, eller utskiftning hvis videre undersøkelser viser at dette er nødvendig.
Grunnmur, fundament:
- Grunnmur og fundament: Det registreres enkelte moderate tegn til riss i overflatene og enkelte skjevheter til fundamneter. Eksakt årsak er ukjent. Konsekvens er at forholdet kan indikere overflatespenninger eller bevegelser i konstruksjoner. Foreslått tiltak er videre overvåking, slik at forebyggende vedlikehold og/eller lokal reparasjon kan iverksettes dersom utviklingen fortsetter.
Drenering:
- Helhetsvurdering: Det er valgt å vurdere dreneringen med en samlet helhetsvurdering. Følgende hovedmomenter er lagt til grunn for vurderingen:
Dreneringens funksjon påvirker boligens bruksområder og bygningstekniske tilstand. Dette gjelder blant annet forhold som fuktbeskyttelse av konstruksjoner mot terreng og områder under og ved hytte. Forholdene påvirker særlig konstruksjoner som er i direkte eller nær kontakt med bakken. Lokale og fremtidige klimaforhold er også en påvirkningsfaktor. Foreslått tiltak er videre overvåking, slik at forebyggende vedlikehold og nødvendige utbedringer kan iverksettes etter behov.
Andre byggverk - Anneks/sidebygning :
- Helhetsvurdering: Det er valgt å vurdere bygningen med en samlet helhetsvurdering. Følgende hovedmomenter er lagt til grunn for vurderingen:
Basert på byggverkets samlede tilstandsbilde og hovedmomentene som nevnes over bør det påregnes tiltak som forebyggende vedlikehold og/eller lokale utbedringer der dette viser seg å være et behov. Erfaring viser at igangsetting av slike arbeider i mange tilfeller avdekker ytterligere forhold som krever tiltak, noe som det bør tas høyde for.
Andre utvendige forhold - Helhetsvurdering:
- Tilstandsgrad: Stedvis tegn av slitasje på vinduer og detaljer. Konsekvens er svekket beskyttelse av materialene, og behov for tiltak for å hindre videre nedbrytning. Det er derimot ikke registrert synlige skader av større betydning. Vurderingen er begrenset til det som er synlig fra bakkenivå, med den begrensing dette innebærer. Tak er tekket med plastplater. Foreslått tiltak er at det iverksettes forebyggende vedlikehold og lokale reparasjoner/utskiftning hvis videre undersøkelser viser at dette er nødvendig.
Andre utvendige forhold - Overflater/tilstand:
- Tilstandsgrad: Gjerder og gangbro viser begynnende tegn til generell slitasje og elde. Konsekvens er svekket beskyttelse av materialene. Foreslått tiltak er at det iverksettes forebyggende vedlikehold og/eller lokal reparasjon hvis videre undersøkelser viser at dette er nødvendig. Det er gjort en vurdert av gangbro, selv om denne ligger på utsiden av tomten, dette siden det kun er denne hytta som benytter seg av den. Rekkverk på gangbro er vurdert til å ikke være i henhold til krav om sikkerhet. Blant annet har rekkverket er under åpninger større enn 10 cm og rekkverket er ikke utformet slik at det forhindrer klatring. Basert på ovennevnte forhold oppfyller ikke trappen dagens krav til sikkerhet. Om gangbro oppfylte kravene som var gjeldende på oppføringstidspunktet eller ikke, er ikke tatt stilling til.
Følgende bygningsdeler har fått TG3 (store eller alvorlige avvik) i tilstandsrapporten:
Loft - innredet - 2. etasje :
- Annet: Det er oppdaget fuktinntrengning ved vinduer mot sør i 2. etasje/loft. Selger har nylig oppdaget problematikken. Fuktinnholdet i treverket ble målt med piggelektroder til over 35 vektprosent, noe som er kritisk høye fuktnivåer (stikkprøveprinsippet er benyttet). Fare for skjulte feil og skader i omkringliggende konstruksjoner. Årsak er vurdert til å være fuktinntregning utenfra. På badet i 1. etasje i området under ble det også målt forhøyet fuktighet i vinduskarm. Selger ønsker å undersøke området og håndtverker er kontaktet. Selger vil før eiendommen overtas av kjøper sørge for at lekkasjen utbedres og vil også sørge for utbedring av evt. skader som denne har forårsaket blir utbedret. Selger vil engasjere en lokat byggmester til dette. Foreløpig er det ikke kjent omfang av skadene eller hvilke tiltak som blir iverksatt. Nærmere info ved å kontakte megler/selger. Prisanslag gjelder for lokal utbedring.
Vinduer og ytterdører:
- Vinduer og omramming: TG2: Enkelte vinduer viser begynnende tegn til slitasje på overflatebehandling, og har en alder der fremtidig funksjon vurderes som usikker. Konsekvensen er at bygningsdelen erfaringsmessig har risiko for nedsatt funksjon, funksjonssvikt eller andre aldersrelaterte problemer. Foreslått tiltak er at det iverksettes forebyggende vedlikehold etterfulgt av videre overvåking. Det er ikke klaring mellom utvendig listverk og vannbord/beslag under vinduet, noe som var vanlig på oppføringstidpunktet. I tillegg er kledningsbord stedvis ført inn mot sidebeslitning uten overdekning, samt at kledning over vannbrett ikke har klaring/drenering. Konsekvens er økt risiko for fuktopptak i trevirket, redusert levetid og utfordringer med overflatebehandling/vedlikehold. Foreslått tiltak er lokale reparasjoner. TG3: Ved vinduer på sydvegg er det registrert slitasje, og tegn på funksjonssvikt/fuktinntrenging i vegg/konstruksjon (det er i dette området det er observert fuktinntrengning innendørs, omtalt for 2. etasje/loft). Tilstanden vurderes til å være på et nivå hvor det må gjøre nødvendige tiltak. Fare for skjulte feil/skader i konstruksjon. Ved utskifting/reparasjon må det vurderes fortløpende om det finnes følgeskader som må tas hensyn til. Selger har vært i kontakt med håndtverker, foreløpig er det ikke kjent hvilke tiltak som blir gjort eller i hvilket omfang dette blir. Følgende sjablongmessig prisanslag gjelder for lokale utbedringer.
Tilstandsrapporten er inntatt i salgsoppgaven. Rapporten inneholder informasjon om avvikene og konsekvensen av disse. For avvik som er gitt TG3 har den bygningssakkyndige i tillegg gitt et anslag på hva det vil koste å utbedre disse avvikene. Ettersom kjøper regnes å være kjent med forhold som tydelig fremgår av tilstandsrapporten, oppfordres du til å sette deg grundig inn i rapporten i sin helhet.
Moderniseringer og påkostninger
- Nyere takshingel, nedløpsrør, takrenner, pipebeslag fra 2023.
- Bad, vindfang og toalettrom er bygget i 2020 og det elektriske anlegget er også oppgradert da.
Standard
Hytta har moderne design og er fint tilpasset landskapet. Innvendige overflater er malt i lyse farger. Arkitekturen åpner opp hytta mot skjærgården med store vindusflater hvor dagslyset flommer inn og gir utsikt. Åpen løsning mellom stue og kjøkken gir et sosialt rom. Gulv med parkett i stue, kjøkken, gang og toalettrom. Soverom med parkettgulv og bad med belegg. Soverommene i 2. etasje har tepper. Gjennomført materialbruk med panelte vegger og himlinger i alle rom. Kjøkkeninnredning med hvitlakkerte fronter, stålvask og heltre benkeplate. Integrert komfyr, induksjonstopp og ventilator. Det er også installert oppvaskmaskin og kombi, kjøl-/fryseskap. Hvitevarer medfølger i handelen. Det gjøres oppmerksom på at hvitevarene er kjøpt for noen år tilbake, og kjøper må forvente slitasje som følge alder og normal bruk. Badet har servant i seksjon og dusjnisje. Separat toalett med servant.
Løsøre og tilbehør
Vi viser til liste fra Norges Eiendomsmeglerforbund som gjelder fra 01.01.2020 angående løsøre og tilbehør.
Oppvarming
Peisovn i stua. Ellers elektrisk oppvarming. Dersom beboelsesrom ikke har vegg- eller fastmonterte varmekilder ved visning, følger dette heller ikke med.
Ferdigattest/brukstillatelse
Det foreligger ferdigattest for hytta, datert 22.05.1986. Denne kan fås ved henvendelse til megler.
Det foreligger en ferdigattest vedr. bruksendring av tilleggsdel til hoveddel. Bruksendringen var i forbindelse med utvidelse av badet og å etablere et wc-rom i deler av gangen. Ferdigattesten er datert 28.01.2026 og kan får ved henvendelse til megler.
Det foreligger ingen ferdigattest eller midlertidig brukstillatelse for uthuset. Det ble trolig oppført i 1992, men det foreligger tegninger fra kommunen datert 23.01.1992. Omgjøring til soverom er også inntatt i søknad i forbindelse med innsendte tegninger for å få nevnte ferdigattest i 2026.
Det gjøres oppmerksom på at det ikke lenger utstedes ferdigattest på tiltak det er søkt om før 1998 jf. plan- og bygningsloven § 21-10. Kommunen vil ikke kreve ferdigattest for disse tiltakene og vil avvise eventuelle søknader. Bestemmelsen innebærer ikke at tiltak med manglende søknad blir lovlige, men at man ikke trenger å avslutte gamle byggesaker. Normalt sett kreves ferdigattest for alle søknadspliktige tiltak som gjøres etter plan- og bygningsloven.
Eventuell adgang til utleie
Eiendommen har ikke separat utleieenhet. Det vil normalt være anledning til utleie av hele eiendommen eller enkeltrom, såfremt utleiearealet er bygningsmessig godkjent for varig opphold og har forsvarlige radonnivåer.
Beliggenhet og tomteforhold
Beliggenhet og tomteforhold
Beliggenhet
Store Arøya ligger helt syd i Vestfold skjærgården som grenser til Telemark, et fantastisk område som strekker seg inn mot Brevik og sydover mot Langesund. Her er det over 100 øyer og holmer i den nære skjærgården. "Hovedstaden" på Telemarkskysten er Kragerø og dit er det under en times båttur over fjorden. Til sommerstedene Helgeroa, Brevik og Langesund er det kun en liten svipptur. Om sommeren er det et yrende liv med konserter og festivaler i disse sommerbyene. I Langesund er Wrightegaarden kjent for sine mange konserter gjennom hele sommeren. Helgeroa fergene setter ofte opp ekstra fergeruter til og fra øya på de mest populære konsertene. Ellers er mulighetene mange i en variert og vakker skjærgård. Hytta ligger høyt og fritt på et av de gamle utsiktspunktene på øya. Usjenert og med sol fra tidlig morgen til sen kveld. Den har en fantastisk utsikt mot havet, Stråholmen og Jomfruland i sør, skjærgården i vest og Lifjell i nord. Rett mot vest er det utsikt mot Arøyaholmene, Dypingen, Gjeterøya og mot Skjærgården hotel og badepark i Langesund. Hytta har store vindusflater i stua, og det er fin utsikt både fra stue og kjøkken. Det er flere sandstrender på øya, den nærmeste ligger rett nedenfor og heter Fredriksens strand. Den ligger skjermet mellom svaberg som danner en lagune. Den er kjent i området som en av de beste strendene med kritthvit sand og turkisblått vann. Det er flotte turområder og gode fiskemuligheter på øya.
Adkomst
Med båt fra Helgeroa, Langesund, Brevik eller andre fastlandsforbindelser i området. Øya har fergeforbindelse til både Helgeroa og Langesund om sommeren.
Det vil bli skiltet med Krogsveen visningsskilt ved fellesvisninger.
Beskrivelse av tomt
Eiet tomt på 1.656 kvm som hovedsaklig består av naturtomt med fjellknauser med flere flate partier og noe spredt vegetasjon. Rundt hytta er det anlagt terrasser i trevirke på alle sider. Overbygg ved inngangsparti og innglasset del. Ytterst på terrassen er det Jacuzzi.
Vei, vann og avløp
Eiendommen har adkomst via sjøveien med ferge eller egen båt.
Eiendommen er tilknyttet kommunalt ledningsnett via private stikkledninger. Eier er selv ansvarlig for private stikkledninger til boligen.
Regulerings-og arealplaner
Eiendommen ligger i et uregulert område, men er i kommuneplanens arealdel 2025-2037 datert 10.12.2025 er avsatt til: LNRF område for nødvendige tiltak for landbruk, reindrift og gårdstilknytet næringsvirksomhet basert på gårdens ressursgrunnlag, nåværende.
Utsnitt av plan med tilhørende bestemmelser kan fås ved henvendelse til megler.
Økonomi
Økonomi
Kommunale utgifter
Kommunale avgifter var kr. 12.429,- for 2025 år. Kommunale avgifter er prognosert til å utgjøre kr. 12.893,- for inneværende år. I dette inngår gebyr for vann, avløp og fritidsrenovasjon. Det tas forbehold om at kommunen kan justere gebyrene i løpet av året.
Nåværende eier har et strømforbruk som tilsvarer ca. kr. 6.300,- pr. år. / 1.500 kwh. pr. år.
Fritidsboligen har en årlig forsikringspremie på kr. 4.885,-.
Avgift til Bukkespranget vann- og avløpslag SA fastsettes årlig og har vært på kr. 1.000,- - kr. 2.500,- pr. år.
Velavgift til Arøyene Vel er kr. 300,- pr. år.
Fritidsboligen har antenne for RiksTv. Tv-tuner/dekoder medfølger.
Utgiftene er basert på nåværende eiers forbruk og avtaler.
Formuesverdi
Formuesverdi for 2024 var kr. 166.375- ifølge Skatteetaten.
Formuesverdien justeres normalt årlig.
For mer informasjon se skatteetaten.no
Omkostninger
4 500 000,00 Prisantydning
Omkostninger
112 500,00 Dokumentavgift til staten (2,5% av kjøpesum)
19 900,00 Gjensidige Boligkjøperpakke (valgfri)
545,00 Tinglysing panterettsdokument
545,00 Tinglysing skjøte
--------------------------------------------------------
133 490,00 Omkostninger totalt
--------------------------------------------------------
4 633 490,00 Totalpris inkl. omkostninger
--------------------------------------------------------
Totalpris inkl. omkostninger forutsetter kjøp til prisantydning.
Det tas forbehold om endringer i avgifter og gebyrer.
Tilbud om lånefinansiering
Megler formidler gjerne kontakt med rådgiver hos vår samarbeidspartner BN Bank. De har konkurransedyktige betingelser samt rask og løsningsorientert behandling av din lånesøknad. Krogsveen mottar et honorar dersom lån opprettes.
Betalingsbetingelser
Kjøpesum inkludert omkostninger, samt pantedokument tilknyttet eventuelt lån, skal være disponibelt hos megler 2 virkedager før overtagelsen.
Annen viktig informasjon
Annen viktig informasjon
Eier
Geir Wold-Hansen og Hege Lie
Konsesjon
Eiendommen er ikke konsesjonspliktig, men det er boplikt i Larvik kommune. For at eiendommen skal kunne overskjøtes må kjøper signere på egenerklæring om konsesjonsfrihet om at boplikten ikke gjelder for denne eiendommen.
Overtakelse
Etter nærmere avtale.
Boligselgerforsikring
Selger har i forbindelse med salget tegnet boligselgerforsikring levert av Gjensidige.
Boligselgerforsikringen dekker selgers ansvar etter avhendingsloven begrenset oppad til kr 14 millioner. Dersom kjøper oppdager forhold ved eiendommen som hen mener utgjør en mangel ved eiendommen, vil Gjensidige behandle reklamasjonen på vegne av selger. Forsikringsvilkår kan fås ved henvendelse til megler.
Vedlagt salgsoppgaven følger selgers egenerklæringsskjema og tilstandsrapport. Interessenter må sette seg inn i dokumentene før bud inngis.
Boligkjøperforsikring
Innen kontraktsmøtet må kjøper ta stilling til om det ønskes å bestille Boligkjøperpakken gjennom Gjensidige. I denne gunstige pakken er boligen ferdig forsikret og inkluderer rettshjelpsforsikring, også kalt Boligkjøperforsikring. Rettshjelpsforsikring gir trygghet og tilgang på profesjonell juridisk hjelp dersom det oppdages uventede feil eller mangler det første året etter overtagelse. Forsikringsselskapet behandler i så fall ethvert mangelskrav kjøper måtte ha overfor selger.
Boligkjøperpakken inkluderer bygningsforsikring for hus og hytte, innboforsikring, flytteforsikring og dobbel rentedekning - i situasjoner hvor kjøper ikke får solgt nåværende primærbolig.
Kjøper mottar ingen særskilt faktura for Boligkjøperpakken da kostnaden det første året legges til kjøpesummen for boligen. Det gjøres oppmerksom på Krogsveen mottar et honorar for denne formidlingen.
Produktark for Boligkjøperpakken ligger vedlagt i salgsoppgaven.
Dersom ikke boligkjøperpakke ønskes kan kun rettshjelpsforsikring, også kalt boligkjøperforsikring, tegnes særskilt via megler. Rettshjelpsforsikringen varer i 5 år fra overtagelse og leveres gjennom Gjensidige. Ta kontakt med megler for ytterligere informasjon.
Selskap og privatpersoner som driver med kjøp/salg/utvikling som ledd i egen næringsvirksomhet kan ikke tegne boligkjøperpakke eller rettshjelpsforsikring.
Budgivning
Forbrukerinformasjon om budgivning er vedlagt denne salgsoppgaven og er også på vår hjemmeside Krogsveen.no. Alle bud og budforhøyelser må inngis skriftlig. I tillegg må legitimasjon være fremlagt sammen med signatur fra budgiver.
Vi oppfordrer til å gi bud elektronisk via GI BUD-knappen på eiendommens hjemmeside på Krogsveen.no. Da vil samtlige vilkår bli oppfylt.
Eventuelle forhøyelser eller endringer av budet kan bekreftes pr SMS eller på e-post. Vi oppfordrer alltid til å kontakte megler pr. telefon i tillegg da forsinkelser i SMS og e-post kan forekomme.
For at budene skal kunne bli behandlet og videreformidlet skriftlig til alle involverte parter, må alle bud ha en tilstrekkelig lang akseptfrist, jf. eiendomsmeglingsforskriften § 6-3.
Selger må også skriftlig akseptere budet før aksept kan formidles til budgiver. Akseptfrist bør derfor være på minimum 30 minutter, og budforhøyelser må derfor skje i god tid før fristens utløp.
Bud i forbrukerforhold kan uansett ikke settes med kortere frist enn kl. 12.00 første virkedag etter siste annonserte visning. I tillegg kan ikke budet ha forbehold om at det skal holdes hemmelig ovenfor øvrige interessenter. Megler har iht lov om eiendomsmegling ikke anledning til å videreformidle disse budene, og de vil dermed heller ikke bli journalført.
Etter at eiendommen er solgt vil kjøper og selger få tilsendt budjournal. Øvrige budgivere kan få utlevert kopi av budjournalen i anonymisert form.
Hvitvaskingsreglene
I henhold til lov om hvitvasking og terrorfinansiering har megler plikt til å gjennomføre kontrolltiltak overfor kunder, herunder fullmektiger. Dette innebærer bl.a. å bekrefte kunders og reelle rettighetshaveres identitet på bakgrunn av fremvist gyldig legitimasjon eller på annen godkjent måte, samt å innhente opplysninger om kundeforholdets formål og tilsiktede art.
Dersom slike kundetiltak ikke kan gjennomføres, kan megler ikke etablere kundeforholdet eller utføre transaksjonen.
Hvis kjøper ikke bidrar til gjennomføring av kundekontrollen og dette fører til at transaksjonen blir forsinket eller ikke kan gjennomføres, vil dette ansees som mislighold av avtalen og gi selger rettigheter etter avhendingslova kapittel 5. I tilfeller der selger ikke bidrar til gjennomføring av løpende kundekontroll underveis i oppdraget, er det selger som misligholder sine forpliktelser etter avtalen og gi kjøper rettigheter etter avhendingslovens kapittel 4. Partene er selv ansvarlige for eventuelle kostnader og ansvar dette kan medføre. Eiendomsmegleren eller eiendomsmeglingsforetaket kan ikke holdes ansvarlig for de konsekvenser dette vil kunne få for partene eller andre som har interesser i eiendomshandelen.
Kjøper oppfordres til å innbetale kjøpesummen som ikke kommer fra låneinstitusjon i én samlet innbetaling fra egen konto i norsk bank. Megler har plikt til å melde fra til Økokrim om eiendomshandler som fremstår som mistenkelige. Melding sendes Økokrim uten at partene varsles.
Personopplysningsloven
I henhold til personopplysningsloven gjør vi oppmerksom på at interessenter kan bli registrert for videre oppfølging.
Lovanvendelse
Generelle bestemmelser
Salgsoppgaven er basert på de opplysningene selger har gitt til megler, den bygningssakyndiges tilstandsrapport, samt opplysninger innhentet fra kommunen, Kartverket og andre tilgjengelige kilder. Det er viktig at kjøper setter seg grundig inn i alle salgsdokumentene, herunder salgsoppgave, tilstandsrapport og selgers egenerklæring. Kjøper anses kjent med forhold som er tydelig beskrevet i salgsdokumentene, og slike forhold kan ikke påberopes som mangler. Dette gjelder uavhengig av om kjøper har lest dokumentene. Alle interessenter oppfordres til å undersøke eiendommen nøye, gjerne sammen med fagkyndig før bud inngis. Kjøper som velger å kjøpe usett kan ikke gjøre gjeldende som mangel noe han burde blitt kjent med ved undersøkelsen.
Dersom det er behov for avklaringer, anbefaler vi at interessenter rådfører seg med eiendomsmegler eller egne rådgivere før det legges inn bud.
En bolig som har blitt brukt i en viss tid, har vanligvis blitt utsatt for slitasje og skader kan ha oppstått. Slik bruksslitasje må kjøper regne med, og det kan avdekkes enkelte forhold etter overtakelse som nødvendiggjør utbedringer. Normal slitasje og skader som nødvendiggjør utbedring, er innenfor hva kjøper må forvente og vil ikke utgjøre en mangel.
Kjøper og selgers rettigheter og plikter reguleres av avtalen mellom partene, samt informasjonen som har vært tilgjengelig for kjøperen i forbindelse med handelen. Avtalen utfylles av avhendingsloven, og det gjelder ulike avtalevilkår avhengig av om kjøper er forbrukerkjøper eller ikke. Dette er nærmere beskrevet nedenfor.
På grunn av ulike avtalevilkår kan selger vurdere bud fra en som ikke er forbruker, ulikt fra en forbrukers bud. Dersom kjøper ikke er forbruker, er selger sitt mulige mangelsansvar begrenset fordi eiendommen selges "som den er". Selger kan ikke ta «som den er»- forbehold overfor en forbrukerkjøper. Selv et lavere bud fra en som ikke er forbruker kan foretrekkes fordi begrensningen i mulig mangelsansvar kan ha egenverdi for selger. Selger står fritt til å forkaste eller akseptere ethvert bud, og er for eksempel ikke forpliktet til å akseptere høyeste bud.
Budgiver skal i budskjema avgi egenerklæring om budgiver er forbruker eller næringsdrivende/ person som hovedsakelig handler som ledd i næringsvirksomhet. Budgivere får informasjon dersom andre bud er inngitt av en som ikke er forbruker.
Forbrukerkjøp - definisjon
Med forbrukerkjøp menes kjøp av eiendom når kjøperen er en fysisk person som ikke hovedsakelig handler som ledd i næringsvirksomhet.
Forbruker – avtalevilkår
Eiendommen har en mangel dersom den ikke er i samsvar med kravene som følger av avtalen, eller det foreligger brudd på bestemmelsene i avhendingsloven §§ 3-2 til 3-8. Hvis eiendommen ikke er i samsvar med det kjøperen må kunne forvente ut ifra alder, type og synlig tilstand, kan det være grunnlag for mangelskrav. Det samme gjelder hvis det er holdt tilbake eller gitt uriktige opplysninger om eiendommen. Dette gjelder likevel bare dersom man kan gå ut ifra at det virket inn på avtalen at opplysningen ikke ble gitt eller at mangelskravet ikke blir rettet i tide på en tydelig måte.
Boligen kan ha en mangel etter avhendingsloven § 3-3 andre ledd, dersom det er avvik mellom opplyst og faktisk innvendig areal, forutsatt at avviket er på 2% eller mer og minimum 1 kvm.
Ved beregning av et eventuelt prisavslag eller erstatning må kjøper selv dekke tap/kostnader opptil et beløp på kr 10 000 (egenandel).
Ikke-forbruker (næringsdrivende) – definisjon
Hvis kjøper er en juridisk person, eller en fysisk person som hovedsakelig handler som ledd i næringsvirksomhet, vil kjøpet ikke anses som et forbrukerkjøp.
Ikke-forbruker – avtalevilkår
Eiendommen har en mangel dersom den ikke er i samsvar med kravene som følger av avtalen.
Eiendommen selges «som den er», og selgers ansvar utover det konkret avtalte er da begrenset etter avhendingsloven § 3-9, første ledd andre setning.
Avhendingsloven § 3-3 andre ledd fravikes, og hvorvidt boligens arealsvikt utgjør en mangel vurderes etter avhendingsloven § 3-8.
Informasjon om kjøpers undersøkelsesplikt, herunder oppfordringen om å undersøke eiendommen nøye, gjelder også for kjøpere som ikke anses som forbrukere.
Det forutsettes at hjemmel overføres til kjøper. Hvis kjøper ikke ønsker hjemmelsoverføring av eiendommen, må det tas forbehold om dette i budet.
Meglers vederlag
Meglers vederlag betales av selger og er avtalt til:
Vederlag: 3,25 % av salgssummen.
Vederlag:
Kontroll av hjemmel og heftelser kr 2 900,-
Markedsføringspakke Fritid kr 27 400,-
Oppgjør kr 7 500,-
Tilrettelegging kr 17 000,-
Utlegg:
Innhenting av offentlig opplysninger Larvik kommune kr 5 079,-
Tinglysing sikring kr 545,-
Andre utgifter:
Boligselgerforsikring Gjensidige kr 45 895,-
Foto kr 5 000,-
Tilbud av produkter og tjenester fra våre samarbeidspartnere
VI er opptatt av verdiskapning, og har knyttet til oss samarbeidspartnere som skal sikre våre kunder de beste produkter og tjenester;
• Gjensidige leverer boligselgerforsikring og tilbyr bygningsforsikring
• Boligkjøperforsikring leveres av Hiscox og med Sedgwick som skadebehandler, og er formidlet gjennom Gjensidige.
• BN bank tilbyr finansieringsløsninger
• Vår avdeling Krogsveen Pluss tilbyr flyttetjenester som utvask, visningsvask, lager, tømming og transport av flyttelass, i tillegg til å formidle kontakt med Flip for overflateoppussing.
• I forbindelse med overtagelse av eiendommen tilbyr Overo avtale om strøm, alarm og bredbånd.
• Krogsveen er, sammen med øvrige bransjeaktører, medeier i den digitale annonseringsplattformen Hjem.
Opplysninger om oppdraget
Oppdragsnummer 28-0081/25
Eiendomsmegler Krogsveen AS, avd. Bamble og Porsgrunn
Strandgata 22, 3960, STATHELLE
950 007 613
Oppdragets KR-kode KR28.2581
Dato
Sist oppdatert: 28. april 2026 kl. 15:21
Dokumenter
Dokumenter
PDF – 167 KB
PDF – 974 KB
PDF – 8 MB
PDF – 312 KB
PDF – 29 KB
PDF – 127 KB
PDF – 392 KB
Område
Legg til steder som er viktige for deg
Visning
Oppmøte med felles båttransport fra Helgeroa Marina. For å delta på visning, ber vi om at du melder deg på. Da sikrer vi at du får nødvendig informasjon og at det er satt av tilstrekkelig med tid. Kontakt megler dersom annet tidspunkt ønskes. Husk å lese salgsoppgaven før visningen, så du stiller forberedt. NB. Visning utgår dersom det ikke er noen påmeldte. Ønsker du kun å bli holdt orientert, kan du fra eiendommens hjemmeside få varsel om solgtpris, eller kontakte megler.
Lurer du på noe?
Vurderer du utleie?
Få et tilbud fra Utleie KrogsveenHva koster lånet?
Sjekk estimert lånekostnadVil du varsles om lignende boliger?
Ved å lagre ditt boligsøk hos oss får du beskjed når vi har en bolig som ligner denne, før den legges ut på markedet!




















































