Skrikarlia 51
1 590 000 kr
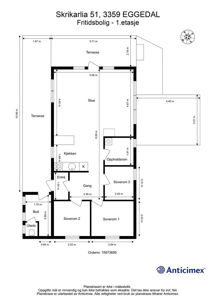
65 m²
3 soverom
Solgt

Norefjell
Koselig hytte med naturrike omgivelser og kort vei til Norefjell skianlegg- 3 soverom - Flott utsikt
Prisantydning
1 590 000 krOmkostninger
60 740 krTotalpris
1 650 740 kr
Pris
Bruksareal
71 m²BRA-I (internt bruksareal)
65 m²BRA-E (eksternt bruksareal)
6 m²TBA (terrasse-balkongareal)
54 m²
Areal
Byggeår
1991Soverom
3 soveromTomteareal
1 000 m² (eiet)Type
Fritidseiendom på fjelletEierform
EietFasiliteter
Balkong/TerrasseÅrlig velavgift
8 000 krEnergimerke
Oransje E
Nøkkelinfo
Vurderer du utleie?
Få et tilbud fra Utleie KrogsveenHva koster lånet?
Sjekk estimert lånekostnadBeskrivelse
Kort om eiendommen
Velkommen til Skrikarlia 51!
Koselig hytte hvor du er omkranset av flott natur og umiddelbar nærhet til langrennsløyper og naturstier. Hytten ligger en kort kjøretur unna Norefjell Ski og Spa samt alpinanlegg, perfekt for skientusiastene. Fra stuen har du flott utsikt over fjellene rundt. Her har du gode muligheter til å invitere venner og familie da hytten til sammen har 8-9 sengeplasser. Området byr på muligheter for nydelige langrennsturer, fotturer, fisking og sykkelturer for å nevne noe.
- Langrennsløyper "rett utenfor døra"
- Flott utsikt
- 3 soverom
- Åpen løsning mellom stue og kjøkken
- Kort kjøretur til Norefjell Ski og Spa
- Lite innsyn
- Meget solrikt og usjenert
Område
Legg til steder som er viktige for deg
På flyttefot? Tenk kjøp og salg samtidig.
Få din egen rådgiver gjennom hele kjøps- og salgsprosessen. Det starter med en verdivurdering.
Vurderer du utleie?
Få et tilbud fra Utleie KrogsveenHva koster lånet?
Sjekk estimert lånekostnadVil du varsles om lignende boliger?
Ved å lagre ditt boligsøk hos oss får du beskjed når vi har en bolig som ligner denne, før den legges ut på markedet!

